Rectificatie: Straatnaambesluit Peltafel te Limmen

[Deze publicatie betreft een rectificatie, omdat de bij dit besluit behorende kaart per abuis niet was bekendgemaakt. De oorspronkelijke publicatie is op 17 maart 2025 bekendgemaakt, beschikbaar via Gemeenteblad 2025, 105797.]

 

Het college van burgemeester en wethouders van de gemeente Castricum;

 

Gelet op:

 

  • -

    artikel 108 van de Gemeentewet en artikel 6 van de Wet basisregistratie adressen en gebouwen, waarin van gemeenten wordt vereist om de openbare ruimte van namen te voorzien;

Besluit:

  • 1.

    Dat de volgende namen gaan gelden volgens de bij dit besluit behorende kaart:

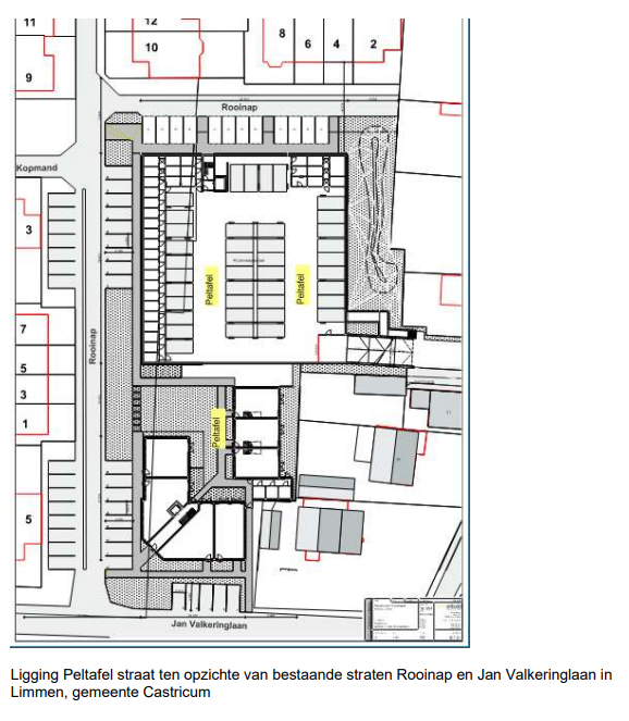
    Straatnaam ‘Peltafel’ te Limmen.

  • 2.

    Dit besluit treedt in werking met ingang van de dag na bekendmaking en werkt terug tot en met 4 maart 2025.

Aldus besloten door het college van burgemeester en wethouders van de gemeente Castricum in de vergadering van 4 maart 2025.

mevrouw drs. H.G.M. Bakker

gemeentesecretaris

de heer B.A. Tap

burgemeester

Bijlage  

Naar boven