Nota Ecologie 2025-2030

De raad van de gemeente Purmerend,

 

gelezen het voorstel van burgemeester en wethouders d.d. 13 januari 2025

 

B E S L U I T:

 

  • 1.

    De Nota Ecologie 2025-2030 vast te stellen, met daarin opgenomen het Puntensysteem natuurinclusief bouwen Purmerend 2.0 en gedetailleerde kaarten met de ecologische verbindingszones.

  • 2.

    Dit besluit treedt in werking op de dag na die van bekendmaking.

Nota Ecologie gemeente Purmerend 2025-2030

Het behoud van een gezonde leefomgeving voor mens, plant en dier

 

Voorwoord

Ecologie gaat over de relatie tussen mensen, dieren en de natuur. In onze gemeente wonen steeds meer mensen dicht bij elkaar. Dit, samen met klimaatverandering, maakt het moeilijker om deze relatie goed te houden. Daarom hebben we de Nota Ecologie opgesteld. Hiermee willen we zorgen voor een gezonde leefomgeving voor iedereen: mensen, dieren en planten.

 

Vijftig jaar geleden begonnen we met het mooier en natuurvriendelijker maken van het groen in de omgeving. Een mooi voorbeeld hiervan is het Oeverplan uit 2008, waarbij er op grote schaal beschoeiing is verwijderd en vervangen voor een natuurlijke flauwe oever. Ook zijn er toen speciale onderwaterbakken gecreëerd waardoor oevervegetatie meer ruimte krijgt binnen de waterloop. In de komende jaren werken we verder aan het verbeteren van ons ecologisch netwerk. We willen een groen netwerk creëren door parken en groene zones in de stad en dorpen te verbinden met het buitengebied. Inheemse planten gebruiken en plekken creëren waar vogels in alle rust kunnen broeden.

 

Door het groen in de stad met elkaar te verbinden en ook verbindingen te maken met het buitengebied, kunnen we de biodiversiteit vergroten. Dit betekent dat er meer verschillende planten en dieren kunnen leven. Ook helpt het om de stad koeler te maken en regenwater beter op te vangen. Meer natuur in de stad zorgt voor een gezondere leefomgeving en dit helpt ons om de gevolgen van klimaatverandering beter aan te pakken.

 

Laten we samenwerken aan een groenere en gezondere stad voor iedereen!

 

Met vriendelijke groet,

Coen Lageveen, Portefeuillehouder ecologie

 

Samenvatting

We werken dagelijks aan het Purmerend van de toekomst. Dit doen we met respect voor onze omgeving en door te streven naar een balans tussen natuur en bebouwd gebied. Zo zorgen we ervoor dat onze gemeente ook in de toekomst leefbaar en veilig blijft, voor onze kinderen en iedereen die zich verbonden voelt met onze ondernemende gemeente.

 

Het werken aan de toekomst van Purmerend doen we aan de hand van de verschillende transitiepaden uit het overzichtsdocument ‘Werk aan de toekomst’. Deze Nota Ecologie is onderdeel van het spoor ‘we vinden een balans tussen mens, natuur en bebouwing’. In dit spoor werken we aan een leefbare gemeente met voldoende ruimte voor natuur en groen. Bij de inrichting van de leefomgeving en woningbouwplannen besteden we daarom aandacht aan dierenwelzijn, ecologie, natuurinclusiviteit en biobased bouwen.

 

Voor de overige documenten is de voorgestelde inhoud van het onderdeel als volgt:

  • ▪︎

    We gaan anders om met energie: In dit spoor werken we aan een andere omgang met energie: zuiniger, slimmer en schoner. Dat doen we door te werken aan de energie- en warmtetransitie met aandacht voor de betaalbaarheid, het energiezuinig maken van woningen en het opwekken van schone energie.

  • ▪︎

    We gaan anders om met water en houden het hoofd koel: In dit spoor werken we aan een leefbaar en veilig Purmerend, door ons voor te bereiden op een ander klimaat. We ondernemen actie om ons te beschermen tegen toenemende warmte, meer en extreme regenval, meer en langere droogte en overstromingen.

  • ▪︎

    We werken aan de economie van de toekomst: In dit spoor werken we aan een toekomstbestendige economie. Die gaat ook over leefbaarheid, gezondheid en het welzijn van bewoners. We hebben daarbij aandacht voor circulariteit, vergroening en energiezuinigheid bij bedrijven.

  • ▪︎

    We gaan ons schoner en anders verplaatsen: In dit spoor werken we aan het verminderen van schadelijke uitstoot door vervoer en gaan we bewust om met de beperkte ruimte in onze gemeente. In onze groeiende gemeente willen we vervoer veranderen naar een duurzame manier, waarbij lopen en fietsen centraal staat.

Ondanks dat we ons inzetten voor een betere toekomst, staan we voor grote uitdagingen zoals het aanpakken van het woningtekort. De komst van meer woningen en parkeerplaatsen zorgen voor meer druk op de openbare ruimte en dit gaat vaak samen met het verlies aan groen. Deze groene gebieden, zoals bomenlanen, hofjes en tuinen zijn noodzakelijk voor het behoud van populaties van wilde dieren. Het groen en de biodiversiteit in onze gemeente zorgt voor een gezonde leefomgeving, die bestand is tegen de gevolgen van klimaatverandering, plagen of invasieve exoten (exotische plant- en diersoorten die inheemse soorten en leefgebieden overnemen). Dit groen en deze biodiversiteit dragen vervolgens bij aan een goede leefbaarheid van onze omgeving. Om de komende jaren voldoende ruimte voor het groen te behouden en te maken, moeten we goed letten op de balans tussen natuur, mens en bebouwing.

 

In de Visie Leefbare Stad 2040 staat hoe we deze balans zien. We willen de biodiversiteit versterken door parken en plantsoenen in het stedelijk gebied te verbinden met het buitengebied. Dit groene netwerk is nuttig voor mensen, omdat het bijvoorbeeld wateroverlast beperkt doordat regenwater goed in de bodem kan zakken (infiltratie) en omdat bomen onder warme omstandigheden een verkoelend effect hebben. Daarnaast is een groen netwerk essentieel voor de verspreiding van plant- en diersoorten. Voor deze laatste vormt dit gebied een belangrijk onderdeel van hun voedsel- en leefgebied. Waar mogelijk worden functies gecombineerd. Bijvoorbeeld het aanleggen van natuurvriendelijke oevers voor waterberging, die ook de waterkwaliteit en ecologie verbeteren.

Of het plaatsen van gevelgroen op blinde gevels voor verkoeling, wat fijnstof reduceert en insecten bevordert.

 

De balans tussen natuur, mens en bebouwing gebeurt met aandacht voor 3 (deel)onderwerpen: ecologie, dierenwelzijn en natuurinclusiviteit. Dierenwelzijn gaat hoofdzakelijk over de relatie tussen mensen en het welzijn van gehouden dieren en wordt behandeld in de Nota Dierenwelzijn. Natuurinclusiviteit gaat over de verbinding tussen de bebouwde omgeving en de natuur, en de groene oplossingen die we toepassen om een gezondere leefomgeving te creëren. Ecologie gaat over de relatie tussen mensen, dieren en natuur en wordt beschreven in deze Nota Ecologie. Deze relatie staat onder druk door de invloed van mensen op de omgeving en het klimaat. Dieren die eerst in landelijke gebieden leefden, moeten nu plaatsmaken voor stedelijk gebied. Ook dieren die het voorheen goed deden in de stad, zoals huismussen, spreeuwen, merels, gierzwaluwen en vleermuizen, nemen af, ook in Purmerend. We willen deze relatie verbeteren door groene structuren te behouden en te versterken, inheemse planten te gebruiken, gevelgroen te stimuleren en rustige plekken te creëren waar vogels kunnen broeden zonder mensen en huisdieren in de buurt.

 

Afbeelding: Een merel als kenmerkende vogelsoort van stadstuinen en parken.

 

1. Inleiding

1.1 Een nota over onze ecologie

In onze gemeente is de natuur niet ver weg. Groen en water dooraderen de gemeente en vormen het leefgebied van vele planten en dieren. Deze planten en dieren vervullen ieder een rol in de natuur als het gaat om bestuiving, bodemvruchtbaarheid, waterzuivering of het onderdrukken van plagen. De natuur en de biodiversiteit staan alleen wel onder druk door de toenemende bevolkingsgroei, oprukkende ziektes, invasieve exoten, klimaatverandering en de mate van monocultuur van het platteland. Dit geldt ook voor onze eigen gemeente, want de populaties van grotere dieren zoals huismussen, gierzwaluwen en verschillende soorten vleermuizen nemen af. Onze meest voorkomende vleermuis is in 10 jaar zelfs met meer dan 40% afgenomen. Landelijk zijn deze soorten juist relatief stabiel (huismus, gierzwaluw) en nemen de meeste vleermuissoorten licht toe. Door de woningbouwopgave en de toename aan verstening van onze leefomgeving worden deze populaties in de toekomst verder bedreigd. Deze afname aan soorten en biodiversiteit maakt onze omgeving kwetsbaarder. We moeten voorkomen dat deze populaties van wilde dieren verder afnemen in onze gemeente.

 

Deze Nota Ecologie richt zich op het beschermen en versterken van de waardevolle natuur, flora en fauna in onze gemeente. Een natuur in balans is belangrijk voor de planten en dieren, maar ook voor mensen die afhankelijk zijn van een gezonde leefomgeving. Via verschillende beleidsstukken proberen we balans te krijgen tussen mens, dier, verstening en groen. Dit wordt bereikt door klimaatadaptieve oplossingen (Klimaatadaptatiestrategie gemeente Purmerend 2025-2030), natuurinclusief bouwen, het versterken van onze parken (Parkenplan Purmerend 2021-2040) en het groenbeheer van onze stad (Groenkoers en Bomenplan). Deze beleidsstukken zorgen voor een toekomstbestendige en leefbare gemeente in de beperkte beschikbare ruimte. De balans tussen mens en natuur speelt daarbij dus een belangrijke rol.

 

1.2 Waarom een nieuwe nota

De ecologie en de wilde dieren in Purmerend werden voorheen in een hoofdstuk van de Nota Dierenwelzijn behandeld. De ecologie in onze gemeente verdient een uitgebreidere uitwerking. De natuur en ecologie zijn namelijk complex. Alle onderdelen, zoals verschillende plant- en diersoorten, de bodem, het water en de mens staan met elkaar in verbinding. De Nota Dierenwelzijn 2024-2028 richt zich hoofdzakelijk op de gehouden dieren en de relatie met mensen. Deze Nota Ecologie richt zich op de wilde dieren en planten, de biodiversiteit en het behoud van bedreigde populaties.

 

We houden al rekening met de ecologie zowel bij het beheer als bij nieuwe ontwikkelingen. De ecologie wordt ook in verschillende beleidsstukken beschreven, zoals in het Groenbeleidsplan, Bomenplan, Parkenplan en in de Nota Dierenwelzijn. Er zijn alleen nog niet eerder concrete doelstellingen omschreven voor de ecologie of de aanpak daarvan. Met deze Nota Ecologie streven we naar eenduidigheid in de doelstellingen, aanpak en monitoring, om zo een robuuste ecologie in onze gemeente te realiseren met een goede balans tussen mensen, wilde dieren en planten.

 

1.3 Doelen

Om soorten de kans te geven zich in de gemeente te verspreiden, is het belangrijk dat grotere groengebieden met elkaar verbonden zijn. Wanneer deze basis goed is, kunnen soorten ook naar kleinere gebieden en tuinen verspreiden. Dit zorgt voor sterkere populaties met een hoge genetische diversiteit, wat de biodiversiteit in wijken en dorpen versterkt. De functies van groen in bebouwde gebieden, zoals verkoeling, het vasthouden van regenwater en luchtzuivering blijven alleen behouden als de ecologie van deze gebieden op orde is.

 

De komende jaren richten we onze pijlen op de 3 belangrijkste punten om aan een robuustere ecologie te werken. Hierdoor zorgen we dat de beschermde en kwetsbare soorten blijven bestaan. Het hoofddoel van deze Nota Ecologie is het creëren van een robuust ecologisch netwerk binnen onze gemeente. Dit willen we bereiken op de volgende manieren:

 

  • ▪︎

    Door het vaststellen, beschermen en uitbreiden van het ecologisch netwerk.

We stellen de verbindingszones vast die de groengebieden in de stad en dorpen verbinden met die in het landelijke gebied, zoals het Parelweb uit het Gebiedsplan Purmerend 2021 en het Parkenplan. We richten ons hierbij op ecologische en recreatieve verbindingen, waar dieren veilig kunnen migreren. Dit ecologisch netwerk wordt vastgesteld als essentieel onderdeel om de natuur te beschermen en moet een beschermde status krijgen tegen bouwontwikkelingen. Het netwerk overlapt met de groenstructuur in het toekomstige Groenbeleidsplan, waarin ook ambities voor de bescherming van groengebieden bij ruimtelijke ontwikkelingen worden beschreven.

 

  • ▪︎

    Door het creëren van meer biodiversiteit door afgestemd beheer en inrichting.

Door het ecologisch netwerk vast te stellen, kunnen we aaneengesloten bermen en groenzones eenvoudiger beheren en inrichten. Dit bevordert de migratiemogelijkheden en het leefgebied van dieren. Onderzoek naar de toename of afname van biodiversiteit wordt gedaan door te kijken naar planten en wilde bijen, als indicatie voor onze kwaliteit van de ecologische zones.

 

  • ▪︎

    Door het vergroten van draagvlak bij inwoners, bedrijven en ontwikkelende partijen.

Door het vaststellen van het ecologisch netwerk worden duidelijke keuzes gemaakt over het doel en de functie van het groen. Dit zorgt voor eenduidigheid in het herkennen van ecologische zones en het cultuurlijk groen (het groen dat er aangeharkt uitziet met veelal uitheemse beplanting). Het ecologisch netwerk wordt daarmee zichtbaar. Hoewel het vastgestelde netwerk eenduidig is over de manier om biodiversiteit te versterken, zal niet iedereen het eens zijn met de ‘natuurlijkere’ uitstraling. Het is daarom belangrijk om te laten zien waarom, waar en hoe er ecologische keuzes worden gemaakt, maar vooral ook wat deze keuzes ons opleveren. We gaan dit beleid toetsen en de resultaten publiceren. Dit houdt in dat we periodiek onderzoek doen naar de planten, wilde bijen, beschermde diersoorten en de trends die daarbij worden gevonden. Daarnaast willen we inwoners, bedrijven en ontwikkelende partijen motiveren om bij te dragen aan het vergroenen van onze leefomgeving. Dit doen we onder andere via gemeentelijke regelingen zoals gratis geveltuinen, het Soortenmanagementplan en een subsidie voor groene daken. Voor een nadere specificatie van de meerwaarde van groen, zie bijlage Waar draagt groen aan bij?

 

1.4 Leeswijzer

Deze nota biedt een overzicht van de ecologische ontwikkelingen en maatregelen. In hoofdstuk 2 behandelen we de ecologische ontwikkelingen in onze gemeente en de wetgeving die betrekking heeft op de natuur en ecologie. Hoofdstuk 3 gaat in op het belang van een ecologisch netwerk, de verspreiding van verschillende soortgroepen en manieren om dit netwerk te optimaliseren. In hoofdstuk 4 wordt de relatie tussen biodiversiteit en ecologie behandeld, evenals de mogelijkheden om de biodiversiteit te vergroten. Hoofdstuk 5 beschrijft hoe we inwoners, bedrijven en organisaties willen betrekken bij het ecologischer inrichten van hun omgeving. Hoofdstuk 6 biedt een overzicht van de te nemen maatregelen en het beschikbare budget. Hoofdstuk 7 bevat de bijlagen.

 

2. Ecologische ontwikkelingen in gemeente Purmerend

2.1 Inleiding

Purmerend groeit en verandert, waarbij het aandeel en type groen in onze gemeente eveneens verandert. De groenblauwe structuren zoals water, oevers en bermen in de stad veranderen mee. Deze structuren zijn van groot belang voor planten en dieren, omdat ze soms essentieel zijn voor het vinden van voortplantingsplekken, voedsel of de verspreiding van de soort. De inrichting en het beheer van deze verbindingszones en groengebieden bepalen in belangrijke mate welke plant- en diersoorten in onze gemeente voorkomen. Sommige van deze groenblauwe structuren, die belangrijk zijn voor plant- en diersoorten, zijn nog niet vastgesteld als belangrijke onderdelen van het ecologisch netwerk en hebben ook geen bescherming bij ruimtelijke ontwikkelingen. Hierdoor kunnen plant- en diersoorten hun essentiële leefgebied en migratieroutes verliezen, waardoor de soorten en populaties afnemen. Ook is het beheer van deze verbindingszones op lang niet alle locaties aangepast aan het versterken van de ecologie.

 

2.2 Ecologische ontwikkelingen

2.2.1 Ecologische netwerk tot op heden

Sinds de jaren ’80 nemen we maatregelen om het ecologisch netwerk te versterken (zie bijlage: Ecologische historie van Purmerend). Het Oeverplan uit 2008 is daar het grootste voorbeeld van. We streven naar verdere verbetering van het ecologisch netwerk in zowel het stedelijk gebied van Purmerend als het landelijke gebied van de Beemster.

2.2.2 Groenbeheer

Naast het ecologisch netwerk staat biodiversiteit al langer centraal. Veel dorpsranden en bredere groenzones aan de wijkenranden zijn beplant met bosplantsoen. Langs watergangen en wandelpaden groeien ruiger of kruidenrijk gras, dat gefaseerd 2 keer per jaar wordt gemaaid. In de wijken is het beheer meer gericht op het onderhoud van cultuurplantsoen, zoals gazons die 22 keer per jaar worden gemaaid. Dit cultuurplantsoen bestaat vaak uit lage groene bodembedekkers of kleurrijke beplanting, die regelmatig worden geschoffeld, gemaaid, gesnoeid en ingeboet1.

 

Het cirkeldiagram hieronder toont de verdeling van beplantingstypes in het voorjaar van 2023. Een groot deel van het groen is natuurlijk en ruig ingericht, met veel ruig gras, kruidenrijk gras en bosplantsoen. Het aandeel cultuurgroen is momenteel gelijk aan dat van natuurlijk groen.

 

Beplantingstypen in percentages

Figuur 1: Beplantingstypes en percentages van voorjaar 2023.

2.2.3 Onderzoek

We doen al jaren verplicht onderzoek naar biodiversiteit en beschermde soorten. Er is data beschikbaar van het Hoogheemraadschap Hollands Noorderkwartier (HHNK) over waterkwaliteit, met gegevens over vissen, insecten, planten en fytoplankton. Daarnaast laten we zelf onderzoeken uitvoeren. Kennisinstituut EIS doet sinds 2014 regelmatig onderzoek naar wilde bijen en zweefvliegen in Purmerend. Ook wordt er driejaarlijks een jaar lang gemeentebreed onderzoek gedaan naar beschermde soorten. In 2014, 2017 en 2020/2021 en 2024 is uitgebreid onderzoek gedaan naar beschermde soorten. Daarbij zijn broedvogels (zoals roofvogels, uilen, gierzwaluwen en huismussen), muizen (noordse woelmuis en waterspitsmuis), marterachtigen, amfibieën (rugstreeppad), vleermuizen en planten in kaart gebracht.

Gebouwbewonende soorten, zoals gierzwaluwen, huismussen, spreeuwen en vleermuizen worden eens per 5 jaar onderzocht volgens het Soortenmanagementplan (SMP). Niet-gebouwbewonende soorten, zoals marters, muizen en planten worden elke 3 jaar onderzocht. De resultaten van deze onderzoeken zijn beschikbaar in de flora- en fauna check, (https://florafaunacheck.nl).

 

2.3 Wet- en regelgeving

2.3.1 Wet natuurbescherming

Werken in de openbare ruimte valt onder strikte wet- en regelgeving. Voor de natuur in Nederland was de Wet Natuurbescherming de belangrijkste. Deze is sinds 1 januari 2024 opgenomen in de Omgevingswet. De wet beschermt de Nederlandse natuur en haar soorten.

In onze gemeente leven meerdere beschermde soorten. Bij werkzaamheden in de buitenruimte moet hiermee rekening worden gehouden. De wet verplicht vooraf onderzoek naar flora en fauna in het plangebied. De resultaten hiervan publiceren we in de flora- en faunacheck.

Als beschermde soorten worden waargenomen, zijn maatregelen nodig om de beschermde flora en fauna te ontzien en de populaties in stand te houden.

Daarnaast geldt altijd een zorgplicht. Dit betekent dat bij werkzaamheden voor elke levend wezen zorg moet worden gedragen.

2.3.2 Flora- en faunacheck

FloraFaunaCheck.nl is een platform met alle waarnemingen van beschermde soorten in de gemeente. De gegevens zijn verzameld tijdens gemeentebrede onderzoeken, die elke 3 en 5 jaar plaatsvinden. Het platform bestaat uit een kaart die leefgebieden en foerageergebieden (voedselgebieden) markeert. Ook vastgestelde verblijfplaatsen staan hierop, zoals gierzwaluwnesten of bepaalde soorten vleermuizen die in bebouwing verblijven (zie figuur 2).

Bij beheer of ruimtelijke ontwikkeling is deze informatie van groot belang. Dankzij de flora- en faunacheck is voor elk project geen langdurig vooronderzoek naar beschermde diersoorten nodig. Verblijfplekken en foerageerlocaties zijn namelijk al in kaart gebracht. Hierdoor kunnen we gerichter maatregelen nemen voor soorten om natuurinclusief te bouwen.

 

Figuur 2: Ingevoerde waarnemingen van vleermuizen, per woning in de Gors.

2.3.3 Soortenmanagementplan

Voor een goede afstemming tussen ontwikkelingen en het beschermen van gebouwbewonende dieren is het Soortenmanagementplan (SMP) gemaakt. Wij zijn samen met gemeente Heemskerk de eerste gemeente in Noord-Holland met een SMP. Dit SMP is een generieke ontheffing bij sloop-, bouw- en renovatieprojecten voor een aantal beschermde soorten die in gebouwen verblijven. Hiermee kunnen bepaalde projecten sneller starten en zijn benodigde maatregelen direct duidelijk voor inwoners, ontwikkelaars en projectleiders. Inwoners hoeven geen eigen onderzoek te doen naar beschermde soorten en geen ontheffing meer aan te vragen voor werkzaamheden aan flora en fauna, wanneer zij gebruik maken van deze ontheffing. Ze kunnen zich binnenkort hiervoor aanmelden op de gemeentesite

De maatregelen in het SMP zorgen ook voor een betere bescherming van soorten op populatieniveau in plaats van projectniveau. Voor het behoud van dit SMP is vijfjaarlijks onderzoek in de hele gemeente noodzakelijk. Dit onderzoek vindt plaats in 2025.

2.3.4 Gedragscode beheer

Het behoud van biodiversiteit heeft een sterke relatie met het beheer, waarbij kennis van planten en diersoorten essentieel is. Beheerders en uitvoerende partijen moeten deze kennis hebben voordat zij aan de slag kunnen. In onze gemeente moeten aannemers en onze eigen dienst werken volgens de gedragscode Stadswerk, die verplicht is opgenomen in de bestekken.

 

Stadswerk publiceert al meer dan 10 jaar gedragscodes die gebruikt worden door gemeenten en samenwerkende organisaties. Deze gedragscode zorgt ervoor dat we bij werkzaamheden geen beschermde soorten of functies verstoren. Het geeft richtlijnen voor bijvoorbeeld maai- of snoeiwerkzaamheden in de buurt van vogelnesten of reptielen/amfibieën. Per februari 2024 is de nieuwe ‘Gedragscode soortbescherming gemeenten’ goedgekeurd door Rijksdienst Voor Ondernemend Nederland (RVO) en ondertekend door de minister voor Natuur en Stikstof.

 

Afbeelding: Waterhoen met pas uitgekomen pullen.

3. Vaststellen, verbeteren en uitbreiden ecologisch netwerk

3.1 Inleiding

Voor het bereiken van een robuuste ecologie in onze gemeente is het vaststellen en verbeteren van het ecologisch netwerk van belang. Door dit netwerk optimaal in te richten, met ruimte voor planten en dieren om te foerageren, rusten, voort te planten en te migreren, creëren we een ideale leefomgeving voor mens, plant en dier.

 

Er is een verschil tussen de omgeving van de Beemster en de rest van Purmerend. De Beemster bestaat uit bebouwing in een groen gebied, terwijl de rest van Purmerend groen heeft in een bebouwd gebied. Deze verschillen beïnvloeden de soortensamenstelling, de opgave en de ecologische maatregelen die in het openbare gebied genomen moeten worden.

 

3.2 De stad als nieuwe biotoop

Hoe tegenstrijdig het ook lijkt, maakt de stad een steeds groter deel uit van het leefgebied van planten en dieren. Verschillende soorten passen zich aan de dynamiek van de stad aan. Zo is het aantal egels in de stad 9 maal hoger dan in het landelijk gebied.

De stad moet daarom worden gezien als een nieuw biotoop voor planten en dieren, waarin de mens een belangrijke rol speelt. Vanuit stadsecologisch perspectief is de stad een uniek ecosysteem, het leefgebied voor mens, plant en dier. Door de onderlinge relaties te versterken en een goede balans te vinden, vergroten we de leefbaarheid van onze stad en gemeente zoals beschreven in de Visie leefbare stad 2040. Het doel is een robuuste ecologie binnen onze gemeente, waarin soorten en populaties kunnen blijven bestaan en parken en woonwijken onderdeel zijn van één ecologisch netwerk. De meerwaarde hiervan is weergegeven in figuur 3 en nader toegelicht in de bijlage Waar draagt groen aan bij?

 

Singapore

Singapore is een miljoenenstad en tevens een van de groenste steden van de wereld. De stad is daarbij toonaangevend als het gaat om de mogelijkheden van stadsnatuur. In de vorige eeuw waren veel dieren uit de stad verdwenen, maar dankzij een rewilding-plan om stadsnatuur te verbinden aan bossen en water en door natuurinclusief te bouwen, zijn er sinds kort weer otters, papegaaien, neushoornvogels en zelfs tapirs te vinden in of aan de randen van de stad. Singapore is daarmee een voorbeeld van een betere leefbaarheid van een stad voor zowel mens als dier.

 

Figuur 3: Meerwaarde van een robuust ecologisch netwerk naast het behoud van flora & fauna populaties (bron: MOOI NL, 2024)

 

3.3 Het ecologisch netwerk van Purmerend

3.3.1 Inleiding

Het realiseren van een ecologisch netwerk is belangrijk. Provincies richten zich op de verbinding tussen Natura 2000-gebieden, die Europees beschermd zijn en speciale natuurwaarden hebben. Natuur die geïsoleerd is door wegen en bebouwing, is kwetsbaar voor veranderingen en beperkt de in- en uitstroom van soorten. Daarom worden er tussen de Natura 2000-gebieden, andere gebieden aangekocht en omgevormd om verschillende natuurgebieden te verbinden. Dit is het Natuurnetwerk Nederland (NNN), met vastgestelde verbindingszones. Waar de provincie zich richt op de Natura 2000-gebieden en NNN-gebieden, moet de gemeente zich richten op de kleinere natuurgebieden, de parken en de groene zones. Onze gemeente ligt tussen verschillende NNN-gebieden en kan een belangrijke rol spelen in het verbinden en versterken van de ecologie in de regio.

Het ecologisch netwerk in dit hoofdstuk sluit aan bij de groenstructuur uit het toekomstige Groenbeleidsplan. De verbindingszones moeten worden vastgesteld en beschermd tegen bouwontwikkelingen, met als doel het behoud en versterken van de ecologie. Deze zones bieden ruimte voor dieren om door onze gemeente te migreren en helpen populaties te beschermen. Bovendien vormen ze, samen met de groenstructuur, de groene identiteit van onze gemeente. Dit heeft ook meerwaarde voor de doelstellingen op het gebied van klimaatadaptatie en het Parkenplan. Zie daarvoor de Klimaatadaptatiestrategie gemeente Purmerend 2025-2030 en het Parkenplan Purmerend 2021-2040.

 

De laatste natuurontwikkeling in de gemeente bestond uit de vorming van de Natuurzone ter compensatie van de bouw van het bedrijventerrein Baanstee-Noord in 2013. In dit soort groenstructuren kan de flora en fauna zich vestigen en ontwikkelen. Uit onderzoek blijkt dat er in deze natuurzone inmiddels 43 soorten broedvogels zijn aangetroffen, 164 soorten planten, 15 soorten dagvlinders en 6 soorten zoogdieren, libellen en sprinkhanen. Daarnaast zijn er ook maar liefst 5 zeldzame planten en 2 zeldzame insecten waargenomen. Het is belangrijk dat we meer van dit soort groengebieden creëren in en om de gemeente om de biodiversiteit te versterken. Daarnaast moeten deze natuur- of groengebieden aansluiten op de groengebieden in onze en omliggende gemeenten om verspreiding van soorten mogelijk te maken.

3.3.2 Parken en groenstructuren verbinden

Grote groenstructuren, zoals groene verbindingen tussen stad en platteland bieden, als ze natuurlijk zijn ingericht, de beste mogelijkheden voor dieren om te verblijven. Grotere, gevarieerde groene gebieden bieden beschutting, voedsel en een plek voor voortplanting.

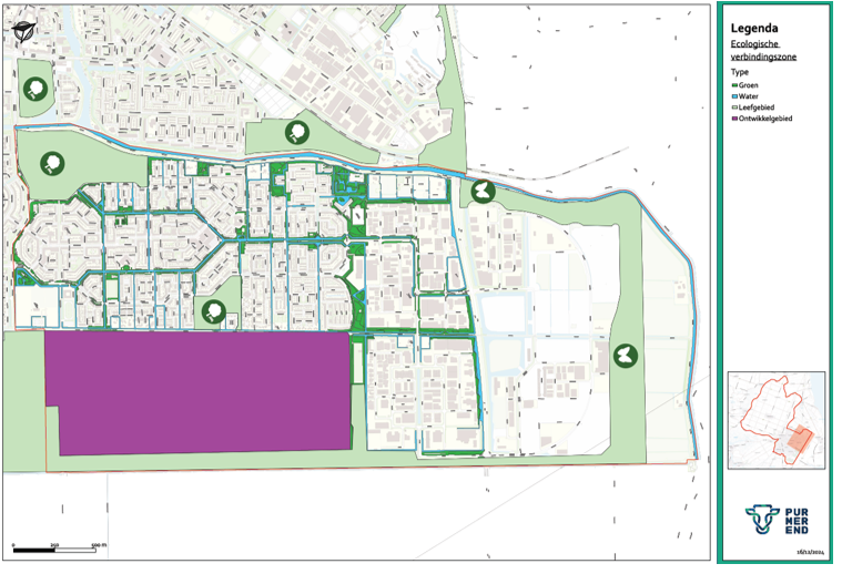
Zoals te zien is in figuur 4, wordt de gemeente omringd door grotere groengebieden, zoals

Natura 2000-gebieden, kleinere natuurgebieden zoals Weideveld en het Purmerbos, en onze eigen beheerde groengebieden zoals de Ecoband, de Natuurzone en het groengebied Purmerland. Deze belangrijke groengebieden moeten goed verbonden worden met de parken en groengebieden in de stad en dorpen om de migratie en uitwisseling van soorten mogelijk te maken. De verbindingen rondom de gemeente zijn al aanwezig, zoals figuur 4 laat zien, maar het doel is om deze te versterken en uit te breiden met de interne verbindingen naar onze parken. Dit laatste staat beschreven in het Parkenplan 2021-2040.

 

Figuur 4: Grotere groengebieden in en om de gemeente Purmerend

 

We hebben in 2005 al ervaring opgedaan met het verbinden van groengebieden. Toen is er, met behulp van Europese subsidie, een verbindingsroute gerealiseerd bij de vorming van de Ecoband. Hierbij werd het park De Noord met 2 grote vaarten en dijken met elkaar verbonden. Tijdens het laatste onderzoek naar beschermde soorten zijn hier egels, wezels en verschillende soorten vleermuizen en vogels waargenomen. Het behoud en uitbreiding van deze groengebieden en verbindingszones is essentieel om de biodiversiteit te behouden.

 

Figuur 5: Ontwerp van de Ecoband die de twee ringvaarten en dijken met elkaar moesten verbinden.

3.3.3 Gidssoorten

Het realiseren van natuurverbindingen is niet hetzelfde voor elke soort. Bepaalde soorten hebben een kale, zanderige ondergrond nodig, terwijl andere een rietmoeras verkiezen. Het is niet mogelijk om een verbinding te realiseren die voor alle soorten geschikt is. Daarom hebben we een aantal gidssoorten benoemd die symbool staan voor een aantal typische stadssoorten. Deze gidssoorten zijn:

  • ▪︎

    De kleinere zoogdieren (zoals de egel en noordse woelmuis)

  • ▪︎

    Amfibieën (zoals de kleine watersalamander, rugstreeppad en bruine kikker)

  • ▪︎

    Insecten (zoals wilde bijen en zweefvliegen)

  • ▪︎

    Vleermuizen (zoals gewone dwergvleermuis, meervleermuis).

De gidssoorten worden hieronder beschreven, evenals de manieren waarop we de verbindingszones kunnen inrichten om migratie te bevorderen.

 

  • 1.

    Kleine zoogdieren – Parken verbinden met groen en plaatselijk hogere vegetatie of liggend dood hout en takkenrillen voor beschutting, zodat zoogdieren zich kunnen verplaatsen.

  • 2.

    Amfibieën – Watergangen met natuurlijke oevers, een goede waterkwaliteit en zonder barrières vormt het beste leefgebied voor amfibieën (en vissen) om zich voort te planten, te rusten of zich te verspreiden. Hopen blad, schors, puin en dode bomen helpen amfibieën om de winter door te komen.

  • 3.

    Insecten – Bloemrijke vegetatie aanleggen naast fietspaden, voetpaden en waterstructuren. Op deze manier leggen we de basis voor biodiversiteit.

  • 4.

    Vleermuizen – Belangrijkste vliegroutes (watergangen, bomenrijen en hoge heesters) behouden en beperken van lichtvervuiling. De soorten hebben een sterke relatie met natuurinclusief bouwen.

 

Vleermuizen

In Purmerend komen maar liefst 8 soorten vleermuizen voor. Sommige foerageren in bossen, andere boven het water of juist in meer verstedelijkt gebied. De meest algemeen voorkomende vleermuis is de gewone dwergvleermuis welke vaak te zien is rondom huis en in de straat. Echter neemt deze soort de laatste jaren in Purmerend snel af.

Wist u dat dwergvleermuizen tot 1000 insecten per nacht kunnen vangen? Om deze reden zijn ze een belangrijke schakel in de voedselketen.

3.3.4 Niet als gidssoort opgenomen

Soorten zoals vissen en vogels zijn niet uitgebreid in deze nota opgenomen. Het verbeteren van waterkwaliteit en vismigratie is grotendeels in beheer van het waterschap. Toch houden we wel rekening met vissen. Natuurlijkere oevers zijn waardevol voor vissen, insecten en amfibieën, en ook wenselijk in onze gemeente. We zijn van plan om vissenbossen aan te leggen om de overleving en populatie van vissen te bevorderen. Vogels kunnen zich gemakkelijker door een stad bewegen, waardoor verbindingszones voor hen minder noodzakelijk zijn. We richten ons op het aanplanten van besrijke struiken in de verbindingszones of groengebieden om vogels op een natuurlijke manier van voedsel te voorzien. Daarnaast zorgen we ervoor dat heggen en struweel in het dagelijks groenbeheer gefaseerd gesnoeid worden, zodat het leefgebied voor huismussen en andere vogels behouden blijft.

3.3.5 Het ecologisch netwerk

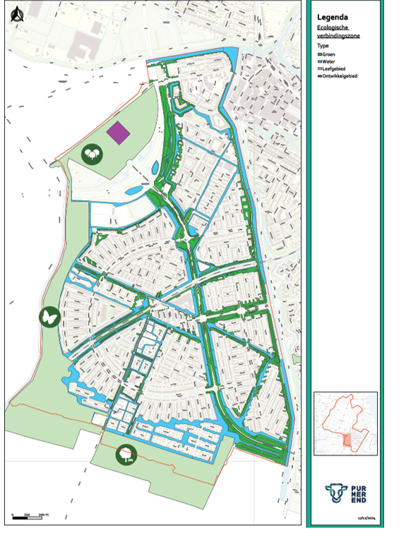
Het ecologisch netwerk bestaat uit verbindingszones. De onderstaande kaarten tonen de bestaande verbindingen in de gemeente. Een doorlopende lijn betekent dat deze verbindingszone al geschikt is, terwijl een onderbroken lijn betekent dat de verbinding nog niet optimaal is door knelpunten. We richten ons op het wegnemen van knelpunten en het voorkomen van nieuwe knelpunten rondom de verbindingszones. Verder is te zien dat niet iedere verbindingszone alle gidssoorten bevat. Dit komt doordat niet iedere verbinding geschikt is voor alle gidssoorten. Zo is het Noord-Hollands Kanaal een belangrijke route voor vleermuizen, maar ongeschikt voor landzoogdieren.

 

Figuur 6: Overzichtskaart verbindingszones gemeente Purmerend

 

Figuur 7: Ecologisch netwerkkaart van Purmerend. De verbindingszones zijn genummerd om knelpunten en kansen per zone beter weer te geven en toe te kunnen lichten.

 

Tabel 1: Beschrijving verbindingszones.

 

Verbindings-zone no.

Verbinding

1

Groenblauwe zones van Groengebied Purmerland langs Prauwoever en Riksjapad naar Weideveld

2

Groenblauwe zones van Weideveld langs A7 naar Beemsterringvaart

3

Groenblauwe zones van groengebied Purmerland langs Laan der Continenten naar Weideveld

4

Groenblauwe zones overgang landelijk gebied naar stedelijk gebied langs Beemsterringvaart

5

Groenblauwe zones van landelijk gebied naar stedelijk gebied langs Jaagweg

6

Groenblauwe zones van landelijk gebied langs Wheredijk naar Oude begraafplaats en Leeghwaterpark

7

Groenblauwe zones Aletta Jacobslaan

8

Groenblauwe zones langs Linnaeuslaan tot Gorsebos

9

Groenblauwe zones Gorsmeertjes tot Wheredijk

10

Groenblauwe zones langs Eendenlaantje en Reigerpark

11

Groenblauwe zones en bermen rondom Karekietpark

12

Eerste deel groenblauwe zone Purmerringvaart

13

Groenblauwe zones van Groeneweg

14

Oevers spoorweg

15

Groenblauwe zones langs Gorslaan, Churchillaan en Koogsingel naar Park De Noord

16

Groenblauwe zones van Park De Driegang naar Leeghwaterpark

17

Groene zones van Verzetslaan naar Purmerbos en Leeghwaterpark

18

Groenblauwe zones van Park De Driegang langs Purmerzuidlaantje naar Purmerbos

19

Groenblauwe zones van Leeghwaterpark via Van Garderenstraat, Zuivelstraat naar Oostflank

20

Tweede deel groenblauwe zone Purmerringvaart

21

Groenblauwe zones tussen Purmerbos noordelijk deel en zuidelijk deel

22

Groenblauwe singels door Purmer-Noord

23

Van Park De Uitvlugt naar Oostflank

24

Van Purmerringvaart langs Koebruggelaantje naar Purmerbos

25

Via Westerweg naar Baanstee Noord

26

Groenblauwe zones langs Incastraat richting Laan der Continenten

27

Groenblauwe zone langs Purmerland, Weidevenne

 

Op de netwerkkaart van Purmerend is te zien hoe de groengebieden buiten de stad zich verbinden met de parken. Ook blijkt dat bepaalde verbindingen lastig te realiseren of verbeteren zijn. Zo zal het Noord-Hollands Kanaal met de hoge beschoeiingen en de Purmerringvaart en Where een lastige oversteek blijven voor zoogdieren. Verder is te zien dat veel verbindingen nog niet optimaal zijn. Hiervoor is dus extra inspanning nodig om knelpunten weg te nemen en migratie mogelijk te maken, of juist het groenbeheer op de ecologie af te stemmen. Dit kan door bermen en oevers kruidenrijker te maken, struiken aan te brengen of een ondergrondse faunapassage te creëren. Deze aanpassingen kunnen kostbaar zijn, maar kunnen worden meegenomen bij herontwikkelingen en herinrichtingen om een leefbare stad voor mens en dier te creëren. De ecologisch netwerkkaart vormt dus een lange termijndoelstelling.

 

Niet alleen in de stad zijn er verbeterpunten voor verbindingszones, ook in het landelijke gebied zoals de Beemster. Waar Purmerend een bebouwd gebied is met groen is de Beemster juist een agrarisch gebied met bebouwing. De Beemster is via de Zuidoostbeemster tot aan de N244 verbonden met Purmerend. Drukke wegen, de ringvaart en de eentonigheid van de vegetatie vormen obstakels voor dieren. De gemeente is geen eigenaar van deze verbindingszones, maar dit heeft geen invloed op het gebruik ervan door wilde dieren. Er zijn in de Beemster verschillende organisaties die de ecologie willen versterken en verbindingszones willen realiseren. Zo maken agrarische bedrijven gebruik van agrarisch natuurbeheer, zoals akkerranden (Beemster in Bloei) en leggen ze extra planten, struiken, (fruit)bomen en nestkasten aan op de boerenerven (project Biodiversiteit op het boerenerf).

 

Figuur 8: Het ecologisch netwerk in de Beemster

3.3.6 Het ecologisch netwerk beschermen in een ontwikkelende gemeente

Voor de ecologie is een netwerk van verbindingszones essentieel om verspreiding van soorten en het versterken van populaties mogelijk te maken. Het behoud van deze zones is noodzakelijk en daarom moeten we deze in onze gemeente beschermen. In de bijlage van deze nota staan alle verbindingszones uitgewerkt met de bijbehorende groenvakken die door ons worden beheerd. Deze zones willen we vaststellen, een beschermde status geven en opnemen in het Omgevingsplan. Het bouwen of bestraten van deze verbindingszones is hierdoor grotendeels uitgesloten. Om deze reden zijn hoofdzakelijk grotere stukken aaneengesloten groen langs verbindingszones geselecteerd zonder kleinere middenbermen of kruispunten om aanpassingen aan verkeersituaties mogelijk te houden. Er moet gestreefd worden naar het versterken van de groene routes, zowel voor dieren als voor mensen, bijvoorbeeld als recreatieroute tussen parken. Ontwikkelingen kunnen kansen bieden voor het versterken van de verbindingszones en de ecologie. Zo moet er gekeken worden naar gecombineerde mogelijkheden, zoals het autoluwer maken van straten, eenrichtingsverkeer of het bevorderen van openbaar vervoer en fietsgebruik. De vrijgekomen ruimte biedt kansen om de gecombineerde doelen voor de natuur, recreatie en het klimaat te halen. Het ecologisch netwerk, met de verbindingsroutes uit figuur 6, 7 en 8 en de bijbehorende tabel 1, is in de bijlage gedetailleerd uitgewerkt. We willen dit opnemen in het Omgevingsplan als beschermde ecologische verbindingszone en vragen hiervoor goedkeuring aan de gemeenteraad.

 

In zowel de Zuidoostbeemster als de Middenbeemster worden veel woningen gebouwd. Hierdoor verdwijnen voormalige groenstructuren en neemt de verstening toe. Het is belangrijk om voor zowel de huidige als toekomstige bewoners, en voor planten en dieren, plekken te creëren waar zij kunnen rusten of recreëren. Deze groenstructuren moeten verbonden worden met andere groengebieden voor een sterker ecologisch netwerk.

4. Beschermen / vergroten biodiversiteit

4.1 Inleiding

Het ecologisch netwerk omvat een aantal hoofdroutes en groengebieden in de gemeente, maar dat is niet het enige leefgebied van planten en dieren. De natuur loopt door tot in de tuinen van inwoners. Om de biodiversiteit in onze gemeente te vergroten zijn daarom ook buiten het ecologisch netwerk inspanningen nodig.

 

4.2 Biodiversiteit gaat achteruit

4.2.1 Trend

De achteruitgang van biodiversiteit is een wereldwijd probleem en is zichtbaar in de afname van insecten, weidevogels en veel stadsvogels. Ook in onze gemeente ervaren we achteruitgang, ondanks inspanningen op het gebied van natuurinclusief bouwen, groenbeheer, dierenwelzijn en ecologie. Uit driejaarlijkse onderzoeken blijkt dat de aantallen vleermuizen, huismussen, spreeuwen en gierzwaluwen afnemen en lager liggen dan het landelijk gemiddelde. Terwijl sommige soorten juist landelijk toenemen (zoals vleermuizen) of stabiel blijven (zoals de huismus), vraagt de situatie in onze gemeente om extra inzet om het leefgebied van deze soorten te verbeteren.

 

Figuur 9: Populatietrend van de gemonitorde diersoorten in Purmerend.

 

4.3 Beheer- en ontwikkelingsmogelijkheden

Een hoge biodiversiteit zorgt voor een weerbaarder ecosysteem en een diverser voedselaanbod voor bestaande populaties, zoals gierzwaluwen en vleermuizen. De diversiteit aan planten en dieren wordt sterk bepaald door de milieus die we creëren. Meer variatie in deze milieus leidt tot een hogere biodiversiteit. Figuur 10 toont een ideaal beeld met gelaagdheid en variatie. Voor zo’n ideaalbeeld is veel groene ruimte nodig, die we in de stad vaak niet hebben. Daarom moeten we groengebieden met elkaar verbinden en door gericht beheer de variatie behouden. In dit onderdeel bespreken we de acties om dit te realiseren.

 

Figuur 10: biotopen in natuur en stad.

4.3.1 Meer en betere natuurvriendelijke oevers

In de gemeente zijn al een hoop onderwaterbakken of natuurvriendelijke oevers aangelegd. Door beperkt beheer ontstaat er soms een eentonige vegetatie met enkele dominante soorten. Om variatie in planten en habitat te behouden, is het belangrijk deze dominante soorten plaatselijk weg te halen. Vooral de overmatige groei van riet en zegge vraagt om afgestemd maaibeheer en waar nodig aanvullende ingrepen. Naast extra aandacht voor beheer is het belangrijk om verder te gaan met het natuurlijk inrichten van oevers om de biodiversiteit te versterken. Waar mogelijk wordt hoge beschoeiing al vervangen door natuurlijkere oevers. Door ruimtegebrek is dit niet overal haalbaar.

4.3.2 Kruidenrijke bermen

Een gevarieerd aanbod van planten is belangrijk voor veel insecten. Kruidenrijke vegetatie biedt voedsel-, rust-, voortplantings- en overwinteringsplaatsen voor insecten, die op hun beurt de voornaamste voedselbron zijn voor vogels, muizen en vleermuizen. Het creëren van kruidenrijke bermen is daarom belangrijk. Er is meer afgestemd maaiwerk nodig, met aandacht voor de juiste maaidatum en gefaseerd onderhoud (70-80% maaien en 20-30% laten staan) om zaadzetting van planten te bevorderen en voedsel- en waardplanten, evenals overwinteringsplaatsen voor insecten, te behouden. Problemen met vergrassing kunnen worden tegengegaan door aangepast beheer. Om de bermen van de verbindingszones kruidenrijker te maken, wordt gebruik gemaakt van het boek ‘Ontwikkelen van kruidenrijk grasland’ (Schippers et al, 2023) en wordt er soms ratelaar ingezaaid. Ratelaar is een geelbloemige plant die de groei van grassen remt (parasitisme), waardoor kruiden meer ruimte krijgen om te groeien. Het is goed om te weten dat een kruidenrijke berm belangrijk is voor de ecologie, maar niet altijd een zeer bloemrijke uitstraling heeft. Kleurrijke bloemen zoals klaprozen, gele ganzenbloemen en zonnebloemen zijn mooi, maar passen niet bij onze klei- en veenbodem. Het instandhouden hiervan is zeer intensief, duur en ecologisch minder waardevol.

 

In 2025-2026 willen we met het groenbeheer een afgestemd plan maken om het groenbeheer beter af te stemmen op het ecologisch netwerk. Het doel is om het leefgebied van planten en dieren te versterken en migratie te bevorderen. Momenteel vinden er inventarisaties plaats om iedere verbindingsroute te beoordelen op kwaliteiten en dit te monitoren.

4.3.3 Bosplantsoen

Bosplantsoen bestaat uit grotere struiken zoals hazelaar, vlier en meidoorn. Het is voor de biodiversiteit een belangrijke factor voor voedsel (bloemen en vruchten), nestgelegenheid en geleiding voor vleermuizen. Binnen het ecologisch netwerk bestaat bos- en haagplantsoen voornamelijk uit inheemse plantensoorten. Het doel is om waar mogelijk meer bosplantsoen aan te planten volgens de specifieke richtlijnen en ontwerpeisen uit het Handboek Inrichting Openbare Ruimte (HIOR).

Afbeelding: kruidenrijk groen

 

Insecten

Insecten vormen de grootste soortgroep op onze planeet met tal van verschijningsvormen en leefwijzen. Sommige voeden zich van planten, maar ook met andere insecten (rovers). In de landbouw worden bloemrijke akkerranden ingezaaid die de populatie van deze rovers versterken. Hierbij wordt er geprobeerd om soorten als lieveheersbeestjes, sluipwespen en roofwantsen zo talrijk mogelijk te maken om plagen als springstaartjes en luizen te onderdrukken.

 

Zo zijn er in 2023 zo’n 250 inheemse struiken gepland ten zuiden van de Laan der Continenten. In de toekomst kunnen vogels hier broeden en egels hun leefgebied vinden, vrij van mensen en huisdieren. Daarnaast bevordert het laten liggen van bladhopen en dode takken de aanwezigheid van schuil- en voedselplekken. Dit wordt ook in stedelijk gebied toegepast.

Omdat bosplantsoen soms een verwilderde uitstraling heeft en daardoor minder gewaardeerd wordt, willen we proberen plaatselijk de kale ondergroei van bosplantsoen meer kleur te geven door inheemse boszoomplanten te zaaien, zoals look-zonder-look, geel nagelkruid en vingerhoedskruid.

4.3.4 Dood hout

Dode bomen vormen een belangrijk onderdeel binnen de ecologie. Op verschillende locaties in de gemeente staan zogenoemde spechtenstammen: boomstammen die bewust zijn blijven staan voor de verrijking van de biodiversiteit. In het dode hout leven schimmels en ontstaan holtes die dankbaar worden gebruikt door insecten en vogels. Afgevallen boomschors of dode takken verrijken de bodem met voedingsstoffen en dienen als overwinterplek voor amfibieën, zoals de kleine watersalamander. Een bijkomend voordeel is dat dood hout werkt als een spons dat overtollig water opneemt. Daarom stimuleren we het gebruik van natuurlijk restmateriaal, zoals takkenrillen en bladeren, waar egels dankbaar gebruik van maken.

 

Afbeelding: biotopen in natuur en stad.

4.3.5 Meer rustgebieden

Rustgebieden bieden dieren een veilige plek om zich te verschuilen, zich te voeden, te broeden en te overwinteren, zonder dreiging van mensen, honden of katten. We creëren rustgebieden door het plaatsen van takkenrillen, stekelige vegetatie of door water door ontoegankelijke ‘natuureilanden’ te realiseren. In het stedelijk gebied zijn er het afgelopen jaar 3 van dit soort eilandjes gerealiseerd en het doel is om dit waar mogelijk verder uit te breiden. Dit krijgt bijvoorbeeld ook vorm bij het Leeghwaterpark.

4.3.6 Obstakels verwijderen

Obstakels zijn barrières voor planten of dieren waardoor zij zich niet optimaal kunnen verspreiden. Het zijn vaak fysieke obstakels zoals beschoeiingen, waterkolken, wegen, hitte-eilanden, monoculturen, lichtbronnen of de constante aanwezigheid van mensen. Het is belangrijk dat bij nieuwe ontwikkelingen deze obstakels zoveel mogelijk worden beperkt, wat ook bijdraagt aan natuurinclusief bouwen. Door per verbindingszones te beoordelen of obstakels kunnen worden verwijderd of voorkomen, maken we het ecologisch netwerk robuuster. Voorbeelden hiervan zijn het omvormen van beschoeiingen tot onderwaterbeschoeiingen of natuurvriendelijke oevers, of het aanpassen van lantaarnpalen op cruciale vleermuisroutes door de lichtintensiteit, -kleur of het armatuur te wijzigen.

4.3.7 Natuurinclusief bouwen

Natuurinclusief bouwen biedt mogelijkheden om beschermde soorten te behouden en de biodiversiteit en populaties te versterken in een stedelijke omgeving. Veel nieuwe gebouwen bieden onvoldoende leefbare plekken voor vleermuizen of mussen door het ontbreken van spouwmuren of ongeïsoleerde daken met scheve dakpannen. Het aanbrengen van nestkasten of ruimtes voor kraam- en broedplaatsen en het groen aankleden van daken en gevels biedt voedsel en veiligheid voor diverse soorten. In onze gemeente is natuurinclusief bouwen verplicht volgens ons beleid. Voor de gemeentelijke kavels geldt het vernieuwde en vereenvoudigde puntensysteem Natuurinclusief bouwen Purmerend. Dit systeem maakt onderscheid tussen de omvang van een project en het aantal verplicht te behalen punten. Kleinere bouwprojecten hoeven minder punten te behalen dan grotere. De nieuwe versie van het puntensysteem is opgenomen in bijlage ‘Puntensysteem natuurinclusief bouwen Purmerend 2.0’.

 

Voor particuliere kavels is natuurinclusiviteit en biodiversiteit onderdeel van het 5e basisveiligheidsniveau uit het ‘Basisveiligheidsniveau klimaatbestendige nieuwbouw’. Dit geldt voor (buitenplanse) omgevingsplanactiviteiten bij de bouw van een nieuw hoofdgebouw of bijgebouw van 100 m² of meer. De ontwikkelaar is vrij om maatregelen te kiezen om bepaalde eisen en richtlijnen te behalen, waarbij de gemeente bij de Omgevingsvergunning toetst of deze maatregelen voldoen aan de basisveiligheidsnormen. Met de toepassing van het Basisveiligheidsniveau geeft gemeente Purmerend invulling aan de landelijke ‘Maatlat groene klimaatadaptieve gebouwde omgeving’ en de aanpassing van de Omgevingsverordening van de Provincie Noord-Holland per 1 januari 2025. Er is momenteel nog geen afwegingskader om natuurinclusieve maatregelen te toetsen ten opzichte van klimaatadaptieve, duurzame of energiezuinige maatregelen. Het ontwikkelen van een integraal toetsingssysteem voor natuurinclusief bouwen, klimaatadaptatie en duurzaamheid maakt deel uit van de uitvoeringsagenda van deze Nota Ecologie.

 

Er spelen verschillende ontwikkelingen waarbij natuurinclusiviteit van gebouwen wordt besproken. Onlangs is de verplichting voor het inbouwen van nestkasten en vleermuiskasten in het ‘Besluit bouwwerken leefomgeving’ (Bbl) geschrapt door de minister van Volkshuisvesting en Ruimtelijke Ordening. Toch wordt het inbouwen van nestkasten en het natuurinclusief bouwen steeds vaker toegepast door verplichte mitigatie-opgaven of vanwege de ambities van woningbouwcorporaties en gemeenten. Daarnaast passen we het Basisveiligheidsniveau klimaatbestendige nieuwbouw toe, waarin natuurinclusiviteit en biodiversiteit verplicht zijn voor alle nieuwbouwprojecten. Door het ontbreken van concrete maatregelen en verplichtingen op dit gebied, liggen de eisen lager dan het gemeentelijke puntensysteem. Momenteel worden er inventarisaties uitgevoerd om natuurinclusieve maatregelen en eisen vast te stellen in een universeel afwegingskader voor nieuwbouw. Dit kader zal rekening houden met verplichtingen en ambities op het gebied van natuur, klimaat, energie en duurzaamheid (bouwmateriaal) en is onderdeel van de uitvoeringsagenda.

 

Bij ontwikkelingen met natuurinclusief bouwen begint de inventarisatie van mogelijkheden vroeg in het proces, samen met klimaatadaptatie. In de verkennende fase verbindt de projectleider de ecologen met de architecten en projectontwikkelaars. Hierbij worden beschermde soorten en knelpunten voor de natuur in kaart gebracht en verplichtingen en ambities toegelicht. Er wordt gekeken naar de locatie, de samenhang met het ecologisch netwerk en de soorten die hiervan gebruik maken. De architect onderzoekt het terrein en de omgeving en maakt een ontwerp met aandacht voor ecologie. Door regelmatig overleg kan de ecoloog het ontwerp toetsen aan het puntensysteem, het Basisveiligheidsniveau en het SMP, en beoordelen of voldoende natuurinclusieve maatregelen zijn opgenomen.

Naast verblijven in gebouwen zijn er ook losstaande verblijven, zoals kerkuilenstolpen, vleermuispalen en oeverzwaluwwanden. Wij beheren verschillende van deze verblijven voor vogels en vleermuizen. Onderhoud, inspectie en eventuele vervanging zijn noodzakelijk. In de aankomende jaren wordt de effectiviteit en staat van deze verblijven gecontroleerd, waarna wordt bepaald of maatregelen nodig zijn.

 

Afbeelding: Een gebouw met gevelgroen en geveltuinen dat bijdraagt aan de ecologie, de uitstraling en de gezondheid van de leefomgeving.

4.3.8 Werelderfgoed en biodiversiteit

Ruimtelijke ingrepen in het landelijk gebied, zoals de Beemster, zijn complex door de historie en de beschermde status als Werelderfgoed. Voor dit unieke landschap gelden strenge inrichtingsregels volgens het Managementplan 2022 -2027 Unesco Wereld Erfgoed Droogmakerij de Beemster.

De Beemster is een productiepolder voor de landbouw, waarbij de sloten recht en veelal onbegroeid zijn en de openheid van het landschap behouden moet blijven. Ongewenste kruiden zoals distels en brandnetels worden in de hele gemeente gemaaid.

 

Ondanks deze beperkingen zijn er in de Beemster nog mogelijkheden voor de ecologie en het versterken van het ecologisch netwerk. Het Bomenplan 2020-2040 beschrijft de inrichting en het beheer van de lanen, met aandacht voor meer diversiteit. Hierdoor krijgen bomen betere groeiplaatsen, kunnen ze groter en ouder worden en dragen ze bij aan de biodiversiteit. Sinds 2023 werken we samen met de agrarische natuurvereniging aan een project om de biodiversiteit op de boerenerven in de Beemster te vergroten.

5. Draagvlak vergroten

5.1 Communicatie

5.1.1 Communicatiedoelen

Het creëren en behouden van een gezonde leefomgeving is niet alleen een verantwoordelijkheid van de gemeente of andere (overheids)instanties. Een groot deel van de ruimte in de gemeente is in bezit van particulieren, bedrijven en woningcorporaties. Om de natuur tot in de tuinen door te laten lopen, moeten alle betrokkenen bijdragen. Purmerend staat momenteel bekend als een van de meest versteende gemeenten, met 66% versteende tuinen (bron: NH-nieuws). Bewustwording, communicatie en educatie zijn nodig om inwoners, ondernemers en andere partijen te overtuigen van de noodzaak en mogelijkheden voor het behouden en versterken van een gezonde leefomgeving.

5.1.2 Bewustzijn creëren

Door het gemeenschappelijk belang duidelijk en vaak te communiceren, willen we bewustwording creëren en initiatief stimuleren. Dit doen we niet alleen door te informeren, maar vooral door te enthousiasmeren. Via gemeentelijke communicatiekanalen laten we met video’s zien waar ecologische maatregelen worden genomen, zoals bij natuurinclusief bouwen, of waar bijzondere soorten voorkomen. De jaarlijkse aandacht in de krant voor het ooievaarsnest bij het ziekenhuis toont dat mensen natuur vaak interessant of bijzonder vinden. Deze interesse willen we verder aanwakkeren en mensen motiveren om zelf bij te dragen aan het omvormen van grijze naar groene tuinen. Een goed voorbeeld die we in 2025 willen uitvoeren is bijvoorbeeld meedoen met het NK Tegelwippen. Alles in het kader van ‘goed voorbeeld doet goed volgen’.

5.1.3 Publiceren voordelen voor inwoners, aannemers en ontwikkelaars

Informatie over de flora- en faunacheck is algemeen toegankelijk, iedereen kan daar gebruik van maken. Zo kan bij (na)isolatie en renovatie van woningen worden nagegaan of er beschermde soorten voorkomen. Deze informatie scheelt inwoners, aannemers en ontwikkelaars veel geld en tijd voor individueel onderzoek. Daarnaast kunnen zij mogelijk gebruik maken van ons SMP. Door actief te communiceren maken we de gratis flora- en faunacheck bekender en stimuleren we het gebruik ervan. Dit heeft voordelen voor zowel beschermde diersoorten als belanghebbenden.

 

5.2 Inwoners, scholen en bedrijven betrekken

5.2.1 Scholen

Via basisscholen betrekken we jonge inwoners bij de ontwikkeling van natuur in de stad. Kinderen zijn de groene ambassadeurs van morgen. Natuur- en milieueducatie (NME), onderdeel van de gemeente, verzorgt lessen over het belang van natuur en ecosysteemdiensten. Ook zijn er projecten om schoolpleinen te vergroenen; de afgelopen 2 jaar zijn er al veel schoolpleinen vergroend. Daarnaast willen we de gebouwen meer bij het groen betrekken. Waar in de stad en dorpen elke vierkante meter moet worden benut voor parkeren, woningbouw, recreatie of verkeer, zijn er nog veel kansen voor ecologie op blinde gevels. Dit jaar starten we een pilot bij schoolgebouw ‘De Kraal’ in Weidevenne om hier gevelgroen grootschalig aan te planten en te onderhouden.

5.2.2 Inwoners

Het vergroenen van tuinen en de aanleg van geveltuinen helpt de natuur en het stedelijk klimaat. Via de gemeentelijke kanalen, zoals de website, willen we inwoners motiveren om op eigen grond natuurinclusieve maatregelen te nemen. Zo kunnen particulieren gratis geveltuinen aanvragen en is er een subsidie beschikbaar voor het aanleggen van groene daken. Deze mogelijkheden brengen we actief onder de aandacht. Naast het motiveren van inwoners om zelf te vergroenen, is het ook belangrijk om hen te informeren over gemeentelijke keuzes bij ecologische inrichting van buitenruimtes. Dit betekent namelijk vaak een verruigd en meer informeel beeld in plaats van een strak geschoffeld plantvak. Niet iedereen heeft hier begrip voor. Door inwoners beter te informeren en te betrekken bij onze doelen om biodiversiteit en het ecologisch netwerk te versterken, vergroten we het draagvlak. Daarnaast zijn ecologische doelen te combineren met andere functies. Een gazon met speelse vormen met bloemrijk gras kan voor meer uitstraling en acceptatie zorgen dan een kort gemaaid gazon.

5.2.3 Bedrijven

Bedrijven hebben ook een belangrijke rol in de ecologie. Een bedrijfspand neemt een flink oppervlak in beslag, is vaak hoog en wordt soms aangelicht. Dit vormt belemmeringen voor de natuur. Daarnaast worden natuurinclusieve maatregelen niet geprioriteerd, omdat er geen direct verdienmodel aan vastzit. Toch heeft groen voordelen, zoals verkoeling op bedrijventerreinen, een betere uitstraling en de mentale gezondheid van werknemers. Door daken zwaarder te construeren, ontstaan er kansen voor dubbelgebruik. Een groen dak met een dikke leeflaag is niet alleen goed voor de ecologie en vertraagde waterafvoer, maar zorgt ook voor een prettiger binnenklimaat doordat het pand minder heet wordt op zomerse dagen. Gezamenlijk staan we voor grote opgaven: klimaatadaptatie, energietransitie, mobiliteit, werkgelegenheid, veiligheid, stikstof, milieuregels en ecologie. Bedrijven nemen veel van deze onderwerpen al mee in hun bedrijfsplan. We onderzoeken of de ecologie bij bedrijven meer gestimuleerd kan worden, bijvoorbeeld door de subsidieregeling voor het vergroenen van daken bij particulieren (€20,- per vierkante meter) uit te breiden naar bedrijfspanden waar grotere voordelen te behalen zijn.

5.2.4 Organisaties

Er zijn diverse organisaties die zich met natuur bezighouden. In onze gemeente zijn dat onder andere kleinere organisaties zoals Instituut voor Natuureducatie en Duurzaamheid (IVN) Waterland, Natuur- en milieueducatie (NME) en de Sportvisserij, maar ook grotere partijen zoals het Hoogheemraadschap Hollands-Noorderkwartier, Staatsbosbeheer en Water, Land & Dijken. Woningbouworganisaties zoals BPD spelen ook een rol, door bij nieuwbouw te investeren in duurzame, klimaatadaptieve en natuurinclusieve woningen. Daarnaast werken we samen met woningbouwcorporatie Intermaris aan een Greenlabel A voor duurzaamheid in Wheermolen-Oost, met maatregelen zoals groene daken en gevels, ingebouwde nestkasten, houtbouw en waterberging. Het is belangrijk dat we als gemeente blijven samenwerken om ons gezamenlijk doel te bereiken: een ecologisch optimale en leefbare gemeente voor mens, plant en dier.

 

5.3 Activiteiten in het groen

De gemeente beheert een groot areaal groen, maar dit doen we niet alleen. Sommige stukken groen zijn geadopteerd door inwoners. In de Westerdraai, de Goede Meent en in de Heemtuin zijn bewoners actief bezig met (natuur)beheer. Ook zijn er diverse activiteiten waar inwoners meehelpen om de gemeente groener te maken. Denk hierbij aan de (tulpen)bollen plantdag, de oogstdag van Meer Bomen Nu en de Landelijke natuurwerkdag. Tijdens deze dagen informeren we inwoners over de ecologie in onze gemeente en dragen we gezamenlijk bij aan de verbetering ervan door planten te oogsten en te planten. Verder doen we ook mee aan bijeenkomsten en informatiemarkten om te informeren over geveltuintjes en het beheer en belang van groen in de stad. We willen ons blijven inzetten voor activiteiten met organisaties en onze inwoners.

 

6. Wat moet er nog gebeuren

6.1 Te nemen maatregelen

Er zijn maatregelen nodig om het ecologisch netwerk te verbeteren, de biodiversiteit en bestaande populaties te versterken en het draagvlak te vergroten. Deze maatregelen variëren in schaal, grootte en kosten, maar zijn allemaal belangrijk om onze doelen en ambitie te bereiken. Hieronder staan de maatregelen genoemd:

  • 1.

    Optimaliseren verbindingsroutes voor soorten. Dit houdt in:

    • 1a.

      Het gestructureerd beoordelen en monitoren van de verbindingsroutes.

    • 1b.

      Het vergroten of samenvoegen van de verbindingsroutes (aaneengesloten groenstructuren realiseren).

    • 1c.

      Het vergroten van het areaal kruidenrijk grasland.

    • 1d.

      Het vergroten van het areaal natuurvriendelijke oevers.

    • 1e.

      Onnodige verharding omvormen naar groen.

    • 1f.

      Bevorderen gevelgroen.

    • 1g.

      Het wegnemen van knelpunten (logboek).

    • 1h.

      Faciliteiten aanleggen in verbindingszones (broeihopen, vleermuispalen, amfibievriendelijke waterkolken).

    • 1i.

      Het areaal rustgebieden (ontoegankelijke gebieden voor honden, katten en mensen) vergroten.

    • 1j.

      Invasieve exoten (planten en Aziatische hoornaar) beheren.

    • 1k.

      De natuurwaarden in het landelijk gebied versterken.

  • 2.

    Natuurinclusieve gebouwen in de hele gemeente vormgeven en toepassen.

  • 3.

    Communicatie, begrip en kennis over de ecologie in Purmerend richting inwoners en bedrijven vergroten.

  • 4.

    Onderzoek naar de aanwezigheid van planten en dieren binnen onze gemeente.

  • 5.

    Uitvoeren van werkprotocol van het SMP (start oktober 2024)

Om deze maatregelen uit te voeren is budget voor ecologie nodig. Dit budget is in het voorjaar van 2024 structureel toegekend.

 

Tabel 2: Uitvoeringsagenda Nota ecologie

 

No.

Hoort bij maatregel

Maatregelen

Uitwerking

1

1b, 4

Monitoren areaal groen in gemeente Purmerend

In kaart brengen van het groenareaal in Purmerend en inventariseren hoeveel groen er verloren gaat of bijkomt.

2

1a

Monitoren van het ecologisch groenbeheer

In kaart brengen van het areaal ecologisch groenbeheer en de uitwerkingen daarvan door de Nectarindex en aanvullend onderzoek naar bestuivers (bijen, hommels en zweefvliegen). Het areaal natuurvriendelijke oevers en kruidenrijke bermen worden gekwantificeerd.

3

2 & 5

Monitoren van natuurinclusief bouwen

In kaart brengen van het aantal vierkante meter groene daken, groene gevels en het aantal ingebouwde nestkasten of verblijfsplaatsen.

4

1f, 2 & 5

Natuurinclusief bouwen bevorderen

Gemeentelijk vastgoed en bedrijventerreinen vergroenen. Ook wordt gewerkt aan een goed afwegingskader waarmee natuurinclusief bouwen in de hele gemeente verplicht wordt. In 2025 wordt via het Basisveiligheidsniveau klimaatbestendige nieuwbouw meer natuurinclusief gebouwd in de gemeente.

5

1j

Beheren en controleren invasieve exoten planten en Aziatische hoornaar

We zetten ons samen met andere verenigingen in om de inheemse natuur te beschermen.

6

1g & 1h

Verbeteren waterkwaliteit Gorsmeer

In samenwerking met HHNK en de Hengelsportvereniging wordt de kwaliteit van het water en de ecologie rondom het Gorsmeer verbeterd. De oevers worden (waar mogelijk natuurvriendelijk) beschoeid om afkalving en slibvorming te voorkomen. HHNK gaat hierna baggerwerkzaamheden uitvoeren om het bestaande slib te verminderen. De Hengelsportvereniging legt vissenbossen aan ter bevordering van de visstand. Op de eilanden van het Gorsmeer wordt in opdracht van de gemeente tevens een ijsvogelwand aangelegd.

7

1g & 1h

Paddentrek faciliteren

In 2024 zijn de eerste waterkolken langs wegen amfibievriendelijk gemaakt. Deze actie willen we verder doorzetten.

8

1h

Realiseren eilandjes

Er zijn in 2024 een aantal eilandjes gerealiseerd door loopbruggen niet terug te plaatsen. Hierdoor krijgt de natuur de kans om deze gebieden te gebruiken als rust- en broedplaats. Op 1 eiland in de Weidevenne (groengebied Purmerland) wordt een oeverzwaluwwand gerealiseerd. Met deze ontwikkelingen blijven we doorgaan in 2025.

9

1c, 1g & 1h

Vergroenen Aurigapark

Aurigapark is in 2021 vormgegeven met weinig beplanting en variatie. In de aankomende jaren willen we deze beplanting en variatie in het gebied aanvullen. De eerste beplantingsfase heeft plaatsgevonden tijdens de Boomfeestdag.

10

1h, 2

Mogelijkheden inventariseren om de oude stadsverwarming stations om te bouwen tot verblijfplaats voor vleermuizen, egels en huismussen

Enkele huisjes van de stadsverwarming worden uit cultuurhistorisch oogpunt behouden en krijgen mogelijk een nieuwe maatschappelijke functie. Het inrichten van deze huisjes voor de ecologie met ingebouwde vleermuisverblijven, huismuskasten en egelhuisjes wordt als een van de mogelijkheden overwogen.

11

1c, 1d & 1h

Overweerse polderdijk ecologisch inrichten.

Langs de Overweerse polderdijk ligt een groengebied dat momenteel wordt beheerd als kort gras. Vanuit omwonenden is de vraag om dit gebied ecologisch in te richten. Dit groengebied maakt deel uit van het ecologisch netwerk, waardoor deze wordt versterkt.

12

3

Inwoners, bedrijven en organisaties betrekken bij de Purmerendse natuurwaarden

Er wordt gestart met het maken van een serie videofragmenten over de natuurwaarden in de gemeente die het waard zijn om te beschermen. Met tips voor beheer voor bedrijven, particulieren en de gemeente proberen we gezamenlijk de ecologie onder de aandacht te krijgen en te ondersteunen.

13

2

Vastgoed vergroenen

We zoeken naar maatregelen om het gemeentelijk vastgoed te verduurzamen en de leefbaarheid te vergroten.

14

1h

Aanleggen broeihopen ringslang

In 2024 hebben we voor het eerst broeihopen aangelegd om de verspreiding en overleving van de ringslang mogelijk te maken, en in de komende jaren zetten we hier verder op in.

15

1g, 1k

Vergroten natuurwaarden in landelijk gebied

We zoeken naar mogelijkheden om biodiversiteit in het landelijk gebied te versterken.

 

6.2 Financieel kader

Voor het beheer van het ecologisch netwerk, inclusief het onderhoud van objecten zoals de oeverzwaluwwand of kerkuiltillen, is structureel budget nodig. Er is € 100.000,- per jaar beschikbaar gesteld voor ecologie, waarmee we kleinschalige vergroeningsmaatregelen kunnen treffen, in plaats van alleen een onderzoeks- en adviesrol te vervullen. De ontwikkelingen en bestedingen worden jaarlijks via een memo ter kennisgeving aan de gemeenteraad voorgelegd. Via deze memo hopen we, door middel van resultaten en enthousiasme, de gemeenteraad te stimuleren tot natuurinclusieve maatregelen, net zoals we dit ook bij onze inwoners proberen te realiseren.

De uitvoeringsagenda in deze nota vraagt mogelijk om extra investeringen om de ecologie in Purmerend te beschermen en te verbeteren.

 

Afbeelding: blauwborst in Weideveld, Purmerend

7. Bijlagen

Begrippenlijst

 

Adaptatie: aanpassen aan veranderende omstandigheden

 

Biodiversiteit: het aantal plant- en diersoorten en de genetische variatie binnen de soorten. De wereld kan niet zonder biodiversiteit. Soorten en ecosystemen zorgen bijvoorbeeld voor de productie van zuurstof, afbraak van dode dieren en planten, bestuiving van planten (waaronder landbouwgewassen), waterzuivering en het beheersen van plagen.

 

Biotoop: een gebied of landschapstype waarin organismen kunnen groeien en floreren. Binnen een biotoop kunnen planten en dieren zich voortplanten. Ook zijn ze van elkaar afhankelijk om te kunnen overleven. Voorbeelden zijn een poel, een bos, een grasland en een ruigte.

 

Groenblauwe verbindingszones: de aaneenschakeling van blauwe (waterlopen) en groene (flora) structuren.

 

Draagvlak: de mate waarin mensen een bepaald beleid aanvaarden, accepteren of steunen.

 

Ecologie: ecologie gaat over de verhouding tussen mensen, dieren en natuur. Als we spreken over ecologie hebben we het over al het leven dat in relatie staat met elkaar.

 

Ecosysteem: een systeem dat uit het geheel van dieren en planten bestaat die in een bepaald gebied voorkomen.

 

Ecosysteemdiensten: ecosysteemdiensten zijn de bijdragen van ecosystemen aan voordelen voor de mens die bijdragen aan de economie en andere activiteiten. Deze diensten worden onderverdeeld in 3 categorieën:

  • 1.

    Productiediensten, deze dragen bij aan de productie van voedsel, vezels, biobrandstoffen en drinkwater.

  • 2.

    Regulerende diensten, deze zijn gerelateerd aan de natuurlijke zuivering, regulering dan wel het behoud van lucht, water, bodems, habitat en klimaat. Voorbeelden zijn de afvang van fijnstof en de opslag van koolstof in bodem en vegetatie.

  • 3.

    Culturele diensten, dragen bij aan alle activiteiten van personen in, of gerelateerd aan, natuur. Voorbeelden daarvan zijn recreatie, toerisme, natuureducatie en andere vormen van natuurbeleving.

Fauna: verzamelbegrip voor alle dieren in een gebied.

 

Flora: verzamelbegrip voor alle planten (bomen, gras, struiken) in een gebied.

 

Genetische diversiteit: dit betreft de verschillen in erfelijke eigenschappen tussen individuen van een soort, zowel binnen populaties als tussen populaties. Deze diversiteit is van groot belang voor de overleving van populaties op lange termijn.

 

Gezondheid en welzijn: Een toestand van subjectief welbevinden op geestelijk, lichamelijk en maatschappelijk gebied.

 

Gidssoorten: soorten die symbool staan voor een aantal typische stadssoorten. Deze gidssoorten zijn:

  • ▪︎

    De kleinere zoogdieren (egel, Noordse woelmuis)

  • ▪︎

    Amfibieën (kleine watersalamander, rugstreeppad, bruine kikker)

  • ▪︎

    Insecten (wilde bijen en zweefvliegen)

  • ▪︎

    Vleermuizen (gewone dwergvleermuis, meervleermuis)

Groen: natuurlijke elementen of plekken die op verschillende schaalniveaus voorkomen, variërend van straatniveau (zoals bomen en groenstroken) tot stedelijk en regionaal niveau (bijvoorbeeld parken en natuurgebieden).

 

Groenstructuren: groene verbindingen door en tussen stad en platteland. De gevarieerde beplanting in de wijk, langs bermen en in parken waar dieren kunnen foerageren (voedsel zoeken), schuilen, rusten, migreren en zich voorplanten.

 

Hittestress: negatieve gezondheidseffecten door warmte bij mens en dier.

 

HHNK: Hoogheemraadschap Hollands Noorderkwartier, het waterschap waarbinnen gemeente Purmerend valt.

 

Infiltreren: regenwater niet afvoeren via de riolering maar opvangen in de bodem.

 

Inheemse vegetatie: planten die van nature in Nederland groeien. Inheemse vaste planten, struiken en bomen zijn enorm belangrijk voor het in stand houden van de lokale biodiversiteit. Inheemse insecten, bijen, vogels en vlinders zijn evolutionair gezien aangepast op deze planten en eten ervan.

 

IVN: Instituut voor Natuureducatie

 

Klimaatadaptatie: aanpassen aan het veranderende klimaat. Verminderen van de kwetsbaarheid voor klimaatverandering.

 

Leefbaarheid: de mate waarin een buurt, wijk, dorp of ander gebied aantrekkelijk en/of geschikt is om te wonen of werken.

 

Mitigatie: een activiteit met als doel om de oorzaak of het gevolg van een ongewenste gebeurtenis weg te nemen, of te verkleinen.

 

Natuur: Het begrip natuur omvat alle levende organismen, hun habitat, het ecosysteem waarvan zij deel uitmaken en de daarmee verbonden ecologische processen, ongeacht of deze wel/niet voorkomen onder invloed van menselijk handelen. Cultuurgewassen, landbouwdieren de huisdieren horen hier niet bij.

 

Natura 2000: dit is een Europees netwerk van beschermde natuurgebieden. In deze Natura 2000-gebieden worden bepaalde dieren, planten en hun natuurlijke leefomgeving beschermd om de biodiversiteit (soortenrijkdom) te behouden.

 

Natuurinclusief: als natuur een vanzelfsprekend onderdeel is van de gebouwde omgeving, verbetert de leefbaarheid én de biodiversiteit.

 

Natuurnetwerk Nederland (NNN): het Nederlands netwerk van bestaande en nieuw aan te leggen natuurgebieden. Het netwerk moet natuurgebieden beter met elkaar verbinden en met het omringende agrarisch gebied.

 

NME: gemeentelijke organisatie voor Natuur- en milieueducatie

 

Populatie: een groep organismen van dezelfde soort in een min of meer afgescheiden gebied.

 

SMP: zie Soortemanagementplan.

 

Soortenmanagementplan (SMP): dit plan brengt in beeld waar beschermde (gebouwbewonende) soorten zich ophouden en hoe groot de populatie is. In het plan staat wat je moet doen om aanwezige soorten te beschermen en populaties te versterken (“de staat van instandhouding verbeteren”).

 

Struweel: struikgewas, vaak op de overgang van bos en grasland.

 

Vergroening: een maatregel om groene doelen te behalen. Onder groene maatregelen vallen alle toevoegingen van groenelementen in de gebouwde omgeving en de maatregelen gericht op het vergroten van de natuurwaarde van groen en bebouwing.

 

Ecologische historie van Purmerend

Ecologie is geen nieuw onderwerp binnen de gemeente. Sterker nog, er zijn al diverse beleidsstukken waarbij de ecologie een belangrijke factor speelt en speelde. Het ecologisch netwerk in gemeente Purmerend heeft een lange historie. Al in de tweede helft van de vorige eeuw veranderde Purmerend snel door de bouw van verschillende nieuwe woonwijken. Het landschapsplan was toen vooral gericht op creëren van functies voor mensen. Vanaf 1970, (1e Earthday,22 april 1970), groeit het bewustzijn over onze natuurlijke omgeving. In de jaren ’80 begon de gemeente met het creëren van meer natuurlijk groen, en deze uitbreiding verliep voorspoedig. Van 1984 tot 1991 steeg het percentage bosplantsoen en ruig gras in oppervlak van 27% naar 40% (ongeveer 48% in 2023). Ook werd in de jaren ’90 vastgesteld waar de stedelijke water- en groenstructuren door Purmerend lopen. Het ecologisch structuurplan uit de jaren ’90 roept op om de natuur in te zetten voor de leefbaarheid van de stad.

Sindsdien wordt gestreefd naar het optimaliseren van het ecologisch netwerk. Hiervoor zijn diverse maatregelen genomen, zoals het Oeverplan uit 2008, waarmee veel oevers langs het netwerk natuurlijker zijn ingericht. De natuurlijk ingerichte oevers zijn in 2012 getoetst door Bureau Waardenburg, die concludeerden dat veel van de oevers redelijk zijn en enkele zelfs goed, op basis van de soortenrijkdom van planten en insecten. Eind 2017 presenteerde Nelen & Schuurmans B.V. de evaluatie ‘Natuurvriendelijke oevers Purmerend’. Zij concludeerden dat het Oeverplan uit 2008 goed is uitgevoerd en zich bewijst door de hoeveelheid planten en insecten die er gebruik van maken. Wel liggen er nog kansen om moeraszones te verbreden, hierdoor ontstaat meer ruimte voor waterberging en de ontwikkeling van biodiversiteit. Daarnaast moeten de oevers gericht worden onderhouden om variatie in planten en dieren te waarborgen. Dit voorkomt dat oevers niet alleen maar uit dominante soorten zoals riet of zegge bestaan. Het advies is om een goede visie te maken om de natuurvriendelijke oevers op elkaar aan te sluiten waardoor de biodiversiteit kan verbeteren.

De Groenkoers uit 2014 vraagt om aangepast beheer en het verbreden en verlengen van de groenblauwe linten. Het verbreden van deze linten met zowel droge als natte berm, biedt meer kans voor een hogere biodiversiteit. Deze linten zien we in deze Nota Ecologie als bredere overgangszones die aanhechten op de wijkstructuur met het stedelijk groen. Waar mogelijk loopt het ecologisch netwerk door de wijken. In de visie Leefbare stad 2040 wordt het belang van een balans tussen steen en groen beschreven. Het Bomenplan, de Klimaatadaptatiestrategie, en het Parkenplan zijn hier uitwerkingen van. Het Bomenplan pleit voor het goed inrichten van boomlocaties om gezondere en oudere bomen in de gemeente te laten groeien, wat bijdraagt aan een hogere biodiversiteit. De Klimaatadaptatiestrategie Purmerend 2025-2030 vraagt om meer groen, wat kansen biedt om klimaatadaptatie en ecologie (en sport & spel) te combineren en zo ecologische routes te versterken. In het Parkenplan wordt naast de parken ook de belangrijkste verbindingen tussen de parken (Parelweb) beschreven. Dit Parelweb is in 2021 opgenomen in het Gebiedsplan, waarin de kracht van gecombineerde functies zoals recreatie, sport en natuur wordt benadrukt. Een web van waterlopen, natuurvriendelijke oevers, ruwe bermen met ruig gras, fiets- en wandelpaden, moet de parken (de groene parels) met elkaar verbinden en deze aan het buitengebied koppelen. Dit doen we door de groene invulling van de openbare ruimte voor alle 3 de disciplines (klimaatadaptatie, sport en spel en ecologie) waar mogelijk te combineren en tot een gezamenlijk ontwerp en besluit te komen.

 

Afbeelding: Het Parelweb uit het Gebiedsplan-2021.

 

Waar draagt groen aan bij?

 

(bron: Handreiking Groen in en om de stad, Rijksoverheid)

 

Groen(blauwe) netwerken

Verschillende voordelen van groen laten zich meestal goed combineren. Door bij inrichting rekening te houden met groenblauwe structuren en deze te verbinden in een groen netwerk, kunnen deze zones multifunctioneel worden ingezet (MOOI NL, 2024). Door in te zetten op een verbonden netwerk van parken, groenblauwe verbindingen en groene buitengebieden heeft dit voordelen voor bijvoorbeeld recreatie (groene wandel- en fietspaden), klimaatadaptatie (koelteplekken aanbrengen en wateroverlast beperken) en de leefgebieden van planten en dieren versterken. Meer over de meerwaarde van groen bekeken vanuit verschillende soorten netwerken in de volgende paragraaf.

 

Groen draagt bij aan een zacht mobiliteitsnetwerk

Gezonde stedelijke groen(blauwe) structuren bevorderen de keuze voor lopen en fietsen en vormen daarmee de basis voor een verandering in vervoerswijze (modal shift) (MOOI NL, 2024). Gezonde mobiliteit zoals lopen, fietsen en het gebruik van openbaar vervoer, heeft een positief effect op de gezondheid van de mens en op de milieukwaliteit. Dit blijkt uit een verkenning van het RIVM naar de effecten van minder auto’s, meer ruimte om te bewegen en meer groen (RIVM, 2023). Zo zorgen maatregelen voor minder autoverkeer in de wijk, minder geluid en een betere luchtkwaliteit. Ook bewegen mensen meer doordat ze in een groene omgeving vaker fietsen en lopen. Gezonde mobiliteit wordt bevordert door een gezonde leefomgeving te ontwerpen en in te richten. Een voorbeeld hiervan is een groene woon- en werkomgeving, die uitnodigt tot wandelen of fietsen. Ook zorgt meer fietsen en lopen voor minder gebruik van de auto, waardoor de druk van de auto op het stedelijk gebied verminderd en er meer ruimte ontstaat voor groen en ruimtelijke kwaliteit (versmallen en verdwijnen van rijbanen voor de auto).

 

Groen draagt bij aan een gezond netwerk

Gezonde stedelijke groen(blauwe) structuren nodigen uit tot bewegen en dragen bij aan het creëren van gezonde leefomstandigheden (MOOI NL, 2024). Mensen, die in een groene omgeving wonen, hebben minder vaak last van hart- en vaatziekten, overgewicht of diabetes. Ook hebben ze vaak een betere mentale gezondheid. Zo bevordert de aanwezigheid van groen herstel bij onder andere stress, depressie en angsten. Groen nodigt uit om te bewegen en sporten, waardoor gezond gedrag wordt gestimuleerd. Ook draagt groen bij aan het verminderen van schadelijke milieufactoren, zoals geluidsoverlast. (RIVM, 2022).

 

Wijken waar de kwaliteit van het groen door onafhankelijke beoordelaars als beter wordt beoordeeld, behalen betere resultaten. Bewoners voelen zich gezonder en bezoeken de dokter minder vaak. Groen heeft ook een positief effect op kinderen. Zo hebben kinderen in groene wijken 15% minder vaak last van overgewicht. Deze verbanden zijn herhaaldelijk het sterkst aangetoond binnen kansarme groepen. Kinderen in arme, groene wijken krijgen bijvoorbeeld 10% minder vaak Ritalin voorgeschreven dan kinderen in even arme, maar minder groene wijken (WUR, 2018). Mensen die beter in hun vel zitten en minder last van stress hebben, zijn gezonder en productiever. Dit draagt aanzienlijk bij aan de maatschappelijke voordelen van het investeren in groen.

 

Groen draagt bij aan een sociaal netwerk

Gezonde stedelijke groen(blauwe) structuren zijn sociaal en interactief, inclusief en toegankelijk, en veilig en zonder zorgen (MOOI NL, 2024). Groene ontmoetingsplekken waar inwoners elkaar kunnen treffen dragen bij aan de sociale cohesie. Door elkaar in een fijne openbare groene ruimte te ontmoeten, wordt de sociale cohesie in een wijk vergroot. Buurten waar de bewoners meer contact hebben, ervaren meestal minder verloedering, overlast en criminaliteit (Vreke et al, 2010).

 

Groen draagt bij aan een herkenbaar netwerk

Gezonde stedelijke groen(blauwe) structuren zijn aantrekkelijk, herkenbaar en hebben een sterke identiteit, met een educatieve waarde (MOOI NL, 2024). Het gaat enerzijds over het versterken van de identiteit, zodat de structuur herkenbaar wordt, en anderzijds om het verhaal van de plek te vertellen. Groen kan hieraan bijdragen door aan te sluiten bij de historie van een gebied of locatie. Denk bijvoorbeeld aan het herstellen van een singel, het opnieuw creëren van ruimte voor een vroeger park, het laten staan van oudere houtsingels of heggen, of het laten liggen van watergangen in nieuw te ontwikkelen woonwijken. Door voort te bouwen op de positieve aspecten van de identiteit van de plek, ontstaat meer herkenning en eigenaarschap.

 

Groen draagt bij aan een klimaatadaptief netwerk

Gezonde stedelijke groen(blauwe) structuren zijn verkoelend, robuust en schoon (MOOI NL, 2024). Door klimaatverandering verandert het Nederlandse weerpatroon: langere periodes van droogte, afgewisseld met grote hoeveelheden regen in korte tijd. In steden is soms tot 70% van het oppervlak bebouwd en bestraat, oplopend tot 90% in de binnenstad en op bedrijventerreinen. Hierdoor krijgt het water nauwelijks kans om de bodem in te zakken (WUR, 2018). Groen zorgt voor verbeterde infiltratie- en bergingscapaciteit van de bodem, verminderde wateroverlast en draagt bij aan de aanpak van droogte. In groene gebieden kan water in de bodem infiltreren, opgenomen worden door vegetatie, verdampen en het grondwater aanvullen. Meer groen in tuinen, op bedrijventerreinen en in de openbare ruimte zorgt ervoor dat het regenwater wordt vastgehouden en geborgen op de plek waar het valt (NKWK, 2021).

 

Daarnaast draagt groen ook bij aan het koel(er) houden van de gebouwde omgeving (Kluck, J. et al. 2020). Dit is noodzakelijk, omdat hittegolven steeds vaker voorkomen en de hittestress in de stad toeneemt. Door de grote hoeveelheden verharding warmt de stad snel op en ontbreekt het aan voldoende mogelijkheden voor verkoeling. Dit vormt een risico voor kwetsbare groepen, zoals ouderen, jonge kinderen en langdurig zieken, en vermindert de weerbaarheid van ecosystemen in de stad. Groen zorgt voor de afname van hittestress door het grote koelend vermogen (mits voldoende water beschikbaar) en het creëren van schaduw door bomen (WUR, 2018).

 

Groen draagt bij aan een ecologisch netwerk

Gezonde stedelijke groen(blauwe) structuren zijn kwalitatief en verbonden (MOOI NL, 2024). Natuur is overal, ook in de stad. Een goede biodiversiteit garandeert het voortbestaan van vele soorten en biedt vele kwaliteiten. Door de stad te zien als een ecosysteem met diverse, onderling verbonden natuurtypen, kan zij een belangrijk leefgebied worden voor veel soorten. Door het toepassen van ecologisch beheer in publiek en privaat groen dragen inwoners, bedrijven en de lokale overheid bij aan het behoud van bijzondere en bedreigde soorten, zoals wilde bijen. Deze bijzondere soorten hebben meer nodig dan een standaardgazon; ze willen liever een gevarieerde biotoop met veel inheemse planten (IVN). Hiervoor geldt dat hoe nauwer stakeholders betrokken zijn bij de totstandkoming én hoe meer ze zich mede-eigenaar voelen van het ecologische netwerk, des te groter het draagvlak en de kans op duurzaam behoud van deze natuur.

 

Niet vergroenen heeft negatieve gevolgen

Het niet vergroenen van een stad of haar omgeving kan verschillende negatieve consequenties hebben, zowel op het gebied van milieu als levenskwaliteit. Denk bijvoorbeeld aan:

 

  • ▪︎

    Hittestress. Een gebrek aan groen in stedelijke gebieden kan leiden tot het zogenaamde ‘hitte-eilandeffect’, waarbij steden warmer worden dan omliggende landelijke gebieden (Kluck et al, 2020). Dit komt doordat verharde oppervlakken, zoals beton en asfalt, warmte vasthouden en uitstralen. Daarnaast kan een tekort aan groen, en daarmee schaduw en verdamping, leiden tot hogere (gevoels)temperaturen. Hoge temperaturen kunnen de gezondheid van mensen beïnvloeden en leiden tot een verhoogd energieverbruik voor koeling. Meer groen zorgt voor schaduw en verdamping, waardoor de stad koeler blijft. Het biedt daarnaast koele verblijfsplekken en routes, wat de leefbaarheid en gezondheid tijdens warme periodes waarborgt.

  • ▪︎

    Luchtverontreiniging. Een gebrek aan groene ruimten kan de luchtkwaliteit in steden verslechteren. Bomen en planten spelen een cruciale rol bij het filteren van verontreinigende stoffen uit de lucht en het produceren van zuurstof (Pronk en Van Dijk, 2008). Zonder voldoende groen kunnen stedelijke gebieden gevoeliger zijn voor luchtverontreiniging, met nadelige gevolgen voor de gezondheid van de bewoners.

  • ▪︎

    Verlies van biodiversiteit. Stedelijke ontwikkeling en beheer zonder aandacht voor groenvoorzieningen kan leiden tot habitatverlies en een afname van biodiversiteit. Veel plant- en diersoorten zijn afhankelijk van groene ruimten voor hun overleving. Het verdwijnen van deze gebieden kan leiden tot een afname van de diversiteit aan flora en fauna in de stad (Mata et al, 2023).

  • ▪︎

    Waterbeheerproblemen. Een gebrek aan groen kan leiden tot waterafvoerproblemen en overbelasting van rioleringssystemen, met mogelijke overstromingen en schade als gevolg (KNMI, 2021). Groene gebieden zoals parken en tuinen helpen bij het infiltreren van regenwater en verminderen het risico op wateroverlast.

  • ▪︎

    Economische schade. Het gebrek aan groen in stedelijke gebieden kan aanzienlijke economische schade veroorzaken. We benadrukken dit verhaal, omdat groen op economisch vlak vaak onvoldoende wordt gewaardeerd, terwijl dit wel zou moeten. Denk bijvoorbeeld aan gezondheidskosten: een gebrek aan groen wordt in verband gebracht met slechtere luchtkwaliteit, beperkte mogelijkheden voor lichaamsbeweging en hogere stressniveaus (Hiemstra et al, 2019). Deze factoren kunnen leiden tot een toename van gezondheidsproblemen, zoals ademhalingsaandoeningen, obesitas, en mentale klachten. Hogere ziektekosten kunnen een last vormen voor de samenleving en het zorgsysteem en leiden tot productiviteitsverlies. Onderzoek heeft aangetoond dat toegang tot groene ruimten het welzijn van werknemers bevordert en de productiviteit verhoogt. Werknemers die in de buurt van groen wonen of werken, ervaren over het algemeen minder stress en vermoeidheid, wat de algehele arbeidsproductiviteit ten goede komt (Spijker et al, 2022). Gebieden met weinig groen kunnen bovendien de vastgoedwaarde verminderen en minder aantrekkelijk zijn voor vastgoedinvesteringen (Bos en Vogelzang, 2018).. Mensen geven vaak de voorkeur aan woonwijken met groenvoorzieningen, en het ontbreken daarvan kan de vastgoedwaarde negatief beïnvloeden. Verder kan een gebrek aan groen leiden tot hogere energiekosten. Het ontbreken van bomen en andere vegetatie kan de temperatuur in stedelijke gebieden verhogen, wat resulteert in meer energieverbruik voor koeling en hogere energiekosten voor zowel huishoudens als bedrijven (TNO, 2021). Daarnaast kunnen er verhoogde kosten voor waterbeheer ontstaan. Het ontbreken van voldoende groen kan leiden tot wateroverlast, met schade aan gebouwen en infrastructuur, bodemerosie en verminderde waterkwaliteit. Groene ruimten spelen een cruciale rol in het reguleren van de watercyclus. Het beheer van deze problemen kan aanzienlijke kosten met zich meebrengen voor lokale overheden.

  • ▪︎

    Lagere kwaliteit van leven. Het ontbreken van groen kan resulteren in een lagere levenskwaliteit, doordat inwoners minder toegang hebben tot plekken om te ontspannen, te sporten en te genieten van de natuur (RIVM, 2022). Het niet meegroeien van groen met de woningbouwopgave in de verdichtende steden en dorpen heeft een vergelijkbaar effect, met meer potentiële gebruikers voor dezelfde hoeveelheid recreatief groen. Groen draagt bij aan de esthetische waarde van een stad en omgeving en biedt recreatieve mogelijkheden.

  • ▪︎

    Psychologische impact. Een gebrek aan groen in stedelijke gebieden kan bijdragen aan stress, angst en andere psychologische problemen (WHO, 2021). Groene omgevingen hebben een positief effect op de mentale gezondheid.

Kortom, het niet functioneel vergroenen van een stad en haar omgeving kan leiden tot een aantal problemen die variëren van economische, milieu- en gezondheidsproblemen en een verminderde kwaliteit van leven. De benoemde problemen en schades zullen zeer hoge kosten met zich mee brengen. Deze schadekosten zijn vele malen hoger dan de kosten voor het tijdig investeren in een groene en gezonde stad. Het is daarom van groot belang dat steden streven naar een duurzame en groene stadsplanning om negatieve consequenties te voorkomen.

 

 

Puntensysteem natuurinclusief bouwen Purmerend 2.0

 

Purmerend wil natuurinclusief bouwen in de gemeente bevorderen. Dit levert een bijdrage aan de biodiversiteit, aan de klimaatopgave door vermindering van hittestress en wateroverlast, aan de mogelijkheden voor natuurbeleving in de wijken en dorpen en daarmee samenhangend aan het welzijn en de gezondheid van mensen.

 

In Purmerend geldt dat:

 

Nieuwbouw of bijgebouw(en) op gemeentegrond die Omgevingsvergunning plichtig zijn en gelijk of groter zijn dan 100 m2 moeten voldoen aan het puntensysteem Natuurinclusief bouwen Purmerend 2.0.

 

Hierna wordt onderscheidt gemaakt in de grootte van het totale plangebied. Er is onderscheidt gemaakt tussen kleinschalige, middelgrote en grootschalige projecten, omdat dit van invloed is op de mogelijkheden in de natuurinclusieve maatregelen en om te voorkomen dat kleine projecten een onevenredige hoeveelheid extra kosten moeten maken. Om deze reden is ook het verplicht te behalen puntenaantal per project verschillend. Het verplichte puntenaantal per type project staat weergegeven in de onderstaande tabel.

 

Project

Grootte totale plangebied

Hoogte nieuwe bebouwing

Verplicht puntenaantal

Kleinschalig project

<500 m2

en <15 m

Minimaal 22

Middelgroot project

500-2000 m2

en 15-25 m

Minimaal 26

Grootschalig project

>2000 m2

en/of >25 m

Minimaal30

 

  • ▪︎

    De maatregelen zijn onderverdeeld in 3 categorieën: daken, gevel en maaiveld. Het project moet op elke categorie punten scoren. Wanneer het project geen private buitenruimtes heeft (categorie maaiveld) moet het minimum aantal punten behaald worden op de categorie dak of gevel of moet naar andere mogelijkheden worden gezocht. Als dit ook niet mogelijk blijkt, wordt er in overeenstemming met de stadsecoloog naar een oplossing of alternatief gezocht.

  • ▪︎︎

    De ontwikkelaar, architect of bouwer kan uit de tabel kiezen welke maatregelen worden toegepast op daken, gevels en maaiveld. In de hiernavolgende checklist wordt door de ontwikkelaar, architect of bouwer inzichtelijk gemaakt welke maatregelen zijn toegepast in het project en hoeveel punten in totaal zijn behaald.

Meer informatie over uitleg over de maatregelen kunt u vinden in het ‘Handboek Purmerend Natuurinclusief Bouwen en ontwerpen’ of kunt u contact opnemen met de stadsecoloog.

 

Puntentabel Natuurinclusief bouwen gemeente Purmerend

 

Score

Punten

Categorie

Maatregel

Verplicht

Ontwikkelaar levert tabel aan met de puntenscore per maatregel met toelichting

Verplicht

Inzet van expertise ecoloog vanaf de initiatieffase van het bouwproject.

Verplicht

Opstellen van een meerjarig onderhoudsplan

7

Dak

Groen dak met sedum (dikte 4-7 cm, 40% opp)

10

Dak

Groen dak met sedum (dikte 4-7 cm, 60% opp)

12

Dak

Groen dak met sedum, grassen, kruiden (7-15 cm, 40% opp)

15

Dak

Groen dak met gras, kruiden, heesters (dikte 20-40 cm, 40% opp)

18

Dak

Groen dak met gras, kruiden, heesters (dikte 20-40 cm, 60% opp)

20

Dak

Groen dak met gras, kruiden, heesters (dikte 80-120 cm, 40% opp)

25

Dak

Groen dak met gras, kruiden, heesters (dikte 80-120 cm, 60% opp)

7

Dak

Waterdak (50% dakoppervlak, mimimaal 40l/m2 dakoppervlak)

10

Dak

Waterdak (70% dakoppervlak, mimimaal 40l/m2 dakoppervlak)

6

Gevel

Klimplanten (zonder constructie, 10% geveloppervlak)

10

Gevel

Klimplanten (zonder constructie, 25% geveloppervlak)

10

Gevel

Klimplanten (met constructie, 10% geveloppervlak)

14

Gevel

Klimplanten (met constructie, 25% geveloppervlak)

15

Gevel

Groene muur (10% geveloppervlak)

20

Gevel

Groene muur (25% geveloppervlak)

5

Gevel

Geveltuin (op eigen grond en geen tuin) begane grond (30% lengte gevel)

10

Gevel

Geveltuin (op eigen grond en geen tuin) begane grond (60% lengte gevel)

7

Gevel

Geveltuin op meerdere verdiepingen (30% lengte geveltuin)

14

Gevel

Geveltuin op meerdere verdiepingen (60% lengte geveltuin)

3

Gevel

10 vogelverblijfplaatsen

3

Gevel

10 vleermuiskasten (zomer-, paarverblijf)

5

Gevel

2 inbouw kraamkasten vleermuizen

12

Maaiveld

Natuurspeelplaats (>60 m2)

8

Maaiveld

Groen waterafvoer (wadi) met >20 insectenvriendelijke plant-/struik- en boomsoorten (>40 m2).

12

Maaiveld

Waterafvoer (wadi) met >20 insectenvriendelijke plant-/struik- en boomsoorten (>60 m2).

12

Maaiveld

Tuin (op eigen grond) met >25% beplant (>40 m2)

18

Maaiveld

Tuin (op eigen grond) met >40% beplant (>60 m2)

4

Maaiveld

Haag (>10 m lang, >0,5 m breed en >0,8 m hoog)

7

Maaiveld

Haag (> 20 m land, 0,5 m breed en 0,8 m hoog)

2

Maaiveld

Geen buitenverlichting bij groen

4

Omgeving

Cluster van 3 inheemse bomen

4

Omgeving

Cluster van inheemse struiken >50 m2 en minimaal 1 meter hoog

3

Omgeving

Groenstructuren met aansluiting op ecologische structuur

2-10

Bonus

Innovatieve natuur inclusieve maatregelen die nog niet in deze tabel benoemd zijn (spouwmuur, dakkasten, etc)

 

Bonus

De ontwikkelaar heeft de vrijheid om zelf mee te denken over innovatieve natuurinclusieve maatregelen die niet genoemd worden in deze tabel. Hiervoor kunnen 2 tot en met 10 bonuspunten worden behaald. Het aantal punten is gebaseerd op de effectiviteit van de maatregel en de investeringshoogte. De maatregelen die voor bonuspunten in aanmerkingen komen, worden getoetst en eventueel toegekend door de een beleidsmedewerker van de gemeente in overleg met de ecologen.

 

Checklist Puntensysteem

Hierin staan de gekozen maatregelen per categorie en het aantal punten dat daarmee wordt behaald. Het totaal aantal punten wordt getoetst aan de hand van het type project.

 

Naam project:

 

Aantal m2 nieuwbouw

m2

Aantal m2 plangebied

m2

Hoogte van nieuwbouw

m

Beschikbare geveloppervlakte

m2

Beschikbare dakoppervlakte

m2

Verplicht te behalen aantal punten

punten

 

 

Categorie daken

Punten

Groen dak

… punten

Waterdak

… punten

 

Categorie gevel

Punten

Groene gevel

… punten

Geveltuin

… punten

Nestkasten vogels

… punten

Vleermuiskasten

… punten

 

Categorie maaiveld

Punten

Natuurspeelplaats

… punten

Wadi

… punten

Haag

… punten

Eigen tuin

… punten

 

Bonus

….punten

 

Totaal

… punten

 

Ecologische verbindingszones

 

Ecologische verbindingszone Overwhere 2024

 

Ecologische verbindingszone Gors 2024

 

Ecologische verbindingszone Purmer-Noord 2024

 

Ecologische verbindingszone Purmer-Zuid 2024

 

Ecologische verbindingszone Weidevenne 2024

 

Ecologische verbindingszone Wheermolen 2024

 

Ecologische verbindingszone Middenbeemster 2024

 

Ecologische verbindingszone Noordbeemster 2024

 

Ecologische verbindingszone Westbeemster 2024

 

Ecologische verbindingszone Zuidoostbeemster 2024

 

Eigendom percelen overheden Purmerend 2024

 

Eigendom percelen overheden Beemster 2024

Aldus vastgesteld in de openbare vergadering d.d. 27 februari 2025

de griffier,

M. Timmerman

de voorzitter,

E. van Selm

Naar boven