Gemeenteblad van Amsterdam
| Datum publicatie | Organisatie | Jaargang en nummer | Rubriek |
|---|---|---|---|
| Amsterdam | Gemeenteblad 2025, 104897 | andere voorlichtingsinformatie |
Zoals vergunningen, bouwplannen en lokale regelgeving.
Adressen en contactpersonen van overheidsorganisaties.
U bent hier:
| Datum publicatie | Organisatie | Jaargang en nummer | Rubriek |
|---|---|---|---|
| Amsterdam | Gemeenteblad 2025, 104897 | andere voorlichtingsinformatie |
Kennisgeving voornemen tot uitgifte in erfpacht van percelen grond Food Center Amsterdam
Het college van burgemeester en wethouders van Amsterdam,
Kennisgeving voornemen tot uitgifte in erfpacht van percelen grond Food Center Amsterdam
Beschrijving voornemen algemeen
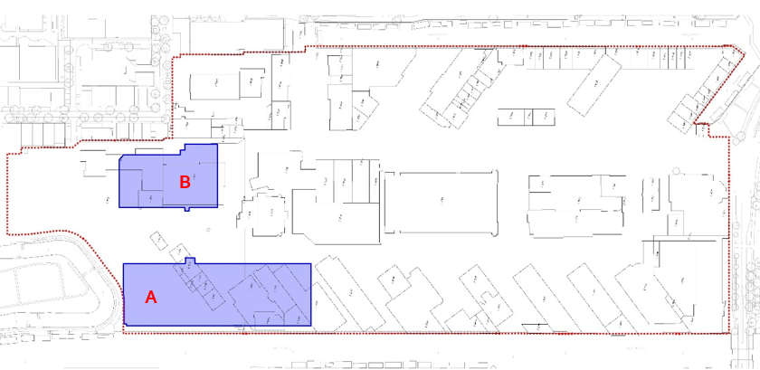
De gemeente Amsterdam is voornemens om ten behoeve van het project Food Center Amsterdam verschillende percelen uit te geven in erfpacht. Het plangebied, waarbinnen percelen worden uitgegeven is gelegen binnen het stadsdeel West, globaal tussen de Jan van Galenstraat en de Vredenhofweg. De oppervlakte van het plangebied is circa 24 hectare. In de onderstaande kaart is het plangebied weergegeven, met in lila de op korte termijn in erfpacht uit te geven gronden.
Selectiecriterium en toelichting daarop
De selectie per perceel van een partij binnen het plangebied wordt gebaseerd op een aanwijzing aan of door Marktkwartier C.V. In Marktkwartier C.V. zijn als vennoten Ballast Nedam en VolkerWessels verenigd.
Het voornemen van de gemeente tot uitgiften aan Marktkwartier C.V. of op aanwijzing door Marktkwartier C.V., vloeit voort uit de tussen deze beide partijen gesloten Realisatie- en exploitatieovereenkomst FCA (hierna te noemen: “REOK”). De REOK dateert van 19 december 2013 en is gepubliceerd en gegund in een Europese aanbestedingsprocedure (concurrentiegerichte dialoog) voor het ‘project Herstructurering FCA’, waarin Ballast Nedam en VolkerWessels de economisch meest voordelige inschrijving hebben gedaan. De REOK geeft Marktkwartier C.V. de bevoegdheid om partijen voor verwerving van bepaalde percelen in erfpacht in het plangebied aan te wijzen. Hieruit volgt dat de gemeente geen percelen uitgeeft anders dan aan Marktkwartier C.V. of aan een partij die door Marktkwartier C.V. is aangewezen. Niet uitgesloten is dat Marktkwartier C.V. zichzelf, een van haar vennoten of een aan haar of aan haar vennoten gelieerde partij aanwijst. Ook in dat geval kan de gemeente Amsterdam percelen in het plangebied aan de aangewezen partij uitgeven in erfpacht.
De genoemde Europese aanbestedingsprocedure is een transparante selectieprocedure als bedoeld in de Didam-arresten (ECLI:NL:HR:2021:1778 en ECLI:NL:HR:2024:1661). In het kader van die procedure kon elke serieuze gegadigde zich melden om een kans te maken om het gebied te herstructureren met de daarbij behorende bevoegdheid om aan te wijzen welke partij de percelen krijgt. De aanwijzing van partijen aan wie de gemeente de percelen zal uitgeven, door Marktkwartier op basis van het aanwijsrecht, vormt bovendien een objectief, redelijk en toetsbaar criterium op grond waarvan de desbetreffende partijen als enige serieuze gegadigde kwalificeren. Dit aanwijsrecht is onlosmakelijk onderdeel van de REOK, dat voorwerp is geweest van een Europese aanbesteding, en zonder welke de herstructurering niet adequaat kan plaatsvinden. De voorgenomen uitgifte voldoet aldus aan de criteria van de Didam-arresten.1
Beschrijving op korte termijn voorgenomen uitgifte in erfpacht
De Gemeente zal op korte termijn overgaan tot de volgende uitgiften in erfpacht aan Marktkwartier C.V. op grond van de REOK, dan wel op grond van het gegeven dat de hierna te noemen partijen voor de hierna te noemen percelen, gelegen binnen het plangebied, door Marktkwartier C.V. zijn aangewezen.
Allereerst betreft het een uitgifte van een erfpachtrecht aan Exploitatiemaatschappij Wheere B.V. aangaande het perceel zoals met hoofdletter A aangeduid op bovenstaande kaart, kadastraal bekend als gemeente Sloten (N.H.)., sectie C, nummer 10100 (gedeeltelijk), 10101, 10102(gedeeltelijk), 10107, 10108, 10109, 10110(gedeeltelijk), 10111 (gedeeltelijk), 10731, 10739 (gedeeltelijk), 10933 (gedeeltelijk) 10938, 12152 (gedeeltelijk) en 12216 (gedeeltelijk)
Daarnaast zal een erfpachtrecht worden uitgegeven aan Marktkwartier C.V. aangaande het perceel zoals met hoofdletter B aangeduid op bovenstaande kaart , kadastraal als gemeente Sloten (N.H.), sectie C, nummer 9897, 9898, 10225 en 12152 (allen gedeeltelijk)
Toekomstige voornemens tot uitgifte in het plangebied
Met deze kennisgeving geeft de gemeente Amsterdam openheid over haar algemene voornemen tot uitgifte van het gehele plangebied in erfpacht en over het feit dat de percelen worden uitgegeven aan Marktkwartier C.V., dan wel partijen die door Marktkwartier C.V. worden aangewezen. Voor toekomstige uitgiften binnen het plangebied op de hiervoor beschreven wijze zal niet telkens een afzonderlijke publicatie in het Gemeenteblad plaatsvinden. Op de website https://www.amsterdam.nl/ondernemen/vastgoedprofessionals/ van de gemeente wordt een kaart en een lijst geplaatst waarin is weergegeven welke partij zich op welk perceel heeft gevestigd resp. zal vestigen voor zover bekend. Na elk voornemen tot uitgifte zal de gemeente Amsterdam de kaart en de lijst bijwerken. Anders dan het geval is na publicatie van de onderhavige kennisgeving (zie nader hieronder) zal de gemeente Amsterdam bij toekomstige uitgiftevoornemens binnen het plangebied geen opschortende termijn in acht nemen tussen de bijwerking van de kaart en lijst op de hiervoor bedoelde gemeentelijke website en de definitieve overeenkomst tot uitgifte in erfpacht resp. de vestiging van het erfpachtrecht.
Kort geding, opschortende termijn, vervaltermijn, rechtsbescherming in één instantie
Partijen die zich niet kunnen verenigen met een of meer van de voornemens uit de onderhavige kennisgeving of enig ander onderdeel daarvan, dienen uiterlijk 20 kalenderdagen na publicatie van dit voornemen in het Gemeenteblad een gerechtelijke procedure in kort geding aanhangig te hebben gemaakt tegen de gemeente Amsterdam.
Indien binnen deze termijn een kort geding aanhangig is gemaakt, zal de gemeente Amsterdam tot de uitspraak van de voorzieningenrechter van de rechtbank Amsterdam geen uitvoering geven aan de voornemens waartegen in het kort geding maatregelen worden geëist.
Deze termijn van 20 kalenderdagen is tevens een vervaltermijn: indien niet binnen deze termijn een kort geding aanhangig is gemaakt, kunnen later opkomende bezwaren de voorgenomen uitgifte niet voorkomen en is de gemeente Amsterdam niet aansprakelijk voor schade die samenhangt met dergelijke niet tijdig in kort geding naar voren gebrachte bezwaren.
Na het vonnis in eerste aanleg in een kort geding is de gemeente Amsterdam gerechtigd om over te gaan tot definitieve uitgifte, tenzij het vonnis zich daartegen verzet, ook als de partij die het kort geding aanhangig heeft gemaakt niet in het vonnis berust, bijvoorbeeld door hiertegen in hoger beroep te gaan of door (tijdens of na het kort geding) een bodemprocedure aanhangig te maken.
Kopieer de link naar uw clipboard
https://zoek.officielebekendmakingen.nl/gmb-2025-104897.html
De hier aangeboden pdf-bestanden van het Staatsblad, Staatscourant, Tractatenblad, provinciaal blad, gemeenteblad, waterschapsblad en blad gemeenschappelijke regeling vormen de formele bekendmakingen in de zin van de Bekendmakingswet en de Rijkswet goedkeuring en bekendmaking verdragen voor zover ze na 1 juli 2009 zijn uitgegeven. Voor pdf-publicaties van vóór deze datum geldt dat alleen de in papieren vorm uitgegeven bladen formele status hebben; de hier aangeboden elektronische versies daarvan worden bij wijze van service aangeboden.