artikel 18, lid 1 onder d van de Wegenverkeerswet 1994 (hierna: WVW 1994) ingevolge verkeersbesluiten worden genomen door burgemeester en wethouders voor zover zij betreffen het verkeer op wegen, welke niet in beheer zijn bij het Rijk, de provincie of een waterschap en dat deze bevoegdheid op grond van het mandaatbesluit is gemandateerd aan de manager Cluster Ruimte;
•
artikel 15 lid 1 van de WVW 1994 ingevolge de plaatsing of verwijdering van de bij algemene maatregel van bestuur aangewezen verkeerstekens en onderborden, voor zover daardoor een gebod of verbod ontstaat of wordt gewijzigd, geschiedt krachtens een verkeersbesluit;
•
artikel 12 van het Besluit Administratieve Bepalingen inzake het Wegverkeer (hierna: BABW) ingevolge de plaatsing en verwijdering van de verkeerstekens van Bijlage I van het Reglement Verkeersregels en Verkeerstekens 1990 (hierna: RVV 1990) moet geschieden krachtens een verkeersbesluit;
•
krachtens artikel 14 van het BABW wordt de plaatsing van onderborden, zoals bedoeld in artikel 8, lid 2 en lid 3 van het BABW, in het betrokken verkeersbesluit tot uiting gebracht;
•
artikel 24 BABW ingevolge verkeersbesluiten worden genomen na overleg met (een gemachtigde van) de korpschef van de politie.
Overwegende dat:
•
de Leklaan binnen de bebouwde kom van Ridderkerk ligt;
•
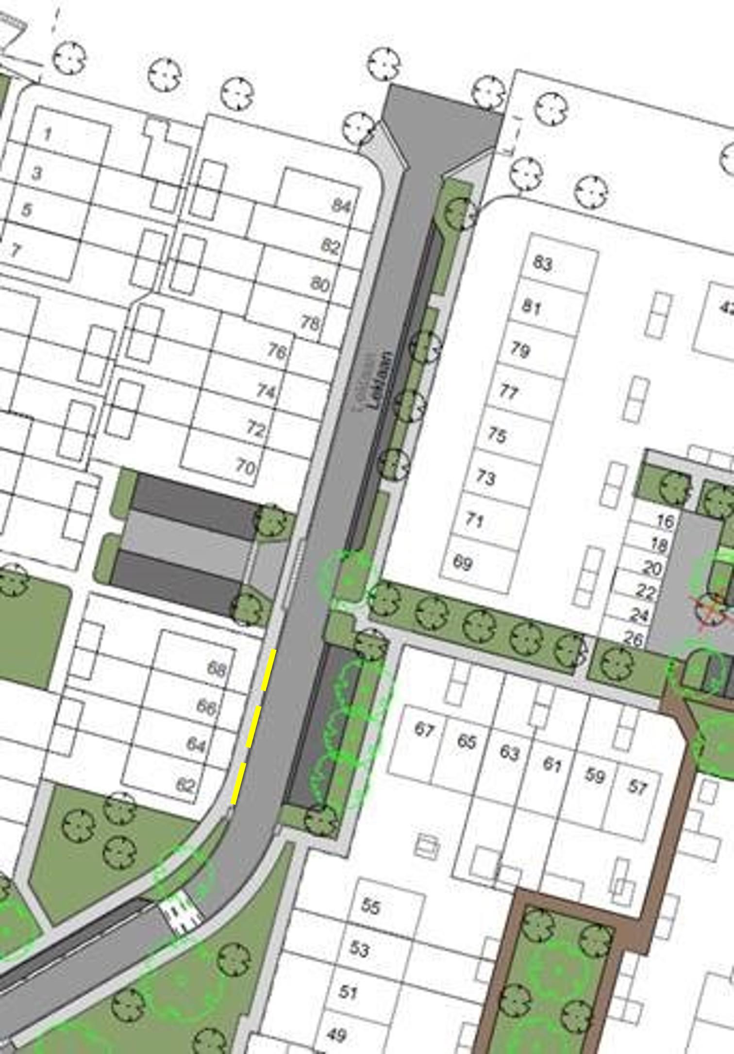
op het deel van de Leklaan tussen huisnummers 62 en 68 aan de oostzijde van de weg haakse parkeervakken zijn aangebracht;
•
er regelmatig voertuigen staan geparkeerd langs de trottoirband tegenover deze parkeervakken;
•
deze geparkeerde voertuigen het in- en uitrijden van de parkeervakken belemmeren;
•
deze geparkeerde voertuigen ook het zicht ontnemen op het tegemoetkomend verkeer in de bocht van de weg;
•
dit onveilige situaties oplevert voor het overige verkeer;
•
het daarom wenselijk is om een parkeerverbod in te stellen aan de westzijde van de Leklaan, voor het deel gelegen tussen huisnummers 62 en 68;
•
er met het instellen van het parkeerverbod geen parkeerdruk wordt verwacht omdat er voldoende parkeergelegenheid is in de omgeving;
•
de bovengenoemde maatregel wordt genomen op basis van artikel 2 van de WVW 1994, strekt tot:
•
het verzekeren van de veiligheid op de weg;
•
het beschermen van weggebruikers en passagiers;
•
het in stand houden van de weg en het waarborgen van de bruikbaarheid ervan;
•
het zoveel mogelijk waarborgen van de vrijheid van het verkeer;
•
het voorkomen of beperken van door het verkeer veroorzaakte overlast, hinder of schade;
•
de onder “besluiten” genoemde weg in eigendom, beheer en onderhoud is bij de gemeente Ridderkerk;
•
het treffen van een verkeersmaatregel een normale maatschappelijke ontwikkeling is waarmee een ieder kan worden geconfronteerd en waarvan de nadelige gevolgen in beginsel voor rekening van betrokkenen behoren te blijven;
•
onderhavige verkeersmaatregelen zijn besproken met de verkeersadviseur van de politie;
nemen, gelet op het voorgaande, de volgende
BESLUITEN:
1.
het instellen van een parkeerverbod aan de westzijde van de Leklaan, voor het deel gelegen tussen de huisnummers 62 en 68, door het aanbrengen van een onderbroken gele streep als bedoeld in art. 24.1.e van het RVV 1990;
2.
het verkeersteken aan te brengen zoals aangegeven op de bij dit verkeersbesluit behorende situatietekening.
Aldus besloten te Ridderkerk, 12 maart 2025
Burgemeester en wethouders van gemeente Ridderkerk,
Namens deze,
De heer L. Vredeveld
Manager Cluster Ruimte
(deze brief is digitaal goedgekeurd en daarom niet met de hand ondertekend)
Bezwaar
Belanghebbenden kunnen binnen 6 weken na de publicatiedatum tegen dit besluit een gemotiveerd bezwaarschrift indienen bij het college van burgemeester en wethouders van Ridderkerk, Postbus 271, 2980 AG Ridderkerk.
Het bezwaarschrift dient te zijn ondertekend en bevat tenminste het volgende:
a.
Naam en het adres van de indiener;
b.
De dagtekening;
c.
Vermelding van de datum en het kenmerk van het besluit waartegen het bezwaar is gericht;
d.
Een opgave van de redenen waarom men zich met de beschikking niet kan vinden.
Als u op de uitspraak in bezwaar niet kunt wachten en snel een voorlopige maatregel nodig is, kunt u de rechter daar om verzoeken. Dat verzoek kunt u indienen bij de voorzieningenrechter van de Arrondissementsrechtbank Rotterdam, Postbus 50951, 3007 BM Rotterdam. Dit kan alleen als u het bezwaarschrift al bij het college van burgemeester en wethouders heeft ingediend. Met uw verzoek aan de rechtbank moet u een kopie van het bezwaarschrift meesturen. Als u van deze mogelijkheid gebruik maakt, wordt u griffierecht berekend.
De hier aangeboden pdf-bestanden van het Staatsblad, Staatscourant, Tractatenblad, provinciaal blad, gemeenteblad, waterschapsblad en blad gemeenschappelijke regeling vormen de formele bekendmakingen in de zin van de Bekendmakingswet en de Rijkswet goedkeuring en bekendmaking verdragen voor zover ze na 1 juli 2009 zijn uitgegeven. Voor pdf-publicaties van vóór deze datum geldt dat alleen de in papieren vorm uitgegeven bladen formele status hebben; de hier aangeboden elektronische versies daarvan worden bij wijze van service aangeboden.