Dit ten behoeve van een nieuw aan te leggen weg binnen het plangebied De Copen, perceel LPK00-G-2635.
Laanwijk
Dit ten behoeve van een nieuwe straat ter hoogte van boerderij Laanwijk, aan de Lopikerweg oost 101B en 102, perceel LPK00-F-1722.
Het straatnaambesluit met de bijbehorende situatietekeningen ligt met ingang van 27 februari 2025 gedurende zes weken en dus tot en met 10 april 2025 ter inzage.
Het besluit tot vaststelling van de straatnamen is verzonden op 24 februari 2025.
Bezwaar
Als u het niet eens bent met dit besluit kunt u binnen 6 weken na datum van deze brief een bezwaarschrift indienen bij het college van burgemeester en wethouders van Lopik.
U dient binnen 6 weken na de dag van uitreiking of verzending van deze beschikking een gemotiveerd bezwaarschrift in bij het college van burgemeester en wethouders van Lopik, Postbus 50, 3410 CB Lopik. Het bezwaarschrift voorziet u van een naam en adres, de datum, de omschrijving van het betreffende besluit en de reden van het bezwaar en een ondertekening. Tevens zendt u zo mogelijk een afschrift van de beschikking en van eventuele overige stukken mee.
Het indienen van een bezwaarschrift schort de werking van een besluit niet op. Gelijktijdig met of na indiening van het bezwaarschrift kunt u daarom de Rechtbank Midden-Nederland, o.v.v. voorlopige voorzieningen, Postbus 16005, 3500 DA Utrecht (tel. 030-2233000) schriftelijk verzoeken de beslissing te schorsen of daarvoor een voorlopige voorziening te treffen. U geeft daarbij aan waarom u meent onevenredig in uw belangen getroffen te zijn, wanneer tot onmiddellijke uitvoe- ring van de beschikking wordt overgegaan. Bij deze procedure wordt griffierecht geheven. Wilt u weten hoeveel het griffierecht bedraagt, dan is het raadzaam om contact op te nemen met de griffie van de rechtbank.
Ingeval u vragen heeft over de beschikking dan kunt u desgewenst contact opnemen met de Afdeling Strategie, beleid en projecten, telefoon 0348-559955. Bij vragen over de procedure en het indienen van een bezwaarschrift kunt u contact opnemen met de secretaris van de bezwaarschriften commissie, telefoon 0348-559955.
Oude situatie De Copen:
Nieuwe situatie De Copen:
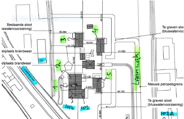
Oude situatie boerderij Laanwijk, Lopikerweg oost 101B en 102 in Lopik:
De hier aangeboden pdf-bestanden van het Staatsblad, Staatscourant, Tractatenblad, provinciaal blad, gemeenteblad, waterschapsblad en blad gemeenschappelijke regeling vormen de formele bekendmakingen in de zin van de Bekendmakingswet en de Rijkswet goedkeuring en bekendmaking verdragen voor zover ze na 1 juli 2009 zijn uitgegeven. Voor pdf-publicaties van vóór deze datum geldt dat alleen de in papieren vorm uitgegeven bladen formele status hebben; de hier aangeboden elektronische versies daarvan worden bij wijze van service aangeboden.