LEIDRAAD INRICHTING OPENBARE RUIMTE

Gemeente Waalre | d.d. 14-11-2024

Definitieve versie

1. Inhoudsopgave

 

1. Inhoudsopgave ............................................................................................................................................... 2

2. Inleiding .......................................................................................................................................................... 4

3. Ontwikkelingen bouwplannen ......................................................................................................................... 5

3.1. Verantwoordelijkheden procesmatig..................................................................................................... 5

3.2. Verantwoordelijkheid gemeente ........................................................................................................... 5

3.3. Verantwoordelijkheid ontwikkelaar ....................................................................................................... 5

3.4. Anterieure overeenkomst ..................................................................................................................... 5

4. Algemene eisen aan uitvoering....................................................................................................................... 6

5. Verkeer en mobiliteit ....................................................................................................................................... 6

5.1. Wegencategorisering............................................................................................................................ 6

5.1.1. Ontwerpuitgangspunten wegen .................................................................................................. 6

5.2. Fietsers................................................................................................................................................. 6

5.3. Parkeren............................................................................................................................................... 6

6. Wegen en materialisering ............................................................................................................................... 7

6.1. Elementenverharding ........................................................................................................................... 7

6.1.1. Wegen......................................................................................................................................... 7

6.1.2. Trottoirs....................................................................................................................................... 7

6.2. Asfaltverharding.................................................................................................................................... 7

6.2.1. Wegen......................................................................................................................................... 7

6.2.2. Bouwwegen ................................................................................................................................ 7

6.2.3. Fietspaden en fietsstroken.......................................................................................................... 7

6.2.4. Inritten......................................................................................................................................... 8

6.3. Kantopsluitingen................................................................................................................................... 8

6.4. Fundering en straatlagen...................................................................................................................... 8

6.5. Halfverharding ...................................................................................................................................... 8

6.6. Waterdoorlatende verharding ............................................................................................................... 8

6.7. Tabel materialisering ............................................................................................................................ 9

7. Openbare verlichting..................................................................................................................................... 10

8. Water .............................................................................................................................................................11

8.1. Afvalwater........................................................................................................................................... 11

8.2. Hemelwater ........................................................................................................................................ 11

8.3. Grondwater......................................................................................................................................... 11

8.4. Oppervlaktewater ............................................................................................................................... 11

8.5. Systemen............................................................................................................................................ 11

8.6. Tabel materialisering .......................................................................................................................... 12

8.7. Pompputten ........................................................................................................................................ 13

8.8. Putnummers ....................................................................................................................................... 13

8.9. Inspectie riolering ............................................................................................................................... 13

8.10. Revisie ondergrondse infrastructuur................................................................................................... 13

9. Groen............................................................................................................................................................ 14

9.1. Algemeen ........................................................................................................................................... 14

Pagina 3 van 26

9.2. Bomen, te handhaven ........................................................................................................................ 14

9.3. Bomen nieuw...................................................................................................................................... 14

9.4. Beplantingen....................................................................................................................................... 15

9.5. Bodem ................................................................................................................................................ 16

9.6. Gras en Gazon ................................................................................................................................... 16

9.7. Beheer................................................................................................................................................ 16

10. Sporten en spelen......................................................................................................................................... 17

10.1. Toestelkeuring en Inspectie................................................................................................................ 17

10.2. Beleidskaders..................................................................................................................................... 17

10.3. Richtlijnen voor Ontwerp .................................................................................................................... 17

10.4. Ontwerpeisen ..................................................................................................................................... 17

10.5. Uitgangspunten Situering en Omgeving ............................................................................................. 18

10.6. Uitgangspunten Omheining, Ondergrond en Toestellen..................................................................... 18

10.7. Afkeuringsnormen .............................................................................................................................. 18

11. Nutsvoorzieningen ........................................................................................................................................ 18

12. Uitvoering en overdracht............................................................................................................................... 19

12.1. Uitvoering ........................................................................................................................................... 19

12.2. Uitvoeringsplan................................................................................................................................... 19

12.3. Overdracht.......................................................................................................................................... 19

13. Bijlagen......................................................................................................................................................... 20

13.1. Standaardartikelen m.b.t. openbare ruimte in de anterieure overeenkomst ....................................... 20

Artikel 9 | Bouw- en woonrijp maken en vervaardigen bouwkavels............................................................... 20

Artikel 10 | Start werkzaamheden en uitvoering............................................................................................ 21

Artikel 11 | Overdracht Openbare ruimte ...................................................................................................... 21

Artikel 12 | Aanbestedingsverplichting .......................................................................................................... 22

13.2. Voorbeeldafbeeldingen wegcategorisering......................................................................................... 23

Erftoegangswegen en gebiedsontsluitingswegen ......................................................................................... 23

Overige ......................................................................................................................................................... 24

13.3. Principeoplossingen ........................................................................................................................... 26

 

2. Inleiding

 

Voor u ligt de Leidraad Inrichting Openbare Ruimte (LIOR) van de gemeente Waalre Deze leidraad is

bedoeld om een uniforme uitstraling en eenduidige afspraken te creëren binnen de gemeente.

 

Dit handboek wordt gebruikt door de gemeente bij reconstructie van bestaande en aanleg van nieuwe wegen in de openbare ruimte. Daarnaast is het ook leidend voor de inrichting van buitenruimte bij ontwikkelingslocaties. Na realisatie komt deze buitenruimte in beheer van de gemeente. Door dit document te volgen kan een ontwikkelaar zich in een vroeg stadium op de hoogte stellen van de te volgen standaarden.

 

De over te nemen openbare ruimte dient aan deze eisen te voldoen en wordt daarop getoetst voordat overname kan plaatsvinden. Bij onduidelijkheden of conflicten dient de ontwikkelaar tijdig in contact te treden en alternatieve oplossingen voor te stellen. Deze afspraken en kosten voor onderhoud over een periode van 10 jaar worden vastgelegd in een anterieure overeenkomst.

 

Locatie specifiek kan worden afgeweken van de in dit document benoemde standaarden.

Dit kan alleen in overleg met de gemeente, waarbij de gemeente beslissend is.

 

Naast dit document zijn ook de vigerende richtlijnen van de UAV, RAW en CROW leidend.

 

3. Ontwikkelingen bouwplannen

 

In dit hoofdstuk worden de primaire processen omschreven die moeten worden doorlopen om te komen tot de (her)ontwikkeling van de openbare ruimte rondom (woning)bouwplannen. Een voorbeeld hiervan is de herontwikkeling van een gebied door een initiatiefnemer die we hierna ontwikkelaar noemen.

3.1. Verantwoordelijkheden procesmatig

Bij de start van ontwikkelingen in samenwerking met ontwikkelaars is van belang dat zowel ontwikkelaar als gemeente hun verantwoordelijkheden kennen. In dit hoofdstuk worden de verantwoordelijkheden van de partijen beschreven.

3.2. Verantwoordelijkheid gemeente

De gemeente stelt het ambitieniveau vast en heeft een toetsende rol in het proces. Dit betekent dat de gemeente verantwoordelijk is voor:

  • Het vaststellen van project specifieke randvoorwaarden;

  • Het begeleiden en faciliteren van de ontwikkelaar gedurende het proces;

  • Het opstellen van de anterieure overeenkomst;

  • Voldoen aan afspraken uit de anterieure overeenkomst;

  • Binnen 6 weken schriftelijk reageren op (deel)producten van de ontwikkelaar die ter goedkeuring aan de gemeente worden voorgelegd;

  • Toezichthouding;

  • Tussentijdse controle uitvoering van werkzaamheden aan openbare ruimte;

  • Eindcontrole opgeleverde openbare ruimte;

  • Eventuele overname van openbare ruimte (gronden).

3.3. Verantwoordelijkheid ontwikkelaar

De ontwikkelaar is verantwoordelijk voor het totale planproces. Dit betekent dat hij zorg moet dragen voor zaken zoals:

  • Opstellen van een RAW-bestek voor toekomstige openbare ruimte, dit bestek ter goedkeuring voorleggen aan de gemeente;

  • Participatie (afstemming) met omwonenden en stakeholders, in samenspraak met gemeente;

  • Overleg met nutsbedrijven voeren voor de aanleg van nutsvoorzieningen;

  • Het opstellen en bewaken van de planning;

  • Tijdig indienen van vergunningsaanvragen (omgevingsvergunning, bouwvergunning, etc.);

  • Werkzaamheden uitvoeren conform deze LIOR;

  • Opdrachtverstrekking aan derden;

  • Rapportage aan gemeente;

  • Voldoen aan afspraken gemaakt in anterieure overeenkomst;

  • (Voorlopige) perceelsvorming kadastraal;

  • Grondverkoop notarieel organiseren.in samenspraak met gemeente;

  • Hanteren van de Omgevingswet.

3.4. Anterieure overeenkomst

Afspraken rondom het bouw- en woonrijp maken, de start en uitvoering van de werkzaamheden, de aanbestedingsverplichting van de ontwikkelaar en de overdracht van de openbare ruimte worden op procesniveau vastgelegd in de anterieure overeenkomst. De standaardartikelen uit de anterieure overeenkomst staan opgenomen in Bijlage: Standaardartikelen m.b.t. openbare ruimte in de anterieure overeenkomst. In de anterieure overeenkomst wordt een verwijzing gemaakt naar deze LIOR. In overeenstemming kunnen in de anterieure overeenkomst afspraken gemaakt worden over het afwijkingen van de kaders opgenomen in deze LIOR.

4. Algemene eisen aan uitvoering

 

De ontwikkelaar is verplicht aan te tonen dat alle onderdelen aan de gestelde eisen voldoen. In Hoofdstuk 12: Uitvoering en overdracht staan aanvullende zaken vermeld welke de projectontwikkelaar moet kunnen aantonen.

5. Verkeer en mobiliteit

 

Dit hoofdstuk werpt een beknopte blik op de verkeers- en mobiliteitsdynamiek in de Gemeente Waalre, met de focus op wegencategorisering, fietsinfrastructuur en parkeervoorzieningen.

5.1. Wegencategorisering

Gemeente Waalre kent 2 wegcategoriseringen:

 

  • 1.

    Erftoegangsweg

  • De Erftoegangsweg (ETW) is binnen de bebouwde kom onderworpen aan een maximumsnelheid van 30 km/u, terwijl daarbuiten een snelheid van 60 km/u gehanteerd wordt.

  • 2.

    Gebiedsontsluitingsweg

  • De Gebiedsontsluitingsweg (GOW) binnen de bebouwde kom kent een maximumsnelheid van 30 km/u of 50 km/u, terwijl buiten de bebouwde kom de snelheidslimiet is vastgesteld op enkel 50 km/u.

 

Voor voorbeeldafbeeldingen van de diverse wegcategoriseringen, zie Bijlage: Voorbeeldafbeeldingen wegcategorisering.

Voor alle weggebruikers zijn er duidelijke uitgangspunten vastgesteld, zoals beschreven in het Mobiliteitsplan van de Gemeente Waalre.

 

5.1.1. Ontwerpuitgangspunten wegen

Wegbreedte conform ASVV 2021. Maatvoering is van de situatie afhankelijke en dient daarom te

worden bepaald in overleg met de gemeente;

  • afwijkende breedtes zijn toegestaan conform de ASVV 2021 (CROW), mét goedkeuring van de gemeente (afhankelijk van bijvoorbeeld aanliggende parkeervoorzieningen en snelheidsregiem);

  • bij de ruimtereservering van de rijweg is het uitgangspunt om geen eenrichtingsverkeer toe te staan; mocht later blijken vat dit verkeerskundig noodzakelijk is, dan kan alsnog de weginrichting hierop aangepast worden;

  • in woonstraten dienen de bochtstralen minimaal gebaseerd te zijn op het ontwerpvoertuig “branpolance” zoals opgenomen in de ASVV 2021, uitgave van de stichting CROW; de woonstraten dienen ook toegankelijk te zijn voor (grote) vrachtwagens, zoals vuilniswagens en verhuiswagens.

  • Voor wegen buiten de bebouwde kom er dient gewerkt te worden volgens het handboek wegontwerp buiten de bebouwde kom, uitgave van de stichting CROW.

5.2. Fietsers

Voor fietsers zijn er duidelijke uitgangspunten vastgesteld, zoals beschreven in het Mobiliteitsplan van de Gemeente Waalre. Dit omvat de fietsnetwerken en ontwerpeisen volgens de ASVV 2021 en CROW-richtlijnen.

5.3. Parkeren

Wat betreft het parkeren van auto's, worden de uitgangspunten bepaald door de Nota Parkeernormen gemeente Waalre. De ontwerpeisen voor autoparkeren zijn zorgvuldig geformuleerd in overeenstemming met de richtlijnen van CROW. Evenzo worden fietsparkeervoorzieningen ontwikkeld volgens de vastgestelde Nota parkeernormen gemeente Waalre. Ontwerpen voor openbare fietsenstallingen dienen altijd met de gemeente te worden besproken.

De toepassing van elektrische oplaadpunten, als een duurzame toevoeging aan de fietsparkeervoorzieningen, dient altijd in overleg met de Gemeente Waalre te worden afgestemd voorafgaand en/of gedurende het ontwerptraject.

6. Wegen en materialisering

 

De materialisatie in de openbare ruimte is afhankelijk van de eerder gekozen wegcategorisering. Deze

staan weergegeven in de principeprofielen in de bijlagen. Afwijken van de aangegeven materialisatie

is alleen mogelijk als het materialen gelijkwaardig zijn als hetgeen omschreven en altijd in overleg met

de gemeente.

6.1. Elementenverharding

6.1.1. Wegen

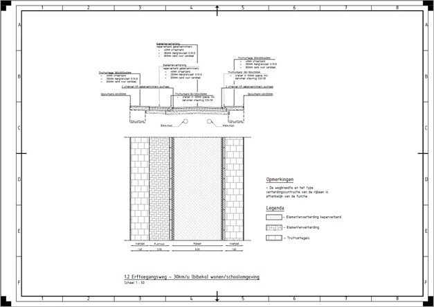
De toe te passen bestrating bestaat altijd uit gebakken materialen. De gebakken materialen betreffen straatbakstenen in keiformaat van Bylandt, met kwaliteit A4-12 en voorzien van een vellingkant (eventueel hergebruik mogelijk in overleg met de gemeente). De beschikbare kleuren zijn Terra Marrone, Terra Scura en Terra Romana, zoals aangegeven in de bijgevoegde principeprofielen.

 

Wat betreft parkeerplaatsen: elementenverharding (met antraciet "matje") en waar van toepassing

grasbeton.

 

6.1.2. Trottoirs

Voor de trottoirs in betonnen materialen worden grijze betontegels van 300x300x80 mm gebruikt. De combinatietegels en/of grasbetontegels in de erftoegangswegen buiten de bebouwde kom worden voorzien van een steunrug, een vlakke zijde en een hol-dol-verbinding.

 

Door het voorschrijven van deze specifieke materialen streeft de gemeente naar een uniforme uitstraling binnen de gemeente. Het gebruik van dezelfde producten in alle projecten minimaliseert kleurverschillen in verschillende straten.

6.2. Asfaltverharding

6.2.1. Wegen

Bij toepassing van asfalt dient ruim van tevoren een verhardingsadvies(constructieberekening) ter goedkeuring aan de gemeente, te worden overlegd:

  • levensduur asfalt bedraagt minimaal 30 jaar voor gehele constructie;

  • een “levensduurberekening asfalt” dient overlegd te worden aan de gemeente.

 

6.2.2. Bouwwegen

Tijdelijke bouwwegen worden aangelegd voor de duur van de bouwwerkzaamheden en volledig

verwijderd na afronding. In lijn met duurzaamheidsdoelstellingen heeft de Gemeente Waalre besloten

om voor deze bouwwegen volledig recyclebaar PR-asfalt te gebruiken. Een laagdikte van 70 mm blijkt

voldoende voor de belasting van een bouwweg, waardoor deze combinatie als standaard wordt

gehanteerd voor alle bouwwegen binnen de gemeente.

 

6.2.3. Fietspaden en fietsstroken

Fietspaden binnen de bebouwde kom en doorfietsroutes uitvoeren in rood asfalt (geen rode slijtlaag):

SMA 0/5 toplaag, kleur rood met de volgende samenstelling/kenmerken:

  • in plaats van bitumen het synthetisch bindmiddel type Mexphalt C toepassen;

  • van de vulstof 1,5% á 2,0% (op 100% aggregaat) vervangen door rode pigment (ferro-oxide);

  • als steenslag tilrood toepassen;

Fietspaden buiten de bebouwde kom uitvoeren in zwart asfalt SMA 0/5; bij verkeersklasse 2 geldt een

levensduur van 30 jaar voor de gehele constructie, er dient een verhardingsadvies

(constructieberekening) ingediend te worden.

 

6.2.4. Inritten

  • de standaardoprit bestaat uit een bandverlaging, e.e.a. afhankelijk van de situatie;

  • de inrit is aan beide zijden 0,5 m breder dan de oprit;

  • tegels bij inritten zijn minimaal 80mm dik;

  • indien in een straat reeds meerdere inritten van één type liggen, dan wordt een nieuwe inrit van datzelfde type gemaakt, ook al is dat niet conform de standaardinrit.

6.3. Kantopsluitingen

De voorgeschreven kantopsluitingen hebben allemaal een grijze kleur. In woonstraten wordt standaard een geleideband van 50/200x250 mm gebruikt als opsluiting. Op projectniveau kan hiervan worden afgeweken, bijvoorbeeld wanneer een trottoirband nodig is. Binnen de gemeente Waalre is de voorgeschreven trottoirband van 130/150x250 mm voor gebruik als trottoirband.

 

Waar wegverkeer in aanraking komt met deze banden, zoals bij inritten, worden opsluitbanden van 120x250 mm gebruikt. Voor situaties waar geen wegverkeer bij de banden komt, zoals op een trottoir, is een opsluitband van 100x200 mm voldoende.

 

Alle kantopsluitingen die in contact komen met verkeer worden geplaatst in stampbeton en de banden dienen voorzien te worden van een steunrug van (stamp-) beton met parelgrind (0,05 m3/m1); overige opsluitingen voor groenvakken en trottoir dienen te voldoen aan een minimale maat van 12x25 cm.

 

Hoeveelheid cement in stampbeton: 150 kg/m3.

6.4. Fundering en straatlagen

De weergegeven fundering en straatlagen in de principeprofielen in de bijlagen is de minimale eis van de gemeente. Per locatie en verkeersbelasting zal moeten worden berekend of de fundering voldoende sterk is, zodat deze voldoet aan de geldende richtlijnen op het gebied van draagkracht.

6.5. Halfverharding

De gemeente stelt eisen aan de uitstraling en materiaalgebruik van een halfverharding. Wanneer een halfverharding wordt toegepast dient er in het voortraject afstemming met de gemeente plaats te vinden. Als standaard wordt er bij de gemeente Achterhoeks Padvast toegepast.

6.6. Waterdoorlatende verharding

Zie tabel materialisering.

 

6.7. Tabel materialisering

Materialen verhardingsoorten

Elementenverharding

(wegen)

Straatbakstenen, keiformaat van Bylandt, met kwaliteit A4-12 en voorzien van een vellingkant. De beschikbare kleuren zijn Terra Marrone, Terra Scura en Terra Romana.

Elementenverharding

(trottoirs)

Grijze betontegels van 300x300x80 mm. De combinatietegels en/of grasbetontegels in de erftoegangswegen buiten de bebouwde kom

worden voorzien van een steunrug, een vlakke zijde en een hol-dol-verbinding

Asfaltverharding

(wegen)

Per project wordt bekeken wat de opbouw van het asfaltpakket wordt.

Asfaltverharding

(bouwwegen)

Volledig recyclebaar PR-asfalt. Laagdikte van 70 mm.

Asfaltverharding

(fietspad bibeko)

SMA 0/5 toplaag, kleur rood met de volgende

samenstelling/kenmerken:

• in plaats van bitumen het synthetisch bindmiddel type Mexphalt

C toepassen;

• van de vulstof 1,5% á 2,0% (op 100% aggregaat) vervangen door rode pigment (ferro-oxide);

• als steenslag tilrood toepassen;

Asfaltverharding

(fietspad BBK bubeko)

SMA 0/5 toplaag, kleur zwart. Bij verkeersklasse 2 geldt een levensduur van 30 jaar voor de gehele constructie, er dient een verhardingsadvies (constructieberekening) ingediend te worden.

Kantopsluitingen

In woonstraten wordt standaard een geleideband van 50/200x250 mm

gebruikt als opsluiting. Kleur: grijs. Op projectniveau kan hiervan worden afgeweken.

Binnen de gemeente Waalre is de voorgeschreven trottoirband

130/150x250 mm. Kleur: grijs.

Waar wegverkeer in aanraking komt met deze banden, zoals bij inritten, worden opsluitbanden van 120x250 mm gebruikt. Voor situaties waar geen wegverkeer bij de banden komt, zoals op een trottoir, is een opsluitband van 100x200 mm voldoende.

Alle kantopsluitingen die in contact komen met verkeer worden geplaatst in stampbeton en de banden dienen voorzien te worden van een steunrug van (stamp-) beton met parelgrind (0,05 m3/m1); overige opsluitingen voor groenvakken en trottoir dienen te voldoen aan een minimale maat van 12x25 cm.

Hoeveelheid cement in stampbeton: 150 kg/m3

Halfverharding

4cm Achterhoeks Padvast®0/6 mm

8cm Achterhoeks Padvast® 0/14 cm

Ondergrond

Waterdoorlatende

verharding

NCB klinkers 15,75x11,5x10 t1 open grijs nok

Fundering: parkeerplaatsen worden voornamelijk aangelegd met BVB

Urban Grastelgelfundatie 60-40 Allround. Bij een zwaar belastbare parkeerplaats voor bussen en vrachtverkeer wordt de fundering opgebouwd met 25 cm BVB Urban Grastegelfundatie 70-45, met daarop een vlijlaag van Urban Grastegelfundatie 60-40. Hierdoor kunnen de grastegels snel en vlak gelegd worden.

Tabel 1: toe te passen materialen verharding

7. Openbare verlichting

 

Openbare verlichtingsplannen dienen of door de Firma Nobralux uit Schijndel voor rekening

opdrachtgever/projectontwikkelaar te worden vervaardigd of plannen die door derden worden

opgesteld dienen op kosten van opdrachtgever/productontwikkelaar te worden getoetst.

 

Toetsingscriteria hierbij zijn:

  • Materialisatie.

  • Planintegratie)afstemmen overige discipline.

  • Verlichtingsniveau (NSVV).

  • Lichtbeeld.

  • Duurzaamheid.

Verlichtingsobjecten worden overgenomen door de gemeente na opleverinspectie en

goedkeuringsrapport door Nobralux uit Schijndel. Kosten voor de rapportages en opleverinsectie

komen voor rekening van de opdrachtgever/ontwikkelaar.

 

Revisie:

  • Locatie: XY-coördinaten.

  • Materialen (mast en armatuur).

  • Type fabrikant.

  • Kleur.

  • Plaatsingsdatum.

8. Water

 

In dit hoofdstuk staan de randvoorwaarden m.b.t. afvalwater, hemelwater en grondwater uitgewerkt.

8.1. Afvalwater

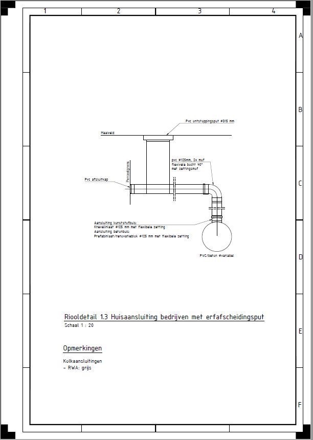
Elk adres heeft recht op één aansluiting op het hoofdriool voor het lozen van afvalwater, indien er een afzonderlijke toegangsdeur is op het maaiveld. De kosten voor het realiseren worden doorgerekend aan de aanvrager. De eerste aansluiting op het vrijvervalriool heeft een standaardbedrag van €1250. Een daaropvolgende aansluiting is gebaseerd op de werkelijke kosten. Voor een nieuwe aansluiting in het buitengebied waar drukriolering ligt, dienen de werkelijke kosten te worden betaald. Er dient een gescheiden riolering te worden tot aan de perceelsgrens met een maximum diameter van 125mm (incl. een ontstoppingsstuk). Voor afvalwater wordt bruine pvc toegepast.

8.2. Hemelwater

In het bestemmingsplan worden de bergingseisen voor hemelwater vastgesteld. Zonder wijziging van bestemmingsplan, is in het Programma water, riolering en klimaat 2023-2027 (PWRK) meegenomen dat minimaal 10% van de berging en infiltratie bovengronds moet plaatsvinden en bij voorkeur afstroming bovengronds. In de hemelwaterverordening is bepaald dat de bergingseis voor bestaande en verwijderde verharding 40 mm/m2 is. Bij een toename van de verharding met meer dan 500m2 gelden de eisen van de keur Waterschap de Dommel.

Elke nieuwbouw dient een gescheiden rioolstelsel te krijgen tot aan perceelsgrens indien na oordeel van de gemeente het regenwater niet op eigen perceel opgevangen en kan infiltreren. Voor hemelwater wordt grijze pvc toegepast. Aanleg van huisaansluitingen conform NEN 3215, waarin o.a. een ontlastput is opgenomen.

Daar waar geen vrijvervalriolering ligt, kan geen hemelwater aangesloten worden op de riolering en dient al het hemelwater op eigen terrein te worden verwerkt, waarbij eventueel gebruik gemaakt kan worden van een overstort op een sloot.

8.3. Grondwater

In het Programma water, riolering en klimaat 2023-2027 (PWRK) van de gemeente Waalre is vastgesteld dat het peil van de woningen zorgt voor voldoende drooglegging boven de GHG (Gemiddeld hoogste grondwaterstand). Voor de droogleggingseisen, zie PWRK.

Het lozen van opgepompt bronneringswater kan uitsluitend in overleg met gemeente of Waterschap, afhankelijk van lozingspunt. Er is altijd een meld- en registratieplicht bij het toepassen van bronnering.

8.4. Oppervlaktewater

Indien er duikers aangelegd moeten worden dienen deze van beton te zijn en minimaal Ø 300 mm. De resterende lengte van de sloot moet minimaal 6 meter zijn.

8.5. Systemen

Voor het toepassen van rioleringssystemen zijn verschillende mogelijkheden toepasbaar, in onderstaande tabel zijn deze weergegeven.

Rioleringssystemen

Rioolsysteem

Gescheiden stelsel

Afwateringssysteem

Middels straat- of trottoirkolken om de 25 meter maximaal

Infiltratievoorzieningen

Ondergronds middels buis of onder bestrating, voorkeur

bovengronds middels een wadi of vijver. Let op: een deel van

de gemeente Waalre valt in een

grondwaterbeschermingsgebied. Hier is infiltratie verboden en kan er uitsluitend zichtbaar worden geborgen en eventueel geïnfiltreerd.

Uitstroomvoorzieningen

Conform eisen van het Waterschap of gemeente.

 

Tabel 2: toe te passen rioleringssystemen

 

In het rioolsysteem komen kruisende leidingen voor. Bij deze kruisende leidingen wordt een verticale

afstand van minimaal 150 mm voorgeschreven. De horizontale afstand bedraagt minimaal 300 mm, ook tussen twee rioolputten.

De dekking op de rioolbuizen is minimaal 1000 mm bij betonbuizen en minimaal 1200 mm bij PVC-buizen. Afwijken kan alleen i.o.m. gemeente en is afhankelijk van o.a. de verkeersbelasting.

8.6. Tabel materialisering

In verband met het aspect beheer en onderhoud is gekozen om de toe te passen materialen ten aanzien van waterhuishouding voor te schrijven.

Alle rioleringsmaterialen dienen voorzien te zijn van KOMO keur en PVC materialen dienen te bestaan uit gerecycled materiaal.

In onderstaande tabel zijn de verschillende materialen voorgeschreven, tevens zijn van de genoemde onderdelen details toegevoegd in de bijlagen.

Materialen rioleringssystemen

Rioolsysteem

Afvalwater in bruine pvc Ø 200 mm t/m Ø 315 mm, groter in beton.

Regenwater altijd in beton minimaal Ø 300 mm, geldt ook voor duikers.

Voldoende afschot vuilwater aan te tonen middels rioleringsberekening,

minimum HWA afschot 1:1000. De maximale putafstand voor een

bereikbare zandvangput is 100m.

Rioolputten

Betonputten, minimaal Ø800 of 800 x 800 mm, met mangat 600x600.

Deksel, Struyk-Verwo Basic SR 23 (of gelijkwaardig) zwaar verkeer

met opschrift afhankelijk van type rioolsysteem:

• Gemengd riool zonder opschrift;

• Afvalwater met opschrift 'VUILWATER', en VW in putrand;

• Regenwater met opschrijft REGENWATER’ en RW in putrand;

• Infiltratieriool met opschrift ‘INFILTRATIEWATER’ en IW in

putrand.

Afwateringssysteem

• Straatkolk, SVA Group, S 1300/80 M-line GB1

• Trottoirkolk (bij trottoirband 13/15) , SVA Group, T 1271/90 M line GB1

• Trottoirkolk (bij trottoirband 7/20) , SVA Group, T 1587/90 M line GB1

• Trottoirkolk (bij RWS-band) , SVA Group, T 1370-2/90 M-line

GB1

Uitstroomvoorzieningen

Prefab uitstroomvoorziening en taludbekleding

Indien uitmonding > Ø 300 mm dan voorzien van een rooster.

Huis-/kolkaansluitingen

Op particulier terrein tegen perceelsgrens;

• HWA middels ontstoppingsstuk op gemeente terrein (max Ø

160 mm) Kleur: grijs SN8.

• DWA middels ontstoppingsstuk op gemeente terrein (max. Ø

125 mm) Kleur: bruin SN8.

Op industrieterrein DWA middels een erfscheidingsput.

Uitleggers tijdens bouwfasering aanbrengen.

Bovengrondse

hemelwatervoorzieningen

Wadi: dienen toegankelijk te zijn met een talud van 1 op 5 en een

breedte van 3m. Bodem 10 cm boven GHG. Maximale waterdiepte 40

cm. Waakhoogte 30 cm.

Vijver: bodem 10 cm onder GLG.

Sloten: talud max 1:1,

Onderhoud: onderhoudsstrook van 3m indien niet aan een zijde

toegankelijk via de openbare weg.

 

Tabel 3: toe te passen materialen rioleringssystemen

8.7. Pompputten

Materiaal pompen: drukriool voorkeur PE put, Gemaal in beton.

De pompputten bij drukriolen worden standaard uitgevoerd met een betonnen afdekplaat. De deksel is rond en heeft de zwaarste verkeersklasse.

De besturingskast dient te zijn in de kleur RAL 6009. Vanuit de gemeente wordt een standaardslot beschikbaar gesteld.

Grotere pompputten, gemalen en randvoorzieningen zijn maatwerk en dienen te worden voorzien van telemetrie van i-View.

Pompcapaciteiten dienen te worden bepaald middels een berekening.

8.8. Putnummers

Bij ontwerpen dienen bij de gemeente de gemeentelijke putnummers te worden opgevraagd. Deze kunnen gebruikt worden voor de puttenstaat, revisie en opleveringsinspectie.

8.9. Inspectie riolering

De controle van het inwendige van de riolering op de aanwezigheid van ongerechtigheden vindt plaats door middel van een camera-inspectie. Elke voeg en inlaat, en eventuele schadeaspecten dienen gedetailleerd geïnspecteerd en vastgelegd te worden op opname. Daarnaast dienen in ieder geval de volgende aspecten te worden ingemeten: hoever draaiing, deformatie en helling. Deze digitale opname voorzien van rapportage, foto’s en video’s dient in enkelvoud ter beschikking gesteld te worden aan de directie. Alsmede de meetresultaten en RIBX.

8.10. Afkeuringsnormen

Geen enkel schadebeeld > 1 mag voorkomen en te meten schadebeelden (hoekverdraaiing, deformatie en verplaatsing) mogen nooit boven de afkeurnorm komen van de fabrikant.

8.11. Revisie ondergrondse infrastructuur

De revisie van ondergrondse infrastructuur dient digitaal ter goedkeuring aan de gemeente Waalre aangeleverd te worden als een vectorbestand (CAD).

Verder gelden de volgende eisen aan de revisie tekeningen:

  • Algemene NLCS standaard is van toepassing.

  • Revisie dient voorzien te zijn van datum en paraaf;

  • Op de hoofdtekening dienen perceelsgrenzen, bebouwing met huisnummer en straatnaam aangegeven te zijn (BGT + Kadastrale ondergrond);

  • Revisie dient ingetekend te zijn volgens de Rijksdriehoek (RD)-coördinaten.(= GBKN ondergrond, deze mag niet verschaald of geroteerd te worden);

  • Huisaansluitingen tevens vast te leggen in RIOX incl. minimaal 3 foto’s per aansluiting.

  • Op de revisietekening dienen de door de gemeente Waalre vastgestelde putnummers gebruikt te worden en verder dient op de hoofdtekening (schaal 1:500) het volgende weergegeven te worden:

  • Ten aanzien van putten: putnummer met putdekselhoogte in meter +NAP;

  • Ten aanzien van riolering: b.o.b., stroomrichting, materiaal, diameter en lengte

  • streng.

  • Ontstoppingsstukken en erfscheidingsputjes incl. maatvoering (1:200)

  • Infiltratie voorzieningen: bodemhoogten en bovenzijde in NAP+.

  • Zandvangputten (verdiepte bodem) bij put/kolk vermelden.

9. Groen

9.1. Algemeen

Bij de keuzes voor nieuwe groeninrichting is het uitgangspunt dat het totale straatbeeld zo spoedig mogelijk past in de (directe) omgeving. Er dient een juiste balans gevonden te worden in grootte van groen en de verwachte periode om dit totaalbeeld te bereiken. Het Beleid en Beheerplan Groen en Bomen (2020) van de gemeente Waalre is hiervoor leidend.

De exploitant dient een groeninrichtingsplan als onderdeel van het inrichtingsplan openbare gebied (voorontwerp) voor te leggen aan de gemeente Waalre ter instemming.

De werkzaamheden uit het bestek dienen te voldoen aan de voorschriften opgenomen in de RAW systematiek.

Voor wat betreft het toekomstig openbaar groen zal speciale aandacht uitgaan naar:

  • Vergroten van biodiversiteit;

  • Klimaat, bestrijding van droogte en wateroverlast;

  • Luchtkwaliteit, CO2 reductie;

  • Innovatie;

  • Duurzaamheid;

  • Bodem;

  • Beschermende maatregelen voor het inpassen en handhaven van bestaande bomen, zie laatste versie Handboek Bomen van het Norminstituut Bomen;

  • Gevolgen (tijdelijk) verlagen waterstand in verband met civieltechnische werkzaamheden;

  • Het opwaarderen van de gebiedseigen grond ten behoeve van bodemverbetering;

  • Het duurzaam verbeteren van groeiplaatsen van bestaande bomen;

  • In Nederland milieuvriendelijk of biologisch gekweekte bomen.

  • Het voorkomen van wortelopdruk van verhardingen;

  • Nazorg, onderhoud en plantgarantie.

  • Wet natuurbescherming;

  • Kapbeleid(Groene Kaart);

9.2. Bomen, te handhaven

Voorafgaand aan de werkzaamheden dient door de exploitant een boomeffectanalyse (BEA) uitgevoerd te worden en een boombeschermingsplan (inclusief tekening) worden aangeleverd;

De groeiplaats moet duurzaam worden verbeterd waardoor de doorwortelbare ruimte significant zal toenemen. Uitgangspunt hiervoor is methode TFI of gelijkwaardig.

Bomen worden alleen gekapt als aantoonbaar is dat duurzame instandhouding boomtechnisch niet mogelijk is

Voor te handhaven bomen moet altijd een boombeschermingsplan worden opgesteld. Deze dient t.a.t. in een schaftkeet en andere soortgelijke voorzieningen te worden opgehangen. Daarnaast moet werken bij bestaande bomen altijd onder toezicht van een bomenwacht (ETT'er).

Het Handboek Bomen(laatste versie) van het Norminstituut Bomen en het Beleid en Beheerplan Groen en Bomen (2020) van de gemeente Waalre zijn leidend.

9.3. Bomen nieuw

Het toepassen van bomen in het openbaar gebied moet altijd in overleg met de gemeente Waalre. Er dient geïnvesteerd te worden in een duurzame, biodiverse en klimaatbestendige boomstructuur, met bijzondere aandacht voor een hoogwaardig en duurzaam ingerichte groeiplaats:

  • De bomen moeten worden voorzien van een goede groeiplaats:

  • opgebouwd met producten conform de productcatalogus van BVB Landscaping of gelijkwaardig; toevoeging van Biochar en bentoniet of gelijkwaardig zijn toegestaan.

  • er moet een grondmonster genomen worden door ontwikkelaar/voorbereider. Inc; advisering over hoeveelheid en samenstelling. Alles moet organisch zijn. Geen kunstmatige bemesting.

  • met een minimale diepte van 1,00 meter en maximaal 0.10m boven de hoogste grondwaterstand;

  • de oppervlakte is afhankelijk van de boomgrootte, maar tenminste 6 m2 (conform bomenmonitor Norminstituut Bomen);

  • de inhoud is afhankelijk van de soort, maar tenminste minimaal 10 m3; (conform bomenmonitor Norminstituut Bomen);

  • Alle bomen dienen geleverd te worden met een draadkluit;

  • De groeiplaats (ondergronds en bovengronds), de groeiplaatsomstandigheden, functie, locatie en gewenste beeldkwaliteit moet op de soort zijn afgestemd;

  • De soort dient afgestemd te worden op klimatologische omstandigheden en dienen klimaatbestendig te zijn;

  • Minimale maat voor een boom is 18-20 (stamomtrek in cm op 1,0 m hoogte);

  • Voor solitaire bomen, die echt blikvanger moeten worden, geldt een grotere maat. Deze worden in overleg met de gemeente uitgekozen;

  • De stam dient ter voorkoming van mogelijke schade tenminste 1,5 meter vanaf de rijbaan of parkeerplaats te zijn gelegen en 2,0 meter vanaf de erfgrens. Daarnaast dient rekening te worden gehouden met vrije afstanden vanaf lichtmasten, kabels en leidingen;

  • Bij bomen voorzien van een adequate watergeefsysteem zoals gietranden. Voor het monitoren van het water geven moet per straat minimaal 1 vochtsensor worden aangebracht. Merk en type in overleg met de gemeente;

  • In voorkomende situaties wortelgeleiding toepassen ter voorkoming van overlastsituaties door oppervlakkige wortelgroei;

  • Bomen bij voorkeur alleen aanplanten in gazon of beplanting en bomen in verharding zoveel als mogelijk voorkomen. Voor eisen groeiplaats onder verharding zie Het Beleid en Beheerplan Groen en Bomen (2020). Tenzij wordt voldaan aan eisen groeiplaatsverbetering conform Het Beleid en Beheerplan Groen en Bomen (2020).

  • Bomen bij voorkeur in gazon en voorzien van anti-maaischade-palen.

9.4. Beplantingen

Er dient geïnvesteerd te worden in duurzame, biodiverse en klimaatbestendige beplanting, met

bijzondere aandacht voor een kwalitatief goede bodem en hoogwaardige beplanting.

Het Beleid en Beheerplan Groen en Bomen (2020) van de gemeente Waalre is leidend. De status van

de groenstructuur (dorp of wijk) wordt vooraf en in overleg met de gemeente Waalre bepaald. In dit

verband is de functie van Dorpsstructuur hoogwaardig en representatief en de Wijkstructuur

functioneel. Voor wat betreft het toekomstig openbaar groen wordt met name gelet op:

  • Vergroten van biodiversiteit;

  • Klimaat, bestrijding van droogte en wateroverlast;

  • Luchtkwaliteit, CO2 reductie;

  • Duurzaamheid;

  • Bodem;

  • Innovatie;

  • Het opwaarderen van de gebiedseigen grond ten behoeve van grondverbetering;

  • In Nederland milieuvriendelijk of biologisch gekweekt plantmateriaal;

  • Nazorg, onderhoud en plantgarantie.

9.5. Bodem

  • Storende lagen dienen te worden gebroken. Vervolgens grond op basis van grondonderzoek analyseren;

  • Grond voor gazon en plantvakken niet uitwisselen maar op basis van de resultaten van het grondonderzoek tot minimaal 0,6 meter (in sommige gevallen 0,80 meter. Afhankelijk van GHG) meterplanmatig opwaarderen en/of bemesten;

  • Er dient een bemestingsadvies te worden opgesteld op basis van het grondonderzoek;

  • Grond(teelaarde) voor aanvulling moet zijn samengesteld conform de Standaard RAW-bepalingen;

  • Ontwerpeisen plantvakken volgens de minimale technische richtlijnen in het Beleid en Beheerplan Groen en Bomen (2020) van de gemeente Waalre;

  • Plantvakken na aanplant afstrooien met 8-10 cm bladmulch. Hoogte plantvakken na afstrooien -/- 5 tot 10 cm onder de band/ bestrating;

  • Er mogen alleen organische meststoffen worden toegepast;

  • Het toe te passen sortiment moet worden afgestemd op lokale klimatologische omstandigheden;

  • Het toe te passen sortiment moet klimaatbestendig zijn;

  • Monotone groenstructuren mogen in het kader van het bevorderen van biodiversiteit niet voorkomen;

  • Beplanting wordt voor aanplant door de gemeente Waalre gekeurd;

  • Het toepassen van plastic potten of gelijkwaardig is niet toegestaan.

9.6. Gras en Gazon

  • Bermen inrichten conform CROW Veilige inrichting van bermen niet-autosnelwegen;

  • Bermen alleen inzaaien met een bloemrijk gras of kruidenrijk mengsel;

  • Gazonmengsels afstemmen op plaatselijke bodemgesteldheid;

  • Het toepassen van graszoden kan alleen in overleg met de gemeente Waalre;

  • Gazon, gras en bermmengsels dienen ter goedkeuring aan de gemeente Waalre te

  • worden voorgelegd.

9.7. Beheer

Het openbaar groen dient de eerste 3 jaar na aanleg onderhouden te worden overeenkomstig beeldkwaliteitsniveau A van de beeldkwaliteitscatalogus van het CROW.

  • Alle bomen en beplantingen moeten bij oplevering leven, groeien en gesloten zijn;

  • Voor bomen geldt dat er scheutlengte behorende bij de soort zichtbaar moet zijn.

  • Bermen moeten natuur technisch of ecologisch worden beheerd indien mogelijk.

10. Sporten en spelen

 

Dit hoofdstuk richt zich op de cruciale aspecten van een veilige en stimulerende speelomgeving in de Gemeente Waalre. Het streven is om speelruimtes te ontwikkelen die niet alleen voldoen aan wettelijke normen en veiligheidsvoorschriften maar ook actief bijdragen aan het bevorderen van een gezonde leefstijl.

In het streven naar een gezonde en actieve leefomgeving is het van cruciaal belang dat speeltoestellen voldoen aan de geldende normen en veiligheidsvoorschriften. Hierbij is het Warenwetbesluit attractie- en speeltoestellen (WAS) een leidraad, waarbij rekening wordt gehouden met de NEN-EN normeringen.

10.1. Toestelkeuring en Inspectie

Jaarlijks dient een keuring plaats te vinden door een gecertificeerde instantie. Bijbehorende keuring en informatie over de speeltoestellen en de locatie moeten middels een digitaal logboek worden overgedragen aan de gemeente.

10.2. Beleidskaders

De ontwikkeling en inrichting van speelruimtes worden gestuurd door diverse beleidsdocumenten, waaronder het Leefstijlakkoord Gezond Waalre, het Plan van Aanpak Gezond en Actief Leven akkoord, en het Raadsprogramma 2022-2026: stimuleren van bewegen en spelen in de openbare ruimte. Deze documenten benadrukken het belang van beweging en spelen in de openbare ruimte als middel om een gezonde leefstijl te bevorderen.

Daarnaast werken we vanuit het gedachtengoed van positieve gezondheid. Van de 6 dimensies binnen positieve gezondheid, is er een ruimtelijke vertaling gemaakt. De toolkit die hiervoor gemaakt is zorgt ervoor dat diverse belanghebbenden meedoen bij de inrichting van de woon- en leefomgeving.

Het is namelijk mogelijk om hiermee het ‘andere gesprek’ te voeren en te focussen op behoeften, kansen en mogelijkheden. Gezondheid, kwaliteit van leven, eigen regie en betrokkenheid van inwoners krijgen hiermee een plaats in het ruimtelijk domein.

10.3. Richtlijnen voor Ontwerp

Bij het ontwerpen van speel- en beweegomgevingen wordt gebruikgemaakt van het Beweegvriendelijke Omgeving Model, dat hardware, software en orgware aspecten integreert.

Belangrijke stakeholders worden betrokken om gezamenlijk tot weloverwogen keuzes te komen. De omgeving moet uitdagend zijn en uitnodigen tot beweging, met variërende elementen voor jong en oud.

10.4. Ontwerpeisen

De gemeente Waalre stelt (ontwerp)eisen voor een inclusieve speel- en beweegomgeving, waarbij samenwerking met de omgeving en stakeholders centraal staat:

  • Ontwerpen gebeurt altijd in samenspraak met de omgeving en relevante stakeholders.

  • Inclusief spelen en bewegen staat centraal, met bijvoorbeeld rolstoeltoegankelijke ondergronden en markeringen voor blinden/slechtzienden.

  • Vroegtijdige betrokkenheid van regisseurs en/of adviseurs uit het sport/gezondheidsdomein is een vereiste (regisseur Gezond & Actief Waalre / beleidsadviseur sport / beleidsadviseur gezondheid).

  • Stimulering van ontmoetingen in de speel- en beweegomgeving is een belangrijk uitgangspunt waar rekening mee gehouden dient te worden in het ontwerpproces.

10.5. Uitgangspunten Situering en Omgeving

Gedurende het ontwerpproces dient rekening te worden gehouden met de volgende uitgangspunten op het gebied van situering en omgeving:

  • Mogelijkheid tot sociale controle.

  • Voldoende verlichting voor een veilige omgeving.

  • Aparte zones voor sporten en spelen conform regelgeving.

  • Natuurlijke en groene inrichting van de omgeving.

10.6. Uitgangspunten Omheining, Ondergrond en Toestellen

Gedurende het ontwerpproces dient rekening te worden gehouden met de volgende uitgangspunten op het gebied van omheining, ondergrond en toestellen:

  • Voorkeur voor geen omheining om de drempel tot spelen te verlagen. Wel passen we omheining toe om de speel/beweegruimte te scheiden van de openbare weg i.h.k.v. veiligheid.

  • Geschikt bodemmateriaal met valdemping voor speel- en beweegtoestellen.

  • Gecertificeerde toestellen met meerjarige garantie en duurzame materialen, zoals hout beoordeeld als duurzaam door TPAC.

10.7. Afkeuringsnormen

Speeltoestellen dienen te voldoen aan de Warenwetbesluit attractie- en speeltoestellen (WAS) en de uitgangspunten zoals hierboven benoemd, tenzij anders overeengekomen in samenspraak met de gemeente Waalre.

11. Nutsvoorzieningen

 

Wat betreft kabels en leidingen gelden de volgende aandachtspunten:

  • De verantwoordelijkheid voor het verleggen of aanleggen van kabels en leidingen ligt bij de projectontwikkelaar.

  • De ontwikkelaar dient zelf contact te onderhouden met nutsbedrijven inzake deze werkzaamheden.

Voor de plaatsing en benodigde ruimte voor kabels en leidingen verwijzen we naar de bijlagen, waarin de eisen voor het tracé van kabels en leidingen zijn opgenomen. Deze dienen onder het voetpad te worden aangelegd en buiten de plantvakken.

Nutskasten moeten op een zodanige manier worden geplaatst dat ze geïntegreerd zijn in de omgeving, bij voorkeur in een haag of andere begroeiing. Hierbij dient aan één zijde de bereikbaarheid te worden gewaarborgd, zodat de kast geen vrijstaand object vormt. Buiten de bebouwde kom moeten de kasten zijn afgewerkt in de kleur RAL 6009, binnen de bebouwde kom in de kleur 7016 RAL.

Aanvullende aandachtspunten en eisen zijn te vinden in de actuele versie van de Verordening Ondergrondse Infrastructuur (VOI).

12. Uitvoering en overdracht

12.1. Uitvoering

Tijdens de realisatiefase wordt door de gemeente Waalre een toezichthouder aangesteld. Deze houdt toezicht op de werkzaamheden en of deze conform afspraak worden uitgevoerd. Verder dient de mogelijkheid geboden te worden dat de toezichthouder de bouwvergaderingen bij kan wonen, en worden eventuele afwijkingen ten opzichte van de gemaakte plannen vooraf aan hem voorgelegd en geaccordeerd. De uit te voeren werkzaamheden dienen conform een bestek te worden vastgelegd en aanbesteed.

12.2. Uitvoeringsplan

Naast het (groen)bestek, inclusief tekeningen, dient voorafgaand aan de realisatiefase ook een uitvoeringsplan aangeleverd te worden, waarin het volgende is opgenomen:

  • Beschrijving van de bouwfasering (indien nodig ook tekeningen);

  • Verkeersplan (hoe wordt omgegaan met bouwverkeer, bereikbaarheid van de bewoners, hulpdiensten en indien van toepassing openbaar vervoer);

  • Algemeen tijdschema waarin de diverse bouw-/ realisatiefasen in terugkomen;

  • Communicatieplan;

  • Inrichtingsplan van de bouwplaats:

  • Tijdelijke verlichting:

  • Tijdelijke aansluitingen op bestaande (boven en ondergronds) infrastructuur.

12.3. Overdracht

Voordat de openbare ruimte wordt overgedragen aan de gemeente Waalre en een oplevering plaatsvindt, dienen de volledige revisiegegevens aangeleverd te zijn en te zijn goedgekeurd. Hierin moeten alle gevraagde onderdelen aangetoond zijn.

De aan te tonen onderdelen zijn:

  • Rioolrevisie- en inspectie, inclusief inlaten en huisaansluitingen (voor aanleg fundering);

  • Verdichting van de rioolsleuf;

  • Verdichting van het cunet;

  • Verdichting van de fundering (voor aanleg verharding);

  • De ingemeten digitale topografie van het ontwikkelde gebied in IMGeo StuF Xml;

  • Revisie bovenbouw en openbare verlichting;

  • Indien relevant: digitale logboeken goedkeuring speelvoorzieningen;

  • Revisie groen inclusief sortiment.

13. Bijlagen

13.1. Standaardartikelen m.b.t. openbare ruimte in de anterieure overeenkomst

 

Artikel 9 | Bouw- en woonrijp maken en vervaardigen bouwkavels

9.1 Ontwikkelaar verplicht zich om voor eigen rekening en risico en met inachtneming van het bepaalde in deze Overeenkomst de percelen binnen het Plangebied kadastraal bekend gemeente Waalre, sectie X nrs. X het Project te realiseren.

 

9.2 Het Bouw- en Woonrijp maken geschiedt door of vanwege en voor rekening en risico van Ontwikkelaar.

 

9.3 Ontwikkelaar zal bij het Bouw- en Woonrijp maken de volgende bescheiden en uitgangspunten in acht nemen:

• het Project als omschreven in Artikel 4 van deze Overeenkomst;

• de door de Gemeente goedgekeurde bestekken en technische omschrijvingen.

 

9.4 De werkzaamheden voor het Bouw- en Woonrijp maken van het deel van het Plangebied als bedoeld in artikel 8.1 worden door Ontwikkelaar uitgewerkt in een RAW-bestek inclusief de benodigde technische tekening. Het RAW-bestek wordt in concept aan de Gemeente ter beoordeling voorgelegd. Met inachtneming van de op- en aanmerkingen van de Gemeente op het concept, wordt vervolgens een definitief RAW-bestek aan de Gemeente ter goedkeuring overhandigd. Voor zover Ontwikkelaar nadien van het door de Gemeente goedgekeurde

RAW-bestek wil afwijken, is voorafgaande schriftelijke toestemming van de Gemeente vereist.

 

9.5 De aanleg en installatie, het verleggen daartoe gerekend, van nutsvoorzieningen (gas, water, elektriciteit, telefoon en centrale-antenne-inrichting (daaronder uitdrukkelijk niet te begrijpen de openbare verlichting en brandkranen met openbare geleidingen) voor de realisatie van het Plangebied zal op uitnodiging van Ontwikkelaar door de betreffende nutsbedrijven geschieden. De kosten die verband houden met voornoemde aanleg en installatie zijn voor

rekening en risico van Ontwikkelaar (ook indien de Gemeente op verzoek van de nutsbedrijven optreedt als opdrachtgever voor die werken) en zijn niet in de Exploitatiebijdrage begrepen.

 

9.6 Het toezicht zal door de Gemeente worden uitgeoefend in het kader van haar publiekrechtelijke taakuitoefening en als toekomstig eigenaar van de Openbare ruimte. Ontwikkelaar zal de Gemeente te allen tijde in de gelegenheid stellen deze taak uit te oefenen. De Gemeente neemt daarbij uitdrukkelijk niet enige verantwoordelijkheid van

Ontwikkelaar over.

 

9.7 Ontwikkelaar, dan wel de uitvoerend hoofdaannemer, draagt zorg voor een CAR-verzekering voor de uitvoering van de werkzaamheden. De CAR-verzekering dekt de schade aan gemeentelijke eigendommen, wettelijke aansprakelijkheid en het werk zelf. Ontwikkelaar verstrekt, op eerste verzoek van de Gemeente, een kopie van verzekeringspolis aan de Gemeente.

 

9.8 Ontwikkelaar vrijwaart de Gemeente voor iedere aansprakelijkheid ter zake de door

Ontwikkelaar of door hem ingeschakelde derden uit te voeren werkzaamheden.

 

Artikel 10 | Start werkzaamheden en uitvoering

10.1 Met de werkzaamheden, in het kader van het Bouw- en Woonrijp maken van het Plangebied, wordt binnen een termijn van 6 maanden nadat aan alle hierna te noemen voorwaarden is voldaan, gestart:

 

Het Bestemmingsplan in werking is getreden, en er één of meerdere bruikbare omgevingsvergunningen zijn afgegeven;

 

het bouw- en woonrijp maken- bestek en de bijbehorende bestektekening(en) in NLCS formaat, zijn goedgekeurd door de Gemeente, die daarvan schriftelijk mededeling heeft gedaan aan de Ontwikkelaar;

 

Ontwikkelaar is verplicht na aanvang van de bouw zoals bedoeld in lid 1 in één bouwstroom te bouwen en zich in te spannen de bebouwing binnen drie jaar na het onherroepelijk worden van de voor de bebouwing benodigde omgevingsvergunningen te voltooien en op te leveren.

Indien, om welke reden dan ook, een gefaseerde uitvoering van het project wenselijk en/of noodzakelijk is, dient Ontwikkelaar hierover onverwijld met Gemeente in overleg te treden.

Wordt overeenstemming bereikt over de voorwaarden, dan zorgt Ontwikkelaar, bij fasering van het project, voor een correcte scheiding van de bouwactiviteiten om overlast en (mogelijke) schade aan reeds aangebrachte voorzieningen zoveel mogelijk te beperken.

 

Artikel 11 | Overdracht Openbare ruimte

11.1 Ontwikkelaar zal ten behoeve van het Project voor zijn rekening en risico de Openbare ruimte en Voorzieningen van openbaar nut realiseren binnen het Plangebied. Dit geldt eveneens voor eventuele werken en werkzaamheden buiten het Plangebied en zoals omschreven in de definities onder ‘Voorzieningen van openbaar nut’.

 

11.2 Ontwikkelaar zal alle in bijlage X als zodanig aangeduide en tot de Openbare ruimte behorende gronden, na oplevering overeenkomstig het door de Gemeente goedgekeurd bestek en inrichtingsplan, herstel van de gebreken zoals opgenomen in het proces-verbaal van oplevering en goedkeuring door de Gemeente in eigendom overdragen aan de Gemeente.

 

11.3 Zodra de Voorzieningen van openbaar nut feitelijk voor het publiek toegankelijk worden, zal de Gemeente voor wat betreft de verkeers- en gevaarssituatie jegens derden gelden als beheerder in de zin van de Wegenwet. In verband hiermee zal de Gemeente de benodigde verkeers- en waarschuwingsborden plaatsen. De Gemeente neemt het gehele feitelijke beheer van de binnen het Plangebied gelegen gronden, welke bestemd zijn voor de aanleg van Voorzieningen van openbaar nut over, zodra het gehele gebied aan haar is opgeleverd.

Vanaf de datum van oplevering gelden voor Ontwikkelaar ten aanzien van de Openbare voorzieningen de navolgende onderhoudstermijnen:

 

ten behoeve van de infrastructuur en civieltechnische werken gedurende 12 maanden nadat de bevestiging van de oplevering door de Gemeente is verzonden;

 

ten behoeve van de groenvoorzieningen gedurende 3 jaar (Op A-niveau) nadat de bevestiging van de oplevering door de Gemeente is verzonden. Beplanting moet bij overdracht 100% levenskrachtig zijn.

 

11.4 Voor zover dat voor haar bestaansrecht noodzakelijk mocht zijn, geschiedt de levering tegen een pro-formakoopsom van €1,- (zegge: één euro).

 

11.5 Levering vindt plaats onder de navolgende voorwaarden:

  • de juiste grootte en ligging van de betreffende gronden zal worden vastgesteld door kadastrale inmeting op aanwijzing van de Gemeente en Ontwikkelaar;

  • over- en ondermaat zal geen aanleiding geven tot enige verrekening;

  • de grond zal worden overgedragen vrij van hypothecaire inschrijving en beslagen, vrij van zakelijke rechten, vrij van huur-, pacht- en andere gebruiksrechten en vrij van zich in de grond bevindende resten zoals fundering, niet functionele leidingen en kabels en dergelijke;

  • Ontwikkelaar vrijwaart de Gemeente tegen elke aansprakelijkheid van welke aard dan ook tot het moment waarop de hiervoor vermelde onderhoudstermijnen zijn verstreken en eventuele gebreken die zich tijdens de onderhoudsperiode hebben geopenbaard, naar het oordeel van de Gemeente naar behoren zijn opgelost;

  • Ontwikkelaar vrijwaart de Gemeente voor alle aanspraken van derden op vergoeding van schade als gevolg van de bodemkwaliteit van de over te dragen Openbare ruimte;

  • de kosten en rechten die op de overdracht verschuldigd zijn, waaronder begrepen de kosten voor de kadastrale inmeting, komen ten laste van Ontwikkelaar;

  • Bij overdracht van de Openbare ruimte aan de Gemeente dient Ontwikkelaar aan te tonen door middel van een opleverdossier, met hierin opgenomen alle kwaliteits-, certificaten en rapportages van gebruikte producten, materialen, constructies en revisietekeningen, dat de Openbare ruimte voldoet aan de gestelde eisen. De riolen dienen bij overdracht gereinigd te zijn, hetgeen door middel van een video-inspectie ten behoeve van de Gemeente dient te worden aangetoond. Van de geplaatste speeltoestellen dient bij de overdracht een logboek volgens het “Warenwetbesluit veiligheid Attracties en Speeltoestellen” (WAS), te worden overgelegd. De Openbare ruimte dien ten tijde van de overdracht schoon en vrij van onrechtmatigheden te zijn. Inspectiegegevens riolering, Revisiewerk (incl. bomengranulaat, verdichting, etc.)

  • Kosten voor het verwijderen van alle loze leidingen, zo nodig ook zakelijke rechten opheffen, zijn voor de initiatiefnemer. Indien er een zakelijk recht gevestigd moet worden, dient de initiatiefnemer deze ook te betalen.

 

11.6 Indien op enig moment blijkt dat de overdracht van de Openbare ruimte voor €1,- op fiscale risico’s stuit, zullen Partijen nader overleg voeren over een wijze van overdracht van de Openbare ruimte waarbij als uitgangspunt geldt dat geen der Partijen daaruit fiscale nadelen zal lijden.

 

11.7 Levering van de hiervoor bedoelde gronden zal plaatsvinden ten overstaan van de heer [NAAM], notaris te [PLAATS], op basis van de terzake gebruikelijke bepalingen en bedingen.

De kosten en rechten op de akte van levering en eigendomsoverdracht en eventueel daarmee gepaard gaande belastingen komen voor rekening van Ontwikkelaar.

 

11.8 De kwaliteit van de door Ontwikkelaar over te dragen Openbare ruimte moet zodanig zijn dat deze geschikt is voor het door de Gemeente beoogde gebruik, zijnde openbaar gebied. Dit betekent dat de kosten voor eventuele grondsanering en/of verwijdering van de grond, waaronder tevens begrepen de onderzoekskosten om een en ander aan te tonen, teneinde eventuele belemmeringen weg te nemen, voor rekening komen van Ontwikkelaar.

 

Artikel 12 | Aanbestedingsverplichting

12.1 Ontwikkelaar is verplicht ten aanzien van het Bouw- en Woonrijp maken te handelen als ware hij een aanbestedende dienst en dientengevolge de Europese en nationale wet- en regelgeving en het gemeentelijke aanbestedingsbeleid in acht te nemen, zulks ter vervulling van de op de Gemeente rustende aanbestedingsplicht.

 

Alle kosten hoe ook genaamd die voortvloeien uit de verplichting tot aanbesteding van de in lid 1 van dit Artikel genoemde opdrachten komen geheel voor rekening van Ontwikkelaar.

 

De Gemeente machtigt Ontwikkelaar tot het voeren van de vereiste aanbestedingsprocedures.

 

Ontwikkelaar vrijwaart de Gemeente voor alle schade hoe ook genaamd die de Gemeente lijdt als gevolg van een niet-nakoming – in de meest ruime zin – van de in lid 1 van dit artikel overeengekomen verplichting van Ontwikkelaar.

 

13.2. Voorbeeldafbeeldingen wegcategorisering

Erftoegangswegen en gebiedsontsluitingswegen

Erftoegangsweg 30 | Heistraat

Erftoegangsweg 60 | Eindhovenseweg

Gebiedsontsluitingsweg 30 | Molenstraat

Gebiedsontsluitingsweg 50 | Burgemeester Mollaan

Gebiedsontsluitingsweg 50 | Juliana de Lannoylaan

 

Overige

 

Fietsvoorziening | Rotonde Onze Lieve Vrouwedijk x Heistraat

Fietsstraat | Werenfriedstraat

Aanduiding en inrichting KOM-grens | Molenstraat

Aanduiding en inrichting schoolzone

 

13.3. Principeoplossingen

1. Principeprofiel 1.0: Dorpsverbindingsweg/ETW – 60km/u (CROW type 1)

2. Principeprofiel 1.1: Gebiedsontsluitingsweg - 50km/u (bibeko)

3. Principeprofiel 1.2: Erftoegangsweg - 30km/u (bibeko) wonen/schoolomgeving

4. Principeprofiel 1.3: Kruising ETW 30-GOW 50 Uitritconstructie

5. Principeprofiel 1.4: Verkeersplateau - 30 km/u

6. Principeprofiel 1.5.0: Verkeersplateau - 50 km/u (elementen)

7. Principeprofiel 1.5.1: Verkeersplateau 50 km/u (asfalt/prefab)

8. Principeprofiel 1.6: Verkeersplateau 60 km/u

9. Principeprofiel 1.7.0: Langsparkeren in langsparkeerhaven

10. Principeprofiel 1.7.1: Langsparkeren op trottoirniveau (elementen)

11. Principeprofiel 1.7.2: Langsparkeren op trottoirniveau (asfalt)

12. Principeprofiel 1.7.3: Haaks parkeren incl. algemene invalideparkeerplaats

13. Principeprofiel 1.7.4: Fietsvoorzieningen

14. Principeprofiel 1.8: Detail zebramarkering in straatwerk

15. Principeprofiel 1.9: ''School'' detail thermoplast op asfalt

16. Principeprofiel 1.10.0: GOW 50 / WOW 50 (gootdetail)

17. Principeprofiel 1.10.1: ETW 30 (gootdetail)

18. Principeprofiel 1.11.0: Solitair fietspad (gootdetail)

19. Principeprofiel 1.11.1: Bermbeton (gootdetail)

20. Principeprofiel 1.11.2: Molgoot (gootdetail)

21. Principeprofiel 1.11.3: Grasbetontegel (gootdetail)

22. Principeprofiel 1.12: Detail bank en tafel

23. Principeprofiel 1.13: Kabel & leidingen profiel

24. Principeprofiel 1.14: Verhardingsopbouw

25. Riooldetail 1.0: Enkele kolkaansluiting (zijaansluiting)

26. Riooldetail 1.1: Dubbele kolkaansluiting (achteraansluiting)

27. Riooldetail 1.2: Huisaansluiting particulier met ontstoppingsstuk

28. Riooldetail 1.3: Huisaansluiting bedrijven met erfafscheidingsput

29. Riooldetail 1.4: Principedetail rioolsleuf

 

 

 

 

 

 

 

 

 

 

 

 

 

 

 

 

 

 

 

 

LEIDRAAD INRICHTING OPENBARE RUIMTE

Gemeente Waalre | d.d. 14-11-2024

Definitieve versie

 

Naar boven