Kennisgeving terinzagelegging voorkeursrechtbeschikking tot vestiging van een voorkeursrecht krachtens artikel 9.1 lid 2 van de Omgevingswet

Het besluit

Op 30 januari 2024 heeft het college van burgemeester en wethouders een voorkeursrechtbeschikking genomen waarbij voor een termijn van drie maanden een voorkeursrecht is gevestigd op onroerende zaken gelegen in Gieten waarbij de toegedachte functie bedrijventerrein en woningbouw is en op onroerende zaken in Gasselternijveen waarbij de toegedachte functie woningbouw is.

Door middel van het vestigen van voorkeursrecht verschaft de gemeente zich voorrang bij aankoop van gronden benodigd voor het realiseren van toekomstige planologische ontwikkelingen. Speculatie wordt daarmee voorkomen. De toegedachte functies van de onroerende zaken zijn de ontwikkeling van zowel woningen als bedrijventerrein.

Ter inzage

Het besluit van burgemeester en wethouders d.d. 30 januari 2024 wordt samen met het voorstel aan de gemeenteraad, om volgend op het besluit van het college een voorkeursrechtbeschikking te nemen, en bijbehorende stukken ter inzage gelegd. De bijbehorende stukken zijn de grondtekening(en) en een perceellijst met daarop de kadastrale aanduiding van de onroerende zaken waarop een voorkeursrecht is gevestigd, de grootte, alsmede de naam van de eigenaren en zakelijk gerechtigden, en overige relevante gegevens. Deze stukken liggen met ingang van 1 februari 2024 gedurende zes weken voor een ieder kosteloos ter inzage bij de centrale publieksbalie in het gemeentehuis, Spiekersteeg 1 in Gieten.

Bent u tijdens de openingstijden verhinderd dan vragen wij u een afspraak te maken.

Zienswijzen

Gedurende de termijn van terinzagelegging kunnen ingezetenen en belanghebbenden naar keuze mondeling of schriftelijk een zienswijze indienen bij het college van burgemeester en wethouders over het ontwerpbesluit.

Schriftelijke zienswijzen kunnen worden gericht aan het college van burgemeester en wethouders van Aa en Hunze, postbus 93, 9460 AB Gieten. Degenen die een mondelinge reactie willen geven kunnen dat doen tijdens kantoortijden na het maken van een afspraak. Dit kan via telefoonnummer 0592 266558.

Het college besluit conform advies:

Besluiten

  • 1.

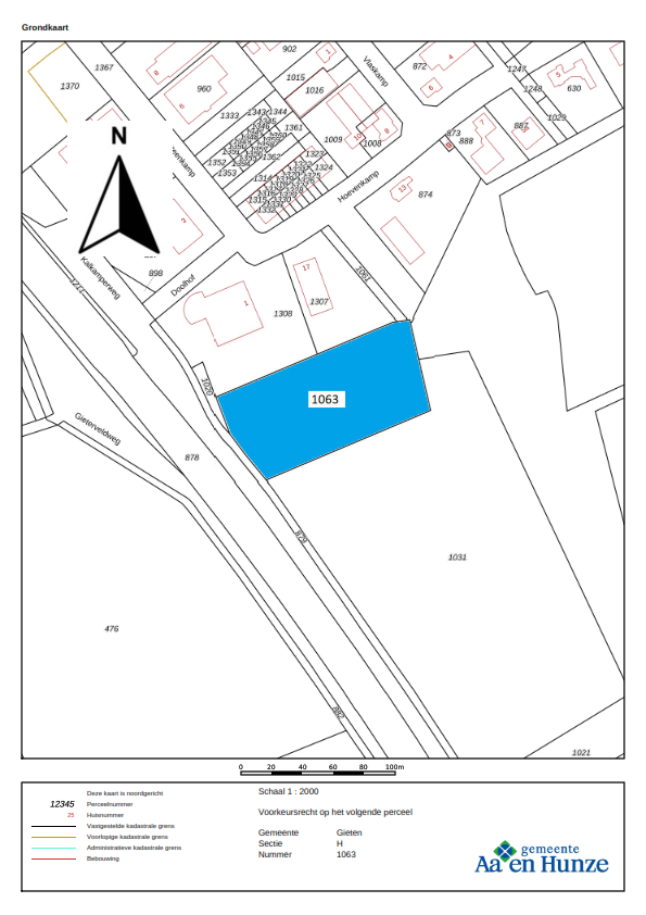
    Het college besluit conform advies: 1. Op basis van artikel 9.1 lid 2 van de Omgevingswet op de onroerende zaak, kadastraal bekend als gemeente Gieten, Sectie H, nummer 1063 te Gieten, zoals aangegeven op de bij deze voorkeursrechtbeschikking behorende en daarvan deel uitmakende en als zodanig gewaarmerkte grondtekening, alsmede de van de voorkeursrechtbeschikking deel uit makende perceellijst, op basis van deze voorkeursrechtbeschikking een voorkeursrecht te vestigen voor de duur van maximaal 3 maanden.

  • 2.

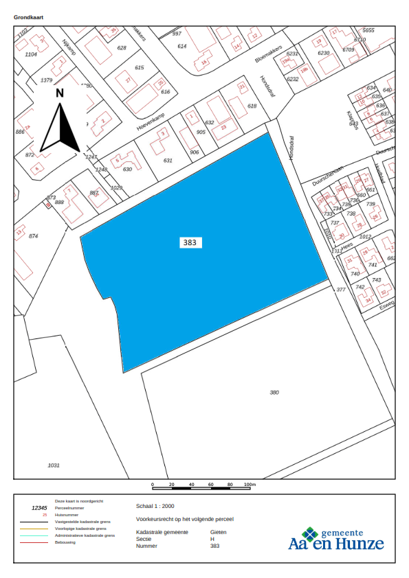
    Op basis van artikel 9.1 lid 2 van de Omgevingswet op de onroerende zaken, kadastraal bekend als gemeente Gieten, Sectie H, nummer 383, 380 en 379 te Gieten, zoals aangegeven op de bij deze voorkeursrechtbeschikking behorende en daarvan deel uitmakende en als zodanig gewaarmerkte grondtekening, alsmede de van de voorkeursrechtbeschikking deel uit makende perceellijst, op basis van deze voorkeursrechtbeschikking een voorkeursrecht te vestigen voor de duur van maximaal 3 maanden.

  • 3.

    Op basis van artikel 9.1 lid 2 van de Omgevingswet op de onroerende zaken, kadastraal bekend als gemeente Gasselte, Sectie K, nummer 41, 49, 40 en 1430 te Gasselterijveen, zoals aangegeven op de deze voorkeursrechtbeschikking behorende en daarvan deel uitmakende en als zodanig gewaarmerkte grondtekening, alsmede de van de voorkeursrechtbeschikking deel uit makende perceellijst, op basis van deze voorkeursrechtbeschikking een voorkeursrecht te vestigen voor de duur van maximaal 3 maanden.

  • 4.

    Gezien de vereiste spoed en het beoogde doel, overeenkomstig het bepaalde in artikel 4:11 sub a en sub c van de Algemene wet bestuursrecht (Awb), de betrokken belanghebbenden (eigenaren en beperkt gerechtigden) niet in de gelegenheid te stellen om voorafgaand aan dit besluit zienswijzen naar voren te brengen en derhalve artikel 4.8 van de Awb buiten toepassing te laten.

  • 5.

    Toepassing te geven aan artikel 16.32b van de Omgevingswet en kennis te geven van de terinzagelegging van deze voorkeursrechtbeschikking (inhoudende een besluit tot vestiging van een voorkeursrecht op de in de voorkeursrechtbeschikking genoemde kadastrale percelen).

  • 6.

    Deze kennisgeving conform artikel 16.32b jo artikel 12 van de Bekendmakingswet te plaatsen in het gemeenteblad in de vorm van een zakelijke weergave van de inhoud met vermelding van de wijze waarop en de periode waarin de stukken waar de kennisgeving betrekking op heeft voor eenieder ter inzage liggen.

  • 7.

    De voorkeursrechtbeschikking bekend te maken aan de eigenaren en beperkt gerechtigden door toezending van deze voorkeursrechtbeschikking, per aangetekende brief, aan de desbetreffende eigenaren en beperkt gerechtigden.

  • 8.

    Uit te spreken dat aan de percelen bekend als gemeente Gieten, Sectie H, nummer 1063 te Gieten de bestemming Bedrijventerrein met bijbehorende voorzieningen wordt toegedacht en dat het huidige gebruik daarmee strijdig is.

  • 9.

    Uit te spreken dat aan de percelen bekend als gemeente Gieten, Sectie H, nummer 383, 380 en 379 te Gieten de bestemming Wonen met bijbehorende voorzieningen wordt toegedacht en dat het huidige gebruik daarmee strijdig is.

  • 10.

    Uit te spreken dat aan de percelen kadastraal bekend als gemeente Gasselte, Sectie K, nummer 41, 49, 40 en 1430 te Gasselterijveen de bestemming Wonen met bijbehorende voorzieningen wordt toegedacht en dat het huidige gebruik daarmee strijdig is.

  • 11

    Binnen 3 maanden na het ingaan van deze voorkeursrechtbeschikking, zijnde de inschrijving in de openbare registers, de raad voor te stellen om een voorkeursrechtbeschikking te nemen voor een periode van 3 jaar ingevolge het bepaalde in artikel 9.1 lid 1 onder c van de Omgevingswet.

  • 12

    Het voornemen uit te spreken de raad binnen 3 jaar na het onder 11 genoemde raadsbesluit voor te stellen om een opvolgend planologische besluit vast te stellen, zijnde een omgevingsvisie, programma of omgevingsplan.

  • 13

    De voorkeursrechtbeschikking binnen vier dagen na de bekendmaking ervan door toezending aan de eigenaren en beperkt gerechtigden ter inschrijving aan te bieden in de openbare registers van het Kadaster;

  • 14

    Te bepalen dat het besluit niet eerder openbaar is dan na inschrijving in de openbare registers van het Kadaster.

Lijst van onroerende zaken gelegen in de kadastrale gemeente Gieten alsmede Gasselte waarop een voorkeursrechtbeschikking conform artikel 9.1 lid 2 Omgevingswet van toepassing is.

 

Behorende bij de voorkeursrechtbeschikking van het college van burgemeester en wethouders d.d. 30 januari 2024 tot vestiging van een voorkeursrecht op onroerende zaken gelegen in Gieten (waarbij de toegedachte functie bedrijventerrein en woningbouw is) en op onroerende zaken gelegen in Gasselternijveen (waarbij de toegedachte functie woningbouw is) krachtens artikel 9.1 lid 2 Omgevingswet.

 

De gegevens zoals die in de lijst zijn opgenomen zijn ontleend aan de Dienst voor het Kadaster en de openbare registers d.d. 29 januari 2024.

 

De percelen zijn gelegen in de gemeente Aa en Hunze.

Kadastrale gemeente

Sectie

Nummer

Grootte perceel

Grootte perceel betrokken in besluit Wvg

Plaatselijk bekend

Huidige bestemming en/of gebruik

Toegedeelde/

Toegedachte bestemming

Recht

Eigenaren en beperkt zakelijk gerechtigden

Adres

Postcode

Plaats

1

Gieten

H

1063

8.090 m²

8.090 m²

Agrarisch

Woningbouwlocatie en/of bedrijventerrein en/of andere niet agrarische bestemming

recht van eigendom

2

Gieten

H

383

34.150 m²

34.150 m²

Agrarisch

Woningbouwlocatie en/of bedrijventerrein en/of andere niet agrarische bestemming

recht van eigendom

3

Gieten

H

380

34.680 m²

34.680 m²

Agrarisch

Woningbouwlocatie en/of bedrijventerrein en/of andere niet agrarische bestemming

recht van eigendom

4

Gieten

H

379

14.280 m²

14.280 m²

Agrarisch

Woningbouwlocatie en/of bedrijventerrein en/of andere niet agrarische bestemming

recht van eigendom

5

Gasselte

K

41

9.795 m²

9.795 m²

Agrarisch

Woningbouwlocatie en/of bedrijventerrein en/of andere niet agrarische bestemming

recht van eigendom

6

Gasselte

K

49

2.795 m²

2.795 m²

Agrarisch

Woningbouwlocatie en/of bedrijventerrein en/of andere niet agrarische bestemming

recht van eigendom

7

Gasselte

K

40

8.495 m²

8.495 m²

Agrarisch

Woningbouwlocatie en/of bedrijventerrein en/of andere niet agrarische bestemming

recht van eigendom

8

Gasselte

K

1430

6.438 m²

6.438 m²

Agrarisch

Woningbouwlocatie en/of bedrijventerrein en/of andere niet agrarische bestemming

recht van eigendom

Aa en Hunze, 30 januari 2024

Het college van burgemeester en wethouders van de gemeente Aa en Hunze,

A.W. Hiemstra

De burgemeester

R.L.H. Schoonderbeek

De secretaris

 

Naar boven