Gemeenteblad van Ooststellingwerf
| Datum publicatie | Organisatie | Jaargang en nummer | Rubriek | Datum ondertekening |
|---|---|---|---|---|
| Ooststellingwerf | Gemeenteblad 2024, 524913 | ruimtelijk plan of omgevingsdocument |
Zoals vergunningen, bouwplannen en lokale regelgeving.
Adressen en contactpersonen van overheidsorganisaties.
U bent hier:
| Datum publicatie | Organisatie | Jaargang en nummer | Rubriek | Datum ondertekening |
|---|---|---|---|---|
| Ooststellingwerf | Gemeenteblad 2024, 524913 | ruimtelijk plan of omgevingsdocument |
Deze publicatie bevat verschilmarkering t.o.v. eerdere regelingtekst. Tekst en afbeeldingen die worden toegevoegd zijn onderstreept en groen gemarkeerd, of van een groen kader voorzien. Tekst en afbeeldingen die worden verwijderd zijn doorgestreept en rood gemarkeerd, of van een rood kader voorzien.
De publicatie wordt standaard getoond met verschilmarkering. Door te kiezen voor ‘Was’ of ‘Wordt’ kunt u de voormalige of vernieuwde tekst op zichzelf bekijken.
Toon versie van document
Dit document bevat verschilmarkering t.o.v. eerdere regelingtekst.
Tekst en afbeeldingen die worden toegevoegd zijn onderstreept en groen gemarkeerd, of van een groen kader voorzien. Tekst en afbeeldingen die worden verwijderd zijn doorgestreept en rood gemarkeerd, of van een rood kader voorzien.
Het college van burgemeester en wethouders van Gemeente Ooststellingwerf
gelezen de tekstinhoud van ”Omgevingsplan gemeente Ooststellingwerf” d.d. 10 december 2024
Besluit;
De ontwerp wijziging van "Omgevingsplan gemeente Ooststellingwerf" voor locatie Bovenweg 8 in Donkerbroek opgenomen in Bijlage A bekend te maken;
Deze ontwerp wijziging met bijbehorende stukken gedurende zes weken ter visie te leggen, een kennisgeving hierover volgt;
Geen m.e.r.-procedure te doorlopen op te stellen gezien de conclusies uit de Aanmeldnotitie m.e.r.-beoordeling.
Aldus vastgesteld door Gemeente Ooststellingwerf, 10 december 2024
Gemeente Ooststellingwerf, 10 december 2024
Het college van burgemeester en wethouders van Gemeente Ooststellingwerf
A
Hoofdstuk 21 wordt op de aangegeven wijze gewijzigd:
Hoofdstuk 21 gaat over activiteiten die plaatsvinden in de gemeente Ooststellingwerf tijdens de transitiefase van het omgevingsplan, ter plaatse van:
De regels in het tijdelijk deel van dit omgevingsplan, bedoeld in artikel 22.1, onder a, van de Omgevingswet, opgenomen in een besluit als bedoeld in artikel 4.6, eerste lid, onder g, van de Invoeringswet Omgevingswet, zijn niet van toepassing ter plaatse van de locaties als bedoeld in artikel 21.1.
Een bouwactiviteit en/of gebruiksactiviteit, waarvan een behoefte aan parkeergelegenheid wordt verwacht, kan niet plaatsvinden wanneer op het bouwperceel of in de omgeving daarvan niet in voldoende parkeergelegenheid is voorzien en in stand wordt gehouden.
De omgevingsvergunning voor het bouwactiviteit en/of gebruiksactiviteit wordt beoordeeld aan de hand van de parkeernormen in de Tabellen nota parkeernormen 2023. Indien de parkeernormen worden gewijzigd, wordt rekening gehouden met die wijziging.
Bij een omgevingsvergunning kan worden afgeweken van het bepaalde in sub a en worden toegestaan dat in minder dan voldoende parkeergelegenheid wordt voorzien, mits dit geen onevenredige afbreuk doet aan de parkeersituatie.
Deze afdeling gaat over de volgende gebruiksactiviteiten:
agrarische activiteiten;
bedrijfsactiviteiten;
culturele activiteiten;
detailhandelsactiviteiten;
dienstverleningsactiviteiten;
horeca-activiteiten;
industriële activiteiten;
kantooractiviteiten;
maatschappelijke activiteiten;
recreatie-activiteiten;
sportactiviteiten;
woonactiviteiten;
en aan bovenstaande gebruiksactiviteiten ondergeschikte activiteiten.
Het is verboden om gronden en bouwwerken te gebruiken:
anders dan overeenkomstig in dit plan aan de locatie toegedeelde functie;
voor het wonen in een vrijstaand bijbehorend bouwwerk;
voor opslag van voer-, vaar- of vliegtuigen, dan wel onderdelen daarvan, alsmede caravans, tenten en naar de aard daarmee gelijk te stellen onderkomens;
voor opslag van schroot, puin, afbraak- en bouwmaterialen, grond- en bodemspecie en al dan niet afgedankte voorwerpen, stoffen of producten;
ten behoeve van een seksinrichting;
als standplaats voor kampeermiddelen;
ten behoeve van risicovolle inrichtingen en vuurwerkbedrijven;
ten behoeve van windturbines.
Het gebruik van woningen en bijbehorende bouwwerken in combinatie met een aan-huis-verbonden beroep of aan-huis-verbonden bedrijf is toegestaan bij de functie H21 Wonen, mits:
de grondoppervlakte mag maximaal 25% van de vloeroppervlakte van de woning bedragen, met een maximum van 50 m2;
er geen detailhandel plaatsvindt, tenzij het productiegebonden detailhandel betreft;
er mag geen extra inrit worden gerealiseerd;
het parkeren moet op eigen terrein plaatsvinden; en
de ontsluiting van het perceel moet kwantitatief en kwalitatief goed van aard zijn.
Het gebruik van woningen en bijbehorende bouwwerken in combinatie met bed & brochje is toegestaan bij de functie H21 Wonen, mits:
de brutovloeroppervlakte mag niet meer dan 50 m2 bedragen;
in de slaapkamers mag geen zelfstandige kookgelegenheid worden gerealiseerd;
er mag geen extra inrit worden gerealiseerd;
het parkeren moet op eigen terrein plaatsvinden; en
de ontsluiting van het perceel moet kwantitatief en kwalitatief goed van aard zijn.
Het gebruik van gronden ten behoeve van een paardenbak is toegestaan bij de functie H21 Wonen, mits:
de paardenbak moet zijn gelegen bij een (bedrijfs)woning die binnen de gebiedsaanwijzing H21 Wonen is gesitueerd;
per (bedrijfs)woning is maximaal één paardenbak toegestaan;
de oppervlakte van een paardenbak bedraagt ten hoogste 800 m²;
een paardenbak mag uitsluitend achter de bestaande bebouwing worden gesitueerd;
de afstand tussen een paardenbak en naastgelegen (bedrijfs)woningen van derden bedraagt minimaal 25 m;
de afstand van een paardenbak tot de perceelgrenzen bedraagt minimaal 5 m;
voor de omheining voldaan wordt aan de bouwregels; en
in afwijking van bovenstaande leden in geval van bestaande paardenbakken.
Ter plaatse van de functie H21 Wonen is het toegestaan gronden te gebruiken voor de volgende gebruiksactiviteiten: wonen;
Deze paragraaf gaat over regels die algemeen van toepassing zijn op bouwactiviteiten.
Bij de toepassing van de regels in deze afdeling wordt als volgt gemeten:
de goothoogte van een bouwwerk vanaf het peil tot aan de bovenkant van de goot c.q. de druiplijn, het boeiboord, of een daarmee gelijk te stellen constructiedeel;
de inhoud van een bouwwerk tussen de onderzijde van de begane grondvloer, de buitenzijde van de gevels (en/of het hart van de scheidingsmuren) en de buitenzijde van daken en dakkapellen);
de bouwhoogte van een bouwwerk vanaf het peil tot aan het hoogste punt van een gebouw of van een bouwwerk, geen gebouw zijnde, met uitzondering van ondergeschikte bouwonderdelen, zoals schoorstenen, antennes, en naar de aard daarmee gelijk te stellen bouwonderdelen;
de oppervlakte van een bouwwerk tussen de buitenwerkse gevelvlakken en/of het hart van de scheidingsmuren, neerwaarts geprojecteerd op het gemiddelde niveau van het afgewerkte bouwterrein ter plaatse van het bouwwerk
ondergeschikte bouwdelen: bij de toepassing van het bepaalde ten aanzien van de plaatsing van gebouwen worden ondergeschikte bouwdelen als plinten, pilasters, kozijnen, gevelversieringen, ventilatiekanalen, schoorstenen, gevel- en kroonlijsten, luifels, erkers, balkons en overstekende daken buiten beschouwing gelaten, mits de voor de plaatsing van gebouwen geldende regeling met niet meer dan 1,00 m wordt overschreden;
Het is verboden om op gronden en bouwwerken te bouwen anders dan ten behoeve van in dit plan aan de locatie toegedeelde functie en de algemene gebruiksregels.
De omgevingsvergunning in de zin van artikel 22.26 wordt in afwijking van artikelen 21.14 tot en met 21.16 ook verleend onder de voorwaarde dat er geen onevenredige aantasting plaatsvindt van de gebruiksmogelijkheden van aangrenzende gronden, het milieu, de kwaliteit van bodem en het grond- en oppervlaktewater, de ontwikkelingsmogelijkheden van omliggende bedrijven, het bebouwingsbeeld, de landschappelijke, natuurlijke en cultuurhistorische waarden en de verkeersveiligheid, in de volgende gevallen:
de in het plan gegeven maten, afmetingen en percentages tot niet meer dan 10% van die maten, afmetingen en percentages;
het bepaalde in het plan en toestaan dat activiteits- of bouwgrenzen worden overschreden, indien een meetverschil daartoe aanleiding geeft;
het bepaalde in het plan voor het bouwen van antennes, waarvan de bouwhoogte niet meer dan 25 m bedraagt;
het bepaalde in het plan voor het bouwen van vlaggenmasten en naar de aard daarmee gelijk te stellen andere bouwwerken met een bouwhoogte van niet meer dan 8,00 m;
het gebruik van bouwwerken en een bouwperceel ten behoeve van zonne-energie, mits het op te stellen vermogen is gericht op de energiebehoefte die samenhangt met de functie van dat perceel;
het toestaan dat de afstand van woningen tot de bedraagt minder dan de H21 zijdelingse perceelgrens;
toestaan dat er op een bouwperceel met een grotere oppervlakte dan 3.000 m2 een groter oppervlak aan bijbehorende bouwwerken bij een woning wordt gebouwd, mits:
het totale oppervlak aan bijbehorende bouwwerken op het bouwperceel ten hoogste 300 m2 bedraagt;
een inrichtingsplan is overlegd, waaruit blijkt dat de processtappen zijn gevolgd zoals opgenomen in het procesboek Ontwikkeling agrarische erven tevens rekening is gehouden met het regionale landschapsbeleidsplan;
het bepaalde in het plan en toestaan dat lichtmasten uitsluitend ten behoeve van een paardenbak voor hobbymatig gebruik mag worden aangebracht, mits:
Voor het bouwen van hoofdgebouwen binnen de functie H21 Wonen gelden in aanvulling op het bepaalde in artikel 22.29 tevens de volgende beoordelingsregels bij de vergunningplicht als bedoeld in artikel 22.26:
de hoofdgebouwen moeten als woning worden gebouwd;
het aantal woningen is niet meer dan het ter plaatse van de bouwnorm H21 aantal opgenomen woningen;
de hoofdgebouwen moeten binnen een gebiedsaanwijzing H21 bouwvlak worden gebouwd;
de woningen worden ter plaatse van de bouwnorm H21 vrijstaand gebouwd;
de afstand (van de niet aaneengebouwde zijde) van een hoofdgebouw tot de zijdelingse perceelgrens bedraagt niet minder dan de ter plaatse van de bouwnorm H21 zijdelingse perceelgrens aangegeven afstand;
de oppervlakte van een hoofdgebouw bedraagt niet meer dan 175 m2; en
de goot- en bouwhoogte van hoofdgebouwen mogen niet meer bedragen dan de hoogtes die ter plaatse van de bouwnormen H21 goothoogte respectievelijk H21 bouwhoogte zijn aangegeven.
Voor het bouwen van de woning ter plaatse van de locatie H21 woningbouwontwikkeling Bovenweg 8 Donkerbroek dient de beeldverstorende bebouwing te worden gesloopt overeenkomstig het in bijlage 1 bij de motivering landschappelijk inpassingsplan.
Voor het bouwen van de woning ter plaatse van de locatie H21 woningbouwontwikkeling Bovenweg 8 Donkerbroek dient de grond van het gehele perceel functioneel gesaneerd te zijn tot minimaal bodemkwaliteitsklasse “Industrie” of licht verontreinigde grond met klasse “Niet Toepasbaar” moet afgedekt zijn met een duurzaam aaneengesloten afdeklaag.
Voor het bouwen van bijbehorend bouwwerk en overkappingen binnen de functie H21 Wonen gelden in aanvulling op het bepaalde in artikel 22.29 ook de volgende beoordelingsregels bij de vergunningplicht als bedoeld in artikel 22.26:
een bijbehorend bouwwerk dient achter de voorgevel van een hoofdgebouw te worden gebouwd, met uitzondering van een bijbehorend bouwwerk ter plaatse van de locatie H21 bijgebouw;
de gezamenlijke oppervlakte van bijbehorend bouwwerk mag niet meer bedragen dan:
100 m2 bij een bouwperceel met een oppervlakte die niet groter is dan 500 m2;
125 m2 bij een bouwperceel met een oppervlakte tussen de 500 m2 en 800 m2;
150 m2 bij een bouwperceel met een oppervlakte tussen de 800 m2 en 1.500 m2;
200 m2 bij een bouwperceel met een oppervlakte die groter is dan 1.500 m2;
de goot- en bouwhoogte mogen niet meer bedragen dan respectievelijk 3,5 m en 6 m.
Voor het bouwen van bouwwerken, geen gebouwen en geen overkapping zijnde, binnen de functie H21 Wonen gelden de volgende regels:
de bouwhoogte van erf- en terreinafscheidingen bedraagt niet meer dan 1,00 m;
in afwijking van sub a bedraagt de bouwhoogte van erf- en terreinafscheidingen niet meer dan 2,00 m:
op een erf of perceel waarop al een een hoofdgebouw staat waarmee de afscheiding in functionele relatie staat; en
achter de lijn die loopt langs de voorkant van dat hoofdgebouw en vanaf daar evenwijdig loopt met het aangrenzend openbaar toegankelijk gebied zonder het hoofdgebouw te doorkruisen of in het gebouwerf achter het hoofdgebouw te komen;
in aanvulling op de beoordelingsregels in artikel 22.29 geldt dat de bouwhoogte van overige bouwwerken, geen gebouwen zijnde, niet meer bedraagt dan 6,00 m.
De bouwhoogte van omheiningen van paardenbakken bedraagt niet meer dan 1,7 m, met dien verstande dat een omheind oppervlak niet meer bedraagt dan 800 m².
Een bouwwerk dat op het tijdstip van inwerkingtreding van de wijziging van het omgevingsplan dat iets verandert aan de regels voor de locatie die het betreft aanwezig of in uitvoering is, dan wel gebouwd kan worden krachtens een omgevingsvergunning voor het bouwen, en afwijkt van het plan, mag, mits deze afwijking naar aard en omvang niet wordt vergroot:
Het bevoegd gezag kan eenmalig, in afwijking van het eerste lid, een omgevingsvergunning verlenen voor het vergroten van de inhoud van een bouwwerk als bedoeld in het eerste lid met maximaal 10%.
Het eerste lid is niet van toepassing op bouwwerken die weliswaar bestaan op het tijdstip van inwerkingtreding van de wijziging van het omgevingsplan, maar zijn gebouwd zonder vergunning en in strijd met het daarvoor geldende bestemmingsplan, daaronder begrepen de overgangsbepaling van dat bestemmingsplan.
Het gebruik van grond en bouwwerken dat bestond op het tijdstip van inwerkingtreding van de wijziging van het omgevingsplan dat iets verandert aan de regels voor de locatie en hiermee in strijd is, mag worden voortgezet.
Het is verboden het met het omgevingsplan strijdige gebruik, bedoeld in het eerste lid, te veranderen of te laten veranderen in een ander met dat plan strijdig gebruik, tenzij door deze verandering de afwijking naar aard en omvang wordt verkleind.
Indien het gebruik, bedoeld in het eerste lid, na het tijdstip van inwerkingtreding van de genoemde wijziging van het omgevingsplan voor een periode langer dan een jaar wordt onderbroken, is het verboden dit gebruik daarna te hervatten of te laten hervatten.
Sub a is niet van toepassing op het gebruik dat reeds in strijd was met het voorheen geldende bestemmingsplan, daaronder begrepen de overgangsbepalingen van dat plan.
B
Na het lichaam wordt een bijlage ingevoegd, luidende:
/join/id/regdata/gm0085/2024/b5dddba16251447cb04c99ee32ef289e/nld@2024‑12‑11;11223008
/join/id/regdata/gm0085/2024/916986df19874243a6b0a14ce129d697/nld@2024‑12‑11;11223008
/join/id/regdata/gm0085/2024/fc0fb87811dc4ea88746d5e218a7fbbf/nld@2024‑12‑11;11223008
/join/id/regdata/gm0085/2024/27805ccbab504e0a91a4b6502f653cf0/nld@2024‑12‑11;11223008
/join/id/regdata/gm0085/2024/9f344b2b319d4d14960784e01385386c/nld@2024‑12‑11;11223008
/join/id/regdata/gm0085/2024/efa2d90b638c41b3ba22ede4da869ba5/nld@2024‑12‑11;11223008
/join/id/regdata/gm0085/2024/47fde4031c6e43ea8670274c17c7e19a/nld@2024‑12‑11;11223008
/join/id/regdata/gm0085/2024/0ee97ab45ada4be1839a1f4a6b42e682/nld@2024‑12‑11;11223008
/join/id/regdata/gm0085/2024/a012bd591a334c91a9e8a09fb0adc1ef/nld@2024‑12‑11;11223008
/join/id/regdata/gm0085/2024/48b5771f09d24d1eb46443ac03e56bed/nld@2024‑12‑11;11223008
C
Na bijlage II worden twee bijlagen ingevoegd, luidende:
het beroepsmatig verlenen van diensten, dan wel het uitoefenen van ambachtelijke bedrijvigheid door middel van handwerk -niet zijnde een aan huis verbonden beroep- waarvan de omvang in een woning met bijbehorende bouwwerken past en waarbij de woonfunctie in ruimtelijke en visuele zin behouden blijft. Onder een aan huis verbonden bedrijf valt wel internetverkoop, maar geen webwinkel;
het uitoefenen van een beroep of het verlenen van diensten op juridisch, medisch, therapeutisch, administratief, kunstzinnig of daaraan verwant gebied, als ondergeschikt onderdeel in een woning, waarbij de woonfunctie centraal is. Commerciële dienstverlening als bankfilialen, uitzendbureaus en reisbureaus, alsmede detaulhandel en horeca worden niet begrepen onder aan huis verbonden beroep;
één of meer gebouwen en/of bouwwerken geen gebouwen zijnde;
uitbreiding van een hoofdgebouw, dan wel functioneel met een zich op hetzelfde perceel bevindend hoofdgebouw verbonden, daar al dan niet tegenaan gebouwd en met de aarde verbonden bouwwerken met een dak;
het plaatsen, het geheel of gedeeltelijk oprichten, vernieuwen of veranderen en het vergroten van een bouwwerk;
de grens van een bouwvlak;
een aaneengesloten stuk grond, waarop ingevolge de regels een zelfstandige, bij elkaar behorende bebouwing is toegelaten;
de grens van een bouwperceel:
een geometrisch bepaald vlak, waarmee gronden zijn aangeduid, waar ingevolge de regels bepaalde gebouwen en bouwwerken, geen gebouwen zijnde, zijn toegelaten;
elke constructie van enige omvang van hout, steen, metaal of ander materiaal, die hetzij direct hetzij indirect met de grond verbonden is, hetzij direct of indirect steun vindt in of op de grond;
de vloeroppervlakte van de ruimte, dan wel van meerdere ruimten van een gebouw gemeten op vloerniveau langs de buitenomtrek van de (buitenste) opgaande scheidingsconstructie;
een kleinschalige overnachtingsaccommodatie gericht op het bieden van de mogelijkheid tot een toeristisch kortdurend verblijf met het serveren van ontbijt binnen bestaande gebouwen. Een bêd & brochje is gevestigd in een woonhuis of bijbehorend bouwwerk en wordt gerund door de eigenaren van het betreffende huis;
het bedrijfsmatig te koop aanbieden, waaronder begrepen de uitstalling ten verkoop, het verkopen en/of leveren van goederen aan personen die die goederen kopen voor gebruik, verbruik of aanwending anders dan in de uitoefening van een beroeps- of bedrijfsactiviteit;
een al dan niet omheind stuk grond, in ruimtelijk opzicht direct behorende bij, in functioneel opzicht ten dienste van en in feitelijk opzicht direct aansluitend aan een woning of een ander gebouw, dat in beginsel behoort tot de kavel(s) waarop de woning of het andere gebouw is geplaatst, zoals dat blijkt uit de kadastrale gegevens;
elk bouwwerk dat een voor mensen toegankelijke, overdekte, geheel of gedeeltelijk met wanden omsloten ruimte vormt;
de mogelijkheden om gronden en bouwwerken overeenkomstig de daaraan toegekende functie te gebruiken;
gebouw, of gedeelte daarvan, dat noodzakelijk is voor de verwezenlijking van de geldende of toekomstige functie van een perceel en, indien meer gebouwen op het perceel aanwezig zijn, gelet op die functie het belangrijkst is;
persoon of groep personen die een huishouding voert, waarbij sprake is van onderlinge verbondenheid en continuïteit in de samenstelling ervan; hieronder niet begrepen bewoning in de vorm van kamerverhuur;
een tent, een tentwagen, een kampeerauto, een caravan of een stacaravan, dan wel enig ander daarmee vergelijkbaar voertuig of onderkomen, dat geheel of ten dele is bestemd of opgericht dan wel wordt of kan worden gebruikt voor recreatief nachtverblijf;
de waarde van een gebied in milieuhygiënische zin die wordt bepaald door de mate van scheiding tussen milieugevoelige en milieubelastende functies, daarbij in het bijzonder gelet op het voorkomen dan wel beperkien van hinder door geur, stof, geluid, gevaar, licht en/of trilling;
elk bouwwerk, geen gebouw zijnde, dat een overdekte ruimte vormt zonder dan wel met niet meer dan één wand;
buitenrijbaan of een paddock ten behoeve van paardrijdactiviteiten en verblijfactiviteiten, voorzien van een andere ondergrond dan gras en al dan niet voorzien van een omheining;
detailhandel in goederen die ter plaatse worden vervaardigd, gerepareerd en/of toegepast in het productieproces, waarbij de detailhandelsfunctie ondergeschikt is aan de productiefunctie;
een voor het publiek toegankelijke besloten ruimte waarin bedrijfsmatig, of in de omvang alsof zij bedrijfsmatig was, seksuele handelingen worden verricht, of vertoningen van erotische/pornografische aard plaatsvinden. Onder een seksinrichting wordt in ieder geval verstaan: een prostitutiebedrijf, alsmede erotische-massagesalon, een seksbioscoop, een seksautomatenhal, een sekstheater of een parenclub, al dan niet in combinatie met elkaar;
de stedenbouwkundige waarde van een gebied die wordt bepaald door de mate van samenhang in aanwezige bebouwing. De mate van samenhang wordt bepaald door de verhouding tussen bouwmassa en open ruimte, de onderlinge verhouding tussen bebouwing op het gebied van bouwhoogte en -breedte en de wijze waarop bebouwing die ruimtelijk op elkaar georiënteerd is zich tot elkaar verhoudt op het vlak van bouwvorm en ligging;
de waarde van een gebied voor de veiligheid van het verkeer die wordt bepaald door de mate van overzichtelijkheid en vrij uitzicht (met name bij kruisingen van wegen en uitritten) en de (mogelijke) effecten van bebouwing en overige inrichtingselementen op de gedragingen van verkeersdeelnemers;
de gevel van het hoofdgebouw die door zijn aard, functie, constructie of uitstraling als belangrijkste gevel kan worden aangemerkt;
het huisvesten in een woning van één afzonderlijk huishouden;
een complex van ruimten, uitsluitend bedoeld voor de huisvesting van één afzonderlijk huishouden dat indien deze bestaat uit meerdere personen gebruik maakt van voor bewoning gemeenschappelijke voorzieningen, zoals keuken, toilet en douche.
een kleine windturbine zonder mast, geplaatst op het dak van een gebouw;
Een natuurtoets is een uitgebreide en zorgvuldige ecologische effecten-beoordeling van de impact van windmolen(s) op beschermde soorten en gebieden in het kader van de Wet Natuurbescherming. In het bijzonder het effect op belangrijke foerageerplaatsen, voortplantingslocaties (waaronder weidevogel(herstel)gebieden), rustplaatsen en trekroutes van deze dieren. Een natuurtoets start in de meeste gevallen met een Quick Scan. Dit is een korte toets waaruit blijkt of er risico's bestaan op overtredingen van de Wet natuurbescherming. Indien deze risico's niet kunnen worden uitgesloten, kunnen de plannen worden aangepast, zodat het risico wordt weggenomen of er kan nader onderzoek worden uitgevoerd naar het daadwerkelijke voorkomen en de verwachtte risico's. Ook daaruit kunnen aanpassingen van het plan ontstaan, of ontheffing worden aangevraagd bij het bevoegd gezag, de provincie Fryslân. Houd er rekening mee dat als ontheffing wordt aangevraagd een onderdeel hiervan altijd compensatie en mitigatie is. Dat betekent dat er aanpassingen aan het plan moeten worden gemaakt, zodat de Gunstige staat van Instandhouding van de betreffende soort(en) niet in het geding komt. Daarnaast wordt de Externe werking van windmolens op de Instandhoudingsdoelen van de Natura 2000-gebieden beoordeeld. Tevens wordt het cumulatieve effect van voortschrijdende windmolenplaatsing op essentiële landschapsecologische relaties ter behoud van dierpopulaties (Gunstige staat van Instandhouding) op regionaal niveau beoordeeld.
een installatie c.q. bouwwerk voor het opwekken van elektrisch of thermisch vermogen uit wind;
/join/id/regdata/gm0085/2024/7211f1cc4c89492db288bf0da120ef44/nld@2024‑12‑11;11223008
/join/id/regdata/gm0085/2024/f638392ef6894324863365ca2d71e820/nld@2024‑12‑11;11223008
/join/id/pubdata/gm0085/2024/eca39fcaf9f34a538f8662a7caaab946/nld@2024‑12‑11;11223008
/join/id/pubdata/gm0085/2024/4f202541e0db4f6cb888d6fc6b7da02d/nld@2024‑12‑11;11223008
/join/id/pubdata/gm0085/2024/74e27a526b2148babeb58884b792d34c/nld@2024‑12‑11;11223008
/join/id/pubdata/gm0085/2024/a907c0530b764eb096764440d2762d47/nld@2024‑12‑11;11223008
/join/id/pubdata/gm0085/2024/fb79dbf5388b47edb471443c51dd9457/nld@2024‑12‑11;11223008
/join/id/pubdata/gm0085/2024/e8a8488fab35495886a98a519691b404/nld@2024‑12‑11;11223008
/join/id/pubdata/gm0085/2024/bcdc0d6b92204eb6bcfa29b0acf1a5d3/nld@2024‑12‑11;11223008
/join/id/pubdata/gm0085/2024/482f01411eee46d383419648e791cf6c/nld@2024‑12‑11;11223008
/join/id/pubdata/gm0085/2024/481139b59a684f949c42d02e96c48a26/nld@2024‑12‑11;11223008
/join/id/pubdata/gm0085/2024/63bb9359a74e45a2baee9f79c3138814/nld@2024‑12‑11;11223008
Aan de Bovenweg 8 te Donkerbroek (hierna: ‘plangebied’) bevinden zich de bedrijfsgebouwen en de bedrijfswoning van een voormalig berging- en transportbedrijf. De activiteiten van het bedrijf zijn gestopt vanwege het ontbreken van opvolging en overnamekandidaten. De bedrijfslocatie is inmiddels verkocht aan de initiatiefnemers.
De initiatiefnemers zijn voornemens om circa 1.123 m² bedrijfsgebouwen te slopen, evenals een deel van de bijbehorende erfverharding. De sloop- en saneringskosten zijn aanzienlijk, gezien het grote bebouwingsoppervlak. Ter financiering hiervan doen zij een beroep op de ruimte-voor-ruimteregeling. Volgens deze regeling mag een ‘compensatiewoning’ worden gebouwd bij de sloop van ten minste 1.000 m² aan landschap ontsierende bebouwing.
De nieuw te bouwen woning (hoofdgebouw), met eventueel aangebouwde bijgebouwen, zal een maximaal oppervlak van 300 m² hebben. Het doel is om de woning levensloopbestendig en energieneutraal te realiseren. Dit plan draagt bij aan het verwijderen van ontsierende bedrijfsgebouwen uit het buitengebied.
Het college van burgemeester en wethouders heeft op 15 september 2022 besloten dat zij, onder voorwaarde van planologische inpasbaarheid, in principe medewerking wil verlenen aan dit initiatief. Daarnaast kan het bevoegd gezag bij omgevingsvergunning toestaan dat er een groter oppervlak aan bijbehorende bouwwerken bij een woning wordt gebouwd, mits aan de volgende voorwaarden wordt voldaan:
• Het totale oppervlak aan bijbehorende bouwwerken op een erf met een oppervlakte groter dan 3.000 m² bedraagt maximaal 300 m²;
• Een inrichtingsplan is overlegd, waaruit blijkt dat de processtappen, zoals opgenomen in het procesboek ‘Ontwikkeling agrarische erven’ (bijlage 7 bij de regels), zijn gevolgd en rekening is gehouden met het regionale landschapsbeleidsplan.
Het realiseren van de woning vereist een wijziging van het omgevingsplan. Bij een wijziging in het omgevingsplan dient een onderbouwing geleverd te worden die toeziet dat er met het beoogde plan sprake is van een evenwichtige toedeling van functies aan locaties, zoals gesteld in art. 4.2. in de Omgevingswet. Voorliggend onderbouwing voorziet in deze vereiste motivering dat er sprake is van een evenwichtige toedeling van functies aan locaties.
Voorliggende onderbouwing bestaat naast deze inleiding uit een beschrijving van het beoogde plan in hoofdstuk 2. In hoofdstuk 3 wordt verantwoord waarom het plan past binnen het beleid van het rijk, de provincie en de gemeente. In hoofdstuk 4 is het plan getoetst aan het vigerende omgevingsplan. In hoofdstuk 5 is verantwoord hoe het plan ingepast wordt in de fysieke leefomgeving en hoe voldaan wordt aan de milieuregelgeving. Tot slot is in hoofdstuk 6 de wijze van bekostiging toegelicht.
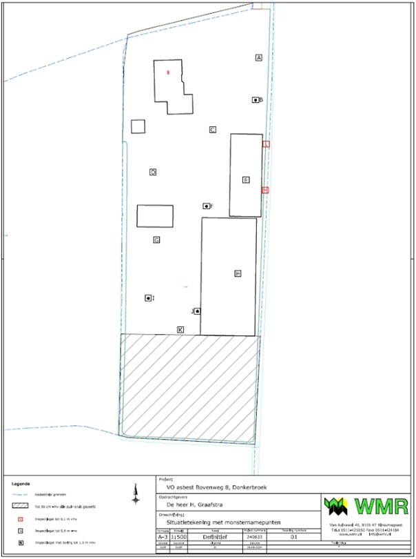
Op afbeelding 1 en 2 is de globale ligging en begrenzing van het plangebied aangegeven. Het gaat om bedrijfsbebouwing dat wordt omringd door agrarische gronden, dat op een afstand van ca 2 km van het centrum van Donkerbroek is gelegen. Aan de noordoostzijde raakt een hoek van de locatie diagonaal bijna de hoek van een locatie met en woonbestemming. Rondom grenst het plangebied aan enkele agrarische percelen. Verder oostelijk, ligt en smalle strook met de bestemming “Natuur 2”.


Het plangebied staat kadastraal bekend als DKB00 (Donkerbroek), sectie G, perceelnummer 487. Het perceel heeft een oppervlakte van circa 8566 m². In afbeelding 3 is de kadastrale kaart van de planlocatie weergegeven.

Huidige situatie
In het plangebied bevinden zich een bedrijfswoning en diverse loodsen, waaronder een leslokaal, evenals een grotendeels verhard buitenterrein. Het totale oppervlak aan bedrijfsbebouwing bedraagt circa 1.130 m², exclusief de bedrijfswoning.
De oost- en westzijde van het voormalige bedrijfsperceel is omgeven door opgaande beplanting. Langs de noordelijke toegangsweg is eveneens groene beplanting aanwezig. Het plangebied ligt dicht bij de Bovenweg, nabij Donkerbroek. Het gebied wordt omringd door agrarische percelen.
Toekomstige situatie
In de toekomst zal er een nieuwe woning worden gerealiseerd op het terrein van Bovenweg 8. Bij het ontwerp van het plangebied zijn de bestaande landschapsstructuren als uitgangspunt genomen. De beeldverstorende bedrijfsbebouwing wordt gedemonteerd of gesloopt, terwijl de voormalige bedrijfswoning blijft bestaan. Ten zuiden van de bestaande woning wordt een nieuwe woning bijgebouwd, waarbij de huidige erfstructuur en de groene omzoming gehandhaafd blijven. De ontsluitingsweg naar het perceel en de plaatselijke onderbreking van de houtwal creëren een visuele verbinding met de Bovenweg. Het zicht op het aangrenzende beekdallandschap blijft behouden door het groen aan de zuidzijde deels open te houden.
Afbeelding 4 toont de beoogde uitwerking. De woning wordt aan de zuidzijde van het perceel gebouwd, zodat het onderscheid tussen voor- en achtererf herkenbaar blijft. Het inpassingsplan bepaalt hoe de landschappelijke inpassing wordt vormgegeven en welke beplanting wordt gebruikt, ter aanvulling op de bestaande groenstructuren. Zie afbeelding 5 en Bijlage 1 Landschappelijk inpassingsplan voor de volledige uitwerking van de landschappelijke inpassing.
De nokrichting van de nieuwe woning zal aansluiten bij de bestaande woning, namelijk in de lengterichting van de kavel. Het uiteindelijke woningontwerp wordt in overleg met de welstandscommissie verder uitgewerkt, waarbij de gebiedsgerichte criteria uit de Welstandsnota voor dit deel van het buitengebied worden gevolgd. Wat betreft de maatvoering is de bestemming Wonen uit het bestemmingsplan ‘Buitengebied 2016’ leidend, wat betekent dat het hoofdgebouw niet groter mag zijn dan 175 m².
Conform het gemeentelijk beleid voor vrijstaande woningen wordt parkeren op het erf opgelost. Er zullen minimaal vier parkeerplaatsen worden aangelegd: twee voor de voormalige bedrijfswoning en twee voor de nieuwe woning.


De bomenrij langs de oprit wordt door middel van een houtsingel met afwisselende lagen van bomen, struiken en kruiden verlengd tot het einde van het perceel, waarna deze lijn zich voortzet in de bomenrij van het omliggende landschap.
Een solitaire boom op het gazon fungeert als opvallend element op het voorerf.
Een haag biedt een groene omlijsting van het voorerf van perceel 1.
Langs de oprit op perceel 1 wordt een tweede bomenrij aangeplant om de entree naar perceel 2 (hoofderf) te accentueren.
Een nieuwe houtwal met variërende lagen van bomen, struiken en kruiden vormt een stevige, landschappelijke groene scheiding tussen de twee percelen.
De houtsingel op perceel 1 wordt in noordelijke richting steeds transparanter, met een overgang naar een solitaire boom op de hoek van het perceel.
Een boomgaard met hoogstamfruitbomen creëert een harmonieuze overgang van het erf naar het omliggende landschap.
De tuin, georiënteerd op het landschap, biedt ruimte voor een moestuin.
Principeverzoek - omgevingstafel
Het college van burgemeester en wethouders heeft op 15 september 2022 besloten dat zij, onder voorwaarde van planologische inpasbaarheid, in principe medewerking wil verlenen aan dit
initiatief. Vervolgens zijn er meerder overleggen geweest met het bevoegd gezag om te komen tot een optimale positionering van de nieuwe gebouwen op de locatie. Ook het landschappelijk inpassingsplan is hierbij betrokken. Initiatiefnemer heeft vervolgens de plannen doorgenomen met de direct omwonenden.
Bestuurlijk overleg
In het kader van bestuurlijk vooroverleg is vooroverleg gevoerd met de provincie en het waterschap. Het overleg tussen de bestuurlijke instanties dient in een redelijke verhouding te staan tot de aard en omvang van het ruimtelijk plan. Het overleg dient dan ook beperkt te blijven tot die overheidsinstanties waarmee overleg werkelijk noodzakelijk is om te voorkomen dat de taak of verantwoordelijkheid van het andere overheidsorgaan ontoelaatbaar wordt beperkt, of dat het door dat orgaan te behartigen belang aantoonbaar wordt benadeeld. N.B. het vooroverleg is volgens de omgevingswet niet wettelijk verplicht.
In deze paragraaf en in Bijlage 9 Participatie (verklaringen geen bezwaar) zullen de resultaten van het overleg worden samengevat en van een antwoord worden voorzien.
Participatie
In het kader van de voorbereiding op de planvorming zijn de omwonenden en belanghebbenden persoonlijk betrokken en geïnformeerd door initiatiefnemer. Omwonenden hebben aangegeven geen bezwaar te hebben tegen het initiatief. In Bijlage 9 Participatie (verklaringen geen bezwaar) zijn de verklaringen van de omwonenden opgenomen.
Omgevingswet
Op 1 januari 2024 is de Omgevingswet in werking getreden. De Omgevingswet staat voor een evenwichtige toedeling van functies aan locaties en een goede balans tussen het benutten en beschermen van de fysieke omgeving. De Omgevingswet bundelt wetgeving en regels voor ruimte, wonen, infrastructuur, milieu, natuur en water. De nieuwe wet zorgt een samenhangende benadering van de fysieke leefomgeving, ruimte voor lokaal maatwerk en betere en snellere besluitvorming.
Nationale omgevingsvisie (NOVI)
Op 11 september 2020 is de Nationale Omgevingsvisie (NOVI) vastgesteld als rijksstructuurvisie. De NOVI vervangt onder andere de Structuurvisie Infrastructuur en Ruimte (SVIR). De NOVI is de langetermijnvisie voor een duurzame fysieke leefomgeving in Nederland.
De NOVI heeft als toekomstperspectief een duurzame leefomgeving waarbij de kwaliteiten van de omgeving worden behouden en versterkt. Daarnaast bestaan de Nederlandse uitdagingen van de ruimtelijke inrichting in een klimaatbestendige delta en zorgvuldig gebruik van de schaarse ruimte in Nederland. Dit kan worden bereikt door goede samenwerking tussen de verschillende betrokken instanties. De opgaven die voortkomen uit de nationale belangen van het Rijk zijn vertaald in vier integrale prioriteiten:
Binnen deze prioriteiten zal aandacht zijn voor de onderlinge verwevenheden en spanningen daartussen en voor thema’s en opgaven die daar dwars doorheen lopen, zoals leefomgevingskwaliteit, gezondheid, cultureel erfgoed, water, bodem en (nationale) veiligheid.
Binnen de prioriteiten hanteert het Rijk drie afwegingsprincipes die helpen om beleidskeuzes te maken:
Planspecifiek
Het voorliggende plan sluit aan op de prioriteit "Sterke en gezonde steden en regio's". Binnen het plangebied wordt een nieuwe woning gerealiseerd. Daarnaast zal de woning worden gerealiseerd dat aansluit aan de uitstraling het gebied. De ontwikkeling draagt bij aan het imago van het gebied en versterkt de uitstraling van het gebied. Als gevolg hiervan past het beoogde plan goed binnen de omgeving. Een van de resultaten is dat de leefbaarheid en vitaliteit van het gebied wordt bevorderd. Deze verbeteringen sluiten daarmee aan bij de doelstellingen van sterke en gezonde steden en regio's.
Voor nadere toelichting op de landschappelijke inpassing wordt verwezen naar paragraaf 2.2
Instructieregels Rijk (AMVB's)
Bij een aanvraag van een wijziging van het omgevingsplan zijn de instructieregels in hoofdstuk 5 van het Bkl, de provinciale instructieregels en eventuele instructies het beoordelingskader.
Het Bkl omvat voor de volgende onderwerpen instructieregels:
Waarborgen van veiligheid (paragraaf 5.1.2)
Beschermen van waterbelangen (paragraaf 5.1.3)
Beschermen van gezondheid en milieu (paragraaf 5.1.4), waaronder instructieregels voor de kwaliteit van de buitenlucht, trillingen, geluid en geur en bodemkwaliteit;
Beschermen van landschappelijke of stedenbouwkundige waarden en cultureel erfgoed (paragraaf 5.1.5), waaronder de ladder voor duurzame verstedelijking;
Het behoud van ruimte voor toekomstige functies (paragraaf 5.1.6) voor autowegen, buisleidingen, natuur- en recreatiegebieden;
Het behoeden van de staat en werking van infrastructuur of voorzieningen voor nadelige gevolgen van activiteiten (paragraaf 5.1.7), waaronder landsverdediging en nationale veiligheid, elektriciteitsvoorziening, rijks vaarwegen en luchtvaart, fiets- en wandelroutes, aanwijzing van woningbouwcategorieën;
Het bevorderen van de toegankelijkheid van de openbare buitenruimte voor personen (paragraaf 5.1.8).
Daarnaast bevat afdeling 5.2 van het Bkl instructieregels voor de uitoefening van taken voor de fysieke leefomgeving. Daarbij gaat het onder meer om het voorkomen van belemmeringen van gebruik en beheer van spoorwegen en rijkswegen. In heel bijzondere gevallen kunnen B&W de Minister vragen om een ontheffing van bepaalde instructieregels te verlenen. Dit volgt uit afdeling 5.3 van het Bkl.
Planspecifiek
Op voorliggend plan zijn in paragraaf 5.1, 5.3 5.9 en 5.11 aangaande veiligheid, gezondheid en milieu en beschermen landschappelijke, stedenbouwkundige en culturele waarden van toepassing. In hoofdstuk vijf van deze motivering worden de consequenties van de instructieregels voor het plan beschreven. Op basis van de informatie uit hoofdstuk vijf kan gesteld worden dat er geen strijd is met de instructieregels uit het Bkl.
De romte diele
De omgevingsvisie “de romte diele” is vastgesteld door Provinciale staten op 23 september 2020. In de Omgevingsvisie “De romte diele” staat wat de provincie doet om de basiskwaliteiten van de Friese leefomgeving op orde te houden. Ook staat er in waar de provincie met de leefomgeving van Fryslân naar toe wil: de ambitie en doelen voor de komende 25 jaar. Dat geeft richting aan waar de provincie met partijen naar toe wil werken.
De hoofdambitie is:
Brede welvaart in een vitaal, veerkrachtig, karakteristiek en gezond Fryslân. Dat is de hoofdambitie van de provincie Fryslân voor de Friese leefomgeving. Met de leefomgeving bedoelen we: de gedeelde ruimte waarin de mensen in de provincie samenleven. Fryslân is van alle mensen die er wonen, werken of te gast zijn.
De provincie wil extra inzetten op vier urgente, integrale opgaven:
Fryslân vitaal, leefbaar en bereikbaar houden;
Energietransitie met kracht voortzetten;
Fryslân klimaat adaptief inrichten;
Versterken van de biodiversiteit;
Het plangebied ligt niet binnen het bestaand stedelijk gebied van de kern Donkerbroek, zoals in onderstaande afbeelding is te zien. Het provinciaal beleid is erop gericht om wonen en werken zoveel mogelijk te bundelen in bestaand stedelijk gebied om zo zorgvuldig ruimtegebruik te bewerkstelligen. Aangezien er sprake is het slopen van beeld verstorende bebouwing, het beëindigen van een ongewenste activiteit op het platteland en het hergebruiken van de locatie voor het bouwen van een nieuwe woning, wordt hiermee de vitaliteit en leefbaarheid van Fryslân versterkt.
De bestaande loodsen en kantoren gebruikten relatief veel energie. De nieuwe woning wordt bijna energieneutraal gebouwd. Ook wordt de woning voorzien van zonnepanelen. Het plan draagt bij aan het voortzetten van de energietransitie.
Water-robuust bouwen is voldoende hoog en/of adaptief bouwen, zodat bij calamiteiten de schade van een overstroming beperkt blijft. Het plangebied ligt niet binnen bestaand stedelijk gebied. De locatie is van zichzelf al water-robuust ingericht. Het peil van de woning wordt hoger aangelegd dan de hoogte van het maaiveld van de omliggende landerijen. Veel dichte verharding wordt weggehaald, regenwater wordt minder snel afgevoerd. Ook wordt een voorziening gemaakt om ondergronds regenwater op te vangen. Dit water wordt gebruikt voor het sproeien van de planten en wassen van de ramen. Bovendien heeft het watersysteem rond de locatie een grote afvoercapaciteit. De impact van de klimaatverandering op het initiatief is zo klein mogelijk. De locatie wordt klimaat adaptief ingericht.
Veel verharding wordt vervangen voor tuin of gazon. De locatie wordt voorzien van meer en meer diverse soorten planten en bomen, zie hier hiervoor Bijlage 1 Landschappelijk inpassingsplan. Er wordt bewust ruimte voor biodiversiteit gecreëerd op, aan of in het gebouw en de directe omgeving, zodat er meer diverse planten- en diersoorten kunnen leven.
Het initiatief draagt, op de schaal die past bij het project, bij aan de uitgangspunten gesteld in de omgevingsvisie.
Omgevingsverordening Fryslân 2022
Deze omgevingsverordening heeft betrekking op de fysieke leefomgeving en activiteiten die gevolgen hebben of kunnen hebben voor de fysieke leefomgeving zoals bedoeld in artikel 1.2 van de Omgevingswet.
Een goede omgevingskwaliteit is een publiek belang. Het gaat daarbij niet om de maximale kwaliteit voor één gebruiker, maar om goede kwaliteit voor de gemeenschap. Het gaat niet alleen over het visuele aspect, maar is gericht op het samengaan van gebruikswaarde, toekomstwaarde en belevingswaarde.
Een goede omgevingskwaliteit is een van de maatschappelijke doelstellingen van de Omgevingswet, in samenhang met een veilige en gezonde fysieke leefomgeving en het doelmatig beheren, gebruiken en ontwikkelen daarvan ter vervulling van maatschappelijke behoeften.
De omgevingsverordening is gebaseerd op vier inhoudelijke principes: ‘Omgevingskwaliteiten als ontwerpbasis’ ‘Zuinig en meervoudig ruimtegebruik’, ’Koppelen en verbinden als uitdaging’ en ‘Gezond en veilig’.
Omgevingskwaliteiten als ontwerpbasis
artikel 2.1 lid 3: Een omgevingsplan dat voorziet in nieuwe functies of uitbreiding van bestaande functies buiten het bestaand stedelijk gebied bevat voor die functies een onderbouwing van de wijze waarop het plan de omgevingskwaliteiten benut als ontwerpbasis, en het borgt het zorgvuldig situeren en inrichten van nieuwe functies of uitbreiding van bestaande functies op basis van de omgevingskwaliteiten.
Als Bijlage 1 Landschappelijk inpassingsplan is het landschappelijk inpassingsplan opgenomen. Het nieuwe gebouw wordt hiermee zorgvuldig ingepast in de bestaande structuur. De omgevingskwaliteit is benut als ontwerpbasis.
Zuinig en meervoudig ruimtegebruik
Artikel 2.3
Een omgevingsplan, dat voorziet in nieuwe functies of uitbreiding van bestaande functies buiten het bestaand stedelijk gebied, bevat voor die functies een onderbouwing van het principe van zuinig- en meervoudig ruimtegebruik, waaruit tenminste blijkt:
In het geval in een omgevingsplan een nieuwe stedelijke functie wordt toegedeeld buiten het bestaand stedelijk gebied, moet worden onderbouwd waarom die functie redelijkerwijs niet binnen het bestaand stedelijk gebied kan worden gerealiseerd.
Motivatie nieuwe woning op deze locatie:
Landelijk is er sprake van een woningtekort. De bestaande bedrijfsgebouwen op de locatie hebben hun functie verloren, en passen bovendien qua functie niet in het landelijk gebied. De woning wordt gerealiseerd op dezelfde locatie, een bestaand bouwperceel.
Meervoudig ruimtegebruik: er wordt gebouwd in meerdere lagen, er worden zonnepanelen toegepast op het dak.
Koppelen en verbinden
Artikel 2.4:
Een omgevingsplan dat voorziet in nieuwe functies of uitbreiding van bestaande functies buiten het bestaand stedelijk gebied, bevat voor die functies een onderbouwing van de wijze waarop nieuwe ontwikkelingsmogelijkheden in het plan bijdragen aan één of meerdere opgaven voor de leefomgeving, zoals energietransitie, klimaatadaptatie, circulaire economie, werkgelegenheid of het versterken van de biodiversiteit, door het maken van slimme combinaties en het benutten van koppelkansen.
Op welke wijze het project bijdraagt aan de energietransitie, de klimaatadaptie en het versterken van de biodiversiteit is omschreven onder paragraaf 3.2.1. Door het verwijderen van de bedrijfsgebouwen uit het landelijk gebied en het uitvoeren van het landschappelijk inpassingsplan verbeterd de leefomgeving.
Door het project wordt aan de circulaire economie bijgedragen door hergebruik van de vrijkomende materialen en grondstoffen vanuit de vrijkomende bestrating, en de sloop van de bedrijfsgebouwen. De kantoren op de locatie hebben intussen al een nieuwe functie elders gekregen. De werkgelegenheid neemt toe met een aantal manjaren door de ontwikkeling, voorbereiding en uitvoering van de plannen.
Conclusies Koppelen en verbinden
Naar de aard en schaal van het project wordt koppelkansen voldoende benut.
Gezond en veilig
Artikel 2.5
Een omgevingsplan, dat voorziet in nieuwe functies of uitbreiding van bestaande functies, bevat een onderbouwing van de wijze waarop effecten op de gezondheid en veiligheid zijn meegewogen in het plan.
Motivatie
In de nabije omgeving van het plangebied zijn geen gevaarlijke bronnen aanwezig. De dichtstbijzijnde bron vanuit het aspect Externe Veiligheid is de N381. Deze ligt circa 2,4 km ten westen van het plangebied.
In het gebied zijn geen verdere risico's voor menselijke gezondheid geïdentificeerd.
Conclusie
Door het initiatief wordt geen onverantwoorde risico’s gelopen op het gebied van veiligheid en gezondheid.
Ruimte voor Ruimte sloop beeldverstorende bebouwing
In artikel 2.27 is de ruimte-voor-ruimte-regeling opgenomen. In afwijking van artikel 2.6 kan buiten het bestaand stedelijk gebied maximaal één nieuwe woning op een bestaand voormalig agrarisch bouwperceel of een voormalig niet-agrarisch bouwperceel, in een omgevingsplan worden opgenomen, wanneer:
sprake is van sloop van 1000 m² aan beeldverstorende bebouwing op het voormalig agrarisch bouwperceel of voormalig niet-agrarisch bedrijfsperceel, en
de omgevingskwaliteiten op het perceel aanzienlijk verbeteren, en
de omvang van de woning is afgestemd op aard en schaal van de omgeving
Aan deze voorwaarden wordt voldaan.

Er wordt 1.123 m2 aan beeld verstorende bebouwing gesloopt. Het nieuwe erf wordt ingericht op een cultuurhistorisch en landschappelijk verantwoorde manier. In de directe omgeving liggen geen (agrarische) bedrijven die belemmerd worden door de woningbouw. Voor wat betreft de maatvoering van de nieuwbouw is aangesloten bij het Bestemmingsplan Buitengebied, onderdeel van het tijdelijk omgevingsplan. Tenslotte kan worden opgemerkt dat de compensatiewoning gebouwd kan worden op grond van de woon(zorg)visie 2022-2026 van de gemeente Ooststellingwerf d.d. 18‑10‑2021 (zie paragraaf 3.3.2).
Conclusies provinciaal beleid:
Het planvoornemen voldoet aan de gestelde eisen van de Provincie Fryslân.
Omgevingsvisie
Op 23 november 2021 heeft de gemeenteraad de Omgevingsvisie Ooststellingwerf vastgesteld. De Omgevingsvisie is de visie van de gemeente op de leefomgeving en vervangt de gemeentelijke structuurvisie. De visie laat zien wat het toekomstbeeld is voor de openbare ruimte in de gemeente Ooststellingwerf.
Het plangebied wordt in de omgevingsvisie als volgt omschreven:
Zandruggen
Donkerbroek en Haule zijn ook lintdorpen. De dorpen liggen op zandruggen ten noorden van het beekdal van de Tjonger. De houtsingels en bosgebieden geven het gebied een besloten karakter.
Het gebied is al lange tijd bewoond, maar in de Middeleeuwen ontstaan de huidige dorpen. Donkerbroek groeit snel met allerlei ambachten en kleine bedrijvigheid. De ligging aan de Opsterlânske Kompanjonsfeart helpt daarbij. Nu is de aansluiting op de N381 de belangrijkste verbinding met de wijde omgeving.
De volgende ambities uit de omgevingsvisie Ooststellingwerf worden ingevuld in het plan, uiteraard naar de aard en de schaal van het initiatief:
Meer biodiversiteit door versterking van de landschappelijke waarden van het gebied binnen en buiten de dorpen;
We vergroten de landschappelijke kenmerken van het gebied en beschermen de natuurwaarden in het gebied. Dat doen we door ontwikkelingen in het landelijk gebied bijvoorbeeld te verbinden met het versterken van de (structuur van) houtsingels. Ook vragen we van alle ontwikkelingen dat ze worden ingepast in de landschappelijke opzet van het gebied.
Goed wonen in een groene omgeving staat voorop. In deze dorpen zorgen we dat er passende woningen zijn voor jong en oud. We ondersteunen lokale initiatieven voor woningbouw voor jongeren en ouderen van harte. Het liefst zelfs in combinatie zodat zorgen voor en ‘omtinke foar elkoar’ meer natuurlijk wordt. Daarbij zoeken we eerst de ruimte in het omvormen van bestaande panden en erven of het beperkt toevoegen van nieuwe woningen in de bestaande linten.
Voor de invulling van deze ambities verwijzen hier naar het bijgevoegde landschappelijk inpassingsplan. Het initiatief voldoet ook aan de gestelde eisen in de omgevingsvisie voor wat betreft de milieukwaliteit. De uitwerking van de verschillende aspecten is verder uitgewerkt in hoofdstuk 5.
Woon(zorg)visie Ooststellingwerf 2022-2026
In de woon(zorg)visie legt de gemeente haar woonbeleid vast. Er is een nieuwe woon(zorg)visie opgesteld voor de periode 2022-2026.
In de woon(zorg)visie is onder andere opgenomen hoeveel woningen de gemeente Ooststellingwerf de komende jaren wil realiseren, in welke dorpen deze zouden moeten komen en voor wie deze woningen gebouwd moeten worden. Maar wonen staat niet op zichzelf. Het raakt verschillende thema’s zoals welzijn en zorg, duurzaamheid en leefbaarheid. In de woon(zorg)visie zijn de opgaven en ambities rondom deze thema´s voor de komende jaren benoemd. Op 25 januari 2022 is de woon(zorg)visie Ooststellingwerf 2022-2026 vastgesteld. Het aantal huishoudens in Ooststellingwerf zal blijven groeien. De gemeente Ooststellingwerf werkt aan een versnelling van de woningbouw. Tot 2030 wordt ingezet op een groeiscenario van 520 woningen om de druk op de huidige markt te verlichten en kansen van economische voorspoed te verzilveren. Gezocht wordt naar mogelijkheden voor versnelling in productie op korte termijn.
Het toetsingskader woningbouw vastgelegd in de Woon(zorg)visie Ooststellingwerf 2022-2026 is voor de dorpen Haulerwijk, Donkerbroek en Oldeberkoop:
Kwantitatief: De kwantitatieve toets kijkt in hoeverre het geplande aantal woningen aansluit op de woningbehoefte. Daarbij gaat de gemeente uit van de woningbehoefte die blijkt uit het recente woningmarktonderzoek. Hieruit komt naar voren dat tot 2030 er ruimte is voor een toevoeging van 320 tot 520 woningen.
Kwalitatief: Het kwalitatieve toetsingskader wordt gebruikt om bij nieuwe initiatieven te sturen op kwaliteit. Er wordt onderscheid gemaakt tussen ambities en overige aspecten. Op het gebied van ambities moet een project voldoen aan de kaders om actieve medewerking te krijgen van de gemeente. Op het gebied van overige aspecten wordt de voorkeur door de gemeente aangegeven, om te komen tot woningbouwplannen die het best aansluiten op de gemeentelijke behoefte en visie. In onderstaande tabel zijn de voor dit initiatief relevante ambities en overige aspecten overgenomen.
Criterium | Haulerwijk, Donkerbroek en Oldeberkoop |
Ambitie |
|
Passend bij de kwalitatieve behoefte* | • Vooral grondgebonden koopwoningen tot €300.000 • Levensloopgeschikte koopwoningen tot €250.000 voor senioren. |
Aandeel sociaal, middenhuur en betaalbare koop* | Op programmaniveau: • Maximaal 30% koopwoningen boven de €300.000. → Zie toelichting percentages |
Overige aspecten |
|
Duurzaamheid en klimaatbestendigheid | Klimaatadaptief gebouwd. |
Constructiemethode | Gebruik van circulaire materialen (bijv. hout, stro etc.) of constructiemethodes (bijv. industrieel of demontabel) |
Innovatie en initiatief vanuit de samenleving | Prioriteit voor particulier initiatief van woonzorgconcepten (hofjes) en duurzame of betaalbare initiatieven (bijv. splitsen van woningen, meergeneratiewoningen of tiny houses) |
Toets van het initiatief aan ambities:
Met onderhavig initiatief zal en woning worden gerealiseerd in de categorie koopwoning boven de € 300.000, --Dit initiatief past binnen de ambitie om tot 2030 tussen 96 en 156 stuks grondgebonden koopwoningen te bouwen boven de € 300.000, --.
Toets aan overige aspecten:
De woning zal zo veel als mogelijk duurzaam, natuurinclusief en klimaatbestendig worden gebouwd. Er zal bewust ruimte voor biodiversiteit wordt gecreëerd op, aan of in het gebouw en de directe omgeving, zodat er meer diverse planten- en diersoorten kunnen leven.
Qua duurzaamheid zullen zo veel als mogelijk uitkomende materialen van de te slopen gebouwen worden hergebruikt in de nieuw te bouwen woning of elders. De woning zal uiteraard gasloos en goed geïsoleerd worden gebouwd. Doelstelling is om een energie neutrale woning te bouwen. Veel erfverharding zal worden verwijderd, en er zullen bomen en struiken worden geplant, (zie erfinrichtingsplan) waardoor regenwater langer kan worden vastgehouden en er meer schaduw gecreëerd wordt.
Conclusie
Het initiatief is passend binnen de woon(zorg)visie Ooststellingwerf 2022-2026
Procesboek ontwikkeling (agrarische) erven Ooststellingwerf
In het 'Procesboek Ontwikkeling (agrarische) erven Ooststellingwerf' (20 augustus 2015) is door de gemeente aangegeven hoe stapsgewijs tot een goede inpassing van ruimtelijke initiatieven binnen dit landschapstype gekomen kan worden. In het navolgende worden deze stappen doorlopen. Eerst zal een typering van de kenmerken van het Woudontginning worden gegeven. Het plangebied maakt deel uit van het Woudontginning (zie onderstaand kader). Belangrijke kenmerken zijn:
Bebouwing geconcentreerd langs rechte wegen over de zandrug;
Opstrekkende verkavelingsstructuur met percelen vanaf de zandrug het beekdal in;
Vaak parallelle wegenstructuur met een binnenweg op het hoogste deel van de zandrug en een buitenweg aan de zijde van het beekdal;
Laanbeplanting langs de wegen en houtsingels en bosstroken geven het gebied een kleinschalig karakter.
Deze kenmerken zijn ook binnen en rond het plangebied waarneembaar. Er is sprake van een ruim bemeten bebouwingscluster, dat op afstand ligt ten opzichte van de Bovenweg en door houtwallen wordt afgegrensd. Nagenoeg het hele plangebied is gesloten door de aangebrachte erfbeplanting, aan de zuidzijde van de locatie is er beplanting met minder dichte onder-begroeiing aanwezig, waardoor er zicht is op het aangrenzende beekdallandschap van de Kuunder.
Woudontginning
Ontstaansgeschiedenis In de dertiende eeuw zijn de mensen begonnen met het in cultuur brengen van de dekzandruggen tussen de beekdalen. Deze ruggen zijn de hogere en dus drogere plekken in het landschap en daarom geschikt als woonplek. Vanaf de zandrug zijn de beekdalen ontgonnen, waardoor haaks op de loop van de beek langgerekte kavels zijn ontstaan. De percelen worden van elkaar gescheiden door houtsingels en smalle bosstroken. Kenmerkend zijn de twee parallelle wegen over de dekzandrug, die alle percelen met elkaar verbinden. De binnenweg loopt over het hoogste deel van de zandrug en is de basis van het oudste bebouwingslint. De buitenweg ligt op de overgang van de rug naar het beekdal en is pas later bebouwd. Dat is goed te zien bij Oldeberkoop waar de binnenweg (Oosterwoldseweg) eerder is bebouwd dan de buitenweg (De Weeme). Ook de bebouwing volgt de zandrug waardoor de karakteristieke streekdorpen zijn ontstaan. Deze streekdorpen vormen een lang bebouwingslint op de rug. Het bebouwingslint van Oldeberkoop, Nijeberkoop en Makkinga wordt tot dit landschap gerekend evenals het lint van Donkerbroek en Haule. Naast deze lange bebouwingslinten op de zandruggen zijn op geïsoleerde zandruggen de linten van Fochteloo en Elsloo ontstaan. Deze bebouwingslinten worden ook tot de woudontginningen gerekend.
Hieronder zijn de uitkomsten van de vijf stappen uit het ‘Procesboek Ontwikkeling (agrarische) erven Ooststellingwerf’ samengevat. Door deze stappen te doorlopen wordt het plangebied op een landschappelijk verantwoorde wijze ingepast, waarbij tevens rekening is gehouden met de bedrijfseconomische wensen van de initiatiefnemer. In afbeelding 9 is het inpassingsplan weergegeven. Dit inpassingsplan is het eindresultaat van de vijf stappen en is vertaald naar de juridische regeling van dit omgevingsplan. Deze juridische regeling is separaat toegevoegd in de regels en de verbeelding.
Stap 0 – bestaande situatie: deze is toegelicht in paragraaf 2.2.1. In totaal is circa 1.130 m2 aan bedrijfsbebouwing aanwezig. Voor aanvang van het bouwen van de woning zullen deze bedrijfsgebouwen worden gedemonteerd/gesloopt. Het opgaand groen rondom het perceel blijft behouden.
Stap 1 – wensen bedrijfsvoering: het is van belang om de nieuwe woning en bijgebouw zodanig te situeren dat er zo min mogelijk wederzijdse overlast en voldoende privacy ontstaat, ook ten opzichte van de bestaande (bedrijfs)woning. Verder is het de wens van de initiatiefnemer om zoveel mogelijk gebruik te maken de aanwezige infrastructuur.
Stap 2 – kenmerken landschap: van de typische kenmerken van het Woudontginning is vooral 'het silhouet van het erf waarbij bebouwing en beplanting elkaar afwisselen' herkenbaar. Ook het onderscheid van een voorerf waar gewoond wordt (bestaande woning) en een achtererf (waar de bedrijfsbebouwing stond) is nog zichtbaar. Zoals blijkt uit de toelichting op de inrichtingsschets hieronder, is bij de situering van de nieuwbouw rekening gehouden met deze kenmerken.
Stap 3 – randvoorwaarden omgeving; de directe omgeving van het projectgebied stelt geen specifieke randvoorwaarden aan de bouw van de woning. Op dit punt wordt ook verwezen naar hoofdstuk 4 waarin het initiatief getoetst wordt aan voorwaarden op het gebied van natuur en milieu.
Stap 4 – inpassingsplan: hieronder wordt het inpassingsplan nader toegelicht.
Stap 5 – vormgeving bebouwing: de bouwtekeningen worden t.z.t. opgesteld.
Conclusie gemeentelijk beleid
Het planvoornemen voldoet aan de gestelde eisen van de gemeente Ooststellingwerf.
Het tijdelijke deel van het omgevingsplan omvat de geldende bestemmingsplannen, de verordeningen en de regels vanuit Rijk, die bij invoering van de Omgevingswet overgedragen zijn aan gemeenten, ook wel genaamd bruidsschat. Voor het plangebied geldt op dit moment het tijdelijk omgevingsplan “Buitengebied 2016’’, dat op 26 maart 2019 is vastgesteld door de gemeenteraad van Ooststellingwerf.
In afbeelding 9 is de planlocatie weergegeven binnen het bestemmingsplan ‘Dorpskernen, plangebied ter plaatse van de marker.

Zoals benoemd maakt op dit moment het plangebied deel uit van het bestemmingsplan ‘Buitengebied 2016’. Dit bestemmingsplan is op delen – partieel- gewijzigd zoals vastgelegd in het bestemmingsplan “Buitengebied 2016, veegplan 2018, (vastgesteld op 26‑03‑2019). (Een gedocumenteerde versie van het bestemmingsplan Buitengebied 2020 is vastgesteld 26‑03‑2019.) Daarin heeft het de bestemming ‘Bedrijf’. Ook gelden de dubbelbestemmingen ‘Waarde – Archeologie 4’ en ‘Waarde – Cultuurhistorie 1’. In paragraaf 5.11 wordt onderhavig initiatief getoetst op beide waarden. Op grond van de huidige bestemming is het niet mogelijk woningbouw te realiseren dan wel de bedrijfswoning als burgerwoning te gebruiken. Dit betekent, zoals aangegeven in de inleiding, dat het omgevingsplan gewijzigd moet worden.
Met de inwerkingtreding van de Omgevingswet op 1 januari 2024 staat het bereiken en in stand houden van een veilige en gezonde fysieke leefomgeving, samen met een goede omgevingskwaliteit, centraal (artikel 1.3, lid a). De invulling van dit vereiste is in de jurisprudentie verder gepreciseerd. Onderstaand is per woon- en omgevingsaspect beschreven wat voor een wijziging er optreedt en dat daarmee een gezonde fysieke leefomgeving, samen met een goede omgevingskwaliteit gegarandeerd is.
Sinds 1 januari 2024 maakt een toets aan de regels voor milieueffectrapportage (m.e.r.) deel uit van de beoordeling van de volledigheid van een aanvraag voor een Wijzing aan het Omgevingsplan onder de Omgevingswet. Doel van m.e.r. is het milieubelang volwaardig te laten meewegen bij de voorbereiding en vaststelling van plannen en besluiten die (uiteindelijk) kunnen leiden tot belangrijke nadelige gevolgen voor het milieu. De wetgeving omtrent de milieueffectrapportage (m.e.r) is opgenomen in afdeling 16.4 van de Omgevingswet en in hoofdstuk 11 en bijlage V bij het Omgevingsbesluit.
Planspecifiek
Het voorgestelde plan betreft een stedelijk ontwikkelingsproject, waardoor de volgende aspecten van toepassing zijn:
Stedelijk ontwikkelingsproject
Volgens Bijlage V van het Omgevingsbesluit J11 is een Stedelijk Ontwikkelingsproject niet verplicht om een milieueffectrapportage (MER) op te stellen. Echter, voor bepaalde stedelijke ontwikkelingsprojecten, zoals aanleg, wijziging of uitbreiding, is een MER-beoordeling wel vereist. Dit geldt met name wanneer er aanzienlijke milieueffecten kunnen optreden, zoals bepaald in artikel 16.43, eerste lid, onder b, van de wet. In dergelijke gevallen moet tijdens de voorbereiding van de besluitvorming een milieueffectrapport worden opgesteld, waarbij het bevoegd gezag beoordeelt of er sprake is van aanzienlijke milieueffecten, tenzij de initiatiefnemer van het project al een milieueffectrapport heeft opgesteld tijdens de voorbereiding van de besluitvorming.
Bij de beoordeling door het bevoegd gezag worden relevante criteria uit Bijlage III van de MER-richtlijn in overweging genomen. Deze criteria omvatten:
Kenmerken van de Projecten: Bij het beschouwen van de kenmerken van de projecten dienen met name de volgende aspecten in overweging te worden genomen:
Plaats van de Projecten: Bij het evalueren van de kwetsbaarheid van het milieu in gebieden die mogelijk beïnvloed worden door de projecten, dienen met name de volgende factoren in beschouwing te worden genomen:
Bestaand grondgebruik;
Relatieve rijkdom, kwaliteit en regeneratievermogen van natuurlijke hulpbronnen in het gebied;
Opnamevermogen van het natuurlijke milieu, met speciale aandacht voor:
Wetlands;
Kustgebieden;
Berg- en bosgebieden;
Reservaten en natuurparken;
Gebieden aangeduid of beschermd door nationale wetgeving;
Speciale beschermingszones aangewezen volgens EU-richtlijnen;
Gebieden waar milieunormen van de EU worden overschreden;
Gebieden met hoge bevolkingsdichtheid;
Landschappen van historisch, cultureel of archeologisch belang.
Kenmerken van het Potentiële Effect: De potentiële aanzienlijke effecten van het project moeten in samenhang met de criteria van de punten 1 en 2 in overweging worden genomen. Hierbij moet met name worden gekeken naar:
Er wordt onder de Omgevingswet niet meer getoetst worden aan de limitatieve lijst van MER-plichtige plannen en programma’s uit de Bijlage bij het Besluit MER. Het bevoegd gezag zal per specifiek geval na moeten gaan of er sprake is van een plan of programma in de zin van de SMB-richtlijn. Er wordt onder de Omgevingswet geen onderscheid meer gemaakt tussen een formele en vormvrije MER-beoordeling op grond van aangewezen drempelwaarden. Er is dus nog maar één MER-beoordelingsprocedure.
Kenmerken van het project | |
Criteria | Toets |
Omvang van het project | Het plan maakt het volgende project mogelijk:
Het realiseren van een nieuwe woning en schuur
|
Cumulatie met andere projecten | De ontwikkeling betreft een op zichzelf staande ontwikkeling en derhalve is cumulatie met andere projecten niet aan de orde.
|
Gebruik van natuurlijke hulpbronnen | Er wordt zorgvuldig omgegaan met natuurlijke hulpbronnen, waaronder bouwmaterialen zoals hout, en energie, passend bij het beoogde gebruik en de schaal van het voorgenomen project. Het gebruik van natuurlijke hulpbronnen is beperkt tot wat strikt noodzakelijk is voor de bewoonde ruimten, zoals het gebruik van kraanwater. Gezien de aard en omvang van het initiatief wordt een beperkt verbruik van natuurlijke hulpbronnen verwacht.
Dit gebruik zal, gezien het karakter van het plan, naar verwachting relatief beperkt zijn in omvang.
|
Productie van afvalstoffen | Naast het gebruikelijke huishoudelijk afval dat voortkomt uit de toekomstige bebouwing en functies, inherent aan woningen, evenals het afval dat tijdens de bouwfase ontstaat (een tijdelijke situatie), wordt verwacht dat er geen andere afvalstoffen zullen worden geproduceerd gezien het toekomstige gebruik.
|
Verontreiniging en hinder | Tijdens de aanlegfase zullen er bouw en grondwerkzaamheden plaatsvinden in het plangebied. Dergelijke werkzaamheden zijn normaal bij herontwikkelingen binnen bestaand stedelijk gebied en dergelijke transformaties/ontwikkelingen betreffen een normale maatschappelijke ontwikkeling. Hoewel enige mate van hinder niet uitgesloten is, worden significant negatieve effecten niet verwacht.
Ten aanzien van de toekomstige gebruiksfase kan op basis van de uitgevoerde omgevingsonderzoeken en verantwoordingen in de plantoelichting worden geconcludeerd dat er geen onevenredige verontreiniging en hinder zal optreden. In hoofdstuk 5 paragraaf 5.2 tot 5.14 wordt hier verder op in gegaan.
|
Het risico van zware ongevallen en/of rampen, waaronder rampen door klimaatverandering,
| In de nabije omgeving van het plangebied zijn geen gevaarlijke bronnen aanwezig. De dichtstbijzijnde bron vanuit het aspect Externe Veiligheid is de N381. Deze ligt circa 2,4 km ten westen van het plangebied.
|
Risico’s voor de menselijke gezondheid | In het gebied zijn geen verdere risico's voor menselijke gezondheid geïdentificeerd.
|
In onderdeel A van de bijlage bij het Besluit m.e.r is bepaald wat verstaan wordt onder een gevoelig gebied. Als gevoelig gebied zijn gebieden aangewezen die beschermd worden op basis van de natuurwaarden, landschappelijke waarden, cultuurhistorische waarden en waterwingebieden. Onderstaand wordt aangegeven of er sprake is van dergelijke gebieden in de nabijheid van het project en zo ja, of er sprake is van potentiële effecten op gevoelige gebieden.
Gevoelig gebied (conform onderdeel A van de bijlage bij het Besluit m.e.r.) | |
Gevoelig gebied | Toets |
Beschermd natuurmonument | Niet aanwezig in de omgeving. |
Habitat- en vogelrichtlijngebieden | Het plangebied is niet gelegen in een Vogel- en/of Habitatrichtlijngebied. Het dichtstbijzijnde Natura 2000-gebied ligt op circa 120m afstand van het plangebied. Voor verdere effecten op beschermde natuurgebieden wordt verwezen naar paragraaf 5.5.
|
Watergebied van internationale betekenis | Het plangebied valt niet binnen een watergebied van internationale betekenis.
|
Natuurnetwerk Nederland (voormalige EHS) | Het plangebied ligt buiten natuurnetwerk Nederland gebied, er zijn geen negatieve effecten op dit gebied gezien de afstand.
|
Landschappelijk waardevol gebied | Het landschap is niet landschappelijk waardevol.
|
Waterwinlocaties, waterwingebieden en grondwaterbeschermings- gebieden | Het plangebied ligt in de nabijheid van waterwinlocaties, waterwingebieden. Het aspect water is verder uitgewerkt in paragraaf 5.13.
|
Beschermd monument | Het plangebied is niet aangewezen als beschermd monument. |
Plaats van het project | |
Criteria | Toets |
De orde van grootte en het ruimtelijk bereik van de effecten (bijvoorbeeld geografisch gebied en omvang van de bevolking die getroffen kan worden),
| De potentiële negatieve effecten vanwege het plan zijn gezien de kleinschaligheid van het project uitsluitend lokaal van aard. Gezien het buiten Natura 2000-gebied ligt, de aard van de ingreep en omvang van de toekomstige bestemming, is het bereik van het potentiële effect zeer beperkt te noemen.
|
De aard van het effect,
| Gelet op het voorgaande is dit punt niet aan de orde. |
Het grensoverschrijdend karakter van het effect,
| Gelet op het voorgaande is dit punt niet aan de orde. |
De intensiteit en de complexiteit van het effect,
| Aangezien het plan beperkt van omvang is en uitsluitend lokaal van aard zal zijn, wordt verwacht dat het plan geen hoge intensiteit heeft en geen complexe effecten met zich meebrengt.
|
De waarschijnlijkheid van het effect,
| Van onevenredige negatieve effecten voor de omgeving is naar verwachting geen sprake. Dit is in de voorgaande paragrafen onderbouwd. De waarschijnlijkheid van enige onevenredig negatieve effecten is zeer gering.
|
De verwachte aanvang, de duur, de frequentie en de omkeerbaarheid van het effect,
| In de aanlegfase is er sprake van tijdelijke niet-onomkeerbare effecten, maar deze effecten zijn te verwaarlozen. Daarna is er sprake van een permanente situatie van een woonfunctie in de plaats van het oude pand (garages). Dit zal een beperkt potentieel negatief effect op de omgeving hebben.
|
De cumulatie van effecten met de effecten van andere projecten,
| Niet van toepassing. |
De mogelijkheid om de effecten doeltreffend te verminderen.
| Gezien de uitermate geringe kans op en de verwaarloosbare omvang van mogelijke effecten, is het buitengewoon onwaarschijnlijk dat verdere maatregelen ter vermindering van deze effecten noodzakelijk zijn. De effecten zelf zijn immers al nagenoeg te verwaarlozen. |
De Ladder voor Duurzame Verstedelijking is een voorschrift dat gericht is op zorgvuldig ruimtegebruik en het tegengaan van leegstand. Artikel 5.129g van het Besluit kwaliteit leefomgeving (Bkl) stelt dat bij een wijziging van het omgevingsplan voor een nieuwe stedelijke ontwikkeling de toepassing van de Ladder vereist is. Onderstaand de belangrijkste bepalingen van artikel 5.129g:
Toepassingsgebied:
Dit artikel is van toepassing op een stedelijke ontwikkeling die bestaat uit de ontwikkeling of uitbreiding van diverse voorzieningen, zoals bedrijventerreinen, zeehaventerreinen, woningbouwlocaties, kantoren, detailhandelsvoorzieningen of andere stedelijke voorzieningen, mits deze ontwikkeling voldoende substantieel is.
Overwegingen in het Omgevingsplan:
Bij de voorziening van een nieuwe stedelijke ontwikkeling in het omgevingsplan, dient rekening te worden gehouden met: a). De behoefte aan de stedelijke ontwikkeling. b). In het geval van een stedelijke ontwikkeling buiten het stedelijk gebied of buiten het stedelijk groen aan de rand van bebouwd gebied: de mogelijkheden binnen dat stedelijk gebied of dat stedelijk groen om aan de behoefte te voldoen.
Uitsluitingen voor Stedelijk Gebied:
Dienstenwet en Economische Behoefte:
Als het omgevingsplan voorziet in de vestiging van een dienst volgens de Dienstenwet, en de beoordeling van de behoefte gerelateerd is aan de economische behoefte, marktvraag of economische gevolgen van de vestiging, is het doel van de beoordeling alleen om vast te stellen of de vestiging in overeenstemming is met een evenwichtige toedeling van functies aan locaties.
Op basis van jurisprudentie van de Afdeling bestuursrechtspraak van de Raad van State is nader invulling gegeven over de inhoud en reikwijdte van de ladder duurzame verstedelijking. Voor woningbouw geldt bijvoorbeeld een Ladderplicht vanaf 12 woningen, en de Laddertoets is alleen vereist wanneer de stedelijke ontwikkeling als 'nieuw' wordt beschouwd.
Planspecifiek
In dit planvoornemen is de toepassing van de ladder voor duurzame verstedelijking niet relevant, gezien het hier om één woning gaat in landelijk gebied. De Raad van State heeft in de uitspraak van 25 maart 2015 (201407135/1/R1) aangegeven dat van een stedelijke ontwikkeling bij woningbouw sprake is vanaf 12 woningen of meer. Daarom vormt de ladder voor duurzame verstedelijking geen belemmering voor het beoogde plan.
De beoordeling van duurzaamheids- en gezondheidsaspecten is sterk afhankelijk van het gemeentelijk beleid op deze gebieden. Het beoordelingskader kan aanzienlijk variëren per gemeente. Het beoordelingskader wordt gevormd door het tijdelijk deel van het omgevingsplan (Ook wel aangeduid als 'de bruidsschat’, dit zijn vanuit het Rijk overgedragen regels bij invoering van de Omgevingswet aan gemeenten). Daarnaast kan het gemeentelijk beleid met betrekking tot duurzaamheid en/of gezondheid zijn opgenomen in het omgevingsplan in de vorm van omgevingswaarden. Het is van belang na te gaan of hieraan toepassing is gegeven. Indien dit het geval is, moet het initiatief worden getoetst aan deze omgevingswaarden.
Planspecifiek
De landschappelijke kwaliteiten worden verbeterd door het vervangen van bedrijfsgebouwen voor een zorgvuldig in de omgeving ingepaste een woning en een schuur. De vrijkomende materialen bij het verwijderen van de bedrijfsgebouwen zullen zo veel als mogelijk worden hergebruikt, niet opnieuw te gebruiken materialen, zoals de bestaande betonvloer zullen worden gerecycled. Plaatselijk is vervuilde grond aangetroffen, deze vervuiling is weggehaald.
De verkeersbewegingen van zwaar verkeer van en naar het vrachtwagenbergingsbedrijf worden beëindigd, de luchtkwaliteit verbeterd, ook is er veel minder geluidsoverlast. De nieuwe woning zal bijna energie neutraal zijn. Ook zullen er geen uitloogbare materialen worden toegepast. Kortom het plan draagt bij aan de duurzaamheids- en gezondheidsambities van de gemeente Ooststellingwerf zoals ze zijn vastgelegd in de op 23‑11‑2021 vastgestelde omgevingsvisie.
Onderdeel van de overwegingen bij het evenwichtig toedelen van functies is het aantonen dat de planontwikkeling inpasbaar is vanuit het oogpunt van bereikbaarheid, parkeerbehoefte en verkeersafwikkeling. Hierbij moet worden onderzocht of er een (extra) behoefte aan parkeerplaatsen is voor auto's, fietsen en/of scooters. Het is belangrijk dat er geen onaanvaardbaar effect ontstaat.
De omgevingsvisie van de gemeente moet een heldere visie op verkeer en vervoer op gemeentelijk niveau bevatten, en het voorgestelde initiatief moet hieraan worden getoetst. Mocht dit er (nog) niet zijn kan gebruik gemaakt worden van de bekende richtlijnen vanuit het CROW in dit evaluatieproces.
Planspecifiek
Door het beëindigen van de bedrijfsactiviteiten is er sprake van een nadrukkelijke afname van de aantallen verkeersbewegingen van en naar de locatie. Met name de verkeersbewegingen van zwaar vrachtwagenverkeer worden beëindigd. Op de locatie is er ruim voldoende ruimte beschikbaar voor parkeren.
Met de inwerkingtreding van de Omgevingswet op 1 januari 2024 staat het bereiken en in stand houden van een veilige en gezonde fysieke leefomgeving, samen met een goede omgevingskwaliteit, centraal. Dit omvat specifiek aandacht voor natuur (artikel 1.2, lid 2h) en landschappen (artikel 1.2, lid 2g). Artikel 2.31a van de wet schrijft de verplichte instructieregels Rijk natuurgebieden, flora en fauna voor met als doel het behoud of herstel van de staat van instandhouding van diersoorten, plantensoorten, biotopen en habitatten. Dit onder andere om te voldoen aan internationaalrechtelijke verplichtingen. In geval van mogelijke verstoring of uitroeiing van beschermde soorten, moet er onderzoek plaatsvinden naar hun aanwezigheid. Als deze soorten aanwezig zijn, moet worden aangetoond op welke manier verstoring wordt voorkomen of gecompenseerd.
Daarnaast moeten instandhoudingsdoelstellingen en bescherming van landschappen zoals Natura 2000-gebieden, natuurnetwerk Nederland en nationale parken worden nagestreefd. Hierbij horen maatregelen die leiden tot een afname van stikstofdepositie en versterking van de natuurwaarden in Natura 2000-gebieden. Voor nieuwe initiatieven moet worden aangetoond dat er geen significante negatieve effecten op Natura 2000-gebieden ontstaan als gevolg van stikstofemissies en -deposities door het initiatief. De AERIUS Calculator wordt gebruikt als instrument om stikstofberekeningen uit te voeren. Het streefpercentage voor het areaal van voor stikstof gevoelige habitat in Natura 2000-gebieden is in 2025: minstens 40%, in 2030: minstens 50%, en in 2035: minstens 74%.
Planspecifiek
Om de uitvoerbaarheid van onderhavig wijzigingsplan te toetsen, is een ecologische inventarisatie binnen het plangebied uitgevoerd. Uit deze inventarisatie blijkt dat er geen noodzaak bestaat voor een aanvullend onderzoek, of het provinciaal ruimtelijk natuurbeleid. Aanbevolen wordt om werkzaamheden uit te voeren buiten het broedseizoen van vogels (15 maart tot 15 juli). Daarnaast geldt de algemene zorgplicht voor de (licht) beschermde soorten. Zie voor de verdere details Bijlage 6 Quickscan flora en fauna.
Uit Bijlage 10 Aeriusberekening blijkt voor zowel de bouw als exploitatiefase van het initiatief dat er geen significante toename van de stikstofdepositie wordt veroorzaakt op de omliggende natura 2000 gebieden.
In de plannen is er bewust ruimte voor biodiversiteit gecreëerd op, aan of in het gebouw en de directe omgeving, zodat er meer diverse planten- en diersoorten kunnen leven. Er zullen vleermuiskasten en nestkasten voor vogels worden opgehangen. Ook bij het opstellen van het landschappelijk inpassingsplan zijn de plantkeuzes afgestemd op het verbeteren van de biodiversiteit op de locatie.
Met de inwerkingtreding van de Omgevingswet op 1 januari 2024 staat het bereiken en in stand houden van een veilige en gezonde fysieke leefomgeving, inclusief een goede omgevingskwaliteit, centraal (artikel 1.3, lid a). Hierbij wordt specifiek aandacht besteed aan lucht (artikel 1.2, lid 2f). Artikel 2.15, lid 1a van de Omgevingswet bepaalt dat omgevingswaarden worden vastgesteld voor de kwaliteit van de buitenlucht, inclusief de concentraties van verontreinigende stoffen, ter uitvoering van de richtlijn luchtkwaliteit en de richtlijn gevaarlijke stoffen in de lucht.
De hoofdlijnen voor regelgeving omtrent luchtkwaliteitseisen zijn opgenomen in de instructieregels van het Besluit kwaliteit leefomgeving (Bkl). Voor bescherming van de gezondheid zijn instructieregels vastgelegd in paragraaf 5.1.4.1 Bkl. Deze regels omvatten omgevingswaarden voor stoffen zoals stikstofdioxide (NO2) en fijnstof (PM10). Een activiteit is toelaatbaar als aan een van de volgende voorwaarden wordt voldaan: er is geen feitelijke of dreigende overschrijding van een grenswaarde, het project verslechtert per saldo niet de luchtkwaliteit, of het project draagt niet in betekenende mate bij aan luchtverontreiniging.
Het Nationaal Samenwerkingsprogramma Luchtkwaliteit (NSL), dat aanzienlijke verbeteringen in de luchtkwaliteit heeft bevorderd, komt te vervallen na de inwerkingtreding van de Omgevingswet. Beoordeling van de luchtkwaliteit is niet nodig voor activiteiten die niet in betekende mate (NIBM) bijdragen aan luchtverontreiniging. Volgens artikel 5.53 en 5.54 Bkl draagt een project niet in betekende mate bij als de toename van de concentratie NO2 en PM10 niet hoger is dan 1,2 u/m3, oftewel 3% van de omgevingswaarde voor de jaargemiddelde concentraties.
Er zijn twee mogelijkheden om aannemelijk te maken dat een project binnen de NIBM-grens blijft: 1) aantonen dat het project binnen de getalsmatige grenzen van een aangewezen categorie blijft, zoals kantoren, woonwijken en gewasteelt (mits binnen de gestelde omvang), of 2) op een andere manier aannemelijk maken dat het project de 3%-grens niet overschrijdt, mogelijk door gebruik van de NIBM-tool of, indien nodig, detailberekeningen.
Planspecifiek
Nederland heeft de Europese richtlijn met betrekking tot luchtkwaliteit geïmplementeerd in de Omgevingswet. De bouw van de ‘compensatiewoning’ leidt tot 7,4 motorvoertuigbewegingen per etmaal. Voor ruimtelijke plannen en verkeersplannen met een dergelijk beperkte verkeerstoename heeft het ministerie van Infrastructuur en Milieu in samenwerking met Kenniscentrum InfoMil de NIBM-tool ontwikkeld. Daarmee kan op eenvoudige wijze berekend worden of een plan Niet In Betekenende Mate bijdraagt aan luchtverontreiniging. Er is sprake van NIBM als een project of activiteit maximaal 3% van de jaargemiddelde grenswaarde bijdraagt aan de concentraties fijnstof (PM10) of stikstofdioxide (NO2). Dit komt overeen met een toename van maximaal 1,2 µg/m3 voor zowel PM10 als NO2. Uit afbeelding 15 blijkt dat de bijdrage van onderhavig plan op de luchtkwaliteit NIBM is. Nader onderzoek naar de jaargemiddelde concentraties van PM10 en NO2 is niet nodig.

Binnen het ‘Landelijk Meetnet Luchtkwaliteit’ worden PM2,5-metingen uitgevoerd. Dit leidt tot ‘grootschalige concentratiekaarten’ waarin de huidige en toekomstige achtergrondconcentraties voor PM2,5 zijn opgenomen. Uit deze kaarten blijkt dat binnen Nederland geen overschrijdingen van de jaargemiddelde concentratie van PM2,5 bekend zijn. Aangenomen wordt dat wanneer voldaan wordt aan de maatgevende grenswaarde voor PM10, dit ook geldt voor de jaargemiddelde concentratie PM2,5.
Veel aspecten van onze fysieke leefomgeving zijn gerelateerd aan geluid, ofwel doordat ze geluid produceren, of doordat ze eraan worden blootgesteld. De regels met betrekking tot geluid hebben betrekking op het beheersen van geluid afkomstig van wegen, spoorwegen en industrieterreinen, alsmede op het beschermen van geluidsgevoelige gebouwen en andere locaties. In het tijdelijk deel van het omgevingsplan (Ook wel aangeduid als 'de bruidsschat’) zijn vanuit het Rijk, bij invoering van de Omgevingswet, regels overgedragen aan gemeenten aangaande geluidsnormen. Deze regels zijn bedoeld voor het vaststellen en beoordelen van geluid afkomstig van een toegestane activiteit. In paragraaf 22.3.4 van het tijdelijk omgevingsplan is opgenomen wat de toegestane geluidsnormen zijn op geluidgevoelige objecten en ook verschillende toegestane afwijkende situaties.
Volgens artikel 5.55 lid 1 van het Besluit kwaliteit leefomgeving (Bkl) zijn er twee relevante situaties met betrekking tot geluid. Situatie A betreft een project dat gerelateerd is aan een activiteit die geluid veroorzaakt. Situatie B betreft een project dat gerelateerd is aan een geluidsgevoelig gebouw. Dit omvat onder meer gebouwen met een woonfunctie, zoals woningen en appartementen; gebouwen met een onderwijsfunctie, zoals scholen en universiteiten; gebouwen voor kinderopvang met slaapgelegenheid, zoals kinderdagverblijven en internaten; en gebouwen voor gezondheidszorg met slaapgelegenheid, zoals ziekenhuizen en verpleeghuizen (art 3.21 Bkl).
Planspecifiek
In het kader van geluidshinder bevinden zich langs alle wegen geluidzones, met uitzondering van wegen die zijn gelegen binnen een als woonerf aangeduid gebied en wegen waarvoor een maximumsnelheid van 30 km/uur geldt. De breedte van deze zone wordt bepaald door het aantal rijstroken en de ligging in stedelijk of buitenstedelijk gebied. Als een ruimtelijk plan voorziet in geluidgevoelige bebouwing binnen de zone, is akoestisch onderzoek noodzakelijk.
De Bovenweg en de Herenweg hebben ter hoogte van het plangebied een snelheidsregime van 60 km/uur. Aangezien het plaatselijke wegvak in buitenstedelijk gebied ligt en twee rijstroken heeft, bedraagt de zonebreedte 250 m (rode stippellijnen). De beoogde nieuwbouw (rood omcirkelt) ligt net binnen deze zone.

Het Rijksinstituut voor Volksgezondheid en Milieu (RIVM) maakte deze kaart op basis van gegevens uit 2019, 2020 en 2021. Voor gemeentelijke en provinciale wegen zijn alle gegevens (intensiteiten en wegkenmerken) uit 2020. Mogelijk zijn die intensiteiten dus wél beïnvloed door de coronamaatregelen. De hoeveelheid geluid is uitgedrukt in Lden (Level Day-Evening-Night). Dat is het gemiddelde in decibel (dB) per etmaal (24 uur), waarbij geluid ’s avonds en ‘s nachts zwaarder meetelt dan overdag. De kaart geeft alleen een globaal beeld van de hoeveelheid geluid in Nederland. Voor het toetsen van geluidniveaus aan de normen, bijvoorbeeld voor 'geluidbelasting op de gevel', is deze kaart niet geschikt. Formeel is dus akoestisch nodig.
De geluidsbelasting door verkeer van de Herenweg en de Bovenweg in combinatie met de afstand van de nieuw te bouwen woning tot de wegen (200 m) is dermate klein dat een geluidsonderzoek overbodig is. Ook de afstand tot de bestaande woning tot de 48 dB contour van de wegen is dermate groot dat geluidsonderzoek overbodig is.
De conclusie luidt dat dan ook dat de woningen binnen het plangebied ruim buiten de 48 dB geluidscontour van de wegen zijn gelegen. Uit oogpunt van de Wet geluidhinder en in het kader van een goede ruimtelijke ordening is er geen bezwaar tegen de realisatie van onderhavig plan.
Geur kan overlast veroorzaken en de gezondheid negatief beïnvloeden. Daarom zijn er voorschriften opgesteld met betrekking tot de geur die bedrijven en andere activiteiten kunnen produceren. Deze voorschriften kunnen zich richten op afstandsnormen, maar ook op normen met betrekking tot de hoeveelheid geur die zich verspreidt naar geurgevoelige gebouwen, zoals woningen. In artikel 5.90 lid 1 van het Besluit kwaliteit leefomgeving (Bkl) wordt onderscheid gemaakt tussen twee situaties:
A) Een project dat verband houdt met een activiteit die geur veroorzaakt, zoals de volgende activiteiten:
In het tijdelijk deel van het omgevingsplan (Ook wel aangeduid als 'de bruidsschat’) zijn vanuit het Rijk, bij invoering van de Omgevingswet, regels overgedragen aan gemeenten aangaande geluidsnormen met betrekking tot verschillende aspecten van geur, waaronder:
Geur veroorzaakt door het houden van landbouwhuisdieren en paarden en pony's voor bereiding in een dierenverblijf (paragraaf 22.3.6.2 tijdelijk omgevingsplan).
Geur veroorzaakt door het houden van fokteven van nertsen (paragraaf 22.3.6.3 tijdelijk omgevingsplan).
Geur veroorzaakt door andere agrarische activiteiten, zoals het opslaan van vaste mest, compost of dikke fractie en het composteren of opslaan van groenafval (paragraaf 22.3.6.4 tijdelijk omgevingsplan).
Geur veroorzaakt door de exploitatie van zuivering technische werken (paragraaf 22.3.6.5 tijdelijk omgevingsplan).
Voor een aantal milieubelastende activiteiten geldt een vergunningplicht op basis van hoofdstuk 3 van het (Bal). In afdeling 8.5 ‘Omgevingsvergunning milieubelastende activiteit’ van het (Bkl) staan beoordelingsregels. Het bevoegd gezag gebruikt deze beoordelingsregels bij het beoordelen van de vergunningaanvraag. In het Bkl staan algemene beoordelingsregels en specifieke beoordelingsregels voor geur.
B) Hier gaat het om een project dat wordt beschouwd als een geurgevoelig gebouw. Volgens artikel 5.91 lid 1 omvat dit gebouw onder andere een woonfunctie en de bijbehorende nevenfuncties, een onderwijsfunctie en de bijbehorende nevenfuncties, een gezondheidszorgfunctie met bedgebied en de bijbehorende nevenfuncties, en een bijeenkomstfunctie voor kinderopvang met bedgebied en de bijbehorende nevenfuncties. Bij het beoordelen van de geurimpact wordt gekeken naar de afstand tot de gevel, zoals beschreven in artikel 5.94.
Planspecifiek
Binnen een straal van 400 meter van de locatie bevinden zicht geen locaties met een agrarische bestemming of een locatie waar zuivering technische werken worden geëxploiteerd. Uitgesloten kan worden dat er op de locatie sprake zal zijn van geuroverlast door activiteiten zoals hiervoor genoemd.
Omgevingsveiligheid betreft het beheersen van risico's die voortvloeien uit de opslag, productie, gebruik en het transport van gevaarlijke stoffen. Voorwindturbines gelden ook regels vanuit het aspect omgevingsveiligheid. De regels met betrekking tot omgevingsveiligheid zijn opgenomen in paragraaf 5.1.2 van het Besluit kwaliteit leefomgeving (Bkl).
De paragrafen 5.1.2.2 tot en met 5.1.2.6 van het Bkl behandelen het toestaan van beperkt kwetsbare, kwetsbare en zeer kwetsbare gebouwen, evenals beperkt kwetsbare en kwetsbare locaties, in relatie tot het externe veiligheidsrisico van een activiteit die is toegestaan op een locatie op basis van een omgevingsplan of een omgevingsvergunning voor een buitenplanse omgevingsplanactiviteit.
Het Plaatsgebonden Risico (PR) heeft specifieke grenswaarden en standaardwaarden voor (zeer) (beperkt) kwetsbare gebouwen en (beperkt) kwetsbare locaties, zoals beschreven in artikel 5.6 tot en met artikel 5.11a van het Bkl. In een Omgevingsplan worden grenswaarden voor kwetsbare en zeer kwetsbare gebouwen en locaties (artikel 5.7 lid 1 en 5.11 Bkl) gegeven. Afhankelijk van de activiteit worden voor het plaatsgebonden risico vastgestelde afstanden of te berekenen afstanden gehanteerd (bijlage VII Bkl).
Daarnaast gelden rond rondom risicovolle activiteiten ‘aandachtsgebieden’. (Artikel 5.12 Bkl). Aandachtsgebieden is een gewijzigde invulling van het groepsrisico na de invoering van de omgevingswet. Deze gebieden geven aan waar mensen binnenshuis, zonder aanvullende maatregelen, onvoldoende beschermd zijn tegen de gevolgen van ongevallen met gevaarlijke stoffen. Aandachtsgebieden omvatten brand-, explosie- en gifwolkrampen. De wetgeving stelt vaste afstanden vast voor aandachtsgebieden, afhankelijk van het type activiteit met gevaarlijke stoffen, of deze afstanden kunnen rekenkundig worden bepaald (bijlage VII Bkl). In deze aandachtsgebieden kan het noodzakelijk blijken om het groepsrisico te berekenen.
Binnen een aandachtsgebied kan een voorschriftengebied worden vastgesteld. Een gemeente kan ervoor kiezen om geen brand- of explosievoorschriftengebied aan te wijzen of een kleiner gebied aan te wijzen in het Omgevingsplan (artikel 5.14 Bkl). Als een initiatief zich bevindt in een voorschriftengebied, zijn aanvullende bouweisen uit het Besluit bouwwerken leefomgeving (artikel 4.90 tot en met 4.96 Bbl) van toepassing op nieuwbouw. Voor zeer kwetsbare gebouwen zoals scholen, kinderdagopvang en verzorgingstehuizen geldt altijd een voorschriftengebied, wat betekent dat er bij nieuwbouw aanvullende bouweisen van toepassing zijn (artikel 5.14 Bkl).
Los van een eventueel voorschriftengebied kan een gemeente aanvullende eisen stellen en opnemen in het omgevingsplan, zoals eisen met betrekking tot vluchtroutes en de toegankelijkheid van het gebied voor hulpdiensten. Deze eisen worden dan opgenomen in de omgevingsvergunning.
Planspecifiek
Inrichtingen
In de directe nabijheid van het plangebied zijn geen inrichtingen gelegen die onder de werking van het Besluit externe veiligheid inrichtingen vallen. Ook overige gevaarlijke inrichtingen liggen op grote afstand (bron: Risicokaart).
Vervoer
In de directe omgeving van het plangebied zijn geen (spoor)wegen gelegen waarover transport van gevaarlijke stoffen plaatsvindt. De dichtstbijzijnde weg die onder het Basisnet valt is de N381. Deze ligt circa 2,4 km ten westen van het plangebied. De locatie ligt ruim buiten de effectafstand van deze weg.
Aardgasleidingen
Het plangebied ligt niet binnen de invloedssfeer van aardgastransportleidingen (bron: Risicokaart). De dichtstbijzijnde leiding ligt op een afstand van 1,7 km.

Welstand gaat over hoe de uiterlijke kenmerken van een bouwwerk in de omgeving passen, denk aan vorm, kleur of gebruikte materialen. De redelijke eisen van welstand zijn uitgewerkt in de welstandsnota van de gemeente. In het tijdelijk deel van het omgevingsplan (Ook wel aangeduid als 'de bruidsschat’) zijn vanuit het Rijk, bij invoering van de Omgevingswet, regels overgedragen aan gemeenten aangaande Welstandsbeleid. De regels zien toe op (1) repressief welstand (art. 22.7), oftewel de excessenregeling en (2) beoordeling van een aanvraag om een omgevingsvergunning met betrekking tot een bouwactiviteit en het in stand houden en gebruiken van het te bouwen bouwwerk (art. 22.29). Heeft de gemeente reeds een eigen welstandnota of beleidsregels voor de beoordeling van het uiterlijk van bouwwerken. Dan geldt dit tijdelijk deel van het omgevingsplan niet.
Planspecifiek
Artikel 22.29 lid 1 onder b bepaalt dat een omgevingsvergunning met betrekking tot een bouwactiviteit en het in stand houden en gebruiken van het te bouwen bouwwerken alleen wordt verleend als het uiterlijk of de plaatsing van het bouwwerk niet in strijd is met de redelijke eisen van welstand, beoordeeld volgens de criteria van de welstandsnota. Tijdelijke bouwwerken, niet zijnde seizoensgebonden werken zijn uitgesloten van deze welstandstoets.
De woningbouw binnen het plangebied zal moeten voldoen aan de gebiedsgerichte criteria voor het buitengebied uit de Welstandsnota (herziene versie, 23 juni 2009). De locatie valt volgens de welstandskaart gem. Ooststellingwerf in het buitengebied onder lintbebouwing. Er is aan de hand van deze criteria een woningontwerp opgesteld. Er is een positief vooroverleg gevoerd met Hus en Hiem. De definitieve goedkeuring zal plaatsvinden bij de formele vergunningprocedure.
De essentie van het Europees beleid is dat voorafgaand aan de uitvoering van plannen onderzoek moet worden gedaan naar de aanwezigheid van waarden en daar in de ontwikkeling van plannen zoveel mogelijk rekening mee te houden. De essentie van deze wetgeving is behoud van archeologische resten zoveel mogelijk in de bodem en de bescherming van het cultureel erfgoed en landschap.
Cultureel erfgoed is alomtegenwoordig in onze samenleving, zowel in musea, historische stadscentra, en landelijke gebieden, als onder de grond en onder water. Het manifesteert zich ook als immaterieel erfgoed in onze tradities, rituelen en verhalen. Cultureel erfgoed vertelt ons over onze oorsprong, identiteit en ontwikkeling. De overheid speelt een rol in het beschermen van dit erfgoed en zorgt ervoor dat het goed wordt beheerd. Dit gebeurt door bescherming van cultureel erfgoed, maar ook door nieuwe ontwikkelingen mogelijk te maken terwijl het erfgoed wordt gerespecteerd.
Zo zijn er in het Bkl ten aanzien van de bescherming een aantal beginselen geformuleerd (art. 5.130 Bkl). Deze beginselen richten zich op de omgang met monumenten die op grond van het omgevingsplan zijn beschermd, archeologische monumenten, (voor beschermde) rijksmonumenten, beschermde stads- en dorpsgezichten en beschermde cultuurlandschappen. Daarnaast zijn in afdeling 8.8 van het Bkl regels gesteld voor de beoordeling van rijksmonumentenactiviteit en het verplaatsen van gebouwde monumenten
Het gemeentelijk beleid over archeologie en cultuurhistorie is opgenomen in de Nota Archeologie Gemeente Ooststellingwerf gedateerd 16 december 2014 en op de archeologische beleidskaart en de cultuurhistorische waardenkaart. Deze archeologische waarden en verwachtingen en de cultuurhistorische waarden zijn veelal door vertaald in respectievelijk archeologische dubbelbestemmingen en cultuurhistorische Vereniging van Nederlandse Gemeenten.
Planspecifiek
In het bestemmingsplan ‘Buitengebied 2016’, onderdeel van het tijdelijk omgevingsplan, is aan het plangebied de dubbelbestemming ‘Waarde – Archeologie 4’ toegekend. Dit betekent dat de betreffende gronden mede bestemd zijn voor het behoud van archeologische waarden. In de regels van het bestemmingsplan is aangegeven dat bij ingrepen van meer dan 2.500 m² een inventariserend veldonderzoek moet worden uitgevoerd.
Hamaland advies heeft een archeologisch bureauonderzoek gedaan. Het conceptrapport (Bijlage 7 Beoordeling Archeologie) van Hamaland advies is op 16‑05‑2024 beoordeeld door Steunpunt Monumentenzorg Fryslân. Zie Bijlage 8.1 Archeologisch onderzoek. De opmerkingen zijn verwerkt in de onderstaande versie van dit rapport.
Na het eerste concept-bureauonderzoek zijn er nog grondroerende werkzaamheden uitgevoerd op de locatie. Het eerste conceptrapport is derhalve nog aangevuld.
Hamaland advies concludeert in hun advies, welke als Bijlage 7 Beoordeling Archeologie is toegevoegd, als volgt:
Op basis van de geraadpleegde bronnen bestaat de bodem van het plangebied uit grondmorenewelvingen die bedekt met zijn dekzand, waarin een laarpodzolgrond is ontstaan. Door de landschappelijke ligging was het plangebied mogelijk geschikt voor jagers en verzamelaars in de prehistorie en voor landbouwende samenlevingen vanaf de Late Steentijd. In de directe omgeving van het plangebied zijn meerdere vuursteenvondsten bekend.
Echter is de kans nihil dat er een archeologische vindplaats binnen het door middel van milieuboringen onderzochte deel van het plangebied aanwezig is. Over een groot gedeelte van het plangebied is verharding aangebracht met daaronder een puinlaag als funderingspakket. Deze puinlaag is op basis van de resultaten van het milieukundig bodemonderzoek aangebracht tot een diepte van maximaal 100 cmmv. Daarnaast zijn op het plangebied meerdere gebouwen aanwezig, waarvan de bedrijfsgebouwen gesloopt zullen worden. Onder de loods is een betonvloer aanwezig. De toekomstige woning met schuur zal zo mogelijk op de vloer van de huidige loods gerealiseerd worden, waardoor geen nieuwe diepe verstorende bodemgrepen zullen plaatsvinden. Uit de boorbeschrijvingen van het milieukundig booronderzoek blijkt dat in het onderzochte deel van het plangebied geen intacte bodems meer aanwezig zijn.
In de noordwestelijke helft van het plangebied heeft nog geen booronderzoek plaatsgevonden waardoor over dit deel geen van het plangebied geen uitspraken gedaan kunnen worden over de mate van intactheid van de bodem.
Selectieadvies
Op basis van de resultaten van het bureauonderzoek adviseert Hamaland Advies om geen verder archeologisch onderzoek uit te voeren voor de huidige ontwikkeling in de vorm van een verkennend en/of karterend booronderzoek. De toekomstige woning wordt op de plaats van de huidige loods in het zuiden van het plangebied gebouwd, waardoor er voor de realisatie van de woning geen nieuwe diepe verstorende bodemingrepen hoeven plaats te vinden. Deze loods ligt volgens het bestemmingsplan Buitengebied (2020) in een zone met dubbelbestemming Waarde – Archeologie 4, waar archeologisch onderzoek nodig is bij bodemingrepen groter dan 500 m2 en die dieper reiken dan 30 cm-mv.
Uit het milieukundig booronderzoek is gebleken dat de bodemopbouw binnen het plangebied voor het overgrote gedeelte geroerd is tot in de natuurlijke ondergrond (top dekzand) die vanaf een diepte van 90 cm-mv verwacht wordt. Omdat de top van het dekzand in de meeste milieuboringen vanaf 100 cm-mv aanwezig is, kan geconcludeerd worden dat er minimaal 10 cm van de oorspronkelijke top van het dekzand verdwenen is. Deze verstoringen houden verband met de voormalige activiteiten van het autodemontagebedrijf en de inrichting van het plangebied. De kans op het aantreffen van intacte behoudenswaardige archeologische vindplaatsen van zowel landbouwende samenlevingen als steentijdsamenlevingen binnen het plangebied is hierdoor nihil. Uitsluitend zeer diepe sporen zoals waterputten en diepe standsporen (paalsporen) of greppels kunnen bewaard gebleven zijn. Booronderzoek is echter niet geschikt om de aanwezigheid van dergelijke sporen vast te stellen.
Voor de noordwestelijke zone van het plangebied adviseren wij in eerste instantie om de dubbelbestemming Waarde-Archeologie 3 te handhaven, omdat in dit deel van het plangebied geen (milieu)boringen gezet zijn, waardoor onbekend is of hier sprake is van een vergelijkbare bodemverstoring als in het overige onderzochte deel van het plangebied. Indien in deze zone alsnog diepe verstorende bodemingrepen gaan plaatsvinden dan dient alsnog een verkennend booronderzoek te worden uitgevoerd om de mate van intactheid van de bodem en de bodemsamenstelling te kunnen toetsen. Volgens de opdrachtgever kan gesteld worden dat, gezien het feit dat daar de huidige woning staat en voor de rest van het gebied bijna alles is verhard met klinkers of een grindlaag met daaronder een puinlaag als funderingspakket, in dit deel van het plangebied geen intacte bodems meer aanwezig zijn
Conclusie archeologie:
Gelet op de grondwerkzaamheden die door de jaren heen en recent zijn uitgevoerd op de locatie is er geen aanleiding om een dubbelbestemming waarde archeologie te handhaven op de locatie of een deel ervan. Archeologie vormt derhalve geen belemmering voor het initiatief.
Cultuurhistorie
Als gevolg van het beleid Modernisering Monumentenzorg is per 1 januari 2012 bepaald dat gemeenten verplicht zijn cultuurhistorie mee te wegen bij het opstellen van ruimtelijke plannen. Deze regels zijn middels het invoeringsbesluit omgevingswet als de bruidsschat in het tijdelijke deel van het omgevingsplan opgenomen Dit is gebeurd in het ontwerp voor het plangebied dat aansluit bij de historisch gegroeide landschappelijke en stedenbouwkundige structuren (zie paragraaf 2.2.2). Daarnaast levert de nieuwbouw geen knelpunten op met betrekking tot de ‘Waarde – Cultuurhistorie 1’ die in het bestemmingsplan ‘Buitengebied 2016’ aan het plangebied is toegekend. Binnen deze dubbelbestemming is het egaliseren of afvlakken van natuurlijk reliëf niet toegestaan, evenals het verharden van zandpaden. Er is geen sprake van natuurlijk reliëf dan wel van zandpaden binnen het plangebied. Deze waarden, die bij het Woudontginning horen, blijven intact met dit plan. De dubbelbestemming 'Waarde - Cultuurhistorie 1' is dan ook niet in voorliggend plan overgenomen.
Onderzoekslocatie met boorpunten aanvullend nader onderzoek (Boorsma, 2024)Om de in stand houding van een veilige en gezonde fysieke leefomgeving, samen met een goede omgevingskwaliteit, stelt de overheid regels vast met betrekking tot de kwaliteit van de bodem. Deze regels variëren afhankelijk van het beoogde gebruik van de grond, waarbij strengere of minder strenge eisen worden gesteld aan de bodemkwaliteit. Het is belangrijk dat het gebruik van gronden en gebouwen in overeenstemming is met de kwaliteit van de bodem, om zo mogelijke risico's voor de gezondheid en het milieu te minimaliseren.
Waarden voor de toelaatbare bodemkwaliteit voor de bouw van bodemgevoelige gebouwen worden vastgesteld in het definitieve omgevingsplan volgens artikel 5.89i van het Besluit kwaliteit leefomgeving (Bkl). Deze waarden kunnen verschillen per gebied of per gebruiksfunctie. Als er een overschrijding van een vastgestelde waarde optreedt, zoals bepaald in artikel 5.89i van het Bkl, mag de bouw van een bodemgevoelig gebouw alleen plaatsvinden als de in het omgevingsplan voorgeschreven sanerende of andere beschermende maatregelen worden genomen. Dit is vastgelegd in artikel 5.89k van het Bkl en artikel IIIa, onder 2 van het Aanvullingsbesluit Bodem.
Planspecifiek
Op de kaarten van het bodemloket (Ministerie van Infrastructuur en Milieu) zijn mogelijke bodemverontreinigingen binnen het plangebied vermeld. Gelet op de toekomstige woonfunctie heeft de initiatiefnemer een verkennend bodemonderzoek laten uitvoeren.
Ook zijn er eerder bodemonderzoeken verricht:
In 1988 heeft Oranjewoud op het achterterrein een oriënterend bodemonderzoek verricht voor een nieuwe loods. Hierbij zijn in de bovengrond licht verhoogde gehalten cadmium, koper, lood, minerale olie en PAK aangetroffen en een matig verhoogd zinkgehalte. In het grondwater is een licht verhoogd gehalte benzeen vastgesteld.
In 2001 heeft De Lauwers Bodemonderzoek een nulsituatie-onderzoek verricht met als doel de verlenging van de milieuvergunning. In dit onderzoek zijn de oude en de nieuwe opslagplaats voor dieselolie en afgewerkte olie en de terreindelen gebruikt voor de stalling van sloopauto's als verdacht aangemerkt. In de de bovengrond zijn licht verhoogde gehalten cadmium, koper, lood, minerale olie en PAK aangetroffen en een sterke zinkverontreiniging (in 2 boringen). In het grondwater zijn licht verhoogde gehalten van koper en benzeen vastgesteld. In het rapport wordt een nader onderzoek geadviseerd. Op basis van deze voormalige bedrijfsactiviteiten en het voorgaand onderzoek heeft de locatie de status dat er op de onderzoekslocatie een nader onderzoek moet worden uitgevoerd om de omvang en ernst van de vastgestelde verontreiniging te bepalen.
Door ingenieursbureau Boorsma is onderzoek gedaan. De resultaten zijn vastgelegd in Bijlage 2 Aanvullend nader bodemonderzoek.
De onderzoeksopzet van het verkennend bodemonderzoek is gebaseerd op de richtlijnen uit de NEN 5740/A1 (2016). Voor de onderzoeksstrategie is uitgegaan van een ‘verdachte locatie’ (VEP) bij verkennend bodemonderzoek of ‘verdachte locatie, heterogene verontreiniging, niet-lijnvormig’ (VED-HENL).
Het nader onderzoek is verricht conform de NTA 5755 (2010). Dit nader onderzoek richt zich op de afperking van de sterke grondverontreiniging met zink die bij het nulsituatie-onderzoek in 2001 is aangetroffen t.p.v. de voormalige buitenopslag van olie. De boor- en peilbuisconfiguratie is zodanig geweest dat een representatief beeld van de grond- en grondwaterkwaliteit ter plaatse van de onderzoek locatie is verkregen. Een overzicht met de posities van boringen en peilbuizen is weergegeven in afbeelding .

In het rapport worden navolgende conclusies getrokken: De vastgestelde grond en grondwaterverontreinigingen houden waarschijnlijk verband met de aanwezigheid en uitloging van puinresten in de bodem en de voormalige activiteiten van het autodemontagebedrijf.
De sterke grondverontreiniging met zink is voldoende afgeperkt en betreft een geval van ernstige verontreiniging zoals bedoeld in de Wet Bodembescherming omdat het omvangscriterium van minimaal 25 m3 bodemvolume boven de interventiewaarde wordt overschreden. Voor een dergelijk ernstig geval van bodemverontreiniging geldt een saneringsnoodzaak.
Er bevindt zich t.p.v. de grondverontreiniging een klinkerverharding waardoor deze geheel is afgedekt en er van humane blootstellingsrisico's geen sprake is. Voorts zijn er - gelet op de aard en het voorkomen van de verontreiniging geen ecologische of verspreidingsrisico's. De verontreiniging bevindt zich immers boven grondwaterniveau.
Uit deze risicobeoordeling volgt dat er geen noodzaak bestaat tot spoedeisend saneren. Echter, indien er t.p.v. de sterke grondverontreiniging met zink een locatieontwikkeling aan de orde is (grondverzet, nieuwbouw), geldt een saneringsnoodzaak. De eigenaar is hiervoor verantwoordelijk. Bovendien is de sterk verontreinigde grond beoordeeld als klasse ‘Niet toepasbaar’. Deze dient bij locatieontwikkeling gesaneerd te worden. Indien er overgegaan wordt tot grondsanering, dan dient hiervoor een BUS-melding met Plan van Aanpak ter goedkeuring te worden voorgelegd bij de FUMO. De BUS-melding is uitgevoerd.
Op het terreindeel waar puinresten in de bodem zijn aangetroffen is een verkennend asbestonderzoek verricht.
Door WMR is verkennend onderzoek naar asbest in bodem volgens (NEN 5707) op locatie uitgevoerd. Het rapport 220692/JvdM VO asbest gedateerd 17‑10‑2022 van dit onderzoek is als Bijlage 3 bodemonderzoek asbestdeel toegevoegd. Samenvattend zijn de volgende werkzaamheden uitgevoerd:
Ter plaatse van de onderzoekslocatie (oppervlakte circa 200 m2) zijn drie inspectiegaten (A t/m C) tot 0,5 m -mv gegraven. De inspectiegaten zijn met een edelmanboor doorgezet tot 0,8/1,0 m-mv. Het maaiveld en de opgeboorde grond van iedere boring is zintuiglijk beoordeeld op het voorkomen van bodemvreemde en/of asbestverdachte materialen. Hierbij zijn ter plaatse van alle drie inspectiegaten puinrestanten aangetroffen.
Van de verdachte grond is één mengmonster geanalyseerd op asbest in grond (NEN 5898). De analyseresultaten van het verkennend bodemonderzoek zijn als volgt:
op het maaiveld zijn visueel geen asbestverdachte materialen aangetroffen;
in de opgegraven/opgeboorde grond zijn puinrestanten aangetroffen;
in het grondmengmonster (MM IG A t/m C) is analytisch geen asbest gemeten.
Conclusie verkennend asbestonderzoek:
Geconcludeerd kan worden dat ter plaatse van de onderzoekslocatie, in de puinhoudende grond, zowel zintuiglijk als analytisch geen asbest is aangetroffen.
In februari 2023 is door WMR een BUS sanering uitgevoerd. Dit is een landelijke uniforme regeling voor eenvoudige, gelijksoortige saneringen die in korte tijd kunnen worden afgerond. In onderstaande afbeelding is het gesaneerde gebied weergegeven.

Op 06‑07‑2023 is opnieuw grondonderzoek uitgevoerd door ingenieursbureau Boorsma. De resultaten zijn vastgelegd in het document grondonderzoek Bovenweg 8 Donkerbroek nr 23220 d.d. 06‑07‑2023. De aanleiding voor het grondonderzoek is het bij voorgaand onderzoek aantreffen van puin in de bovengrond van het buitenterrein.
De doelstelling van het grondonderzoek is om steekproefsgewijs conform de NEN 5740 (2016) de kwaliteit van de grond vast te stellen. Dit nadat het puin uit deze grond is verwijderd d.m.v. zeven en vervolgens is teruggebracht. De locaties van de onderzochte bodem is in onderstaande afbeelding groen omkaderd. Het onderzoek is als bijlage 4 toegevoegd.

Aanvullend nader bodemonderzoek:
Door Boorsma adviseurs en ingenieurs is in september 2024 aanvullend nader bodemonderzoek uitgevoerd naar aanleiding van de bestemmingsplanwijziging van de locatie, van "Agrarisch met Wonen" naar "Wonen". De toplaag moet voldoen aan bodemkwaliteitsklasse “Wonen”. In overleg met de OWO- gemeenten (Opsterland, Weststellingwerf en Ooststellingwerf) wordt ook bodemkwaliteits- klasse 'Industrie' acceptabel geacht. Dit gelet op de vele voormalige bedrijfsactiviteiten op de locatie. Op basis van de eerder verrichte onderzoeken is dat niet op de gehele locatie het geval. Ook zijn delen van het perceel nog niet onderzocht.
Het aanvullend nader onderzoek - conform de NTA 5755:2010 - richt zich op de nadere afperking van de bij voorgaand onderzoek vastgestelde grondverontreinigingen van met name minerale olie. De verontreinigingen worden afgeperkt met aanvullende boringen en analyses.
Het doel van het verkennend asbestonderzoek is om met een relatief geringe onderzoeksinspanning na te gaan of de verdenking op verontreiniging van de bodem met asbest terecht is en om een indicatieve uitspraak te doen over het asbestgehalte in de bodem.
De grondboringen en -monsternamen vonden plaats op 23 en 24 september 2024.
Het asbestonderzoek vond plaats op 26 september 2024.


Interpretatie van de bevindingen:
De verontreinigingssituatie op Bovenweg 8 Donkerbroek is als volgt geïnterpreteerd:
Voor het grondonderzoek zijn 40 boringen geplaatst tot 50 cm beneden maaiveld of onderkant verharding. Hiervan zijn 40 individuele monsters geanalyseerd. Zintuiglijk zijn verontreinigingen waargenomen in de vorm van puin en oliegeur.
In 4 boringen (B407, B411, B412 en B415) zijn in de bovengrond sterke verontreinigingen met zware metalen (koper en zink) vastgesteld. In 7 boringen zijn in de bovengrond matige verontreinigingen met zware metalen, minerale olie en PAK vastgesteld.
In 23 boringen zijn in de bovengrond lichte verontreinigingen met zware metalen, minerale olie, PAK en PCB vastgesteld. Uit de chromatogrammen in Bijlage B2 blijkt dat de aangetroffen minerale olie tot de zwaardere fractie behoort: koolstofketens C24-C40. Dit wijst erop dat het motorolie betreft hetgeen overeenstemt met de zintuiglijke waarnemingen.
De situering van de grondverontreinigingen is weergegeven in afbeelding 7
In de figuur zijn de terreindelen weergegeven waar de bovengrond 'Niet toepasbaar' is. De klassebepalende stof is steeds minerale olie. Onder de loods, in boringen B411 en B412, zijn ook cadmium, koper en zink klassebepalend.

Conclusies aanvullend nader bodemonderzoek:
Met het aanvullend nader onderzoek zijn de terreindelen afgebakend die niet voldoen aan de klasse 'Wonen' of de klasse 'Industrie'. In 3 zones op het terrein bevindt zich bovengrond behorend tot de klasse 'Niet toepasbaar'. Deze zones zijn voldoende afgeperkt. De terreindelen behorend tot de klasse 'Niet toepasbaar' hebben een totaal oppervlak van 1640 m2 en een dikte van circa 40 cm (10-50 cm-mv); het volume is circa 660 m3.
Dit oppervlak/volume omvat de bij voorgaand onderzoek vastgestelde sterke grondverontreiniging met PCB (25 m2/9 m3) en minerale olie (35 m2/11 m3). Volgens de Omgevingswet gelden voor deze sterke grondverontreiniging - waarbij sprake is van kleinschalig graven (< 25 m3) met kwaliteit > interventiewaarde - qua regelgeving geen rijksregels; er geldt wel een informatieplicht richting gemeente.
Omdat ter plaatse een locatieontwikkeling aan de orde is (grondverzet, nieuwbouw woning), geldt een saneringsnoodzaak. De eigenaar is hiervoor verantwoordelijk. Bovendien is er op het terrein van de locatieontwikkeling grond aanwezig die is beoordeeld als klasse ‘Niet toepasbaar’. Deze dient eveneens gesaneerd te worden. Er dient een sanering plaats te vinden tot maximaal bodemkwaliteitsklasse “Industrie” (functioneel saneren). In overleg met de gemeente zal dit nog nader uitgewerkt worden.
Bij het verkennend asbestonderzoek is ter plaatse van de onderzoekslocatie, in de puinhoudende grond, zowel zintuiglijk als analytisch geen asbest is aangetroffen. Het verhoogde gehalte aan asbest ter plaatse van de druppelzone (11 mg/kg d.s.) geeft geen aanleiding tot nader bodemonderzoek.
Conclusie bodem:
De milieuhygiënische bodemkwaliteit op de locatie is voldoende vastgelegd. De onderzoeks- resultaten geven geen aanleiding voor aanvullend bodemonderzoek. Er dient wel een grondsanering verricht te worden. Na de sanering kan er nieuwbouw plaatsvinden.
Het aspect water is van groot belang binnen de ruimtelijke ordening. Door verstandig om te gaan met het water kan verdroging en wateroverlast (waaronder ook risico van overstromingen e.d.) voorkomen worden en de kwaliteit van het water hooggehouden worden.
Op Rijksniveau en Europees niveau zijn de laatste jaren veel plannen en wetten gemaakt over water. De belangrijkste hiervan zijn het Waterbeleid voor de 21e eeuw, de Waterwet en het Nationaal Waterplan.
Waterbeleid voor de 21e eeuw
De Commissie Waterbeheer 21ste eeuw heeft in augustus 2000 advies uitgebracht over het toekomstige waterbeleid in Nederland. De adviezen van de commissie staan in het rapport ‘Anders omgaan met water, Waterbeleid voor de 21ste eeuw’ (WB21). De kern van het rapport WB21 is dat water de ruimte moet krijgen, voordat het die ruimte zelf neemt. In het Waterbeleid voor de 21e eeuw worden twee principes (drietrapsstrategieën) voor duurzaam waterbeheer geïntroduceerd:
Vasthouden, bergen en afvoeren: dit houdt in dat overtollig water zoveel mogelijk bovenstrooms wordt vastgehouden in de bodem en in het oppervlaktewater. Vervolgens wordt zo nodig het water tijdelijk geborgen in bergingsgebieden en pas als vasthouden en bergen te weinig opleveren wordt het water afgevoerd.
Schoonhouden, scheiden en zuiveren: hier gaat het erom dat het water zoveel mogelijk schoon wordt gehouden. Vervolgens worden schoon en vuil water zoveel mogelijk gescheiden en als laatste komt het zuiveren van verontreinigd water aan het bod.
Waterwet
Centraal in de Waterwet staat een integraal waterbeheer op basis van de ‘watersysteembenadering’. Deze benadering gaat uit van het geheel van relaties binnen watersystemen. Denk hierbij aan de relaties tussen waterkwaliteit, -kwantiteit, oppervlakte- en grondwater, maar ook aan de samenhang tussen water, grondgebruik en watergebruikers. Een groot aantal van de regels uit de Waterwet zijn overgegaan in de omgevingswet welke op 1 januari 2024 in werking is getreden.
Nationaal Waterplan
Op basis van de Waterwet is het Nationaal Waterplan vastgesteld door het kabinet. Het Nationaal Waterplan geeft op hoofdlijnen aan welk beleid het Rijk in de periode 2022 – 2027 voert om te komen tot een duurzaam waterbeheer. Het Nationaal Waterplan richt zich op bescherming tegen overstromingen, beschikbaarheid van voldoende en schoon water en de diverse vormen van gebruik van water. Het geeft maatregelen die in de periode 2022- 2027 genomen moeten worden om Nederland ook voor toekomstige generaties veilig en leefbaar te houden en de kansen die water biedt te benutten.
Watertoets
Het watertoetsproces is een belangrijk instrument om het waterbelang in ruimtelijke plannen en besluiten te waarborgen. Het gaat daarbij om alle waterhuishoudkundige aspecten, waaronder veiligheid, wateroverlast, watertekort, waterkwaliteit en verdroging, en om alle wateren: rijkswateren, regionale wateren en grondwater. Het is niet een toets achteraf, maar een proces dat de initiatiefnemer van een ruimtelijk plan en de waterbeheerder in een zo vroeg mogelijk stadium met elkaar in gesprek brengt.
Planspecifiek
De initiatiefnemer dient in een vroeg stadium overleg te voeren met de waterbeheerder over een ruimtelijk planvoornemen. Hiermee wordt voorkomen dat ruimtelijke ontwikkelingen in strijd zijn met duurzaam waterbeheer.
Het plangebied ligt binnen het beheersgebied van het WetterskipFryslân, verantwoordelijk voor het waterkwantiteits- en waterkwaliteitsbeheer. Op 27‑01‑2023 is de digitale watertoetsprocedure doorlopen om WetterskipFryslân in te lichten over het voornemen. (zie het watertoetsdocument in de Bijlage 5 Watertoets). Hieruit blijkt dat er waterschapsbelangen met dit plan gemoeid zijn en dat de korte procedure van toepassing is. De standaard waterparagraaf van Wetterskip Fryslân is opgenomen in de bijlagen.
Veiligheid en waterkeringen
Binnen het plangebied is geen sprake van waterkeringen waar rekening mee gehouden moet worden gehouden. De ontwikkeling heeft daarmee geen invloed op de waterveiligheid in de omgeving.
Afvalwaterketen en riolering
Het afvalwater afkomstig van de te realiseren woning wordt aangesloten op de bestaande riolering. Het hemelwater zal zoveel mogelijk worden geïnfiltreerd op het eigen perceel waarvoor voldoende ruimte aanwezig is. Water dat evenveel niet gefiltreerd kan worden wordt afgevoerd op de sloten welke rondom het perceel liggen.
Watersysteemkwaliteit en ecologie
Er worden geen uitloogbare materialen gebruikt in de bouw- en gebruiksfase, waardoor geen sprake is van diffuse verontreinigingen van water en bodem.
Waterkwantiteit en watercompensatie
Door de ontwikkeling neemt het verhard oppervlak in het plangebied af. In de huidige situatie is er ruim 4.400 m2 verharding aanwezig op het perceel. In de toekomstige situatie na het slopen van de bedrijfsgebouwen en een deel van de verharding blijft er slechts 1.800 m2 aan verhard oppervlak op het terrein. Er zal een woning met schuur worden toegevoegd met een oppervlak van 355 m2. Verder zal de bestaande bestrating worden aangesloten op de nieuwe woning en schuur. De verharding zal in de toekomstige situatie echter verminderen met ca 2.600 m2 ten opzichte van de huidige situatie. Dit is ook weergeven in Bijlage 1 Landschappelijk inpassingsplan. Toename van verharding is dus niet aan de orde en compenserende maatregelen zijn daarom niet nodig.
Initiatiefnemer wil circa 2 m3 regenwater gaan opslaan voor besproeien van de tuin en het schoonmaken o.a. de ramen van het huis aan de buitenzijde.
Waterbeheer
Voor eventuele aanpassingen aan het bestaande watersysteem dient bij het waterschap vergunning te worden aangevraagd op grond van de 'Keur'. Dit geldt dus bijvoorbeeld voor het graven van nieuwe watergangen, het aanbrengen van een stuw of het afvoeren van hemelwater naar het oppervlaktewater. In het kader van dit plan zal een aanvraag worden verzorgd mocht dit nodig zijn.
Onderhoud watergangen
Met omliggende landeigenaren zijn er in het verleden afspraken gemaakt over het onderhoud van de omliggende watergangen. De afspraken over de wijze van uitvoering van dit onderhoud kunnen ongewijzigd voortgezet worden, onderhavige plannen vormen geen belemmering voor het uitvoeren van het onderhoud aan de watergangen.
Conclusie
Door het slopen van de bestaande bedrijfsgebouwen en de verhardingen vermindert het verhard oppervlak op de locatie. Er wordt 1 nieuwe woning gebouwd met een bijgebouw. Per saldo blijft een afname van het verharde oppervlak. Het treffen van compenserende maatregelen is daarom niet nodig. Het aspect water levert geen belemmering op voor de voorgenomen ontwikkeling.
Naast het toetsen aan diverse aspecten op het gebied van beleid en milieu, die dienen als toets of een ruimtelijk plan uitvoerbaar is, dient een plan ook te worden getoetst aan de financiële uitvoerbaarheid. Voor de financiële uitvoerbaarheid wordt onderscheid gemaakt tussen de situatie waarin het een aangewezen omgevingsplan (een voormalig bestemmingsplan) geldt en de situatie waarin er een gewijzigd omgevingsplan vigeert wat voldoet aan de wettelijke vereisten van de Omgevingswet (inclusief regels over kostenverhaal).
In het geval dat het aangewezen omgevingsplan vigeert zijn er drie mogelijke scenario’s waarmee de financiële uitvoerbaarheid verantwoord kan worden:
Gemeentelijke bekostiging/geen kostenverhaal (eventueel wel een nadeelcompensatieovereenkomst);
Kosten verhaald op basis van een anterieure overeenkomst;
Kosten verhaald op basis van een posterieure overeenkomst.
In geval een omgevingsplan conform wettelijke vereisten Omgevingswet vigeert dienen de regels van het omgevingsplan verantwoording over het kostenverhaal te bevatten waaronder de financiële bijdrage door partijen voor de ontwikkeling. Dit is gezien de korte tijd dat de omgevingswet in werking is getreden bij veel gemeenten nog niet uitgewerkt.
Planspecifiek
Economische uitvoerbaarheid
Voor de uitvoerbaarheid van het plan is het van belang te weten of het economisch uitvoerbaar is. De economische uitvoerbaarheid wordt enerzijds bepaald door de exploitatie van het plan (financiële haalbaarheid) en anderzijds door de wijze van kostenverhaal van de gemeente (grondexploitatie).
Financiële haalbaarheid
Het initiatief betreft de sloop van landschapsontsierende voormalige bedrijfsbebouwing en het daarvoor in de plaats bouwen van een nieuwe woning. De initiatiefnemer beschikt over voldoende financiële middelen voor de uitvoering van dit plan.
Grondexploitatie
Doel van de in de Omgevingswet onder afdeling 13.6 opgenomen grondexploitatieregeling is het bieden van ruimere mogelijkheden voor het kostenverhaal en het creëren van meer sturingsmogelijkheden. Daarbij wordt onderscheid gemaakt tussen de publiekrechtelijke weg via een exploitatieplan en de privaatrechtelijke weg in de vorm van overeenkomsten. In het geval van een exploitatieplan kan de gemeente eisen en regels stellen voor de desbetreffende gronden, (woning)bouwcategorieën en fasering. Bij de privaatrechtelijke weg worden dergelijke afspraken in een (anterieure) overeenkomst vastgelegd.
De gemeente en initiatiefnemer kunnen voor zover nodig een anterieure overeenkomst sluiten, waarin afspraken zijn gemaakt met betrekking tot de plankosten en eventuele planschade. Hiermee is het kostenverhaal voldoende verzekerd.
Kopieer de link naar uw clipboard
https://zoek.officielebekendmakingen.nl/gmb-2024-524913.html
De hier aangeboden pdf-bestanden van het Staatsblad, Staatscourant, Tractatenblad, provinciaal blad, gemeenteblad, waterschapsblad en blad gemeenschappelijke regeling vormen de formele bekendmakingen in de zin van de Bekendmakingswet en de Rijkswet goedkeuring en bekendmaking verdragen voor zover ze na 1 juli 2009 zijn uitgegeven. Voor pdf-publicaties van vóór deze datum geldt dat alleen de in papieren vorm uitgegeven bladen formele status hebben; de hier aangeboden elektronische versies daarvan worden bij wijze van service aangeboden.