Gemeenteblad van Albrandswaard
| Datum publicatie | Organisatie | Jaargang en nummer | Rubriek | Datum ondertekening |
|---|---|---|---|---|
| Albrandswaard | Gemeenteblad 2024, 510012 | ruimtelijk plan of omgevingsdocument |
Zoals vergunningen, bouwplannen en lokale regelgeving.
Adressen en contactpersonen van overheidsorganisaties.
U bent hier:
| Datum publicatie | Organisatie | Jaargang en nummer | Rubriek | Datum ondertekening |
|---|---|---|---|---|
| Albrandswaard | Gemeenteblad 2024, 510012 | ruimtelijk plan of omgevingsdocument |
Het college van burgemeester en wethouders van Gemeente Albrandswaard
gelezen de tekstinhoud van ”Programma geluid 2024-2028 Gemeente Albrandswaard” d.d. 12 november 2024
Overwegende dat:
niet van toepassing
Besluit;
1. Het Programma Geluid 2024-2028 vast te stellen.
2. Het Programma Geluid 2024-2028 ter inzage te leggen en te publiceren op de gemeentelijke website.
"Programma geluid 2024-2028 Gemeente Albrandswaard" opgenomen in Bijlage A wordt vastgesteld.
Aldus vastgesteld door Gemeente Albrandswaard, 12 november 2024
Diegenen die mogen ondertekenen
Niet getekend proef-exemplaar
De Richtlijn Omgevingslawaai verplicht gemeenten in grote verstedelijkte gebieden tot het opstellen van geluidbelastingkaarten en een actieplan geluid. De gemeente Albrandswaard is een van deze gemeenten. Het actieplan geluid is vormgegeven in het Programma Geluid van de gemeente Albrandswaard.
Doel
Het doel van dit programma Geluid is:
• Het lawaai in de omgeving zo nodig voorkomen en waar het schadelijke effecten kan hebben voor de gezondheid van de mens zo laag mogelijk houden.
• Het handhaven van de milieukwaliteit van het omgevingsgeluid als deze goed is.
Hinder
In de gemeente Albrandswaard ondervinden 4.600 inwoners een geluidbelasting boven 55 dB Lden. We tellen in totaal 700 ernstig geluidgehinderden, waarbij 100 personen slaapverstoord zijn.
De aantallen gehinderden en slaapverstoorden zijn vergeleken met het laatst vastgestelde Actieplan (2014 – 2018). Hieruit blijkt een toename van het aantal gehinderden en een gelijk aantal slaapverstoorden. Onderstaande tabel toont deze resultaten

Plandrempel
Albrandswaard had in het vorige beleid al een plandrempel van 65 dB Lden. Om de woningbouw opgave niet te frustreren houdt Albrandswaard in de aankomende planperiode de plandrempel op 65 dB Lden. Wel wil zij de ambitie uitspreken om te verkennen of in de volgende planperiode de plandrempel verlaagd kan worden naar 63 dB Lden.
De tabel hieronder toont de plandrempels voor de verschillende bronnen in de gemeente Albrandswaard.
De plandrempel Lnight is hierbij een nieuwe wettelijke verplichting. Voor industrie stelt de gemeente geen plandrempel vast, voor het geluid van industrie zijn al lokale afspraken gemaakt. Deze bieden voldoende veiligheid.
Maatregelen wegverkeer
Voor de lokale bronnen in het beheer van de gemeente (lokale wegen en lokale industrie) wordt voldaan aan de plandrempel. Om te voldoen aan de ambitieplandrempel is gekeken worden naar drie locaties, waarbij geluidmaatregelen onderzocht zijn:
• Slotsedijk in Rhoon: gesprek plaats te vinden met het Waterschap
• Regenboog/Portlandse Baan in de wijk Portland: geluidreducerend wegdek toepassen of schermplaatsing
• Dorpsdijk in Rhoon: rijsnelheid is verlaagd naar 30 km/uur
Daarnaast kijkt de gemeente naar aanpassingen in de Leidraad Inrichting Openbare Ruimte (LIOR), naar regelgeving en handhaving, voorlichting, campagne, en gesprekken met partners, zoals het waterschap, de provincie en Rijkswaterstaat.
Maatregelen metro’s
Voor de metro’s in het beheer van de RET wordt voldaan aan de plandrempel. Aan de ambitieplandrempel wordt bij een aantal woningen niet voldaan. In het project voor de ontwikkkeling van de omgeving OV Knooppunten wordt nagegaan of geluidmaatregelen opgenomen kunnen worden.
Aanleiding
De Europese Unie heeft in 2002 de Richtlijn Omgevingslawaai opgesteld. Deze richtlijn gaat over omgevingslawaai waaraan mensen worden blootgesteld. In de gemeente Albrandswaard gaat dit om geluid van:
• Wegverkeer
• Railverkeer
• Industriële activiteiten (waaronder scheepvaart)
• Luchtvaart
De Richtlijn Omgevingslawaai verplicht lidstaten tot het opstellen van geluidbelastingkaarten en een Actieplan geluid. Dit geldt voor gemeenten binnen verstedelijkte gebieden met meer dan 100.000 inwoners. Albrandswaard valt als gemeente onder het gebied Rotterdam/Dordrecht. Iedere 5 jaar moeten deze gemeenten de geluidniveaus in de eigen omgeving vaststellen. Dit moet gedaan worden voor woningen, andere geluidgevoelige gebouwen en geluidgevoelige terreinen.
Tot 2024 was de Richtlijn Omgevingslawaai opgenomen in de Wet milieubeheer. Op 1 januari 2024 is de Omgevingswet in werking getreden. In de Omgevingswet en het Besluit kwaliteit leefomgeving (Bkl) heeft het Rijk regels opgenomen voor het maken van de geluidbelastingkaarten en de actieplannen.
Het actieplan geluid is vormgegeven in het Programma Geluid van de gemeente Albrandswaard.
Doel
Het doel van dit programma Geluid is:
• Het lawaai in de omgeving zo nodig voorkomen en waar het schadelijke effecten kan hebben voor de gezondheid van de mens zo laag mogelijk houden.
• Het handhaven van de milieukwaliteit van het omgevingsgeluid als deze goed is.
Beleid
Voorafgaand aan het Programma Geluid zijn geluidbelastingkaarten opgesteld en in 2022 vastgesteld. Het programma borduurt hierop verder met een beschrijving van de voorgenomen relevante maatregelen en het beleid ter beperking van de geluidbelasting door het vastleggen van verschillende plandrempels per geluidbron.
Volgens de richtlijn moet het programma gaan over 'prioritaire knelpunten'. Van een prioritair knelpunt is sprake als een 'relevante grenswaarde' wordt overschreden. In de Nederlandse wetgeving is het begrip 'relevante grenswaarde' vertaald in 'plandrempel’. Een eerste stap in het maken van een programma is het vaststellen van plandrempels per geluidbron.
Het Programma Geluid is in 2024 voor 6 weken ter inzage gelegd. Een ieder kon zienswijzen naar voren brengen waaronder ook de gemeenteraad.
Het college van burgemeester en wethouders stelt het Programma Geluid vast. Het besluit is niet voor beroep vatbaar, omdat het alleen beleidsvoornemens en voorgenomen maatregelen bevat en niet gericht is op direct rechtsgevolg. Dit houdt in dat er tegen het vastgestelde programma geen beroep openstaat. Binnen vier weken na de vaststelling worden de stukken ter beschikking gesteld aan eenieder en wordt het programma verstuurd naar de door het ministerie van Infrastructuur en Waterstaat (I&M) aangewezen instantie. Het ministerie van I&M is ervoor verantwoordelijk dat de gegevens elke vijf jaar worden verzameld, gecategoriseerd en verzonden naar de Europese Commissie.
Omgevingsvisie
De gemeente gaat aan de slag met het opstellen van de omgevingsvisie. In deze visie worden de geluidambities opgenomen.
Wat is geluid?
Geluid is een trilling in de lucht (of in een (vloei-)stof, zoals water of metaal) die gezonde oren horen. Geluid ontstaat wanneer een geluidbron gaat trillen. Een geluidbron kan een voorwerp zijn, maar het kunnen ook mensen en dieren zijn die geluid maken. Hoe hard een geluid klinkt, meten en berekenen we in decibel (dB).
Gezondheidseffecten
Geluid kan leiden tot hinder, slaapverstoring, verstoring van de dagelijkse activiteiten en stress. Deze effecten kunnen op hun beurt weer aanleiding geven tot een hogere bloeddruk en verhoogde niveaus van het stresshormoon cortisol, waardoor het risico op hart- en vaatziekten en psychische aandoeningen wordt verhoogd (RIVM - effecten van geluid). Een half miljoen Nederlanders heeft slaapproblemen door geluid van wegen. Daarnaast veroorzaakt dit geluid elk jaar bij zo’n 750 mensen hart- en vaatziekten, waar ongeveer 65 mensen aan overlijden. Dit zijn schattingen uit onderzoek van het RIVM uit 2019. Er zijn ook aanwijzingen dat geluid effect heeft op leerprestaties van kinderen. Lawaai van wegverkeer is veruit de grootste geluidhinderbron in Nederland.
Onderzocht is dat slaapverstoring en hinder de twee grootste gezondheidseffecten zijn van geluid. Bij slaapverstoring gaat het om voldoende en diepe slaap. Onze slaapcyclus bestaat uit REM-slaap en diepe slaap. De REM-slaap zorgt voor het verwerken en opruimen van je gedachten, emoties en prikkels en de diepe slaap zorgt ervoor dat je lichaam kan ontspannen, herstellen en dat de accu van je lichaam wordt opgeladen. Te weinig diepe slaap beperkt het herstel in het lichaam en de aanvulling van de energievoorraad. Dat leidt weer tot veranderde glucose tolerantie en eetlust regulatie, verminderde immuunrespons, geheugenfunctie hart- en vaatziekten, suikerziekte, overgewicht, hoge bloeddruk en mogelijk dementie (WHO richtlijn over lawaai 2017).
Waar slaapverstoring grotendeels onbewust is, speelt hinder op een meer bewust niveau. In dat geval gaat het om meer dan het aantal decibellen. Factoren als geluidgevoeligheid, angst voor de bron/geluid, houding ten opzichte van de bron, verwachting/onzekerheid over toekomstig geluid en aantrekkelijkheid van de omgeving spelen allemaal een rol. En hoewel hinder iets is waar je je meestal bewust van bent, wordt het voor een groot deel door je onderbewuste bepaald.
Leeswijzer
Het programma begint met een inleiding met algemene informatie over geluid en het Programma. Vervolgens komt het wettelijk kader en het beleid, gevolgd door een beschrijving van de achtergrondinformatie van de huidige situatie. Daarna tonen we de berekende de geluidniveaus in de huidige situatie. Als laatste kijken we naar de mogelijke maatregelen die we deze periode treffen. Bijlage - begrippenlijst
Wettelijk kader geluid
Nieuwe gebouwen
In het Besluit kwaliteit leefomgeving (Bkl) staan regels die de gemeente kan toepassen voor het beschrijven van de geluidkwaliteit in het omgevingsplan. De standaardwaarde is hierbij de algemeen geaccepteerde waarde, waarvan alleen gemotiveerd kan van worden afgeweken. De grenswaarde is alleen bij uitzondering toegestaan waarvan ook alleen gemotiveerd van kan worden afgeweken. Geluidbeperkende maatregelen zijn dan nodig. De tabel hieronder toont de verschillende standaard- en grenswaarden uit het Bkl. Voor industrieterreinen wordt ook gekeken naar de nachtperiode. Overschrijding van de grenswaarde op de gevel is alleen mogelijk als het om een niet-geluidgevoelige gevel gaat. Dit kan bijvoorbeeld als de gevel ‘doof’ is uitgevoerd, dus zonder te openen deuren of ramen. Er gelden dan ook aanvullende eisen voor de geluidwering van de gevel.
In het huidige beleid (het Bkl) is de grenswaarde voor de lokale wegen hoger dan de plandrempel die de gemeente hanteert. Albrandswaard zit daarmee aan de veilige kant voor de inwoners. Voor de rijkswegen en provinciale wegen geldt het omgekeerde.
Actieplan geluid
Het actieplan geluid is een verplicht programma dat volgt uit artikel 3.6 van de Omgevingswet. De gemeente noemt dit het Programma Geluid. De verplichting voor een actieplan volgt op zijn beurt uit de Europese richtlijn omgevingslawaai. Hierbij wordt gekeken naar de bestaande (huidige) situatie. In afdeling 4.3 van het Bkl staan de instructieregels voor het actieplan geluid.
Geluidproductieplafond
Het verantwoordelijke bestuursorgaan of de verantwoordelijke instantie (de beheerder) bewaakt het geluid van een weg, spoorweg of industrieterrein met een geluidproductieplafond (GPP). Het GPP is de maximaal toegelaten hoeveelheid geluid op een referentiepunt nabij een geluidbron. Lokale spoorwegen die zijn aangewezen bij omgevingsverordening, rijkswegen, provinciale wegen, hoofdspoorwegen en industrieterreinen hebben een GPP. Scheepvaart heeft geen GPP. Bij het toelaten van een geluidgevoelig gebouw in het geluidaandachtsgebied van een bron wordt het geluid bepaald aan de hand van de maximale toegestane geluidproductie.
Monitoring
Nieuw onder de Omgevingswet is dat er monitoring gaat plaatsvinden van lokale en provinciale wegen en van lokale spoorwegen, zoals dat nu al gebeurt voor de rijkswegen en het hoofdspoor.
Hiervoor wordt de GPP-systematiek zoals deze geldt voor rijkswegen en hoofdspoorwegen ook toegepast op de provinciale wegen. De verantwoordelijkheid van deze monitoring ligt voor de provinciale wegen bij de provincie. Met de GPP-systematiek wordt de maximale toegestane geluidemissie van rijkswegen, provinciale wegen en het hoofdspoor vastgelegd op vaste punten (referentiepunten) rondom deze (spoor)wegen. Eens in de 5 jaar vindt monitoring plaats. Bij (dreigende) overschrijding van de maximale toegestane geluidbelasting op het referentiepunt moet het bevoegd gezag maatregelen overwegen.
Basis geluid emissie (BGE)
Lokale wegen, waterschapswegen en lokale spoorwegen, waaronder de metro in Albrandswaard, krijgen een Basis geluid emissie (BGE). De gemeente en het waterschap zijn verantwoordelijk zijn voor de monitoring. De regels hiervoor zijn opgenomen in het Besluit kwaliteit leefomgeving.
Vanaf een vastgelegde datum (uiterlijk basisjaar 2026) monitort het bevoegd gezag de geluidemissie van het wegennetwerk ten opzichte van de vastgelegde emissies. Bij een toename van 1,5 dB of meer moet de wegbeheerder (gemeente of het waterschap) aanvullende maatregelen overwegen.
Aanvullend lokaal geluidbeleid
Beleidsregels voor geluid
De gemeente Albrandswaard heeft haar toenmalige geluidbeleid in 2007 vastgelegd in het document ‘Beleidsregel vaststelling hogere waarde gemeente Albrandswaard’. In deze beleidsregel zijn criteria vastgelegd waaronder het college een hogere waarde verzoek kan honoreren. In de Omgevingswet zijn er geen hogere waarden besluiten meer. De beleidsregel uit 2007 komt met de inwerkingtreding van de Omgevingswet dan ook te vervallen. De al afgegeven hogere waarden blijven gelden en vormen onderdeel van het tijdelijk deel van het omgevingsplan. Een hogere waarde besluit kon alleen worden vastgesteld, voor zover de gecumuleerde geluidbelasting niet leidde tot een naar het oordeel van het college onaanvaardbare geluidbelasting. Boven de plandrempel (65 dB Lden) kon er geen hogere waarde worden vastgesteld en woningbouw of een andere ontwikkeling was daarmee ongewenst. De gemeente is bezig met het opstellen van een visie en beleidsregels voor geluidbeleid onder de Omgevingswet waarbij criteria opgenomen worden voor een afweging ‘evenwichtige toedeling van functies aan locaties’.
Geluidbeheerplan Distripark - Convenant Waal- en Eemhaven
Voor het Distripark Waalhaven is op 7 april 2009 het geluidbeheersplan vastgesteld. Doel van dit plan is om de geluiduitstraling van alle installaties en mobiele bronnen van alle inrichtingen, die vallen binnen de reikwijdte van deze beleidsregel, te beperken tot de in dit plan vastgestelde bewakingswaarden.
Om dit te bewerkstelligen heeft de gemeenteraad van Albrandswaard bij dit plan een maximaal toegestaan geluidniveau van 50 dB(A) (bewakingswaarde) op gevels van woningen vastgesteld conform de bestuursovereenkomst tussen de provincie Zuid-Holland, de gemeenten Rotterdam en Albrandswaard. Deze afspraken bieden voldoende waarborging om de geluidemissie van het Distripark Eemhaven te handhaven.
Op 3 december 2010 hebben diverse partijen, waaronder de gemeente Albrandswaard, het ‘Convenant Geluidruimte; Waal-/Eemhaven’ ondertekend. Het doel van het convenant is om duidelijkheid te scheppen over de geluidruimte en geluidruimteverdeling in de Waal- en Eemhaven bij vergunningverlening op basis van de Wet algemene bepalingen omgevingsrecht (Wabo) en de geluideffecten hiervan op de ruimtelijke ontwikkelingen in de omgeving. Op de volgende bladzijde is de contour Waal-/Eemhaven weergegeven.
Stiltegebied
Op basis van de (Wet milieubeheer voorheen, nu op basis van de Omgevingswet) moet de provincie stiltegebieden aanwijzen. De regels in Zuid-Holland richten zich op het verbieden van niet gebiedseigen geluid (geen versterkte muziek of georganiseerde tochten, wel de tractor op de boerderij). Er is geen juridisch relevante norm; wel een streefwaarde van 40 dB. De oorspronkelijke keuze (in 1987) van de Zuid-Hollandse stiltegebieden is vrij simpel: daar waar geen grotere wegen, bedrijventerreinen en dergelijke liggen is het relatief stil, dus die plekken werden stiltegebied.
In Albrandswaard is een stiltegebied aangewezen in Rhoon, zie onderstaande figuur voor de ligging ervan.
RAK-convenant
Het regionaal afsprakenkader (RAK) is vastgelegd in een convenant en regelt gezamenlijke afstemming over nieuwe woningbouw- en havenontwikkelingen tussen de aangesloten partijen rond het haven- en industrieelcomplex. Op 5 december 2023 heeft de gemeente de ‘Interim werkwijze nestgeluid regio Rijnmond’ ondertekend.
Op dit moment zit de gemeente in het Waal/-Eemhavenconvenant. Het doel van dit convenant is om duidelijkheid te scheppen over de geluidruimte en geluidruimteverdeling in de Waal-/Eemhaven bij vergunningverlening op basis van de Wet algemene bepalingen omgevingsrecht (Wabo) en de geluideffecten hiervan op de ruimtelijke ontwikkelingen in de omgeving. Deze doelstelling maakt deel uit van de intentie van partijen om samen te werken ten behoeve van een evenwichtige ontwikkeling van de Waal-/Eemhaven tot volwaardig en duurzaam haventerrein enerzijds en een duurzame stedelijke ontwikkeling in het gebied om de Waal- /Eemhaven met een goede en gezonde leefomgevingkwaliteit anderzijds.
Het ondertekenen van deze werkwijzen betekent dat bij nieuwbouwplannen van geluidgevoelige bestemmingen, zoals woningen, hier rekening mee moet worden houden.
Plandrempel
Voor geluidbronnen waar de gemeente geluidbelastingkaarten heeft opgesteld moet het Programma Geluid een plandrempel bevatten, een geluidbelasting in Lden en een geluidbelasting in Lnight op geluidgevoelige gebouwen (artikel 4.22, lid 1 Besluit kwaliteit leefomgeving (Bkl)).
De gemeente Albrandswaard legt voor de verschillende geluidbronnen en ook voor de maximaal gecumuleerde geluidbelasting (geluid van alle bronnen tezamen naar hinderlijkheid opgeteld) realistische plandrempels vast. De keuze komt voort uit een ambitie om de geluidbelasting en daarmee de leefomgeving van Albrandswaard de komende jaren niet te laten verslechteren en zo mogelijk te verbeteren.
Omdat de geluidwering tegen omgevingsgeluid van een normaal onderhouden woning ten minste 20 dB(A)* bedraagt, is bij een gevelbelasting tot 65 dB(A) geen sprake van situaties waarbij de geluidbelasting binnen de woning hoger dan 45 dB(A) zal zijn.
De gemeente Albrandswaard streeft ernaar om bij nieuwe woningen op hoog geluidbelaste locaties een gezond (akoestisch) leefklimaat na te streven. Wanneer binnen onze gemeente wonen op hoog geluidbelaste locaties (vanaf 58 dB Lden) mogelijk wordt gemaakt, moet worden gekeken of maatregelen kunnen worden getroffen om een gezond leefklimaat te bevorderen (zoals bijvoorbeeld geluidluwe gevels, slaapkamer aan de geluidluwe gevel en buitenruimten). Als bron- en overdrachtsmaatregelen niet mogelijk of onvoldoende effectief zijn, zijn isolerende gevelmaatregelen gericht op een acceptabel binnenniveau (33 dB). Voornoemde oplossingsrichtingen zijn ‘harde’ oplossingsrichtingen. De gemeente weegt ook ‘zachte’ maatregelen af zoals bijvoorbeeld groen-, speel- of sportvoorzieningen om mogelijke hinder te verzachten.
De GGD hanteert een lage streefwaarde op de gevel van 50 dB Lden en 40 dB Lnight. Dit zou uiteraard het prettigst en meest gezond zijn voor de inwoners, maar dit is tegen acceptabele kosten niet haalbaar in Albrandswaard. Daarnaast zullen de bijkomende effecten, zoals het beperken van de vervoersbewegingen, de bereikbaarheid verslechteren en wordt de gemeente hierdoor minder aantrekkelijk voor ondernemers.
Albrandswaard heeft in het vorige beleid al een plandrempel opgenomen van 65 dB Lden. Nieuwbouw ontwikkelen boven de plandrempel vindt Albrandswaard niet acceptabel. Om de woningbouw opgave niet te frustreren houdt Albrandswaard in de aankomende planperiode 2024-2028 de plandrempel op 65 dB Lden.
Wel wil zij de ambitie uitspreken om te verkennen of in de volgende planperiode de plandrempel verlaagd kan worden naar 63 dB Lden. Ontwikkelaars kunnen daarop voorsorteren, wat zeer gewenst is, maar dit is nog geen verplichting.
De ambitieplandrempel en de plandrempel voor de nachtperiode (Lnight) zijn nieuw. Voor industrie zijn al lokale afspraken gemaakt. Deze bieden voldoende veiligheid, waardoor er geen plandrempel vastgelegd hoeft te worden.
Gemeente Albrandswaard - bronnen
Albrandswaard ligt ten zuiden van Rotterdam. Aan de noordzijde van de gemeente ligt de Rijksweg A15 met daarlangs de Havenspoorlijn. Ten noorden van deze infrastructuur liggen de havens van Rotterdam. De gezoneerde industrieterreinen Waal-/Eemhaven en Botlek/Pernis maken hier deel van uit. Ten zuiden wordt de gemeente begrensd door het Natura 2000-gebied Oude Maas (ook stiltegebied) en de gelijknamige relatief druk bevaren rivier de Oude Maas. Het stiltegebied en het Natura-2000 gebied overlappen slechts gedeeltelijk. Onderstaande figuur toont de ligging van de Natura-2000 gebieden.
De gemeente Albrandswaard wordt van oost naar west doorsneden door de Groene Kruisweg (Provincialeweg N492). Binnen de grenzen van de gemeente ligt het gezoneerd bedrijventerrein Distripark Eemhaven ten zuiden van de Rijksweg A15 en niet-gezoneerde bedrijventerreinen zoals Overhoeken in de kern Rhoon en Ambachtstraat in de kern Poortugaal. In onderstaande figuur is dit weergegeven.
Huidige situatie - Enquête
Enquête
Onder de nieuwe omgevingswet is participatie een belangrijk onderwerp. Door het betrekken van de omgeving komt er veel creativiteit en kennis beschikbaar. Het geeft de mogelijkheid om in de besluitvorming onderwerpen mee te nemen die belangrijk zijn voor de betrokken inwoners. Voor het Programma Geluid geldt dat de gemeente bij het vaststellen van het programma aan moet geven hoe burgers, bedrijven, maatschappelijke organisaties en bestuursorganen bij de voorbereiding zijn betrokken. Dit is geregeld in artikel 10.8 van het Omgevingsbesluit. Hiermee wijkt het programma af van de voorgaande actieplannen geluid waarbij deze motiveringsplicht nog niet van toepassing was.
Als gemeente vinden we het betrekken van de bewoners een belangrijk onderwerp. Daarom is in de zomer van 2023 gedurende 4 weken informatie ingewonnen over wat er leeft binnen de gemeente op het gebied van geluid. Dit is gedaan met een enquête door ProPublic. Hierbij hebben we bewoners, bedrijven, maatschappelijke organisaties en bestuursorganen betrokken en geïnformeerd via de gemeentelijke kanalen zoals de website, lokale krant en social media. De enquête is 541 maal volledig ingevuld. Uit de enquête volgt het geluid van wegverkeer als grootste bron van overlast. Overlast van de metro is ook veel genoemd. Zie hieronder de samenvattende figuur.
Reacties enquête
In dit hoofdstuk geven we een toelichting op binnengekomen suggesties uit de enquête.
Geluidflitspaal
Een aantal inwoners heeft in de enquête ingevuld dat geluidflitspalen wellicht een goede optie zijn in Albrandswaard. Geluidflitspalen staan nog in de kinderschoenen. Op dit moment ontbreekt de juridische basis om boetes op te leggen.
In de aankomende planperiode van het Programma Geluid zal Albrandswaard de ontwikkelingen rondom de geluidflitspalen volgen. Als deze techniek met de juridische basis binnen enkele jaren toepasbaar zijn, kan Albrandswaard ze mogelijk ook gaan toepassen op enkele locaties.
Geluidschermen
Met onze partners de provincie Zuid-Holland (Groene Kruisweg) en de RET (metro) zijn wij in 2023 in gesprek gekomen. Eventuele maatregelen zoals de door velen verzochte geluidschermen langs de Groene Kruisweg en de metro zijn daarmee onder de aandacht.
Overkapping Groene Kruisweg
Het overkappen van de Groene Kruisweg is een onwaarschijnlijk scenario. Dit wordt als te kostbaar ingeschat. Daarbij geeft het overkappen van een weg waar ook vrachtwagens met gevaarlijke stoffen over kunnen rijden een extra risico. Deze maatregel is niet verder onderzocht.
Groene Kruisweg versmallen
In de inwonersenquête is het idee geopperd om de Groene Kruisweg te versmallen in combinatie met de maximale snelheid over de hele weg te verlagen naar 50 km/uur. Deze maatregel is niet verder uitgewerkt: de gemeente verwacht dat er in geval van spits en andere drukte op de Groene Kruisweg, het verkeer dan door de woonwijken gaat uitwijken. Dat heeft een ongunstiger effect op het woonklimaat.
Groen
Groen draagt op een positieve manier bij aan de geluidbeleving maar het heeft geen meetbaar resultaat. Groen kan aangenaam geluid produceren, zowel direct (ruisen) als indirect (vogels). Een groene buffer maken van bomen en struiken langs wegen geeft de bewoners een groen uitzicht. Een groen uitzicht vermindert de hinder die lawaai kan opleveren. Dit noemen wij een maskerend effect. Losse beplanting veroorzaakt geen hoorbare geluidreductie, om vegetatie te gebruiken voor geluiddemping is een zeer dichte beplanting nodig. Ook groene geluidschermen moeten goed dicht zijn.
Het verzoek tot meer groen is doorgegeven aan de provincie als wegbeheerder van de Groene Kruisweg. Langs de gemeentelijke weg de Rhoonsebaan is vanuit het concept Groenbeleidsplan ook een wens om meer groen aan te planten. Hier wordt gekeken naar de mogelijkheden. Ter hoogte van de ‘rode boog’ zijn eind 2022/begin 2023 al extra bomen en struiken aangeplant.
Handhaven en controleren
Alle locaties waarvan bewoners het idee hadden dat te hard gereden wordt of met te veel geluid gereden wordt, zijn doorgegeven aan de politie. Zo ook het controleren van uitlaten van motoren, brommers, scooters en auto’s.
Meer flitspalen voor snelheidsovertredingen neerzetten
Uitgangspunt voor het plaatsen van flitspalen is de verkeersveiligheid (aantal dodelijke verkeersongevallen) en niet de geluidbelasting. Albrandswaard is niet het bevoegd gezag voor het plaatsen van een flitspaal. De procedure voor het plaatsen van flitspalen loopt via het rijk.
Helikoptervluchten
Albrandswaard heeft te maken met een helikopter die de Buisleidingenstraat in de gaten houdt. Aangezien deze helikopter laag vliegt veroorzaakt hij extra geluidoverlast. In de Buisleidingenstraat in Albrandswaard zijn verschillende ondergrondse pijpleidingen te vinden. Deze pijpleidingen worden ingezet voor het (ondergrondse) transport van stoffen zoals ruwe olie, chemicaliën, aardgas, waterstofgas, afvalwater, drinkwater en koolwaterstoffen.
De Buisleidingenstraat loopt van Rotterdam tot aan Antwerpen. De Buisleidingenstraat is ontworpen als doorgang voor verschillende ondergrondse pijpleidingen. Deze 'ondergrondse snelweg' zorgt voor een veilig en duurzaam transport van stoffen. Zo worden risico's op mogelijke lekkages beter gecontroleerd en beheerd, en blijft de impact op het milieu in geval van een noodsituatie minimaal. Voor de veiligheid van de inwoners van Albrandswaard en omgeving is het belangrijk dat deze helikopter zijn ronde uit blijft voeren.
Vliegtuigje voor parachutisten
Inwoners hebben aangegeven geluidsoverlast te ervaren van het vliegtuigje van Skydive Rotterdam. Dit vliegtuigje vliegt maximaal drie dagdelen per week over het buitengebied. Skydive Rotterdam is op zoek naar een tweede springlocatie, echter is deze tot op heden (nog) niet gevonden. Ieder kwartaal vindt er een overleg plaats met Skydive Rotterdam, Gebiedscoöperatie Buijtenland van Rhoon en omwonenden om de overlast te bespreken.
Metro
Er zijn diverse vragen en opmerkingen over de metro naar voren gekomen. De gemeente is in gesprek getreden met de RET. De RET is aan het verkennen of er extra onderhoudsmaatregelen getroffen kunnen worden. Zie hiervoor ook het hoofdstuk maatregelen.
Meer drempels toepassen
Drempels geven meer geluidoverlast door remmen en weer optrekken van verkeer en de hogere hobbel geeft ook meer geluidbelasting als er over heen gereden wordt. Het al dan niet toepassen van drempels en andere verkeersremmende maatregelen wordt meegenomen in het Mobiliteitsplan Verkeer.
Windturbines
Diverse inwoners hebben aangegeven dat ze geen windturbines op het Beneluxplein willen omdat deze geluid produceren. De provincie heeft locaties aangewezen. De gemeente Rotterdam is met een Milieu Effect Rapportage (MER) procedure bezig. Hierin wordt de kwaliteit van de leefomgeving meegewogen.
Ander asfalt bij verkeerslichten Groene Kruisweg
Wij hebben het verzoek van de inwoners tot een stiller wegdek bij de verkeerslichten bij de provincie Zuid-Holland neergelegd. Er is in het verleden door de provincie Zuid-Holland bewust gekozen om bij de verkeerslichten een ander, duurzamer wegdek toe te passen. De provincie geeft aan dat geluidreducerend asfalt hier in ieder geval niet mogelijk zal zijn; als er optrekkend en remmend verkeer is, zal de meer open structuur van het stiller asfalt op gaan rullen, wat nog meer geluid oplevert. Maar misschien komen we tot een alternatieve oplossing.
Waterschapswegen en provinciale weg
Beide partijen zijn op de hoogte gebracht van de resultaten uit de enquête. Met de provincie hebben goede overleggen plaatsgevonden maar concrete afspraken zijn (nog) niet gemaakt.
Evaluatie vorige planperiode
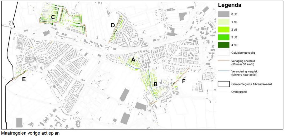
Evaluatie maatregelen
Op de volgende pagina zijn de maatregelen uit het vorige Actieplan Geluid opgenomen. In de tabel is de status erbij vermeld. De toelichting voor een aantal van deze maatregelen staat hieronder.
Asfalt in plaats van klinkers
Code B:
Tussen het kruispunt met de Tijsjesdijk/Essendijk en het kruispunt met de Albrandswaardsedijk (tot de zijstraat van de Don Boscoschool) realiseren we een fietsstraat in rood asfalt. Start in 2024.
Snelheidsverlaging van 50 naar 30 km/uur
Code C:
De huidige weginrichting van de Jan van Almondestraat, Oostdorpseweg en Limes sluit niet aan bij de principes van 30 km/u. In het mobiliteitsplan (waaraan we nu werken) stellen we een nieuw wegcategoriseringsplan vast. Daarin bepalen we (opnieuw) de functies van de wegen met een snelheid die daarbij past (50 of 30 km/u). In de uitvoeringsagenda van het mobiliteitsplan zetten we dan eventuele herinrichtingen uit in de tijd.
Code E:
De Welhoeksedijk is volledig in asfalt uitgevoerd en heeft een snelheidslimiet van 30 km/u. Naar verwachting wordt in Q2 van 2024 een poller geplaatst om doorgaand verkeer van het wegvak te weren. De Welhoeksedijk wordt in dit kwartaal (Q2) heringericht als fietsstraat met rood asfalt. De planning hiervan van werkzaamheden van Evides en Stedin.
Code F:
De Tijsjesdijk is (op de kruispuntplateau’s na) volledig uitgevoerd in asfalt. Een verkennend onderzoek is uitgevoerd naar de mogelijkheden om de Tijsjesdijk in te richten als fietsstraat met rood asfalt. Intern wordt nog bekeken wanneer en met welke middelen de herinrichting wordt uitgevoerd. Het streven is wel om dit jaar (2024) te starten met de civieltechnische voorbereiding.
In de vorige planperiode is geen gesprek met de RET geweest. Maar dit heeft in 2023 na de inwonerenquête wel plaatsgevonden.
Vorige Actieplan
In dit nieuwe beleid herzien we het laatst opgestelde Actieplan Geluid, tweede trance, 2014–2018.
In het vorige Actieplan zijn de geluidniveaus berekend met de toen geldende rekenmethode uit het Reken- en meetvoorschrift geluid 2012 (RMG2012). Met het ingaan van de Omgevingswet geldt er een nieuwe rekenmethode.
Ook zijn er nieuwe formules om het aantal (ernstig) gehinderden en slaapverstoorden te bepalen. Hierdoor is het niet direct mogelijk om de resultaten van het vorige Actieplan te vergelijken met de resultaten in dit Programma Geluid.
Om deze vergelijking toch mogelijk te maken zijn de berekeningen daarom nogmaals uitgevoerd met dezelfde invoergegevens maar met de oude rekenmethodiek. Ook zijn de oude hinderformules gebruikt. Dit levert onderstaande vergelijking van het aantal gehinderden op.
Uit de tabel volgt een toename van het aantal gehinderden en een gelijk aantal slaapverstoorden. De toename van het aantal gehinderden kan verklaard worden door de groei van de verkeersintensiteiten in en rondom Albrandswaard. Bijvoorbeeld door de verbreding van de A15 en de opening van het wegvak van de A4 tussen Schiedam en Delft, waardoor meer verkeer over de A15 rijdt.
Resultaten nieuwe planperiode
Onderstaande tabellen geven een overzicht van het aantal gehinderden en slaapverstoorden in de gemeente Albrandswaard op basis van de nieuwe rekenregels en de nieuwe hinderformules.
In de gemeente Albrandswaard ondervinden 4.600 inwoners een geluidbelasting boven 55 dB Lden. We tellen in totaal 700 ernstig geluidgehinderden, waarbij 100 personen slaapverstoord zijn.
Huidige situatie - Sanering verkeerslawaai
Sanerings B-lijst
De langer bestaande saneringslijsten (de zogenaamde B-lijst) onder de Wet geluidhinder worden onder de Omgevingswet afgerond. De Stationsstraat is volledig gesaneerd. De gemeentelijke weg de Dorpsdijk staat nog open. Dit gaat om de woningen direct langs de Dorpsdijk tussen de kruising met de Tijsjesdijk / Essendijk en de Zantelweg. Onderstaande figuur toont deze woningen.
Verplichte sanering woningen 70 dB of hoger
Met ingang van 1 januari 2024 is er voor gemeenten een verplichte sanering van woningen met een geluidbelasting boven de grenswaarde van 70 dB. Ook de geluidgevoelige gebouwen langs een drukke 30 km/uur weg komen voor sanering in aanmerking. Deze sanering wordt volledig door het Rijk vergoed. Hiervoor is een aparte bijdrageregeling vanuit het Rijk. Binnen Albrandswaard zijn er geen woningen met een geluidbelasting boven de 70 dB.
Vrijwillige sanering woningen 66-70 dB
Ook kunnen geluidgevoelige objecten onder de Omgevingswet tussen de grenswaarde 66-70 dB in aanmerking komen voor een gedeeltelijke rijksbijdrage, met uitzondering van die langs provinciale wegen buiten de bebouwde kom. Voorwaarde is dat deze objecten al op de saneringslijst onder de Wet geluidhinder stonden. Deze gebouwen noemen we de vrijwillige categorie van de sanering. Voor de bescherming van de gezondheid van mensen is het van belang dat ook de gebouwen in de categorie vrijwillige sanering worden aangepakt. Binnen de gemeente Albrandswaard komen hiervoor geen gebouwen in aanmerking.
Huidige situatie - Modelberekening
Rekenmethode
Voorafgaand aan het Programma Geluid zijn geluidkaarten opgesteld en vastgesteld. In de geluidbelastingkaarten is de jaargemiddelde geluidbelasting in Lden weergegeven. Lden staat voor level (Engels voor niveau) en day-evening-night. We berekenen Lden door het jaargemiddelde geluidniveau van ieder van die drie perioden te nemen. Bij geluid in de avond tellen we nog eens 5 decibel (dB) op. Bij het gemiddelde van de nacht nog eens 10 dB. Dit komt omdat mensen in die perioden geluidoverlast als hinderlijker ervaren. Van de geluidbelasting in die drie perioden nemen we vervolgens weer het gemiddelde. Dit noemen we het Lden. Piekbelasting zoals bijvoorbeeld optrekkende en remmende auto’s en metrostellen die over tunnels rijden wordt in de berekeningen niet meegenomen.
De geluidkaarten geven de geluidsituatie op de peildatum 1 januari 2021 weer. Van de lokale wegen is de verkeersintensiteit ook van het jaar 2021 gebruikt. Van de overige bronnen is de verkeersintensiteit van het jaar 2019 gebruikt omdat bij die bronnen het aantal voertuigbewegingen in de Corona periode afwijkend was. In de geluidbelastingkaarten weergegeven in Lnight is de jaargemiddelde nachtelijke geluidbelasting weergegeven.
De geluidkaarten zijn opgesteld met de voorgeschreven Europese rekenmethode CNOSSOS. Deze rekenmethode verschilt van de rekenmethode voorgeschreven in de Omgevingswet. Omdat de resultaten enkele dB’s kunnen verschillen tussen de rekenmethodes zijn de modellen van de geluidkaarten opnieuw berekend. Hiervoor is de rekenmethode uit de Omgevingswet gehanteerd. De resultaten sluiten zo beter aan bij de geluidbelastingen die gebruikt worden bij onder andere ruimtelijke ontwikkelingen en de monitoring van het geluid.
Standaardwaarde
Een verplicht onderdeel voor het Programma geluid is het in kaart brengen van de huidige situatie. De eerste stap is hierbij om de locaties weer te geven waar de geluidbelasting boven de standaardwaarde ligt. In de tabel op de volgende bladzijde wordt de standaardwaarde per geluidbron getoond. Onder deze waarde wordt wettelijk aangenomen dat het geluid aanvaardbaar is en de gezondheidsschade acceptabel. Het gebruik van deze waarde is bij nieuwe (geluidgevoelige) ontwikkelingen.
Geluidniveaus onder de standaardwaarde komen relatief weinig voor. Doordat Nederland een dichtbevolkt gebied is met beperkte ruimte voor het realiseren van woningen, is zeker in de Randstand voor veel woningen sprake van een hogere geluidbelasting. We hanteren in Nederland een grenswaarde tot waar er kan worden gebouwd mits er maatregelen getroffen worden om zo dicht als mogelijk bij de standaardwaarde te komen.
Grenswaarde
Ook is het een verplicht onderdeel dat er gekeken wordt naar de locaties boven de grenswaarde. Dit is de maximale geluidbelasting die voor nieuwe ontwikkelingen is toegestaan nadat is onderzocht of maatregelen aan de bron en overdracht mogelijk zijn. Een geluidniveau tot deze grenswaarde is alleen toegestaan in combinatie met maatregelen om in de woningen het geluid tot een bepaalde binnenwaarde te garanderen.
Resultaten toetsing
Per bron is gekeken naar de locaties boven de standaardwaarde en grenswaarde. Dit gaat om wegverkeer, railverkeer en industrie (waaronder scheepvaart). De locaties met overschrijdingen zijn opgenomen in bijlage 1.
De tabel op de volgende pagina toont een overzicht van de resultaten.
Bij alle bronnen zijn er locaties met geluidbelastingen boven de standaardwaarde. Bij de rijkswegen, provinciale wegen en de industrie zijn er ook geluidbelastingen boven de grenswaarde. Voor scheepvaart bestaat geen wettelijke grenswaarde, maar is voor de volledigheid wel meegenomen in de tabel.
De standaardwaarde en grenswaarde worden gebruikt bij nieuwe ruimtelijke ontwikkelingen. Voor bestaande locaties is getoetst aan de plandrempels van de gemeente Albrandswaard. Deze toetsing staat op de volgende pagina’s verder uitgewerkt.
Huidige situatie - Toets wettelijke grenswaarden
Huidige situatie - berekening lokale wegen
Lokale wegen
De lokale wegen bestaan uit de gemeentelijke wegen en de waterschapswegen. De belangrijkste geluidbronnen voor de kern van Rhoon zijn de route Rhoonse Baan/Binnenbaan, de Rivierweg, de Rijsdijk, de Dorpsdijk en de route Werkerswijk/Oranje Nassaulaan. In de kern Poortugaal zijn de belangrijkste geluidbronnen de Dorpsdijk, Albrandswaardseweg, de route F. van de Poest Clementlaan/Hofhoek, de Beatrixstraat en de Zwaardijk.
Toetsing huidige plandrempel
Er is getoetst of de lokale wegen voldoen aan het huidige beleid, de plandrempel van 65 dB. Dit voldoet volledig. De gemeente Albrandswaard en waterschap Hollandse Delta hoeven geen maatregelen te treffen om te voldoen aan de huidige plandrempel.
Toetsing ambitieplandrempel
In onderstaande figuur zijn de hotspots opgenomen als getoetst wordt aan de ambitie plandrempel van 63 dB Lden. Dan komt er wel een 3-tal hotspotlocaties naar voren. Dit gaat om de Slotsedijk, de Regenboog / Portlandse Baan en de Dorpsdijk.
Huidige situatie - Modelberekening
Slotsedijk
Hiernaast staat de uitvergroting van de ambitie hotspotlocatie aan de Slotsedijk in Rhoon. Het betreft twee woningen die direct tegen de weg aan staan van de waterschapswegen. De woningen hebben een geluidbelasting van 64 dB Lden. De weg is voorzien van asfalt en er mag 60 km/uur gereden worden. De figuur rechtsboven toont deze locatie.
Regenboog / Portlandse Baan
Rechtsonder staat de uitvergroting van de ambitie hotspotlocatie in de wijk Portland aan de Regenboog/Portlandse Baan. Deze wegen zijn van de gemeente. Aan de Regenboog mag 30 km/uur gereden worden en aan de Portlandse Baan 50 km/uur. Er liggen achtereenvolgens klinkers en asfalt. Deze woningen hebben een geluidbelasting van 60-64 dB Lden. Als maatregel zouden hier geluidschermen geplaatst kunnen worden. De figuur rechtsonder toont de locatie waar sprake is van een geluidbelasting boven de 63 dB Lden.
Dorpsdijk
Hieronder is de uitvergroting van de ambitie hotspotlocatie in Rhoon aan de Dorpsdijk. Deze weg is van de gemeente. Aan dit stuk van de Dorpsdijk mag 30 km/uur gereden worden en er ligt asfalt. Bij het opstellen van de geluidkaarten was deze snelheid nog niet verwerkt in de modellen, maar is gerekend met 50 km/u. De berekende geluidbelasting van 60 - 65 dB Lden is hiermee te hoog. Bij het hoofdstuk maatregelen is het effect van de toegepaste snelheidsverlaging opgenomen.
Huidige situatie - berekening provinciale weg
Provinciale weg
In de figuur rechtsonder is de jaargemiddelde geluidbelasting (etmaal Lden) van de Groene Kruisweg, de N492 weergegeven.
In een eerder kader heeft er al een sanering plaatsgevonden aan de Groene Kruisweg. In overleg met bewoners heeft de provincie op verschillende locaties geluidschermen geplaatst. Niet alle bewoners wilden een geluidscherm voor hun huis. In een aantal gevallen hebben inwoners gekozen voor gevelisolatie (geluidisolatie aan de woning) of wilden ook dat niet. Gevelisolatie is niet zichtbaar in de modelberekening. Het geluidniveau in de woning kan dus voldoen terwijl de locatie nog steeds als een hotspot uit de berekening volgt. Gezien het grote aantal hotspots in de huidige situatie is de provincie alsnog bereid om maatregelen uit te werken.
Uit onderstaande figuur uit 2022 blijkt dat er aan de Groene Kruisweg nog geen stil asfalt aangelegd is. Een ander wegdek is financieel haalbaar als het wegdek aan vervanging toe is. In overleg met de provincie zal een maatregelenpakket uitgewerkt worden.
Het Actieplan van de provincie dat vanaf 2024 zal gelden gaat in op geluidproductieplafonds (GPP’s). In 2024 wordt beoogd geluidproductie-plafonds voor de provinciale wegen voor te leggen aan Provinciale Staten. Deze geluidproductieplafonds zijn wettelijk verplichte omgevingswaarden die een maximum bepalen voor de geluidproductie van provinciale wegen. In dit ontwerp wordt er van uitgegaan dat de geluidproductieplafonds de eerste maal op het maximale niveau worden vastgesteld. Dat is de huidige hoeveelheid geluid plus 1,5 dB (40% verkeersgroei).
Het maximale niveau voor geluidproductieplafonds kan maatschappelijk gezien tot problemen leiden. Dit maximum wordt bepaald door de bestaande berekende hoeveelheid geluid. Tot de invoering van de Omgevingswet kon geluid door verkeer op provinciale wegen onbeheerst groeien, zolang er geen sprake was van een relevante aanpassing van de weg. De bestaande berekende hoeveelheid geluid betekent daarom dat er een veelheid aan plekken is waar verkeerslawaai omwonenden hindert.
De groei van het geluid wordt door geluidproductieplafonds begrensd, maar de bestaande hinder wordt hierdoor niet ingeperkt (laat staan weggenomen). Het ontwerp Actieplan Geluid van de provincie is er op gericht de problemen die ontstaan binnen die geluidproductieplafonds zoveel mogelijk op te lossen.
Huidige situatie - berekening rijksweg
Rijksweg
In naastgelegen figuur is de jaargemiddelde geluidbelasting (etmaal Lden) van de rijksweg A15 weergegeven.
Uit het Actieplan omgevingsgeluid van Rijkswegen blijkt dat er in 2016 ter hoogte van de gemeente Albrandswaard Tweelaags ZOAB aangebracht is (km 54,2 t/m km 57,3). Dit heeft een geluidreducerend effect gehad.
Getoetst aan de huidige plandrempel van 65 dB Lden is er een hotspot die veroorzaakt wordt door de rijksweg. Het betreft één woning. Uit de monitoringsrapportage van Rijkswaterstaat blijkt dat op drie referentiepunten sprake is van overschrijdingen van de geluidproductie-plafonds en op meerdere punten dreigende overschrijdingen. De geluidruimte van de Rijksweg A15 is ter hoogte van Albrandswaard beperkt.
Het vergroten van de geluidruimte geniet niet onze voorkeur. Als RWS dit zou voorstellen dienen we een zienswijze in en gaan in gesprek met RWS. Er wordt nieuw geluidreducerend asfalt aangelegd op de A15 tussen Hoogvliet en knooppunt Vaanplein. Dit zou tussen 2024/2025 worden uitgevoerd. Deze maatregel neemt de (dreigende) overschrijding van het geluidproductieplafond weg.
Huidige situatie - berekening railverkeer
Railverkeer
De geluidbron railverkeer betreft de Betuweroute en beide metrobanen binnen de gemeente (lijn D van de RET). Zie onderstaande linkerfiguur met in het groen de ligging van de spoorbanen.
Langs de Betuweroute zijn aan de zijde van de gemeente Albrandswaard geluidschermen aangelegd. Om deze reden is de 55 dB-contour van de Betuweroute over een klein deel van de gemeente Albrandswaard gelegen. Binnen deze contour ligt in de gemeente Albrandswaard één woning, namelijk de Rijsdijk 172.
De figuur rechtsonder toont de jaargemiddelde geluidbelasting (etmaal Lden) door de metrobanen. Getoetst aan de huidige plandrempel van 65 dB Lden zijn in de gemeente geen hotspots aanwezig door het railverkeer. Wanneer getoetst wordt aan de ambitie plandrempel van 63 dB Lden dan verschijnen er wel hotspots langs het spoor: dit betreft solitaire woningen en woningen aan de Station te Poortugaal.
Huidige situatie - berekening industrie, scheepvaart en luchtvaart
Distripark Eemhaven
In de naastgelegen tekeningen van de industrie springt het Distripark Eemhaven er duidelijk uit. Ook zit in deze inkleuring het geluid afkomstig van de Waalhaven en Botlek en Pernis verwerkt. De industrie geeft geen overschrijding van de huidige en ambitie plandrempel van de bestaande geluidgevoelige bebouwing en terreinen. In het jaar 2024 vindt een herstructurering plaats van de openbare wegen op het Distripark Eemhaven. De ligging van de wegen wijzigen niet ten opzichte van de huidige ligging waardoor er geen wijziging zijn in de bronlocaties.
Scheepvaart
De scheepvaart over de Oude Maas is in beeld gebracht. De scheepvaart geeft geen overschrijding van de huidige en ambitie plandrempel van de bestaande geluidgevoelige bebouwing en terreinen (waaronder het Antes-terrein waar zorg wordt verleend).
Luchtvaart
De geluidbelasting van het vliegverkeer zou ook bepaald moeten worden. Het grondgebied van Albrandswaard valt niet onder de officiële aanvliegroute van Rotterdam The Hague Airport, waardoor er geen jaargemiddelde (nacht)geluidbelasting berekend is. Piloten mogen onder omstandigheden wel afwijken van de officiële-aanvliegroute. Uit de enquête volgt dat er wel hinder is van vliegverkeer (helikopter en vliegtuigje met parachutisten). Deze vliegbewegingen vallen niet in een jaargemiddelde geluidbelasting weer te geven en vallen daarmee buiten de modelberekening in het Programma Geluid.
Huidige situatie - nestgeluid
Nestgeluid
De geluidzone van de industrieterreinen Waal-/Eemhaven en Botlek/Pernis ligt in de gemeente Albrandswaard. Het havenbedrijf Rotterdam en gemeente Rotterdam zetten in op verduurzaming. Het doel is dat binnen een aantal jaar een groot deel van de zeeschepen 'aan de stekker' gaan als ze aan de kade liggen. Hierdoor is het niet meer nodig de dieselgeneratoren te laten draaien om het schip van stroom te voorzien terwijl het aangemeerd ligt. Dit geluid wordt ‘nestgeluid’ genoemd. Europese regelgeving schrijft voor dat in 2030 alle cruiseschepen en containerschepen in de Europese havens gebruik moeten maken van walstroom.
Voorlopig heeft Albrandswaard nog te maken met het nestgeluid. De geluidbelasting en formalisering van het nestgeluid wordt momenteel in een parallel traject, het Regionaal Afspraken Kader (RAK), vormgegeven. Onderstaande figuur toont de nestgeluidcontouren uit het RAK-convenant. In de geluidbelastingkaarten van de industrie is het nestgeluid vanuit de haven niet verwerkt.
In haven van Rhoon zijn ligplekken aanwezig, grotendeels zijn het vaste ligplekken met een paar plekken voor boten van gasten. In de planperiode 2024-2028 geeft de gemeente aan wanneer ook hier gebruik moet worden gemaakt van walstroom.
Huidige situatie - cumulatie
De gecumuleerde geluidbelasting is de som van de geluidbelastingen van de individuele bronnen waarvoor een geluidbelastingkaart is gemaakt namelijk wegverkeer, railverkeer en industrie. Nestgeluid is hierin niet opgenomen.
Toetsing huidige plandrempel
In naastgelegen figuur zijn de hotspots weergegeven bij een gecumuleerde geluidbelasting, getoetst aan de huidige plandrempel van 65 dB Lden. In de wijk Portland bevinden zich geen hotspots.
De hotspots getoetst aan de plandrempel van 65 dB Lden zijn hieronder als inzoom weergegeven (rode bolletjes, hoe groter het bolletje hoe hoger het geluid).
De geluidbelasting van de provinciale weg is de hoofdveroorzaker van de hotspots. De metrobaan ligt ook dichtbij de geluidgevoelige objecten maar draagt volgens de modelberekening niet zoveel bij als de provinciale weg.
Toetsing ambitie plandrempel
In de naastgelegen figuur zijn de hotspots weergegeven bij een gecumuleerde geluidbelasting, getoetst aan de ambitie plandrempel van 63 dB Lden. Het aantal hotspots neemt toe als de plandrempel strenger wordt. Meer geluidgevoelige gebouwen en terreinen langs de provinciale weg lichten op. Ook lichten er meer geluidgevoelige gebouwen en terreinen langs de rijksweg op en langs de rails.
In de paragraaf over de lokale wegen zijn al een 3-tal locaties omschreven. Deze worden hier niet verder uitdiept.
Volgorde maatregelen
Bij de uitwerking van maatregelen blijft de voorkeursvolgorde van kracht:
• bronmaatregelen;
• overdrachtsmaatregelen (tussen de bron en woning);
• gevelmaatregelen aan de woningen zelf.
Het Informatiepunt Leefomgeving (IPLO) heeft het doelmatigheidscriterium benoemd en uitgewerkt. Doelmatig betekent dat:
• de kosten in verhouding staan tot de baten en
• een voldoende effect aanwezig is op het aantal geluidgehinderde personen, waarbij wordt voldaan aan een minimale eis.
Kostbare oplossingen als stil asfalt of geluidschermen zijn soms effectieve, maar niet kosteneffectieve oplossingen.
De gemeente Albrandswaard heeft te maken met geluidsbronnen waarvoor de gemeente geen bevoegd gezag is. Deze geluidsbronnen zijn de Rijksweg A15, de Groene Kruisweg (N492), de metro, de Betuweroute en wegen in beheer van waterschap Hollandse Delta. Voor deze geluidsbronnen kunnen in dit programma geen maatregelen worden opgenomen om de geluiduitstraling te beperken.
Lokale wegen
Er wordt al voldaan aan de huidige plandrempel van 65 dB Lden voor de lokale wegen in de planperiode 2024-2028. Om ook te kunnen voldoen aan de ambitieplandrempel (63 dB Lden) die mogelijk gaat gelden vanaf 2029, zijn in de huidige tranche drie locaties die aangepakt moeten worden. Voor de derde locatie maken we op dat al een snelheidsverlaging heeft plaatsgevonden.
1. Slotsedijk in Rhoon
2. Regenboog/Portlandse Baan in de wijk Portland
3. Dorpsdijk in Rhoon
De Dorpsdijk en Portlandse Baan staan uitgewerkt op de volgende pagina’s. Voor de Slotsedijk dient een gesprek plaats te vinden met het Waterschap Hollands Delta voor eventuele maatregelen.
Regenboog/Portlandse Baan in de wijk Portland
Portlandse Baan
Voor de Portlandse Baan is gekeken naar de wegvakken van de kruising met de Saffierlaan / Regenboog tot de rotonde met de Saffierlaan / Biezenlaan. De hoogste geluidbelasting is hier 64 dB. Als maatregel is gekeken naar het toepassen van een scherm van 1,2 meter hoogte op korte afstand van de weg.
De figuur hieronder toont in het blauw de ligging van het onderzochte scherm. Hierbij is zoveel mogelijk rekening gehouden met de aanwezige bushalte en in- en uitritten. De totale lengte van het scherm bedraagt 376,2 meter. Met het toepassen van het scherm is geen sprake van een afname van het aantal gehinderden of slaapverstoorden. Dit komt doordat het scherm niet direct langs de rijbaan kan staan door de aanwezigheid van onder andere parkeervakken. De effectiviteit van het scherm is hiermee beperkt. Een hoger scherm plaatsen doet afbreuk aan de ruimtelijke uitstraling en is in het kader van stedenbouw niet gewenst.
Op de volgende pagina is daarom gekeken naar het toepassen van geluidreducerend asfalt.
Als tweede maatregel is gekeken naar het toepassen van geluidreducerend asfalt, zijnde het type wegdek ‘dunne deklaag B’, behalve op de delen waar nu klinkerverharding op de weg ligt. Met deze maatregel neemt het aantal gehinderden met 1 af. Het aantal slaapverstoorden neemt ook met 1 af. Voor de eerstelijns bebouwing geldt dat sprake is van een afname in geluidbelasting van gemiddeld 2 dB. Hiermee is de overschrijding van de ambitie plandrempel geheel weg te nemen.
De kosten van deze maatregel ramen we op ongeveer 35.000 euro meer ten opzichte van de kosten voor een referentiewegdek. De eenmalige investeringskosten bedragen ongeveer 95.000 euro.
Maatregelen - Dorpsdijk Rhoon
Dorpsdijk Rhoon
Voor de maatregelen is gekeken naar het wegvak tussen de kruising met de Tijsjesdijk / Essendijk en de kruising met de Havendam. In de berekeningen is dit wegvak meegenomen met een snelheid van 50 km/u, maar enkele jaren terug is de snelheid hier al aangepast naar 30 km/u.
Het effect van de eerder toegepaste snelheidsverlaging is hier doorgerekend. In de figuur rechts is de geluidbelasting bij een snelheid van 50 km/u weergegeven. De figuur daaronder geeft de geluidniveaus bij een snelheid van 30 km/u.
De hoogste geluidbelasting neemt af van 65 dB naar 62 dB. De gemiddelde afname in geluidbelasting bedraagt ongeveer 4 dB. Het aantal gehinderden neemt af met 3 en het aantal slaapverstoorden met 1.
Aanpassing LIOR
Het is gewenst een aanpassing te maken in de Leidraad Inrichting Openbare Ruimte (LIOR), dat op de ambitie (63 dB Lden) hotspotlocaties onderzocht moet worden of hier stil asfalt neergelegd kan worden. Het betreft hier de Portlandse Baan.
Geluidflitspalen
In veel gemeenten is geluidoverlast door asociaal weggedrag aan de orde. In andere gemeenten, waaronder Rotterdam, worden pilots uitgevoerd met geluidflitspalen. Albrandswaard zal de ontwikkelingen volgen. Mogelijk kan Albrandswaard dit in de planperiode al toepassen. De gemeentelijke verordening moet hier op aangepast worden. De geluidflitspalen geven veel technische informatie waarop door de RDW maatregelen getroffen kan worden. De gemeente heeft geen handvaten om juridisch te handhaven.
Campagne
Voorlichtingscampagne opzetten dat zachter rijden tegen geluidoverlast van de omwonenden is. Vergelijkbare mobiele borden plaatsen zoals in Barendrecht. Echter niet blijvend plaatsen, maar tijdelijk en verplaatsbaar.
Voorlichting
Eenmalig voorlichting geven over de helikopter die over de buisleidingenstraat vliegt. We gaan in overleg met de beheerders om afspraken te maken over voorlichting naar bewoners en mogelijk ook afspraken te maken over het vliegen met stillere helikopters.
Waterschap
Met waterschap Hollandse Delta heeft geen afstemming plaatsgevonden bij het vormgeven van dit Programma Geluid. Voorgesteld wordt dit gesprek binnen de planperiode van het Programma Geluid vorm te geven.
Provincie
Met de provincie Zuid-Holland hebben voor het opstellen van het Programma Geluid gesprekken plaatsgevonden. De gemeente heeft een lijst met mogelijke maatregelen opgesteld en aan de provincie voorgelegd. In deze lijst zijn onder andere geluidflitspalen plaatsen, stil asfalt toepassen, verkeersdaling bewerkstelligen en geluidschermen opgenomen. Deze opties kunnen door de provincie onderzocht worden op effectiviteit en haalbaarheid en voorzien van een kostenraming. Wanneer dit verder uitwerkt is, wordt dit aan het college van Albrandswaard voorgelegd.
Als er een verdeelsleutel op enkele maatregelen zit, zal dit eveneens aan de raad voorgelegd worden.
Daarnaast heeft de provincie in haar Actieplan Geluid aangeven een aantal pilots (Citizen Science) te willen starten met inwoners. Albrandswaard wil hier graag voor in aanmerking komen.
Om tot samenwerking met de provincie te komen is het nodig dat het college van Burgemeester en Wethouders van Albrandswaard een formeel verzoek indient bij het college van Gedeputeerde Staten van Zuid-Holland.
Rijkswaterstaat
Met Rijkswaterstaat heeft geen afstemming plaatsgevonden bij het vormgeven van dit Programma Geluid. Voorgesteld wordt om het gesprek binnen de planperiode van het Programma Geluid vorm te geven, waarbij de klachten van de inwoners besproken worden en de vraag wordt gesteld of Rijkswaterstaat bereid is om aanvullende geluidmaatregelen te treffen.
RET
In de inwonerenquête gaven inwoners aan geluidoverlast te ervaren van de metro. Om deze reden is de gemeente het gesprek aangegaan met de RET. De metro in Albrandswaard is van de RET. Met de RET zijn voor het opstellen van het Programma Geluid gesprekken geweest. RET is beheerder van het spoor namens de Metropoolregio Den Haag (MRDH). RET krijgt budget om de metro’s te onderhouden. De RET heeft eind 2023 de aanbesteding van een nieuw contract voor de onderhoudswerkzaamheden. Zij zien kansen in dit contract om incidenteel extra slijpen makkelijk in opdracht te kunnen geven.
Een verzoek voor grotere onderhoudskosten of maatregelen zal de gemeente via de MRDH moeten doen. Daarbij is de MRDH doorgaans niet genegen maatregelen te financieren als al aan de wettelijke verplichtingen (drempelwaarden van geluid) wordt voldaan. De wettelijke verplichting is 65 dB Lden. Er zijn bij de plandrempel van 65 dB Lden geen hotspots veroorzaakt door de metro.
Vanuit de gemeente (afdeling Verkeer) is gestart met het project voor de ontwikkeling van de omgeving OV Knooppunten in overleg met MRDH. Het is gewenst dit integraal op te pakken zodat geluidoverlastmaatregelen (bijvoorbeeld een muur zoals bij station Rhoon) betrokken kunnen worden.
Raming kosten
/join/id/regdata/gm0613/2024/a6831509299a4c7ba8fed8c47fb4558e/nld@2024‑12‑02;15030662
Kopieer de link naar uw clipboard
https://zoek.officielebekendmakingen.nl/gmb-2024-510012.html
De hier aangeboden pdf-bestanden van het Staatsblad, Staatscourant, Tractatenblad, provinciaal blad, gemeenteblad, waterschapsblad en blad gemeenschappelijke regeling vormen de formele bekendmakingen in de zin van de Bekendmakingswet en de Rijkswet goedkeuring en bekendmaking verdragen voor zover ze na 1 juli 2009 zijn uitgegeven. Voor pdf-publicaties van vóór deze datum geldt dat alleen de in papieren vorm uitgegeven bladen formele status hebben; de hier aangeboden elektronische versies daarvan worden bij wijze van service aangeboden.