Aanwijzingsbesluit vuurwerkvrije zones jaarwisseling 2024-2025 Breda

Bekendmaking

Burgemeester en wethouders van Breda maken bekend dat zij op 29 oktober 2024 het Aanwijzingsbesluit vuurwerkvrije zones jaarwisseling 2024-2025 Breda hebben vastgesteld. Het aanwijzingsbesluit voorziet in de aanwijzing van locaties, met aanduiding van de straten, waar tussen 31 december 2024 18:00 uur en 1 januari 2025 02:00 uur geen legaal consumentenvuurwerk mag worden afgestoken.

 

Inwerkingtreding

Het aanwijzingsbesluit wordt van kracht met ingang van de eerste dag na die van deze bekendmaking.

 

Rechtsmiddelen

Het is voor belanghebbenden mogelijk om tegen dit besluit op grond van de Algemene wet bestuursrecht een bezwaarschrift in te dienen. Dit moet binnen zes weken na deze bekendmaking schriftelijk ingediend worden en gericht zijn aan burgemeester en wethouders van de gemeente Breda, t.a.v. Adviescommissie bezwaarschriften, Postbus 90156, 4800 RH te Breda. In het ondertekende bezwaarschrift moet het volgende zijn opgenomen:

  • naam, adres, telefoonnummer en e-mailadres;

  • de datum waarop het bezwaarschrift wordt ingediend;

  • een omschrijving van het besluit waartegen bezwaar wordt gemaakt (nummer Gemeenteblad);

  • de redenen waarom bezwaar wordt gemaakt.

Als het bezwaarschrift door iemand anders dan de belanghebbende wordt ingediend, moet een volmacht worden meegestuurd. Het bezwaarschrift kan ook per elektronisch formulier worden verzonden. Dit formulier is te vinden op www.breda.nl. Daar is ook meer informatie over bezwaarschriften te lezen.

 

Aanwijzingsbesluit vuurwerkvrije zones jaarwisseling 2024-2025 Breda

 

Het college van burgemeester en wethouders van de gemeente Breda,

 

Gelet op artikel 2.77 van de APV Breda 2018,

 

Overwegende dat:

 

  • het ingevolge het vuurwerkbesluit het is toegestaan consumentenvuurwerk af te steken op dinsdag 31 december 2024 van 18.00 uur tot en met woensdag 1 januari 2025, 02.00 uur; het op grond van artikel 2:77 lid 1 van de Algemene plaatselijke verordening Breda (APV) verboden is consumentenvuurwerk te bezigen op een door het college in het belang van voorkoming van gevaar, schade of overlast aangewezen plaats;

  • het ter voorkoming van overlast, schade of gevaar wenselijk is vuurwerkvrije zones aan te wijzen in Breda;

  • het ter bescherming van het dierenwelzijn nodig is het afsteken van vuurwerk niet toe te staan in de directe omgeving van kinderboerderijen De Sik, Parkhoeve, Wolfslaar, De Zandberg, dierenweides ’t Waaijke (Ulvenhout), De Bunderij in (Bavel), Park Overbos (Prinsenbeek) en Dierenopvang Breda en Dierenhotel Liesbosch;

  • het ter bescherming van kwetsbare mensen wenselijk is het afsteken van vuurwerk niet toe te staan in en rondom een aantal wooncentra voor ouderen en zieken, zijnde woonvoorziening Beemdhuis, woonvoorziening Brabantpark en het Amphia ziekenhuis Molengracht;

  • het ter bescherming van historisch erfgoed en gelet op risico’s verbonden aan een horecaconcentratie gebied wenselijk is het afsteken van vuurwerk niet toe te staan in de binnenstad, zijnde het gebied binnen de cirkel Haven, Nieuweweg, Karnemelkstraat, Houtmarkt, Oude Vest, Vlaszak, deel John F. Kennedylaan, Kapucijnenhof/ Catharinastraat, Kasteelplein, Singelstraat, Kraanstraat, Vismarkt. Tevens wordt ter bescherming van historisch erfgoed de omgeving rond de korenmolen De Hoop in Bavel aangewezen;

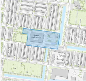
  • het vanuit het oogpunt van openbare orde en veiligheid wenselijk is het afsteken van vuurwerk niet toe te staan op het Groenedijkplein, een deel van de Doornboslaan inclusief de aangrenzende groenzones voor wat betreft het deel tussen de rotondes met het Groendijkplein en de Molstraat, de omgeving van BS het Noorderlicht aan de Cornelis Florisstraat inclusief de aangrenzende parkeerzones en het Nelson Mandelaplein;

  • inwoners van Breda de gelegenheid is gegeven in juli en augustus een zienswijze te geven op het ontwerpbesluit gedurende een periode van zes weken en er geen zienswijzen of reacties zijn ontvangen;

  • over voorgaande met betrokken partijen overleg is geweest;

 

BESLUIT:

  • 1.

    De navolgende locaties (inclusief de directe omgeving) en gebieden als aangegeven op de bij dit besluit behorende kaarten aan te wijzen als plaatsen waar het tussen 31 december 2024 - 18.00 uur - en 01 januari 2025 - 02.00 uur - verboden is om categorie F2 consumentenvuurwerk af te steken:

    • Kinderboerderij De Sik

    • Kinderboerderij De Wolfslaar

    • Kinderboerderij De Parkhoeve

    • Kinderboerderij De Zandberg

    • Dierenweide ’t Waaijke, Ulvenhout

    • Dierenweide De Bunderij, Bavel

    • Dierenweide Park Overbos, Prinsenbeek

    • Dierenopvangcentrum Breda

    • Dierenhotel Liesbosch

    • Woonvoorziening Het Beemdhuis

    • Woonvoorziening Brabantpark

    • Amphia Ziekenhuis Molengracht

    • Molen De Hoop Bavel

    • City gebied: zijnde het gebied binnen de cirkel Haven, Nieuweweg, Karnemelkstraat, Houtmarkt, Oude Vest, Vlaszak, deel John F. Kennedylaan, Kapucijnenhof/ Catharinastraat, Kasteelplein, Singelstraat, Kraanstraat, Vismarkt.

    • Groenedijkplein en de Doornboslaan inclusief de aangrenzende groenzones voor wat betreft het deel tussen de rotondes/ kruising met het Groendijkplein en de Molstraat.

    • Omgeving BS Het Noorderlicht inclusief de aangrenzende parkeerzones

    • Nelson Mandelaplein

  • 2.

    Dit besluit treedt in werking op de dag na bekendmaking en vervalt op 01 januari 2025, 02.01 uur.

  • 3.

    Dit besluit kan worden aangehaald als “Aanwijzingsbesluit vuurwerkvrije zones jaarwisseling 2024-2025 Breda”.

Aldus vastgesteld op: 29 oktober 2024,

Burgemeester en wethouders van Breda,

, burgemeester,

, gemeentesecretaris.

Vuurwerkvrije zones in kaart 1

 

Kinderboerderij De Sik (Kesteren)

 

Kinderboerderij De Wolfslaar (Breda Zuid)

 

Dierenweide 't Waaijke (Ulvenhout)

 

Kinderboerderij De Parkhoeve (Breda Noord)

 

Dierenweide Bunderij (Bavel)

 

Kinderboerderij Zandberg

 

Dierenweide park Overbos (Prinsenbeek)

 

Dierenhotel Liesbosch

 

Dierenopvang Breda (Breda Noord)

 

Woonvoorziening Het Beemdhuis (Kesteren)

 

Amphia Ziekenhuis Molengracht

 

Woonvoorziening Brabantpark (Brabantpark)

 

Groenedijkplein en grasveld deel Doornboslaan (Geeren-Noord/Zuid)

 

Noorderlichtplein en aangrenzende parkeerzones (Geeren-Noord)

 

Nelson Mandelaplein (Tuinzigt)

 

Molen De Hoop (Bavel)

 

City gebied/ gebied binnen de oude vestingmuren van 1531

 

Gebied City/ binnenstad: Haven, Nieuweweg, Karnemelkstraat, Houtmarkt, Oude Vest, Vlaszak , deel John F. Kennedylaan, Kapucijnenhof / Catharinastraat, Kasteelplein, Singelstraat, Kraanstraat, Vismarkt.

Naar boven