Vaststelling naamgeving Dalmeden, Meander Noord

Burgemeester en wethouders van de gemeente Hengelo;

 

Besluiten:

  • 1.

    In Dalmeden, deelgebied Meander Noord de namen

    • -

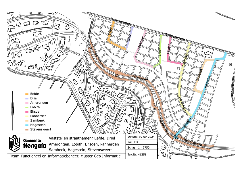
      Eefde, straatcode 2304, onderschrift 'Waterstandsmeetpunt aan de IJssel’;

    • -

      Driel, straatcode 2149, onderschrift 'Waterstandsmeetpunt aan de Rijn’;

    • -

      Amerongen, straatcode 0348, onderschrift 'Waterstandsmeetpunt aan de Rijn’;

    • -

      Lobith, straatcode 5248, onderschrift 'Waterstandsmeetpunt aan de Rijn’;

    • -

      Pannerden, straatcode 6580, onderschrift 'Waterstandsmeetpunt aan de Rijn’;

    • -

      Stevensweert, straatcode 8075, onderschrift ‘Waterstandsmeetpunt aan de Maas’;

    • -

      het noordelijke deel van Hagestein, straatcode 3278, onderschrift 'Waterstandsmeetpunt aan de Waal';

  • op hun oude locatie in te trekken en volgens de nieuwe situatie de volgende namen vast te stellen:

    • -

      Eefde, straatcode 2304, onderschrift 'Waterstandsmeetpunt aan de IJssel’;

    • -

      Driel, straatcode 2149, onderschrift 'Waterstandsmeetpunt aan de Rijn’;

    • -

      Amerongen, straatcode 0348, onderschrift 'Waterstandsmeetpunt aan de Rijn’;

    • -

      Lobith, straatcode 5248, onderschrift 'Waterstandsmeetpunt aan de Rijn’;

    • -

      Eijsden, straatcode 2375, onderschrift 'Waterstandsmeetpunt aan de Maas';

    • -

      Pannerden, straatcode 6580, onderschrift 'Waterstandsmeetpunt aan de Rijn’;

    • -

      Sambeek, straatcode 7399, onderschrift 'Waterstandsmeetpunt aan de Maas';

    • -

      Stevenweert, straatcode 8075, onderschrift ‘Waterstandsmeetpunt aan de Maas’;

    • -

      Voor het verlegde noordelijke deel van Hagestein, vast te stellen: Hagestein , straatcode 3278, onderschrift 'Waterstandsmeetpunt aan de Waal';

  • 2.

    De volgende situatietekeningen vast te stellen:

    • a.

      41250 intrekken namen Meander Noord op oude locatie.pdf

    • b.

      41251 vaststellen namen Meander Noord.pdf

  • 3.

    Dat de ingangsdatum 1 november 2024 is.

Aldus vastgesteld in de collegevergadering van 22 oktober 2024

de secretaris,

de burgemeester,

 

Bezwaar

 

Bent u belanghebbende, dan kunt u binnen zes weken na publicatiedatum van dit besluit een gemotiveerd bezwaarschrift indienen bij het college van B en W. Kijk voor meer informatie op Bezwaar en beroep (hengelo.nl)

Bijlage 1 Situatietekeningen

 

 

Naar boven