Voornemen tot het aangaan van een overeenkomst

Publicatiedatum

26 januari 2024

Objectinformatie

  • I.

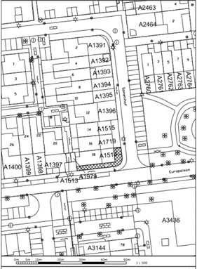
    Adres: strook aan de Europalaan/Spinellihof te Goes

    Perceel: een strook bestemd als tuin, deel uitmakende van de percelen kadastraal bekend

    gemeente Goes, sectie A, nummer 3739 (gedeeltelijk).

    Perceelgrootte: 61 m²

    Koopprijs: € 70,- p/m² voor 61 m² excl. btw, ofwel totaal € 4.270 excl BTW.

    Hiermee komt de totale koopprijs op € 5.166,70 incl BTW.  

    Voornemen tot het aangaan van een overeenkomst

    Voormeld perceel ligt aan de Europalaan/Spinellihof en wordt momenteel gehuurd als tuin. Gemeente is voornemens de strook te verkopen aan de toekomstig eigenaar van de naastgelegen woning van het adres Spinellihof 18, 4463 GP Goes. De strook grond zal worden gebruikt als tuin.

  • Reden publicatie

    De Gemeente publiceert dit voornemen op de hierboven weergegeven publicatiedatum. Met deze publicatie geeft de Gemeente uitvoering aan het arrest van de Hoge Raad d.d. 26 november 2021 (ECLI:NL:HR:2021:1778), meer in het bijzonder het bepaalde in rechtsoverweging 3.1.6.  De gemeente Goes is van mening dat de toekomstig bewoner van Spinellihof 18 de enige serieuze gegadigde is voor de aankoop van het desbetreffende perceel en zal dit dus aan de hen verkopen. Een ieder die zich niet kan verenigen met de hiervoor omschreven slotsom en van mening is ook voor een overeenkomst ter verkrijging van de hierboven omschreven percelen in aanmerking te komen, kan binnen een termijn van 20 kalenderdagen na de hierboven weergegeven publicatiedatum een kort geding procedure aanhangig maken bij de bevoegde voorzieningenrechter te Middelburg (Kousteensdijk 2, 4331 JE) èn een email te sturen aan l.tavenier@goes.nl.

Voor inlichtingen naar aanleiding van deze publicatie kunt u contact opnemen met de heer L. Tavenier, emailadres: l.tavenier@goes.nl

Naar boven