AANWIJZINGS- EN INWERKINGTREDINGSBESLUIT ONDERGRONDSE RESTAFVALCONTAINERS STATENKWARTIER III (BUURT 7), SCHEVENINGEN, DEN HAAG
Het college van burgemeester en wethouders van Den Haag,
overwegende dat:
-
in het raadsvoorstel inzake 5e programma ondergrondse restafvalcontainers (ORAC’s): 900 extra (RIS297091) besloten is in verschillende wijken ondergrondse restafvalcontainers te plaatsen;
-
in het raadsvoorstel inzake 5e programma ondergrondse restafvalcontainers (ORAC’s): 900 extra (RIS297091) criteria zijn vastgesteld voor de plaatsing van ORAC’s;
-
het definitief plaatsingsplan gewijzigde locatie ondergrondse restafvalcontainers Statenkwartier III is vastgesteld (RIS318629);
-
in de buurt Statenkwartier ondergrondse restafvalcontainers zijn geplaatst;
gelet op:
-
artikel 4, tweede lid Afvalstoffenverordening 2010;
besluit:
I.
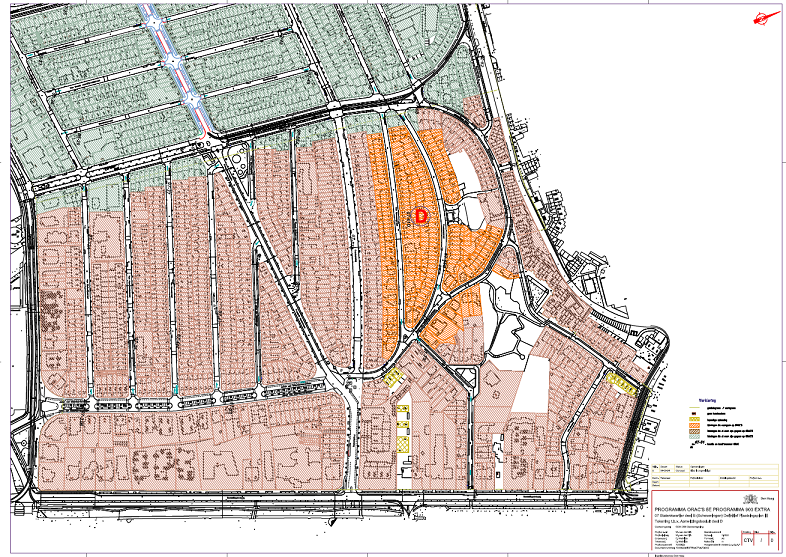
vanaf 9 november 2024 in de buurt Statenkwartier (buurt 07) de oranje gearceerde percelen in het gebied (aangegeven met letter D) zoals aangegeven op de bij dit besluit gevoegde kaart: ”PROGRAMMA ORAC’S 5E PROGRAMMA 900 EXTRA; 07 Statenkwartier deel B (Scheveningen); Definitief Plaatsingsplan III’’ aan te wijzen als percelen waar de inzameling van het huishoudelijk afval via ondergrondse restafvalcontainers zal plaatsvinden;
II.
dat dit besluit in werking treedt op de dag na uitgifte in het gemeenteblad.
Den Haag, 17 september 2024
Het college van burgemeester en wethouders,
de secretaris,
de locoburgemeester,
Ilma Merx
Robert van Asten
Toelichting
Ingevolge het raadsvoorstel van het college inzake 5e programma ondergrondse restafvalcontainers (ORAC’s): 900 extra (RIS297091) zijn in de buurt Statenkwartier (buurt 7) ondergrondse restafvalcontainers geplaatst waarmee huishoudelijk afval wordt ingezameld.
Voor de percelen aan de Frankenstraat, Van Aerssenstraat en Johan van Oldenbarneveltlaan geldt dat het huishoudelijk afval nog wekelijks aan huis wordt opgehaald.
Op grond van het raadsvoorstel van het college inzake 5e programma ondergrondse restafvalcontainers (ORAC’s): 900 extra (RIS297091) gaan de oranje gearceerde percelen, met ingang van dit aanwijzings- en inwerkingtredingsbesluit, het huishoudelijk afval aanbieden via de reeds geplaatste ondergrondse restafvalcontainers conform het definitief plaatsingsplan gewijzigde locatie ondergrondse restafvalcontainers Statenkwartier III (RIS318629).
Plattegrond
Bezwaarclausule met voorlopige voorziening voorzitter Afdeling bestuursrechtspraak Raad van State
Bent u het niet eens met dit besluit? En bent u belanghebbende? Dan kunt u een bezwaarschrift indienen. Stuur dit uiterlijk binnen 6 weken na de datum bekendmaking van het besluit in.
Maakt u gebruik van internet? Dien uw bezwaarschrift dan in via www.denhaag.nl/bezwaar. U heeft hiervoor DigiD nodig. E-mailen kan niet
Heeft u geen internet, dan kunt u het bezwaarschrift opsturen naar:
College van B en W
Stadhuis
Spui 70
2511 BT Den Haag
Bezwaarschrift
Vermeld in uw bezwaarschrift:
•
naam, adres, telefoonnummer (waar u overdag bereikbaar bent) en e-mailadres;
•
de datum en handtekening;
•
een duidelijke omschrijving van het besluit waartegen u bezwaar maakt. Stuur een kopie van het besluit mee en noem het kenmerk;
•
de argumenten voor bezwaar.
Volmacht
Dient u namens iemand anders het bezwaar in? Stuur dan een schriftelijke en ondertekende verklaring (volmacht) mee waaruit blijkt dat u namens die persoon het bezwaar mag indienen.
Algemene informatie over de bekendmakingen van de gemeente Den Haag vindt u op www.denhaag.nl/bekendmakingen. U kunt ook contact met ons opnemen via telefoonnummer 14070.
De hier aangeboden pdf-bestanden van het Staatsblad, Staatscourant, Tractatenblad, provinciaal blad, gemeenteblad, waterschapsblad en blad gemeenschappelijke regeling vormen de formele bekendmakingen in de zin van de Bekendmakingswet en de Rijkswet goedkeuring en bekendmaking verdragen voor zover ze na 1 juli 2009 zijn uitgegeven. Voor pdf-publicaties van vóór deze datum geldt dat alleen de in papieren vorm uitgegeven bladen formele status hebben; de hier aangeboden elektronische versies daarvan worden bij wijze van service aangeboden.