Voorlopig besluit containerlocaties 2Z5 / Staatsliedenwijk

Op de volgende plaats willen wij containers plaatsen voor de inzameling van groente-, fruit- en tuinafval en etensresten (gft), plastic- en metalen verpakkingen, drinkpakken en restafval (rest+pmd) en papier en karton.

Locatienummer

Straat

Huisnummer of

nadere omschrijving

Afvalsoort

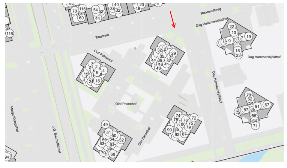
1

Dag Hammarskjöldhof

1-96, thv blok 25-48

Gft

Dag Hammarskjöldhof

1-96, thv blok 25-48

Rest+pmd

Dag Hammarskjöldhof

1-96, thv blok 25-48

Rest+pmd

Dag Hammarskjöldhof

1-96, thv blok 25-48

Papier en karton

2

Olof Palmehof

1-94, thv blok 25-48

Gft

Olof Palmehof

1-94, thv blok 25-48

Rest+pmd

Olof Palmehof

1-94, thv blok 25-48

Rest+pmd

Het college van B en W mag volgens artikel 10, lid 3 van de Afvalstoffenverordening besluiten hoe de gemeente huishoudelijk afval van inwoners inzamelt.

Dat gebeurt volgens de Richtlijnen voor het plaatsen van ondergrondse inzamelcontainers Almere 2021. De richtlijnen vindt u op https://www.almere.nl/wonen/afval/afvalcontainer/ondergrondse-afvalcontainer

 

Volgens het Bouwbesluit is het sinds 2012 niet langer nodig om in de hoogbouw een containerruimte voor het inzamelen van huishoudelijk afval te hebben. Voor een efficiënte inzameling kiezen we daarom voor het inzamelen van afval via ondergrondse containers op straat.

 

Meer informatie hierover kunt u vinden in:

  • Artikel 10, lid 3 van de Afvalstoffenverordening Almere 2023

  • De Uitvoeringsregeling Afvalstoffenverordening Almere 2023

  • Het Bouwbesluit

  • De Richtlijnen voor het plaatsen van ondergrondse inzamelcontainers Almere 2021

  • Het Besluit gescheiden inzameling huishoudelijke afvalstoffen

  • U vindt deze regelingen via www.overheid.nl

Zienswijze

U kunt binnen zes weken na de bekendmaking op officielebekendmakingen.nl uw zienswijze (uw mening) over de locatie indienen. Dat kan schriftelijk of mondeling:

 

  • Zet in uw brief altijd uw naam, adres, woonplaats, de naam van het voorlopige besluit en waarom u hiertegen bent.

  • U kunt de brief sturen naar Stadsreiniging, t.a.v. team Infrastructuur & Mobiliteit, De Steiger 221, 1351 AX Almere. Of mail naar info@almere.nl.

  • Wilt u liever bellen, dan kunt u mailen naar info@almere.nl met het verzoek om over het voorlopige besluit gebeld te worden.

Inzage

Het voorlopige besluit en de bijbehorende documenten zijn vanaf de publicatiedatum zes weken in te zien op officielebekendmakingen.nl en op afspraak bij de afdeling Stadsreiniging, De Steiger 221, 1351 AX Almere.

Met hartelijke groet,

Burgemeester en wethouders van Almere,

namens hen,

Tycho Spruyt

teammanager Infrastructuur & Mobiliteit

Bijlage 1 Ontwerplocatieplannen

 

Locatie 1; Dag Hammarskjöldhof 1-96, thv blok 25-48

 

Locatie 2; Olof Palmehof 1-94, thv blok 25-48

Naar boven