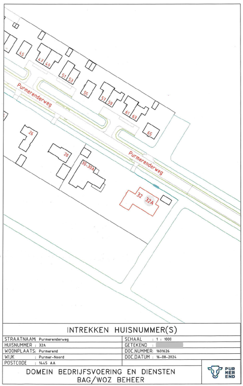
Kennisgeving huisnummerbesluit Purmerenderweg 32A te Purmerend

Burgemeester en wethouders van de gemeente Purmerend,

gelet op artikel 6 van de Wet basisregistratie adressen en gebouwen, artikel 149 van de Gemeentewet en de Verordening naamgeving en nummering (adressen) Purmerend,

hebben op 16 augustus 2024 met besluitnummer 1601626 het volgende besloten:

  • 1.

    Conform revisietekening met kenmerknummer Z2024-00003369 d.d. 16-08-2024 met betrekking tot het afzien van de splitsing, welke is toegevoegd aan omgevingsvergunning 816337 d.d. 05-09-2022, over te gaan tot intrekking van de volgende nummeraanduiding:

     

    Intrekken

     

    • Purmerenderweg 32A te Purmerend

    • Het intrekken van de nummeraanduiding met NRA ID 0439200000205683.

Aldus vastgesteld op 16 augustus 2024,

de teammanager GEO

Bent u het niet eens met dit besluit?

Dan kunt u bezwaar maken. Als u dat van plan bent, neemt u dan eerst telefonisch contact met ons op. Misschien komen we samen tot een oplossing. Komen we er niet uit, dan kunt u binnen zes weken na de dag waarop het besluit is verzonden een bezwaarschrift indienen.

U kunt dat digitaal doen, dan heeft u een DigiD nodig. Of u schrijft een brief naar het team Juridische en Veiligheidszaken, Postbus 15, 1440 AA te Purmerend. Voor meer informatie zie: www.purmerend.nl/bezwaar.

In uw bezwaarschrift moet het volgende staan:

  • -

    uw naam, adres, telefoonnummer en/of e-mailadres;

  • -

    een duidelijke omschrijving van dit besluit;

  • -

    de reden waarom u bezwaar maakt;

  • -

    de datum en uw handtekening.

Dient iemand anders namens u een bezwaarschrift in? Stuurt u dan een volmacht mee. Op www.purmerend.nl/bezwaar vindt u een voorbeeld.

Naar boven