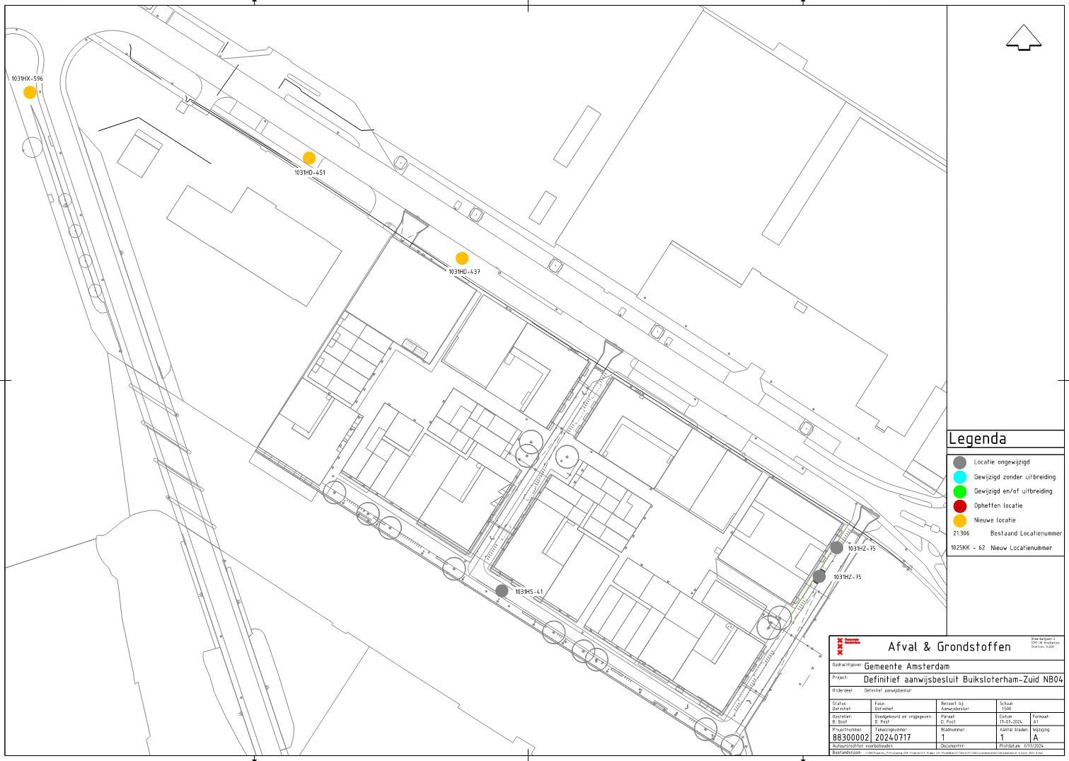
Besluit van het dagelijks bestuur van stadsdeel Noord tot aanwijzen van drie afvalinzamellocaties aan de Distelweg 437, Distelweg 451 en Grasweg 596

Het dagelijks bestuur van stadsdeel Noord

 

Gelet op:

  • -

    Artikel 10.26 Wet milieubeheer;

  • -

    Artikel 4 Afvalstoffenverordening Amsterdam 2009;

  • -

    Artikel 5, artikel 8 en bijlage 1A Uitvoeringsbesluit Afvalstoffenverordening stadsdeel Amsterdam-Noord;

  • -

    Stedelijk kader Locatie bepalen inzamelvoorzieningen, (Gemeenteblad 2021, nr. 113641);

  • -

    Uitvoeringsplan Afval 2016-2020, grondstoffen uit Amsterdam, 14 juni 2016;

  • -

    Uitvoeringsprogramma Afval & Grondstoffen 2020-2025, 17 december 2020;

  • -

    Artikel 9, tweede lid, Verordening stadsdelen en stadsgebied Amsterdam 2022;

  • -

    Artikel 19, Verordening stadsdelen en stadsgebied Amsterdam 2022;

  • -

    Afdeling 3.4 Algemene wet bestuursrecht;

  • -

    Artikel 6 Algemene inspraakverordening Gemeente Amsterdam.

Overwegende dat:

  • -

    de Wet milieubeheer gemeenten de mogelijkheid biedt om in het belang van de doelmatigheid huishoudelijke afvalstoffen in te zamelen nabij elk perceel;

  • -

    het college van burgemeester en wethouders de bevoegdheid om hierover te besluiten heeft belegd bij de dagelijks besturen van de stadsdelen;

  • -

    in stadsdeel Noord huishoudelijk afval wordt ingezameld door middel van inzamelvoorzieningen voor meerdere huishoudens (ondergronds en/of bovengronds);

  • -

    de meest geschikte locaties zijn gekozen met inachtneming van het Stedelijk kader locatiekeuze afvalinzamelvoorzieningen.

  • -

    dit besluit van 11 maart tot 22 april ter inzage heeft gelegen

  • -

    in die periode zijn 7 zienswijzen binnengekomen;

  • -

    de zienswijzen geen aanleiding geven tot wijziging van de voorgenomen locaties in het ontwerpbesluit;

  • -

    de zienswijzen zijn inhoudelijk behandeld in het eindverslag;

Besluit:

 

  • I.

    het eindverslag vast te stellen;

  • IIc.

    De volgende locaties, zoals aangegeven op de bij dit besluit behorende overzichtstekening, aan te wijzen;

  • III.

    Dit besluit in werking te laten treden op de dag na bekendmaking.

Namens het college van Burgemeester en Wethouders,

Het dagelijks bestuur van stadsdeel Noord,

R. Van der Velden

Stadsdeelsecretaris

B. Abid

Voorzitter

Bijlagen: bij de besluiten behorende overzichtstekening:

 

Tegen een besluit kan beroep worden ingesteld. Beroep kan binnen zes weken worden ingesteld bij de Afdeling bestuursrechtspraak van de Raad van State, Postbus 20019, 2500 AE Den Haag. De termijn begint op de datum van de dag na de ter inzagelegging van het besluit. Voor het instellen van beroep is griffierecht verschuldigd.

 

Naar boven