Verkeersbesluit wijziging parkeerplaatsen opladen elektrische motorvoertuigen Rosa Spierlaan
Zaaknummer: Z24-079516
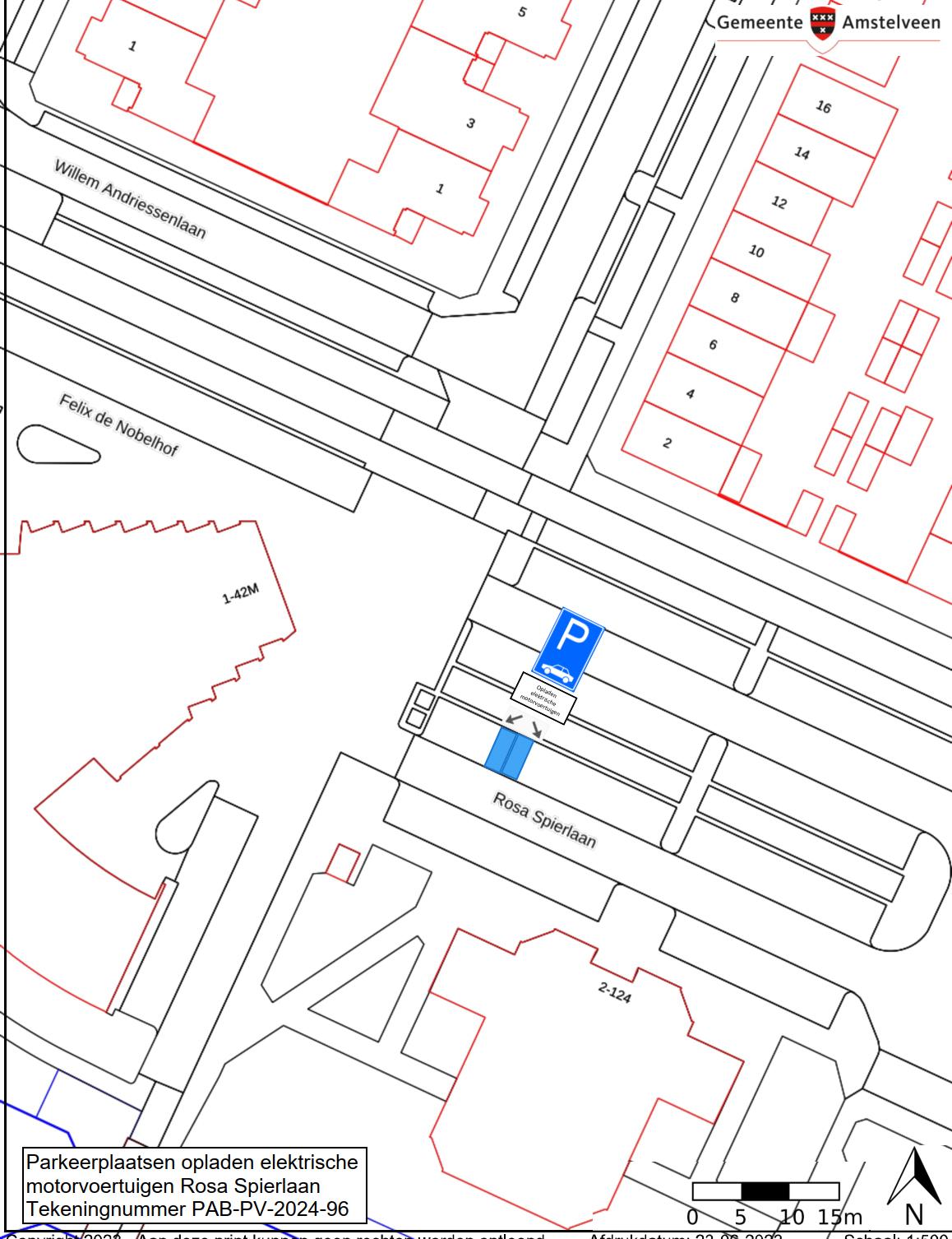
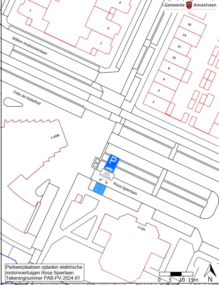
Burgemeester en wethouders van Amstelveen besluiten om in de Rosa Spierlaan, de locatie van de twee gereserveerde parkeerplaatsen voor het opladen van elektrische motorvoertuigen, te wijzigen. De huidige locatie van de twee gereserveerde parkeerplaatsen zijn weergegeven op de in dit besluit opgenomen tekening PAB-PV-2024-91. De openbare laadpalen zijn nog niet geplaatst waardoor in de praktijk niets veranderd. De nieuwe locatie van de twee gereserveerde parkeerplaatsen voor het opladen van elektrische motorvoertuigen zijn weergegeven op de in dit besluit opgenomen tekening PAB-PV-2024-96.
Dit gebeurt door het plaatsen van bord E8c van bijlage 1 van het Reglement verkeersregels en verkeerstekens 1990 (RVV 1990) en een onderbord met pijlen waarop is aangegeven dat de maatregel voor twee naast elkaar gelegen parkeerplaatsen geldt, zoals aangegeven op de bebordingstekening PAB-PV-2024-96.
Wettelijke grondslag
Het besluit is gebaseerd op:
•
de Wegenverkeerswet 1994 (WVW 1994);
•
het Reglement verkeersregels en verkeerstekens 1990;
•
het Besluit administratieve bepalingen inzake het wegverkeer (BABW).
Motivering
Het besluit strekt conform artikel 2 Wegenverkeerswet 1994 tot:
•
het zoveel mogelijk waarborgen van de vrijheid van het verkeer (lid 1d);
•
het voorkomen of beperken van door het verkeer veroorzaakte overlast, hinder of schade alsmede de gevolgen voor het milieu, bedoeld in de Wet milieubeheer (lid 2a);
•
het bevorderen van een doelmatig of zuinig energiegebruik (lid 3a).
Het besluit wordt als volgt gemotiveerd:
De gemeente Amstelveen stimuleert het elektrisch vervoer. Dit vervoer draagt bij aan het verbeteren van de luchtkwaliteit in de gemeente Amstelveen. Voor het opladen van elektrische motorvoertuigen is het noodzakelijk om een netwerk van oplaadpunten te creëren. In de omgeving wonen meerdere mensen met een elektrisch motorvoertuig, die geen parkeergelegenheid op eigen terrein hebben.
Bij het besluit van 4 juli 2024 (Z24-073175) zijn er twee parkeerplaatsen voor het opladen van elektrische motorvoertuigen aangewezen in de Rosa Spierlaan. Door technische complicaties kan de netbeheerder de laadpalen niet op de huidige locatie plaatsen. De twee laadpalen worden samen met de twee gereserveerde parkeerplaatsen voor het opladen van elektrische motorvoertuigen verplaatst naar een andere locatie op het zelfde parkeerterrein. De nieuwe locatie van de twee gereserveerde parkeerplaatsen voor het opladen van elektrische motorvoertuigen zijn weergegeven op de in dit besluit opgenomen tekening PAB-PV-2024-96.
Overeenkomstig artikel 24 van het BABW is overleg gepleegd met een namens de korpschef van de regiopolitie Amsterdam-Amstelland gemandateerde specialist van het team Verkeersadvisering over het aanwijzen van dergelijke oplaadpunten. De specialist heeft daarbij aangegeven geen bezwaren te hebben tegen het bestemmen van bestaande parkeerplaatsen voor het opladen van elektrische motorvoertuigen.
Bevoegd gezag
Verkeersbesluiten worden genomen door burgemeester en wethouders voor zover zij betreffen het verkeer op de wegen, welke niet in beheer zijn bij het Rijk, de provincie of een waterschap (artikel 18, lid 1, onder d, WVW 1994). Het mandaatbesluit van burgemeester en wethouders is van toepassing. Er is ondermandaat verleend aan de junior adviseur parkeren en duurzame mobiliteit van de gemeente.
De Rosa Spierlaan ligt binnen de bebouwde kom en is in beheer bij de gemeente Amstelveen.
Tekeningen
Amstelveen, 22 juli 2024
Burgemeester en wethouders van de gemeente Amstelveen,
namens dezen,
H.R.M. Souwer
Junior adviseur parkeren en duurzame mobiliteit
Mogelijkheid tot het indienen van een bezwaarschrift
Tegen dit besluit kunnen belanghebbenden binnen zes weken na bekendmaking een bezwaarschrift indienen. Het bezwaarschrift moet worden ondertekend. Het bevat ten minste de naam en het adres van de indiener, de dagtekening, een omschrijving van het besluit waartegen het bezwaar is gericht en de gronden van het bezwaar. Zo mogelijk meldt u uw e-mailadres en het telefoonnummer waarop u overdag te bereiken bent.
Het bezwaarschrift richt u aan het College van burgemeester en wethouders van Amstelveen, t.a.v. Juridische Zaken, Postbus 4, 1180 BA Amstelveen.
Digitaal bezwaar maken is ook mogelijk. Dit kan via www.amstelveen.nl/bezwaarschrift. Hiervoor moet u wel over een elektronische handtekening (DigiD) beschikken.
Mogelijkheid tot het aanvragen van een voorlopige voorziening
Als u bezwaar maakt, geldt de beslissing nog wel. Wilt u dat het gemeentelijke besluit tijdens uw bezwaarprocedure tijdelijk wordt opgeschort? Dien dan een verzoek om voorlopige voorziening in bij de voorzieningenrechter van de rechtbank. Als de voorzieningenrechter uw verzoek toekent, is het besluit opgeschort.
Een verzoek dient u in bij de Voorzieningenrechter van de Rechtbank Amsterdam, Postbus 75850, 1070 AW Amsterdam. Aan het verzoek zijn kosten verbonden.
De hier aangeboden pdf-bestanden van het Staatsblad, Staatscourant, Tractatenblad, provinciaal blad, gemeenteblad, waterschapsblad en blad gemeenschappelijke regeling vormen de formele bekendmakingen in de zin van de Bekendmakingswet en de Rijkswet goedkeuring en bekendmaking verdragen voor zover ze na 1 juli 2009 zijn uitgegeven. Voor pdf-publicaties van vóór deze datum geldt dat alleen de in papieren vorm uitgegeven bladen formele status hebben; de hier aangeboden elektronische versies daarvan worden bij wijze van service aangeboden.