Onttrekking aan de openbaarheid van wegen van het doodlopende gedeelte van de Kuilenweg, Bruchterveld

Zaaknummer 689145

Geert Hofsink

Inleiding

De raad van de gemeente Hardenberg;

Gelet op:

-artikel 7, tweede lid, van de Wegenwet, waarin is bepaald dat een weg heeft opgehouden openbaar te zijn wanneer hij door het bevoegd gezag aan het openbaar verkeer is onttrokken;

-artikel 9 van de Wegenwet, waarin is bepaald dat een weg in beheer bij een gemeente aan het openbaar verkeer kan worden onttrokken bij een besluit van de raad van de gemeente, waarin de weg is gelegen en dat dit besluit wordt meegedeeld aan Gedeputeerde Staten;

-artikel 11, eerste lid, van de Wegenwet, waarin is bepaald dat iedere belanghebbende bij een weg, niet behorende tot de in artikel 8 bedoelde, het recht heeft aan de raad der gemeente, waarin de weg is gelegen ten opzichte van dien weg toepassing van artikel 9 te verzoeken;

-artikel 11, tweede lid, van de Wegenwet, waarin is bepaald dat op de voorbereiding van de beslissing op verzoek afdeling 3.4 van de Algemene wet bestuursrecht van toepassing is;

artikel 160, eerste lid aanhef en onder b van de Gemeentewet, waarin is bepaald dat het college beslissingen van de raad voorbereiden en uitvoeren, tenzij bij of krachtens de wet de burgemeester hiermee is belast en dat hieraan uitvoering wordt gegeven door dit ontwerpbesluit vast te stellen;

Overwegende:

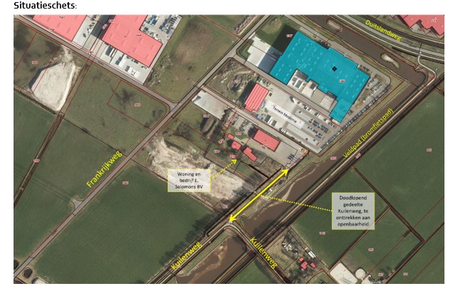
-dat de Kuilenweg is gelegen in Bruchterveld, in de gemeente Hardenberg;

-dat de Kuilenweg is gelegen buiten de bebouwde kom, binnen een 60 km/u-zone;

-dat het doodlopende deel van de Kuilenweg vrij toegankelijk is, en een openbare weg is;

-dat het doodlopende deel van de Kuilenweg niet meer in eigendom en beheer is van de gemeente Hardenberg’;

-dat het doodlopende deel van de Kuilenweg geen andere bestemming kan bereiken dan de aanliggende percelen;

-dat de percelen op het doodlopende deel van de Kuilenweg zijn verkocht aan de naastgelegen firma, d.m.v. een collegebesluit op 31 oktober 2023;

-dat de naastgelegen firma een verzoek heeft ingediend bij de verkoop, om dit wegvak te onttrekken aan de openbaarheid;

-dat er geen bezwaren zijn voor onttrekking vanuit de verschillende beheerdisciplines;

-dat met het onttrekken van het doodlopende deel van de Kuilenweg aan de openbaarheid het openbare verkeer niet gehinderd wordt;

-dat het voornemen tot onttrekking via de gebruikelijke weg in het Gemeenteblad is gepubliceerd op 27 maart 2024;

-dat tegen het ontwerpbesluit geen zienswijzen zijn ingediend;

-dat ten opzichte van het ontwerpbesluit het definitieve besluit ongewijzigd is gebleven.

BESLUIT

Het doodlopende deel van de Kuilenweg, gelegen buiten de bebouwde kom van Bruchterveld, te onttrekken aan het openbaarheid van wegen.

Hardenberg, 16 juli 2024

de raad voornoemd,

F.G.S. Droste, Griffier

M.W. Offinga, Voorzitter

-

Naar boven