Het instellen van een parkeerverbod ter hoogte van Hopperzuigerstraat 14 e.o. te Almere Buiten
Verkeersbesluit
Gemeente Almere
Het instellen van een parkeerverbod ter hoogte van Hopperzuigerstraat 14 e.o. te Almere Buiten
Steller: AE Workel
Afdeling: Stadsruimte
Nummer: 17250322 Datum: 13 mei 2024
Burgemeester en wethouders van Almere,
Gelet op:
De bepalingen in de Wegenverkeerswet 1994, het Reglement Verkeersregels en Verkeerstekens 1990 (RVV 1990) en het Besluit Administratieve Bepalingen inzake het Wegverkeer (BABW) en de Algemene wet bestuursrecht;
Overwegende:
In de Hopperzuigerstraat wordt er structureel veel langs de kant van de weg geparkeerd. Hoewel dit in eerste instantie is toegestaan, geeft dit overlast waardoor in- en uitrijden wordt belemmerd t.b.v. bevoorrading c.q. bereikbaarheid van de bedrijven op locatie. Dit wordt als hinderlijk ervaren.
Besluitverplichting:
Op grond van artikel 15, eerste lid van de Wegenverkeerswet 1994 moet een verkeersbesluit worden genomen voor de plaatsing of verwijdering van de in artikel 12 van het Besluit administratieve bepalingen inzake het wegverkeer genoemde verkeerstekens, alsmede voor de onderborden voor zover daardoor een gebod of verbod ontstaat of wordt gewijzigd.
Op grond van artikel 18, lid 1 onder d van de Wegenverkeerswet 1994 moet een verkeersbesluit worden genomen door burgemeester en wethouders voor zover dit betreft het verkeer op wegen, welke niet in beheer zijn bij het Rijk, de Provincie of een waterschap.
Uit het oogpunt van:
de belangen genoemd in artikel 2, lid 1 alsmede artikel 2, lid 2 van de Wegenverkeerswet 1994.
Is het gewenst om:
Hinderlijk parkeren tegen te gaan, een parkeerverbod in te stellen ter hoogte van Hopperzuigerstraat 14 e.o.
Motivering:
Omwille van de verkeersveiligheid en de bereikbaarheid is het gewenst om hinderlijk parkeren tegen te gaan. Door het instellen van een parkeerverbod, blijft er op de openbare weg voldoende beschikbare ruimte t.b.v. in- en uit rijden.
Gehoord
1. E.e.a. geschiedt in onderling overleg met de betrokken bedrijven op locatie en de wijkregisseur van het gebied..
2. Overeenkomstig artikel 24 van het Besluit administratieve bepalingen inzake het wegverkeer is overleg geweest met de Politie Midden Nederland.
Financiën
De maatregel wordt gefinancierd uit het budget van de afdeling Stadsruimte van de gemeente Almere.
Communicatie en bekendmaking
Van het besluit wordt een openbare bekendmaking geplaatst in het Gemeenteblad.
BESLUITEN
Op grond van vorenstaande overwegingen besluiten burgemeester en wethouder tot het instellen van een parkeerverbod ter hoogte van Hopperzuigerstraat 14 e.o. te Almere Buiten door:
1.
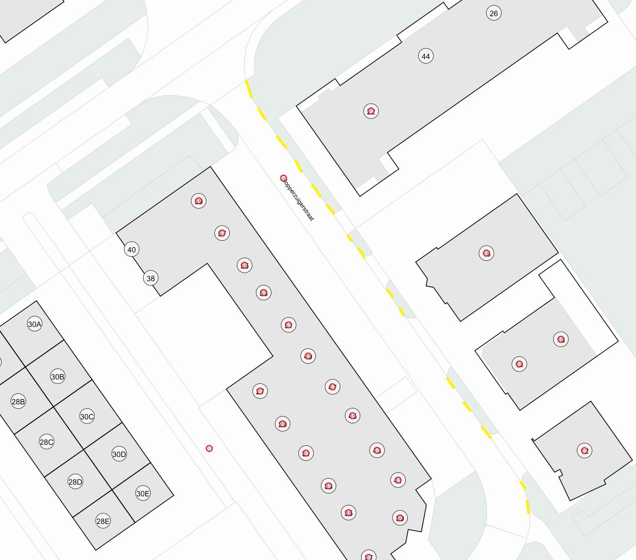
Het aanbrengen van onderbroken gele belijning, (zijnde parkeerverbod), conform de bij dit besluit behorende situatietekening.
Hoogachtend,
burgemeester en wethouders van Almere,
namens hen,
technicus Stedelijke Beheersystemen
van de afdeling Stadsruimte
AE Workel
Bezwaarschriftclausule
Bent u het niet eens met dit besluit?
Neem dan zo snel mogelijk contact met ons op via telefoonnummer 14 036 . Wij nemen het besluit met u door.
Wilt u toch bezwaar maken?
Dit moet binnen zes weken na de verzenddatum van dit besluit.
Digitaal: e-formulier op almere.nl/bezwaar (DigiD/e-Herkenning vereist)
Per post: Gemeente Almere, t.a.v. Juridische zaken bezwaar en beroep, Postbus 200, 1300 AE, Almere.
Vermeld hierbij altijd uw naam, adres, telefoonnummer, de datum van uw brief, de reden van uw bezwaar, het kenmerk van dit besluit (of een kopie van het besluit) en uw handtekening.
Kunt u niet wachten?
Als u bezwaar heeft gemaakt, maar niet kunt wachten tot de gemeente daarover een besluit heeft genomen, dan kunt u om een voorlopige voorziening (tijdelijke maatregel) vragen bij de voorzieningenrechter.
Digitaal: via e-formulier ‘Verzoek aan rechtbank om voorlopige voorziening bij bezwaarprocedure’ op rechtspraak.nl
Per post: Rechtbank Midden-Nederland, sector Bestuursrecht, Postbus 16005,
3500 DA, Utrecht, onder vermelding van ‘voorlopige voorzieningen’.
Aan een verzoek om een voorlopige voorziening zijn kosten verbonden.
De hier aangeboden pdf-bestanden van het Staatsblad, Staatscourant, Tractatenblad, provinciaal blad, gemeenteblad, waterschapsblad en blad gemeenschappelijke regeling vormen de formele bekendmakingen in de zin van de Bekendmakingswet en de Rijkswet goedkeuring en bekendmaking verdragen voor zover ze na 1 juli 2009 zijn uitgegeven. Voor pdf-publicaties van vóór deze datum geldt dat alleen de in papieren vorm uitgegeven bladen formele status hebben; de hier aangeboden elektronische versies daarvan worden bij wijze van service aangeboden.