Onderwerp verkeersbesluit: het aanleggen van een gereserveerde gehandicaptenparkeerplaats

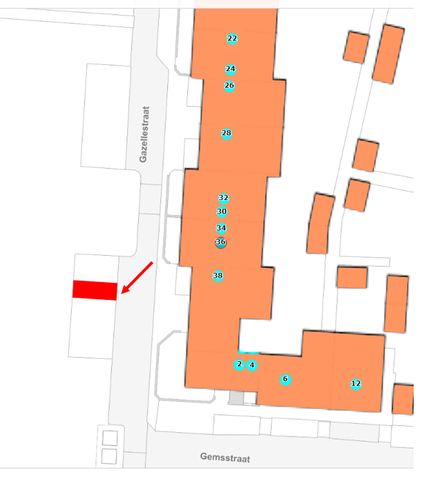
Locatie: Gazellestraat ter hoogte van huisnummer 36

Datum: 25 april 2024

Kenmerk: 12115168

 

Burgemeester en Wethouders van Utrecht,

 

Met inachtneming van:

Artikel 18, lid 1d van de Wegenverkeerswet 1994 (hierna: WVW 1994) en het vigerende besluit Mandaatregeling B&W en burgemeester Gemeente Utrecht overwegende;

  • dat de afdeling Vergunningen gemandateerd is om verkeersbesluiten te nemen;

  • dat de afdeling Vergunningen een aanvraag heeft ontvangen voor het aanleggen van een gereserveerde gehandicaptenparkeerplaats;

  • dat aanvrager voldoet aan gestelde voorwaarden om in aanmerking te komen voor een gereserveerde gehandicaptenparkeerplaats;

  • dat de afdeling Vergunningen een verkeerstechnisch onderzoek heeft uitgevoerd op locatie,

  • dat de aangewezen parkeerplaats aan de Gazellestraat ter hoogte van huisnummer 36 op basis van het verkeerstechnisch onderzoek de meest geschikte parkeerplaats is voor aanvrager;

  • dat het besluit op grond van artikel 2 WVW 1994 beoogt;

  • a.

    het verzekeren van de veiligheid op de weg en/of;

  • b.

    het beschermen van weggebruikers en passagiers en/of;

  • c.

    het in stand houden van de weg en het waarborgen van de bruikbaarheid daarvan en/of;

  • d.

    het zoveel mogelijk waarborgen van de vrijheid van verkeer;

  • dat het besluit is genomen na overleg met de Politie, eenheid Midden Nederland, conform artikel 24 Besluit administratieve bepalingen inzake het wegverkeer (hierna: BABW);

  • dat op de parkeerplaats niet meer geparkeerd mag worden, met uitzondering van het voertuig met het kenteken genoemd op het onderbord.

Besluit:

op grond van vorenstaande is besloten om:

een gereserveerde gehandicaptenparkeerplaats aan te leggen door middel van

  • het plaatsen van het verkeersbord E6 van bijlage I uit het Reglement Verkeersregels en Verkeerstekens 1990,

  • het plaatsen van een onderbord met daarop het kenteken van aanvrager dan wel diens partner of huisgenoot,

  • het aanbrengen van bijbehorende vakmarkering.

 

Het besluit treedt in werking de dag na publicatie in de Staatscourant.

 

Burgemeester en wethouders namens dezen

Maurice Prijs

Hoofd Vergunningen

 

Bezwaar

Als u vindt dat het besluit onjuist is, dan kunt u bezwaar maken. U kunt uw bezwaar digitaal indienen. Daarvoor kunt u alleen gebruik maken van het door de gemeente beschikbaar gestelde digitale formulier. Dit vindt u op www.utrecht.nl/bezwaar. U kunt het bezwaar niet per e-mail indienen. Maakt u liever per brief bezwaar, dan kunt u uw bezwaarschrift sturen aan het College van burgemeester en wethouders.

 

Het adres is:

Postbus 16200

3500 CE Utrecht

 

Zorg ervoor dat u het bezwaarschrift indient binnen zes weken na de dag waarop dit besluit is gepubliceerd. Daarmee voorkomt u dat wij uw bezwaarschrift niet meer kunnen behandelen.

In het bezwaarschrift neemt u in ieder geval op:

uw naam, adres, datum en handtekening; graag ook het telefoonnummer waarop u overdag te bereiken bent;

een omschrijving van het besluit waartegen het bezwaarschrift is gericht; vermeld hierbij de verzenddatum en het kenmerk van dat besluit of stuur een kopie daarvan mee;

de reden waarom u vindt dat het besluit onjuist is.

 

 

 

 

Bijlage 1 plattegrond

 

 

 

 

Bijlage 2 locatiefoto

 

Naar boven