Vaststelling straatnaam “De Overhaal” en “Het Bannepad” in Hem

 

Het college van burgemeester en wethouders van de gemeente Drechterland heeft op 16 april 2024 het volgende besloten.

 

Gelet op artikel 108 van de Gemeentewet en de Verordening naamgeving en nummering (adressen) van de Gemeente Drechterland 2010;

 

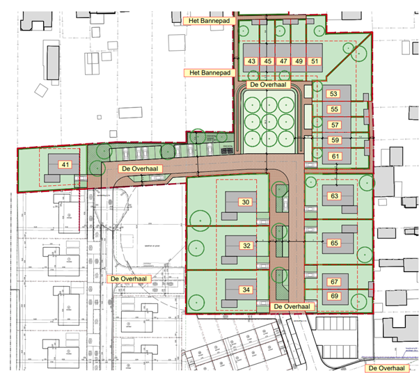
aan de nieuw te realiseren openbare ruimte in de nieuwbouwwijk welke aansluit op het woningbouwplan De Overhaal te Hem de naamgeving “De Overhaal” toe te kennen en voor het voetpad van de nieuwbouwwijk richting de Hemmerbuurt de naamgeving “Het Bannepad”.

 

Op deze locatie worden 18 woningen gerealiseerd. De woningen worden ontsloten via een nieuw aan te leggen openbare ruimte die aansluit op het woningbouwplan De Overhaal en een voetpad verbinding heeft naar de Hemmerbuurt. Deze nieuwe ruimte dient van een naamgeving te worden voorzien.

 

Een vaststelling van openbare ruimten is een feitelijke handeling en geen besluit in de zin van de Algemene wet bestuursrecht en dus niet vatbaar voor bezwaar of beroep.

 

Deze naamgeving treedt in werking op de dag na deze publicatie.

 

 

 

 

Naar boven