Verkeersbesluit voor het opheffen van een gedeelte van de parkeerschijfzone (blauwe zone) aan Lambertushof te Nederweert

Besluit BW-24-04909 van 26 maart 2024

Burgemeester en wethouders van Nederweert;

b e s l u i t e n :

  • 1.

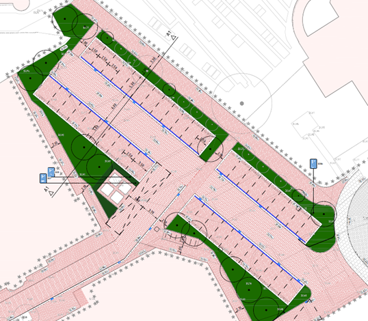
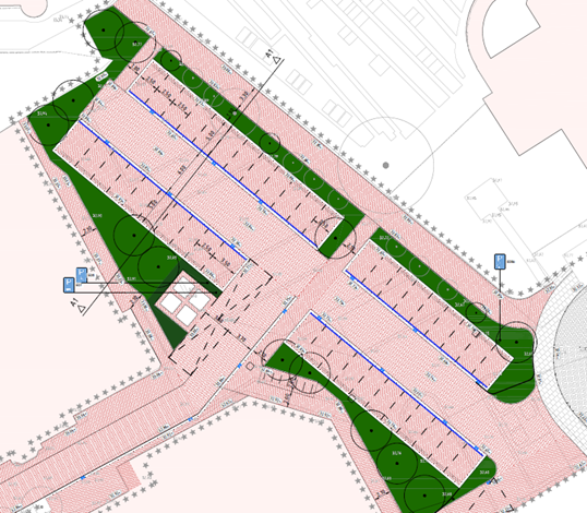
    Het opheffen van een gedeelte van de parkeerschijfzone (blauwe zone) op de Lambertushof Een en ander zoals weergegeven op het kaartje in de bijlage.

Onderstaand leest u de nadere motivering hiervoor:

Overwegende dat,

uit parkeeronderzoek blijkt: dat de verdeling tussen kort- en langparkeerplaatsen niet overal optimaal is;

er vanuit de omgeving vraag is naar meer langparkeerplaatsen

het door het vertrek van de supermarkt, en het niet terugkomen van een supermarkt het aantal kortparkeerders aannemelijk is dat de behoefte aan kortparkeerplekken lager is dan bij de aanleg;

het vrij parkeren het korter parkeren niet onmogelijk maakt;

de herinrichting van het terrein een logische en duidelijke scheiding tussen kort- en langparkeren mogelijk maakt;

De maatregel eerst dan wordt uitgevoerd bij de herinrichting van het terrein;

de gemeente Nederweert verantwoordelijk is voor het beheer en onderhoud van de wegen bedoeld in dit verkeersbesluit;

voor het opheffen van een blauwe zone de verkeerssituatie wijzigt. Waardoor een verkeersbesluit nodig is en de uniforme openbare voorbereidingsprocedure uit afdeling 3.4 van de Algemene wet bestuursrecht wordt gevolgd;

de plannen 6 weken ter inzage liggen en dat iedereen zijn bemerkingen hiertegen kenbaar kan maken;

de Politie Limburg-Noord, basiseenheid Weert-Nederweert om advies wordt gevraagd over de hieronder genoemde verkeersmaatregel;

gelet op artikel 2, lid 1a en 1b, artikel 14 en 15 van de Wegenverkeerswet 1994; gelet op artikel 9, 12, 13, 18, 19 en 24, 26 en 27 van het Besluit administratieve bepalingen inzake het wegverkeer en artikel 62, 65 lid 1 en 66 van het Reglement verkeersregels en verkeerstekens 1990.

Nederweert, 26 maart 2024

Burgemeester en wethouders van Nederweert,

De secretaris, 

drs. J.C.T. Bakens

De burgemeester,

B.M.T.J. Op de Laak

Mededelingen

Bezwaar- of beroepsclausule

Rechtsbeschermingsmogelijkheden:

U kunt de stukken inzien binnen zes weken na de dag van publicatie, van 5 april 2024 t/m 17 mei

2024, bij de centrale klantenbalie of op afspraak.

Tegen dit besluit kan beroep worden ingesteld door een belanghebbende bij het definitieve besluit, door iemand die tegen het ontwerpbesluit een zienswijze heeft ingediend en door iemand aan wie redelijkerwijs niet kan worden verweten dat hij geen of te laat een zienswijze naar voor heeft gebracht tegen het ontwerpbesluit.

U kunt schriftelijk of digitaal een beroepschrift indienen

  • -

    Het beroepschrift stuurt u – zo mogelijk in tweevoud – naar:

    Rechtbank Limburg, sector bestuursrecht

    Postbus 950

    6040 AZ Roermond

  • -

    U kunt ook digitaal beroep instellen bij de rechtbank via http://loket.rechtspraak.nl/bestuursrecht. Kijk op vermelde site voor de precieze voorwaarden.

De beroepstermijn is zes weken

Het beroepschrift moet tijdens de inzageperiode van deze beslissing worden verstuurd.

Daarmee voorkomt u dat het beroepschrift niet meer kan worden behandeld.

Het indienen van een beroepschrift maakt niet dat de werking van het besluit wordt uitgesteld. Dat betekent dat het besluit blijft gelden in de tijd dat uw beroepschrift in behandeling is. Als u dit niet wilt, kunt u een verzoek om een voorlopige voorziening indienen. Dit verzoek doet u schriftelijk bij de voorzieningenrechter van rechtbank Limburg, sector bestuursrecht, postbus 950, 6040 AZ Roermond of digitaal via http://loket.rechtspraak.nl/bestuursrecht. Kijk op vermelde site voor de precieze voorwaarden.

Een voorlopige voorziening kan alleen worden gevraagd als er ook beroep is ingesteld. Daarnaast moet er sprake zijn van een spoedeisend belang.

Raadpleeg deze bekendmaking op onze website voor meer informatie. Bellen mag ook met de heer W. Bijlmakers van het team Openbare Ruimte en Duurzaamheid.

Openbare bekendmaking: 4 april 2024

Bijlage 1: Kaartje nieuwe parkeersituatie Lambertushof

Naar boven