Kennisgeving huisnummerbesluit Plantsoenstraat 43 Purmerend

Burgemeester en wethouders van de gemeente Purmerend,

gelet op artikel 6 van de Wet basisregistratie adressen en gebouwen, artikel 149 van de Gemeentewet en de Verordening naamgeving en nummering (adressen) Purmerend,

hebben op 11 maart 2024 met besluitnummer 1595524 het volgende besloten:

  • 1.

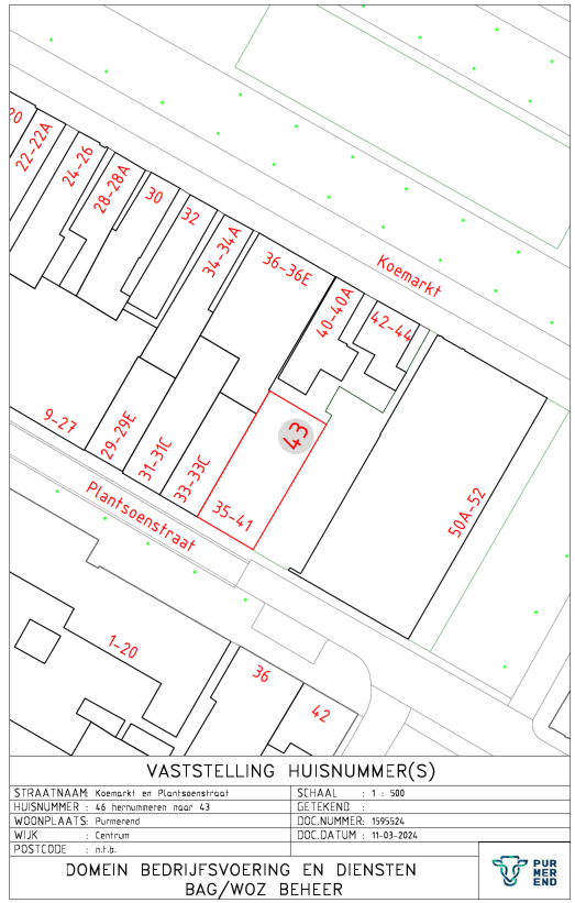
    Conform een verzoek vanuit de eigenaar geregistreerd met registratienummer 1595521 d.d. 29-02-2024 en de toestemming van de eigenaar geregistreerd met registratienummer 1595523 d.d. 29-02-2024 hierdoor dient de volgende nummeraanduiding te worden hernummerd.

Huidige NRA

Hernummeren naar:

Nieuwe NRA

NRA ID blijft

Koemarkt 46

 

Plantsoenstraat 43

0439200000018970

Aldus vastgesteld op 11 maart 2024,

de teammanager GEO

Bent u het niet eens met dit besluit?

Dan kunt u bezwaar maken. Als u dat van plan bent, neemt u dan eerst telefonisch contact met ons op. Misschien komen we samen tot een oplossing. Komen we er niet uit, dan kunt u binnen zes weken na de dag waarop het besluit is verzonden een bezwaarschrift indienen.

U kunt dat digitaal doen, dan heeft u een DigiD nodig. Of u schrijft een brief naar het team Juridische en Veiligheidszaken, Postbus 15, 1440 AA te Purmerend. Voor meer informatie zie: www.purmerend.nl/bezwaar.

In uw bezwaarschrift moet het volgende staan:

  • uw naam, adres, telefoonnummer en/of e-mailadres;

  • een duidelijke omschrijving van dit besluit;

  • de reden waarom u bezwaar maakt;

  • de datum en uw handtekening.

Dient iemand anders namens u een bezwaarschrift in? Stuurt u dan een volmacht mee. Op www.purmerend.nl/bezwaar vindt u een voorbeeld.

Naar boven