Aanwijzingsbesluit op grond van artikel 5 van de Wet voorkeursrecht gemeenten met betrekking tot de locatie ‘Sonman II’ in Moergestel

De raad van de gemeente Oisterwijk,

gelezen het voorstel van het college d.d. 7 november 2023,

afdeling Fysieke leefomgeving,

raadsvoorstel nr. 1013402;

  • 1.

    gezien het voorstel van het college van Oisterwijk van 7 november 2023, waarin de redenen zijn vermeld tot aanwijzing van het gebied ‘Sonman II’ in Moergestel, voor de gronden waarvan het wettelijk voorkeursrecht wordt gevestigd;

  • 1.

    gelet op de door de belanghebbenden in het kader van artikel 4:8 Algemene wet bestuursrecht (Awb) naar voren gebrachte zienswijzen (indien van toepassing) en de reactie daarop;

gelet op de artikelen 2 en 5 alsmede de overige van toepassing zijnde bepalingen van de Wet voorkeursrecht gemeenten (Wvg) en de Algemene wet bestuursrecht (Awb);

besluit :

  • 1.

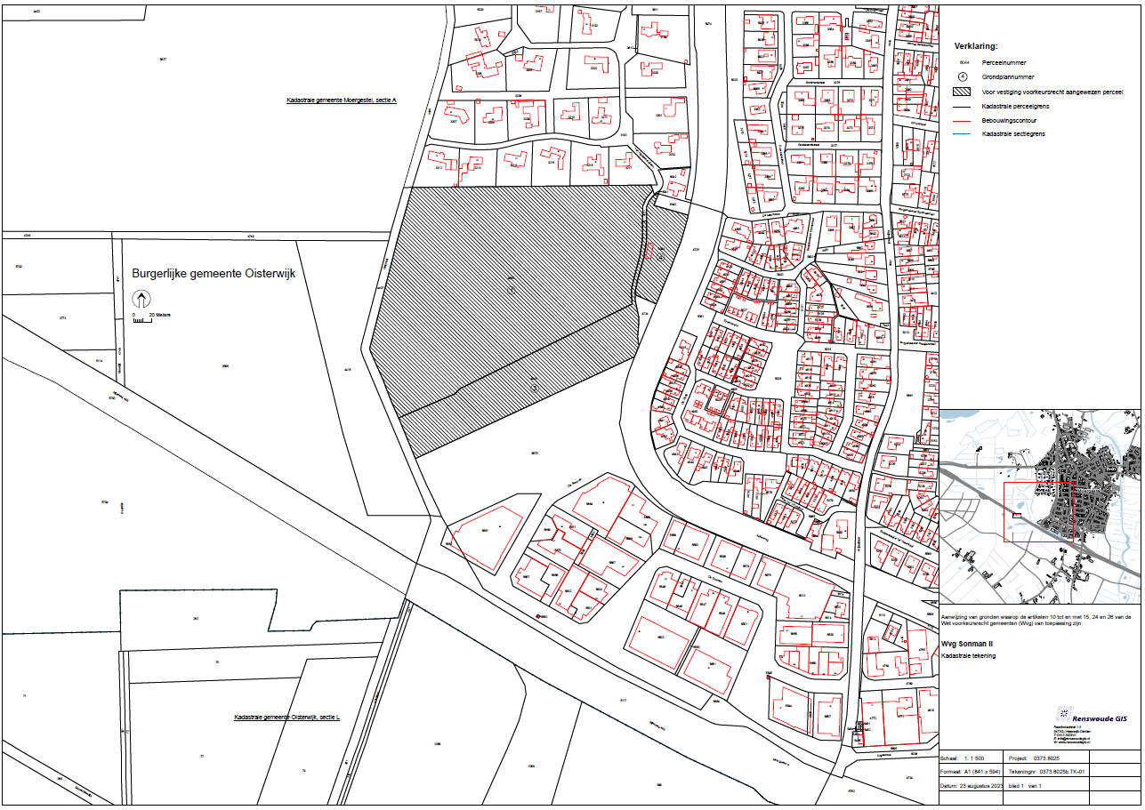
    op grond van artikel 5 van de Wet voorkeursrecht gemeenten (Wvg) percelen aan te wijzen waarop de artikelen 10 t/m 15, 24 en 26 van de Wvg van toepassing zijn. De percelen zijn aangegeven op de bij dit besluit behorende en als zodanig gewaarmerkte tekening met nummer 0373.8025b.TK-01 d.d. 23 augustus 2023 en op de percelenlijst, waarop zijn vermeld de in de aanwijzing opgenomen percelen, de grootte en de namen van de eigenaren en de rechthebbenden op de daarop rustende beperkte rechten, een en ander naar de rechtstoestand van de openbare registers van het Kadaster van 22 augustus 2023;

  • 1.

    de onder beslispunt 1 genoemde percelen aan te wijzen om de potentiële bedrijventerreinlocatie ‘Sonman II’ uit het Koersdocument Oostflank, zoals in concept vastgesteld in de collegevergadering van 19 september 2023, zeker te stellen;

  • 1.

    dit besluit te nemen ter bestendiging van het besluit van 19 september 2023 van het college van Oisterwijk, welk besluit van rechtswege vervalt, zodra dit raadsbesluit rechtskracht heeft;

  • 1.

    dat dit besluit op basis van artikel 9 lid 3 van de Wvg een maximale werkingsduur heeft van drie jaar;

  • 1.

    dat voor afloop van de werkingsduur van het voorkeursrecht – indien de ruimtelijke planvorming nog niet zo ver is dat voor het gebied ‘Sonman II’ een bestemmingsplan (of na inwerkingtreding van de Omgevingswet een omgevingsplan is vastgesteld - zal worden overgegaan tot vaststelling van een structuurvisie (of na inwerkingtreding van de Omgevingswet een omgevingsvisie) als grondslag voor continuering van het voorkeursrecht;

  • 1.

    het raadsbesluit te publiceren in het Gemeenteblad, kenbaar te maken conform artikel 7 lid 1 en 2 van de Wvg stelt en te registreren in het kader van de Wet kenbaarheid publiekrechtelijke beperkingen zodat het voorkeursrecht rechtskracht heeft.

Aldus besloten in de openbare vergadering van de raad van de gemeente Oisterwijk op 14 december 2023,

de griffier, de voorzitter,

Daniëlle Robijns Hans Janssen

Bent u als belanghebbende het niet eens met dit aanwijzingsbesluit?

Dan kunt u tegen dit aanwijzingsbesluit binnen 6 weken na de dag van publicatie in dit elektronisch gemeenteblad bezwaar maken.

Bezwaar maken kunt u als belanghebbende op twee manieren doen:

Online: u gaat naar https://www.oisterwijk.nl/bestuur-en-organisatie/klachten-zienswijze-en-bezwaar-indienen/bezwaar-indienen en gebruikt uw DigiD.

Op papier: u stuur uw bezwaarschrift naar het college van Oisterwijk, postbus 10101, 5060 GA in Oisterwijk.

U zet in het bezwaarschrift in elk geval

• Uw naam en adres

• De datum van uw bezwaarschrift

• Om welk besluit het gaat (bijvoorbeeld het onderwerp of het zaaknummer noemen)

• De redenen van uw bezwaar

• Uw handtekening. Als u uw bezwaar online indient, is uw DigiD uw handtekening.

Een ingediend bezwaarschrift schorst in principe niet de werking van het aanwijzingsbesluit. Daarvoor moet u namelijk ook een verzoek om een voorlopige voorziening indienen.

Voorlopige voorziening

Als u als belanghebbende bezwaar heeft gemaakt, kunt u tegelijkertijd een verzoek om een voorlopige voorziening indienen. Dit kan alleen als er sprake is van een spoedeisende zaak. Een dergelijk verzoek richt u aan de Voorzieningenrechter van de Rechtbank Zeeland-West Brabant, team Bestuursrecht, postbus 90006, 4800 PA Breda. Het verzoek kan overigens ook online worden ingediend via https://mijn.rechtspraak.nl/start/burger. Aan het indienen van een verzoek om een voorlopige voorziening zijn kosten verbonden. Meer informatie over een voorlopige voorziening vindt u op https://www.rechtspraak.nl/Naar-de-rechter/rechtszaak-beginnen-overheidsorganisatie onder het kopje “Niet eens met een besluit van een overheidsorganisatie, wat nu?”

Vragen?

Indien u en/of uw cliënten vragen hebben over de inhoud van deze dan kunt u of uw cliënten contact opnemen met de behandelend ambtenaar via 013-529 13 11 of via roel.mennen@oisterwijk.nl .

Bijlage: Locatie Wet voorkeursrecht gemeenten incl. percelenlijst

Lijst van aangewezen percelen of perceelsgedeelten in de kadastrale gemeente Moergestel, sectie A, waarop de artikelen 10 tot en met 15, 24 en 26 van de Wet voorkeursrecht gemeenten van toepassing zijn, zoals deze voorkomen op de grondplantekening Wvg Sonman II met nummer 0373.8025b.TK-01 de dato 23 augustus 2023 van het gebied ‘Sonman II’ te Moergestel naar de rechtstoestand van (bijgewerkt t/m) 22 augustus 2023.Behorend bij het besluit van de gemeenteraad van 14 december 2023. Kadastrale gemeente Moergestel

Sectie A

 

Grondplan-

nummer

Perceel

Aangewezen grootte ha\a\ca

Totale grootte

ha\a\ca

Ten name van:

1

4865

5.32.75

5.32.75

Eigendom belast met Zakelijk recht als bedoeld in artikel 5, lid 3, onder b van de Belemmeringenwet Privaatrecht:

***********

Zakelijk recht als bedoeld in artikel 5, lid 3 onder b, van de Belemmeringenwet Privaatrecht:

***********

3

4418

1.45.25

1.45.25

1/2 eigendom belast met Zakelijk recht als bedoeld in artikel 5, lid 3, onder b, van de Belemmeringenwet Privaatrecht:

***********

1/2 eigendom belast met Zakelijk recht als bedoeld in artikel 5, lid 3, onder b, van de Belemmeringenwet Privaatrecht:

***********

Zakelijk recht als bedoeld in artikel 5, lid 3, onder b, van de Belemmeringenwet Privaatrecht:

***********

4

6044

0.37.65

0.37.65

1/4 eigendom belast met Gebruik en bewoning en Zakelijk recht als bedoeld in artikel 5, lid 3, onder b, van de Belemmeringenwet Privaatrecht op gedeelte van perceel:

***********

1/4 eigendom belast met Gebruik en bewoning en Zakelijk recht als bedoeld in artikel 5, lid 3, onder b, van de Belemmeringenwet Privaatrecht op gedeelte van perceel:

***********

1/2 eigendom belast met Gebruik en bewoning en Zakelijk recht als bedoeld in artikel 5, lid 3, onder b, van de Belemmeringenwet Privaatrecht op gedeelte van perceel:

***********

Recht van Gebruik en bewoning:

***********

Zakelijk recht als bedoeld in artikel 5, lid 3, onder b, van de Belemmeringenwet Privaatrecht op gedeelte van perceel:

***********

 

 

 

Naar boven