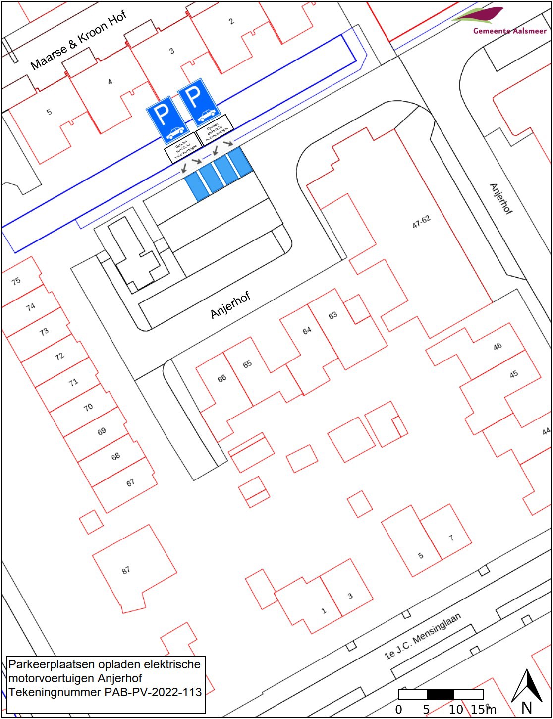
Burgemeester en wethouders van Aalsmeer besluiten om hun besluit van 20 september 2022 (zaaknummer Z22-073828), waarbij vier parkeerplaatsen op het parkeerterrein in de straat Anjerhof zijn aangewezen als parkeerplaatsen voor het opladen van elektrische motorvoertuigen, in te trekken. De openbare laadpalen zijn geplaatst op deze locatie, maar er is nog geen uitvoering gegeven aan het besluit van 20 september 2022. De geplande parkeerplaatsen voor het opladen van elektrische motorvoertuigen zijn weergegeven op de in dit besluit opgenomen tekening PAB-PV-2022-113. Deze parkeerplaatsen kunnen worden gebruikt om elektrische motorvoertuigen op te laden, maar mogen ook gebruikt worden voor het parkeren van voertuigen op fossiele brandstof.
Wettelijke grondslag
Het besluit is gebaseerd op:
•
de Wegenverkeerswet 1994 (WVW 1994);
•
het Reglement verkeersregels en verkeerstekens 1990;
•
het Besluit administratieve bepalingen inzake het wegverkeer (BABW).
Motivering
Het besluit strekt conform artikel 2 Wegenverkeerswet 1994 tot:
•
het zoveel mogelijk waarborgen van de vrijheid van het verkeer (lid 1d);
•
het voorkomen of beperken van door het verkeer veroorzaakte overlast, hinder of schade alsmede de gevolgen voor het milieu, bedoeld in de Wet milieubeheer (lid 2a);
•
het bevorderen van een doelmatig of zuinig energiegebruik (lid 3a).
Het besluit wordt als volgt gemotiveerd:
De gemeente Aalsmeer stimuleert het elektrisch vervoer. Dit vervoer draagt bij aan het verbeteren van de luchtkwaliteit in de gemeente Aalsmeer. Voor het opladen van elektrische motorvoertuigen is het noodzakelijk om een netwerk van oplaadpunten te creëren.
Bij het besluit van 20 september 2022 (zaalnummer Z22-073828) zijn parkeerplaatsen voor het opladen van elektrische motorvoertuigen aangewezen op een parkeerterrein in de straat Anjerhof. Tegen dit besluit is bezwaar gemaakt. Tijdens de hoorzitting op 9 februari 2023 is onder meer aangevoerd dat de aanvragers van de openbare laadpalen parkeergelegenheid hebben op eigen terrein. In de beleidsregels oplaadinfrastructuur elektrische voertuigen van de gemeente Aalsmeer is bepaald dat het college in principe geen medewerking verleent aan het realiseren van de gevraagde oplaadinfrastructuur wanneer potentiële gebruikers mogelijkheden hebben om op eigen terrein elektrische voertuigen te parkeren en op te laden. Omdat er geen redenen zijn om af te wijken van de beleidsregels, kan dit besluit niet in stand blijven. Op advies van de Commissie Bezwaarschriften trekt het college van burgemeester en wethouders van Aalsmeer dit besluit in.
Over het besluit heeft overleg plaatsgevonden met de verkeersadviseurs van de regiopolitie Amsterdam-Amstelland, die namens de korpschef optreden (art. 24 BABW).
Bevoegd gezag
Verkeersbesluiten worden genomen door burgemeester en wethouders voor zover zij betreffen het verkeer op de wegen, welke niet in beheer zijn bij het Rijk, de provincie of een waterschap (artikel 18, lid 1, onder d, WVW 1994). Burgemeester en wethouders van Aalsmeer hebben deze bevoegdheid bij besluit van 30 juli 2013 gemandateerd aan burgemeester en wethouders van Amstelveen. Voor Amstelveen is een mandaatbesluit van toepassing. Er is ondermandaat verleend aan de medewerker ontwerp en voorbereiding van de gemeente.
De straat Anjerhof ligt binnen de bebouwde kom en is in beheer bij de gemeente Aalsmeer.
Tekening
Aalsmeer, 18 december 2023
Burgemeester en wethouders van de gemeente Aalsmeer,
namens dezen,
R.A.C.M. Lommerse
Medewerker ontwerp en voorbereiding
Mogelijkheid tot het indienen van een bezwaarschrift
Tegen dit besluit kunnen belanghebbenden binnen zes weken na bekendmaking een bezwaarschrift indienen. Het bezwaarschrift moet worden ondertekend. Het bevat ten minste de naam en het adres van de indiener, de dagtekening, een omschrijving van het besluit waartegen het bezwaar is gericht en de gronden van het bezwaar. Zo mogelijk meldt u uw e-mailadres en het telefoonnummer waarop u overdag te bereiken bent.
Het bezwaarschrift dient te worden gericht aan Burgemeester en wethouders van Aalsmeer, t.a.v. de Bezwaarschriftencommissie, Postbus 4, 1180 BA Amstelveen.
Digitaal bezwaar maken is ook mogelijk. Dit kan via www.aalsmeer.nl/bezwaarschrift. Hiervoor moet u wel over een elektronische handtekening (DigiD) beschikken.
Mogelijkheid tot het aanvragen van een voorlopige voorziening
Als u bezwaar maakt, geldt de beslissing nog wel. Wilt u dat het gemeentelijke besluit tijdens uw bezwaarprocedure tijdelijk wordt opgeschort? Dien dan een verzoek om voorlopige voorziening in bij de voorzieningenrechter van de rechtbank. Als de voorzieningenrechter uw verzoek toekent, is het besluit opgeschort.
Een verzoek dient u in bij de Voorzieningenrechter van de Rechtbank Amsterdam, Postbus 75850, 1070 AW Amsterdam. Aan het verzoek zijn kosten verbonden.
De hier aangeboden pdf-bestanden van het Staatsblad, Staatscourant, Tractatenblad, provinciaal blad, gemeenteblad, waterschapsblad en blad gemeenschappelijke regeling vormen de formele bekendmakingen in de zin van de Bekendmakingswet en de Rijkswet goedkeuring en bekendmaking verdragen voor zover ze na 1 juli 2009 zijn uitgegeven. Voor pdf-publicaties van vóór deze datum geldt dat alleen de in papieren vorm uitgegeven bladen formele status hebben; de hier aangeboden elektronische versies daarvan worden bij wijze van service aangeboden.