Verkeersbesluit aanwijzing parkeerschijfzone Suze Groeneweglaan

Zaaknummer: Z23-102126

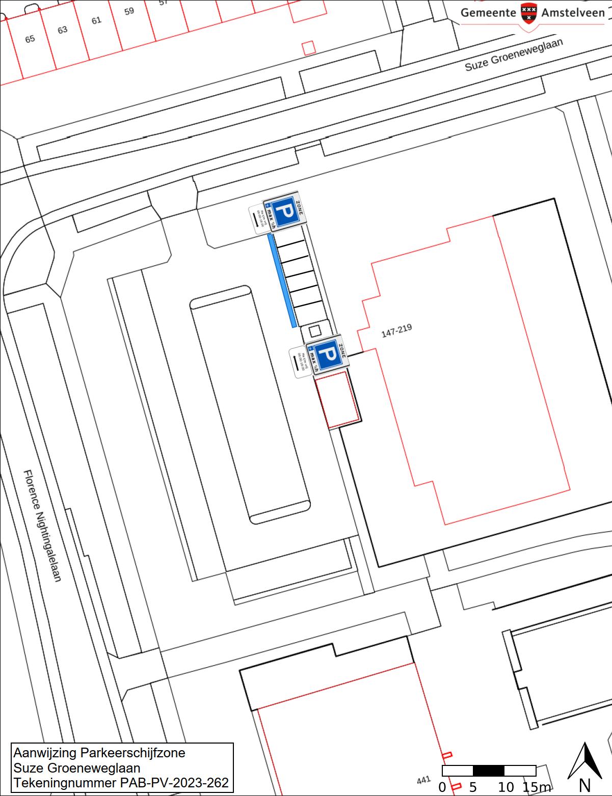
Burgemeester en wethouders van Amstelveen besluiten om in de Suze Groeneweglaan op het parkeerterrein ter hoogte van huisnummers 147 t/m 219, zes parkeerplaatsen aan te wijzen als parkeerschijfzone. De maximale parkeerduur voor de parkeerschijfzone is dertig minuten. De tijden voor de parkeerschijfzone gelden van maandag tot en met vrijdag van 09.00 uur tot 18.00 uur.

Dit gebeurt door het plaatsen van bord E10 van bijlage 1 van het Reglement verkeersregels en verkeerstekens 1990 (RVV 1990) met opschrift “max 1/2 h” en een onderbord met opschrift “ma. t/m vr. 09.00h -18.00h” en het aanbrengen van een blauwe streep bij de reguliere parkeervakken als bedoeld in artikel 25, lid 1 van dit Reglement, zoals aangegeven op tekening PAB-PV-2023-262.

Wettelijke grondslag

Het besluit is gebaseerd op:

  • de Wegenverkeerswet 1994 (WVW 1994);

  • het Reglement verkeersregels en verkeerstekens 1990 (RVV 1990);

  • het Besluit administratieve bepalingen inzake het wegverkeer (BABW).

Motivering

Het besluit strekt conform artikel 2 Wegenverkeerswet 1994 tot:

  • Het verzekeren van de veiligheid op de weg (lid 1a);

  • het beschermen van weggebruikers en passagiers (lid 1b);

  • het zoveel mogelijk waarborgen van de vrijheid van het verkeer (lid 1d).

 

Het besluit wordt als volgt gemotiveerd:

 

Op 25 September 2023 werd er in de Suze Groeneweglaan betaald parkeren ingevoerd. De plaatselijke kinderdagverblijf heeft daarom verzocht om voor de ouders een parkeerschijfzone in te stellen tijdens de openingstijden voor het brengen en halen van de kinderen. De maximale parkeerduur van deze parkeerschijfzone is max 1/2 h.

Bevoegd gezag

Verkeersbesluiten worden genomen door burgemeester en wethouders voor zover zij betreffen het verkeer op de wegen, welke niet in beheer zijn bij het Rijk, de provincie of een waterschap (artikel 18, lid 1, onder d, WVW 1994). Het mandaatbesluit van burgemeester en wethouders is van toepassing. Er is ondermandaat verleend aan de medewerker ontwerp en voorbereiding van de gemeente.

 

Het besluit is overeenkomstig artikel 24 van het Besluit administratieve bepalingen inzake het wegverkeer om advies voorgelegd aan de gemandateerde specialist van het team verkeersadvisering namens de korpschef van de regiopolitie Amsterdam-Amstelland.

 

De Suze Groeneweglaan ligt binnen de bebouwde kom en is in beheer bij de gemeente Amstelveen.

Tekening

Amstelveen, 24 november 2023

Burgemeester en wethouders van de gemeente Amstelveen,

namens dezen,

R.A.C.M. Lommerse

Medewerker ontwerp en voorbereiding

 

 

Mogelijkheid tot het indienen van een bezwaarschrift

Tegen dit besluit kunnen belanghebbenden binnen zes weken na bekendmaking een bezwaarschrift indienen. Het bezwaarschrift moet worden ondertekend. Het bevat ten minste de naam en het adres van de indiener, de dagtekening, een omschrijving van het besluit waartegen het bezwaar is gericht en de gronden van het bezwaar. Zo mogelijk meldt u uw e-mailadres en het telefoonnummer waarop u overdag te bereiken bent.

Het bezwaarschrift richt u aan het College van burgemeester en wethouders van Amstelveen, t.a.v. Juridische zaken, Postbus 4, 1180 BA Amstelveen.

Digitaal bezwaar maken is ook mogelijk. Dit kan via www.amstelveen.nl/bezwaarschrift. Hiervoor moet u wel over een elektronische handtekening (DigiD) beschikken.

 

 

Mogelijkheid tot het aanvragen van een voorlopige voorziening

Als u bezwaar maakt, geldt de beslissing nog wel. Wilt u dat het gemeentelijke besluit tijdens uw bezwaarprocedure tijdelijk wordt opgeschort? Dien dan een verzoek om voorlopige voorziening in bij de voorzieningenrechter van de rechtbank. Als de voorzieningenrechter uw verzoek toekent, is het besluit opgeschort.

Een verzoek dient u in bij de Voorzieningenrechter van de Rechtbank Amsterdam, Postbus 75850, 1070 AW Amsterdam. Aan het verzoek zijn kosten verbonden.

Naar boven