Uitvoeringsbesluit ondergrondse infrastructuur Delft

Het college van burgemeester en wethouders van de gemeente Delft,

 

gelet op de artikelen 2, 3, 5, en 7 van de Algemene verordening ondergrondse infrastructuur Delft 2015;

 

b e s l u i t

 

vast te stellen de volgende

 

Nadere regels betreffende de coördinatie van werkzaamheden op of in openbare gronden in verband met de aanleg, instandhouding en opruiming van kabels en leidingen

Artikel 1. Begripsbepalingen

Deze nadere regels verstaan onder:

  • a.

    Verordening: de Algemene verordening ondergrondse infrastructuur Delft;

  • b.

    Handboek: het Handboek kabels en leidingen van de gemeente Delft;

  • c.

    Netbeheerder: de eigenaar en/of beheerder van (een netwerk van) kabels en leidingen;

  • d.

    Aanvrager: de natuurlijke of rechtspersoon die de gemeente om instemming, vergunning of toestemming verzoekt voor het leggen, hebben, onderhouden en/of verwijderen van kabels en leidingen;

  • e.

    Uitvoerder: diegene die werkzaamheden op of in openbare gronden verricht in verband met de aanleg, instandhouding en opruiming van kabels en leidingen, dan wel de aanbieder zoals genoemd in artikel 5.1 van de Telecommunicatiewet;

  • f.

    Vergunning: publiekrechtelijke toestemming voor energie- en waterbedrijven;

  • g.

    Instemmingsbesluit: publiekrechtelijke toestemming voor telecommunicatiebedrijven;

  • h.

    BLVC-plan: een plan voor Bereikbaarheid, Leefbaarheid, Veiligheid en Communicatie;

  • i.

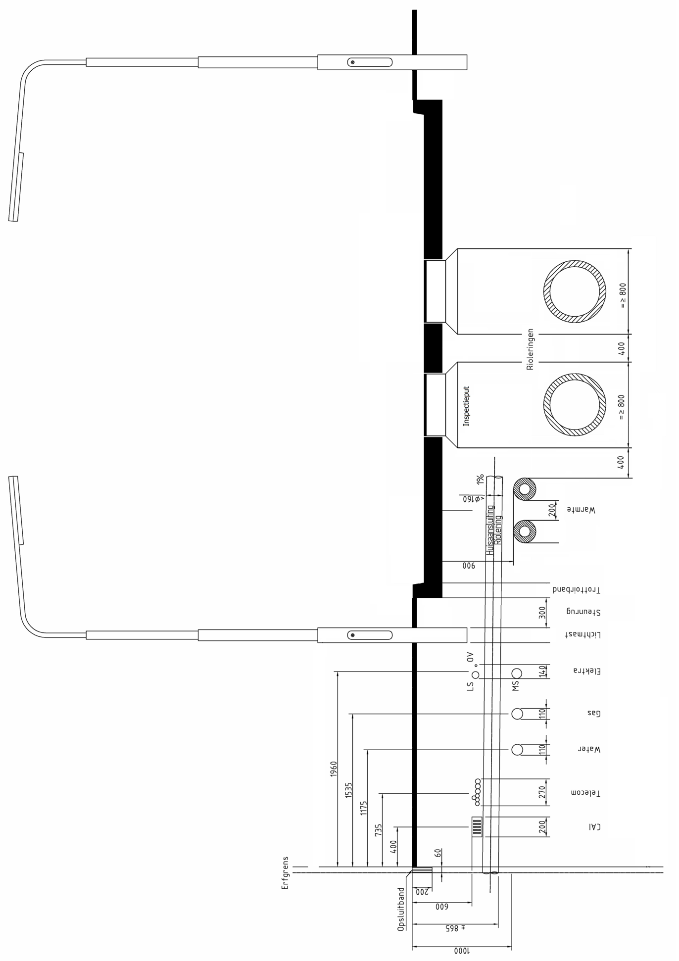
    Dwarsprofiel: de in een schema weergegeven onderlinge afstand tussen kabels en leidingen in de ondergrond (zie bijlage 1);

  • j.

    Legschema: voorgenomen ligging ten opzichte van aanwezige kabels en leidingen (zie bijlage 2);

  • k.

    Bomenblad: voorschriften voor werkzaamheden bij bomen

  • l.

    Meldsysteem MOOR: internetportal waarin meldingen van (graaf)werkzaamheden aan kabels en leidingen door netbeheerders worden gedaan;

  • m.

    Degeneratiekosten: de kosten voor schadeherstel veroorzaakt door de uitvoering van graafwerkzaamheden onder verhardingsconstructies;

  • n.

    GPKL: Gemeentelijk Platform Kabels en Leidingen;

  • o.

    Tijdelijk herstel: het terugbrengen van verhardingsmaterialen op een niet noodzakelijke vakkundige wijze, maar wel zodanig dat geen gevaar bestaat voor de weggebruiker;

  • p.

    Definitief herstel: het terugbrengen van verhardingsmaterialen op vakkundige wijze en herstel in oorspronkelijke staat.

Artikel 2. Medegebruik van voorzieningen

Ter bevordering van optimaal en efficiënt gebruik van de openbare (ondergrondse) ruimte worden nieuw aan te leggen of reeds aanwezige voorzieningen zoveel als technisch mogelijk gebruikt bij de aanleg, instandhouding en opruiming van kabels en leidingen. Hiertoe wordt in ieder geval:

  • a.

    een voorschrift opgenomen in het vergunning- of instemmingsbesluit;

  • b.

    voorafgaand aan de werkzaamheden gezamenlijk overleg gevoerd tussen de gemeente en uitvoerder(s);

  • c.

    voorafgaand aan de werkzaamheden gezamenlijk overleg gevoerd tussen de uitvoerder(s) en overige netbeheerders.

Artikel 3. Digitaal aanvraagformulier

  • 1.

    Voor de aanvraag van een vergunning of instemming wordt gebruik gemaakt van het digitale formulier zoals in bijlage 3 bij dit uitvoeringsbesluit is opgenomen.

  • 2.

    Het digitale formulier is te downloaden via www.delft.nl/Gemeenteloket.

  • 3.

    De aanvrager die namens een kabel- of leidingeigenaar of netwerkbeheerder dan wel een aanbieder zoals genoemd in artikel 5.1 van de Telecommunicatiewet handelt, legt bij de aanvraag een schriftelijke machtiging over waaruit zijn bevoegdheid blijkt.

Artikel 4. Eisen uitvoeringsplan

  • 1.

    Aan het uitvoeringsplan worden naast de eisen genoemd in artikel 7 van de verordening de volgende eisen gesteld:

    • a.

      De bij het uitvoeringsplan in te dienen werktekening is voorzien van:

      • een tekeninghoofd met een eenduidig tekeningnummer en datum;

      • een legenda;

      • een noordpijl;

      • de maatvoering van het tracé;

      • de vermelding van het aantal leidingen;

      • de vermelding van materiaalsoort en diameter(s);

      • een detaildoorsnede;

      • de maatvoering ten opzichte van de naastliggende kabels en leidingen rekening houdend met het dwarsprofiel;

      • een legschema.

    • b.

      De werktekening is voorzien van een bijlage met daarin opgenomen:

      • een overzicht tekening op een schaal van >1:1000 waaruit blijkt waar de werkzaamheden plaatsvinden;

      • een omleiding-voorstel.

  • 2.

    Afhankelijk van de omvang, de complexiteit en de duur van de werkzaamheden kan een bij het uitvoeringsplan een BLVC-plan worden verlangd.

Artikel 5. Start werkzaamheden: MOOR-melding

1. Alvorens met werkzaamheden wordt aangevangen, meldt de uitvoerder zich minimaal drie werkdagen van tevoren op het Meldpunt Openbrekingen Openbare Ruimte via https://mijn.moorwerkt.nl/MVC/.

2. Na goedkeuring kan worden gestart met de werkzaamheden.

Artikel 6. Eisen aan uitvoering werkzaamheden

Ter bevordering van:

  • de veilige ligging van ondergrondse infrastructuur

  • het optimaal gebruik van beschikbare openbare ruimte

  • de bescherming van archeologische bodemschatten en

  • de leefbaarheid voor omwonenden

  • worden aan de uitvoering van werkzaamheden en de materiaalkeus de volgende eisen gesteld:

    • a.

      conformiteit aan de standaard RAW-bepalingen, Normbladen, CROW- en KOMO-publicaties en VCA-certificering;

    • b.

      de grootst mogelijke veiligheid en doorstroming van het verkeer;

    • c.

      het tijdig informeren van aan- en omwonenden en andere belanghebbenden over voorgenomen werkzaamheden;

    • d.

      het treffen van extra veiligheidsmaatregelen bij gebouwen en terreinen in veiligheidszones en risicogebieden (zoals brandstofpompstations, hoofdgasleidingen, kernreactoren etc.);

    • e.

      gepast gedrag van werknemers wanneer werkzaamheden plaatsvinden nabij begraafplaatsen, religieuze gebouwen etc.

Artikel 7. Eisen na beëindiging werkzaamheden

Na afronding van de werkzaamheden draagt de uitvoerder zorg voor:

  • a.

    verdichting: het laagsgewijs aanvullen tot de oorspronkelijke dichtheid;

  • b.

    fundering: herstel van de ongebonden laag met speciale bouwstoffen;

  • c.

    verharding: herstel van gesloten-, halfopen-, en open verhardingen;

  • d.

    groen: herstel van gazons, bermen en bomen;

  • e.

    straatmeubilair: terugplaatsing in oorspronkelijke aantallen en stand;

  • f.

    afmelding van de werkzaamheden in MOOR.

Artikel 8. Aansprakelijkheid voor schade

  • 1.

    De uitvoerder is aansprakelijk voor alle schade die ontstaat door of voortvloeit uit de door of namens hem verrichte werkzaamheden op of in openbare gronden in verband met de aanleg, instandhouding en opruiming van kabels en leidingen.

  • 2.

    De netbeheerder is aansprakelijk voor alle schade die ontstaat door of voortvloeit uit het hebben van kabels en leidingen op of in openbare gronden.

  • 3.

    De kosten voor herstel van straatwerk worden bepaald volgens de actuele herstraattarieven van het VNG-GPKL.

Artikel 9. Verlegregeling

Ter zake van het verleggen van in openbare grond liggende infrastructuur op verzoek van de gemeente, wordt een verlegregeling vastgesteld. Deze regeling ziet in elk geval op:

  • a.

    verlegging vanwege de rechtmatige uitoefening van een publiekrechtelijke taak en

  • b.

    verlegging vanwege een bouwproject.

Artikel 10. Aanwijzing gebied met permanente vergunning/ meldingsplicht

  • 1.

    Ter uitvoering van het bepaalde in artikel 3, vierde lid van de verordening, worden de gebieden aangewezen die op de kaart zwart-wit zijn omkaderd (bijlage 4 bij dit uitvoeringsbesluit).

  • 2.

    In dit gebied worden vanaf week 47 van het lopende kalenderjaar geen werkzaamheden uitgevoerd anders dan in geval van spoedeisendheid.

Artikel 11. Handboek kabels en leidingen

Ten behoeve van de uitvoerders, netbeheerders en alle andere belanghebbenden is er een handboek, met daarin werkinstructies, nadere uitleg en informatie betreffende werkzaamheden op of in openbare gronden in verband met de aanleg, instandhouding en opruiming van kabels en leidingen.

Artikel 12. Toezicht en handhaving

  • 1.

    Met het toezicht op de naleving van het bepaalde in de verordening, dit uitvoeringsbesluit en de hierop gebaseerde regelingen en besluiten zijn belast de personen werkzaam in de functie van:

    • a.

      Coördinator Kabels en Leidingen;

    • b.

      Assetbeheerder Civiel;

    • c.

      Toezichthouder Beheer Openbare Ruimte en Bedrijven.

  • 2.

    Bij ontstentenis van de functionarissen genoemd in het eerste lid wordt het toezicht uitgeoefend door het afdelingshoofd Beheer Openbare Ruimte dan wel diens vervanger.

Artikel 13. Bevoegdheden toezichthouders

De functionarissen genoemd in artikel 12 zijn bevoegd de werkzaamheden direct stil te leggen indien:

  • a.

    er gewerkt wordt zonder vergunning, instemmingsbesluit en/of voorafgaande melding, anders dan in het geval van spoedeisende werkzaamheden;

  • b.

    er gewerkt wordt in strijd met de instemmings-/vergunningsvoorwaarden;

  • c.

    er gewerkt wordt in strijd met de nadere regels opgenomen in het handboek ondergrondse infrastructuur;

  • d.

    aanwijzingen door het bevoegd gezag niet onverwijld worden opgevolgd;

  • e.

    (uitvoerend personeel van) de uitvoerder zich onbehoorlijk, kwetsend en/of overlast-gevend gedraagt;

  • f.

    onacceptabele verkeershinder en/of gevaarlijke situaties voor de omgeving ontstaat.

Artikel 14. Slotbepalingen

  • 1.

    Deze nadere regels treden veertien dagen na bekendmaking in werking.

  • 2.

    Deze nadere regels worden aangehaald als: Uitvoeringsbesluit ondergrondse infrastructuur Delft.

Vastgesteld in de openbare vergadering van burgemeester en wethouders van 07-03-2017

Bekendgemaakt: 7 november 2023

De secretaris,

De voorzitter,

Bijlage 1 behorend bij het Uitvoeringsbesluit ondergrondse infrastructuur Delft

 

Voorbeeld dwarsprofiel K&L

 

Bijlage 2 behorend bij het Uitvoeringsbesluit ondergrondse infrastructuur Delft

 

Voorbeeld legschema K&L

 

Bijlage 3 behorend bij het Uitvoeringsbesluit ondergrondse infrastructuur Delft

 

Aanvraagformulier

 

ADRESSEREN

Mail: coordinatorK&L@delft.nl

Post: Gemeente Delft, Beheer Openbare Ruimte

T.a.v.: de coördinator Kabels & Leidingen

Postbus 78, 2600 ME Delft

 

BIJLAGEN AANVRAAG

Bij de aanvraag moeten de volgende bescheiden worden toegevoegd:

 

Een uitvoeringsplan, bevattende:

  • 1.

    een omschrijving van de kabels en leidingen die worden aangelegd, in stand gehouden of opgeruimd, alsmede een omschrijving van de voorzieningen die worden medegebruikt of voor medegebruik worden aangelegd;

  • 2.

    een omschrijving van de werkzaamheden die worden uitgevoerd;

  • 3.

    de contactgegevens van degene onder wiens verantwoordelijkheid de werkzaamheden worden verricht, inclusief een contactgegeven dat gedurende de uitvoering van de werkzaamheden de gehele dag bereikbaar zal zijn;

  • 4.

    een opgave van het voorgenomen tijdvak waarbinnen de werkzaamheden zullen plaatsvinden en, indien van toepassing, een opgave van de fasering binnen dit tijdvak;

  • 5.

    een aanduiding van de wijze waarop omwonenden en andere belanghebbenden vooraf in kennis worden gesteld van de werkzaamheden;

  • 6.

    een omschrijving van de te treffen maatregelen in het belang van de openbare orde, de veiligheid, het voorkomen of beperken van schade en overlast, de bereikbaarheid van gronden of gebouwen en de ondergrondse ordening;

  • 7.

    een tekening van het gewenste tracé, ingetekend op de GBKN schaal 1:500 voor bestaand gebied, met daarop de aan te leggen, in stand te houden of te verwijderen kabels en leidingen.

BELANGRIJK

De aanvraag kan niet in behandeling worden genomen als deze niet volledig is ingevuld, niet is ondertekend, en niet met alle benodigde bijlagen wordt ingediend.

 

GEGEVENS AANVRAGER / NETBEHEERDER

Naam bedrijf: …………………………………………………………………………

Afdeling: …………………………………………………………………………

Postbus: …………………………………………………………………………

Postcode: …………………………………………………………………………

Plaats: …………………………………………………………………………

Contactpersoon: …………………………………………………………………………

Telefoonnummer: …………………………………………………………………………

Emailadres: …………………………………………………………………………

OPTA nummer: …………………………………………………………………………

 

Factuuradres voor leges en degeneratiekosten (indien niet de aanvrager):

Naam bedrijf: …………………………………………………………………………

Afdeling: …………………………………………………………………………

Postbus: …………………………………………………………………………

Postcode: …………………………………………………………………………

Plaats: …………………………………………………………………………

Contactpersoon: …………………………………………………………………………

Telefoonnummer: …………………………………………………………………………

Onder vermelding van: …………………………………………………………………………

 

1. GEGEVENS UITVOERDER / AANNEMER

Naam bedrijf: …………………………………………………………………………

Contactpersoon: …………………………………………………………………………

Telefoonnummer: …………………………………………………………………………

KvK nr.: …………………………………………………………………………

 

Paraaf gezien:

 

 

AARD VAN DE KABELS

 

  • Elektra

  • Gas

  • Water

  • Telecom

  • Kabel TV

  • Mantelbuizen

  • Anders: …………………………………………………………………………

2. LOCATIE WERKZAAMHEDEN

Straatnaam …………………………………………………………………………

Huisnr. …………………………………………………………………………

 

3. BESCHRIJVING WERKZAAMHEDEN

 

  • Aanleg/ vervanging/ ruimen/ omleggen van kabels

  • Huisaansluiting (onder 15 meter geul, haaks op de hoofdkabel)

  • Aanbrengen van lasgaten (Handholes)

  • Anders, namelijk: …………………………………………………………………………

Projectnummer: …………………………………………………………………………

Hoeveel meter geul wordt er opengebroken? ……………………… meter

Bovengrondse voorzieningen: …………………………………………………………………………

 

4. TIJDSTIP WERKZAAMHEDEN

Startdatum: ……………………-………………………………-……………………

(Verwachte) einddatum: ……………………-……………………………-………………………

 

Handtekening aanvrager:

 

 

Bijlage 4 behorend bij het Uitvoeringsbesluit ondergrondse infrastructuur Delft

 

Beschermd Stadsgezicht

Naar boven