Gemeenteblad van Amstelveen
| Datum publicatie | Organisatie | Jaargang en nummer | Rubriek |
|---|---|---|---|
| Amstelveen | Gemeenteblad 2023, 436673 | verkeersbesluit of -mededeling |
Zoals vergunningen, bouwplannen en lokale regelgeving.
Adressen en contactpersonen van overheidsorganisaties.
U bent hier:
| Datum publicatie | Organisatie | Jaargang en nummer | Rubriek |
|---|---|---|---|
| Amstelveen | Gemeenteblad 2023, 436673 | verkeersbesluit of -mededeling |
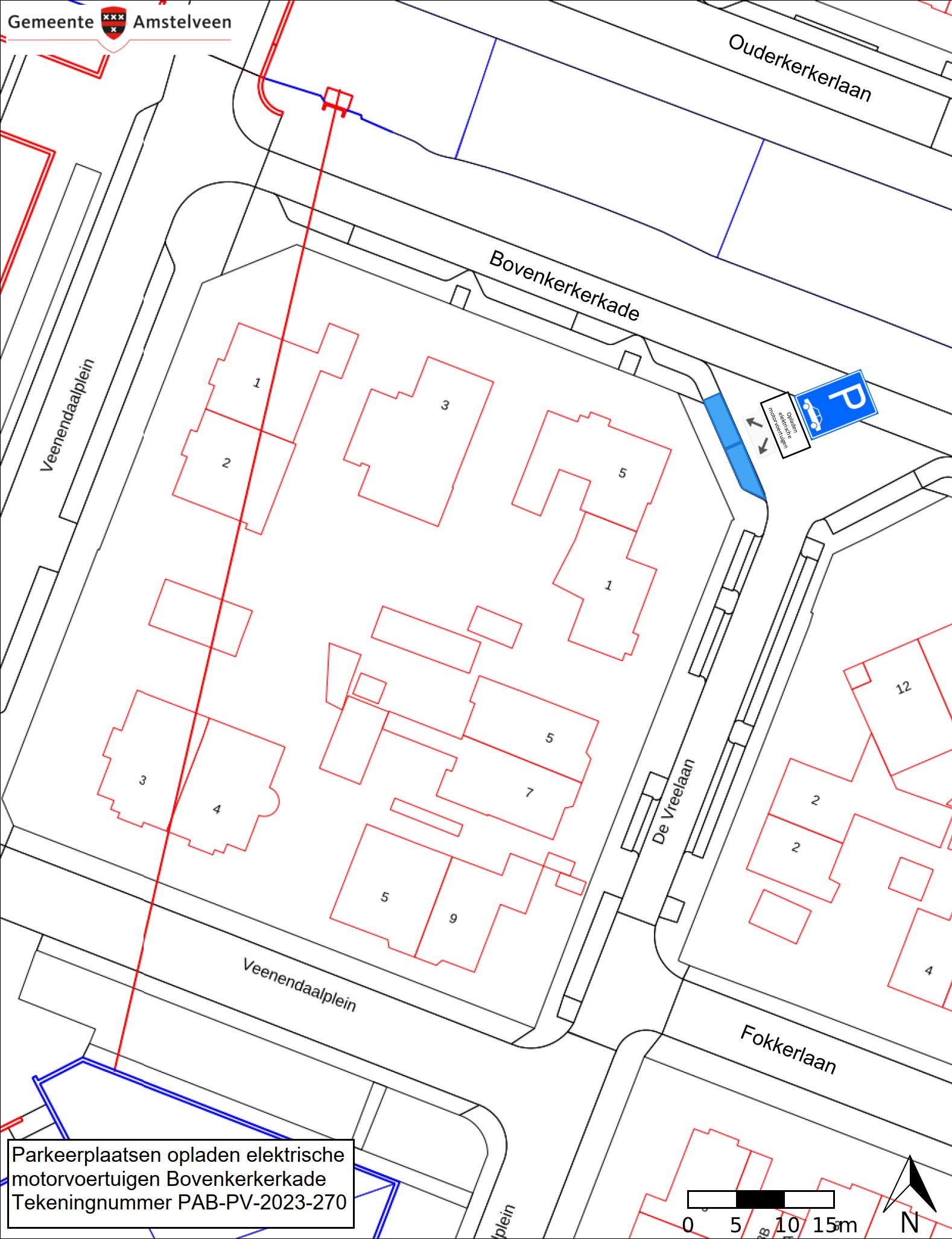
Verkeersbesluit intrekken aanwijzing Veenendaalplein en aanwijzen parkeerplaatsen opladen elektrische motorvoertuigen Bovenkerkerkade
Burgemeester en wethouders van Amstelveen besluiten om hun besluit van 21 maart 2023 (zaaknummer Z23-025528), waarbij vier parkeerplaatsen op het Veenendaalplein zijn aangewezen als parkeerplaats voor het opladen van elektrische motorvoertuigen, in te trekken. De openbare laadpalen zijn nog niet geplaatst waardoor er in de praktijk niets veranderd. De geplande parkeerplaatsen voor het opladen van elektrische motorvoertuigen zijn weergegeven op de in dit besluit opgenomen tekening PAB-PV-2023-33.
Burgemeester en wethouders van Amstelveen besluiten daarnaast om twee parkeerplaatsen aan te wijzen als parkeerplaats voor het opladen van elektrische motorvoertuigen aan de Bovenkerkerkade. Deze parkeerplaatsen mogen alleen gebruikt worden voor het opladen van elektrische motorvoertuigen.
Dit gebeurt door het plaatsen van borden E8 van bijlage 1 van het Reglement verkeersregels en verkeerstekens 1990 (RVV 1990) en onderborden met opschrift “opladen elektrische motorvoertuigen” en waarop is aangegeven dat de maatregel voor twee naast elkaar gelegen parkeerplaatsen geldt, zoals aangegeven op de in dit besluit opgenomen bebordingstekening PAB-PV-2023-270.
Het besluit strekt conform artikel 2 Wegenverkeerswet 1994 tot:
Het besluit wordt als volgt gemotiveerd:
De gemeente Amstelveen stimuleert het elektrisch vervoer. Dit vervoer draagt bij aan het verbeteren van de luchtkwaliteit in de gemeente Amstelveen. Voor het opladen van elektrische motorvoertuigen is het noodzakelijk om een netwerk van oplaadpunten te creëren. In de omgeving wonen meerdere mensen met een elektrisch motorvoertuig, die geen parkeergelegenheid op eigen terrein hebben.
Bij het besluit van 21 maart 2023 (zaaknummer Z23-025528) zijn vier parkeerplaatsen voor het opladen van elektrische motorvoertuigen aangewezen op het Veenendaalplein. Tegen dit besluit is bezwaar gemaakt. Er wordt onder meer aangevoerd dat er sprake is van een hoge parkeerdruk sinds er in de aangrenzende straten betaald parkeren is ingevoerd. Het aanwijzen van vier parkeerplaatsen voor het opladen van elektrische motorvoertuigen bemoeilijkt het parkeren van hun voertuigen.
Samen met de laadpaalexploitant is gezocht naar een geschikte alternatieve locatie. Deze locatie is gevonden aan de Bovenkerkerkade en op tekening PAB-PV-2023-270 weergegeven. Op deze locatie worden er twee parkeerplaatsen ingericht worden als parkeerplaats voor het opladen van elektrische motorvoertuigen.
De locatie is getoetst aan de Beleidsregels oplaadinfrastructuur elektrische voertuigen 2020 van de gemeente. Ook is er getoetst aan de parkeerdruk. De parkeerdruk op de nieuwe locatie is op het drukst gemeten moment 58% (7 van de 12 parkeerplaatsen zijn bezet).
Overeenkomstig artikel 24 van het BABW is overleg gepleegd met een namens de korpschef van de regiopolitie Amsterdam-Amstelland gemandateerde specialist van het team Verkeersadvisering over het aanwijzen van dergelijke oplaadpunten. De specialist heeft daarbij aangegeven geen bezwaren te hebben tegen het bestemmen van bestaande parkeerplaatsen voor het opladen van elektrische motorvoertuigen.
Verkeersbesluiten worden genomen door burgemeester en wethouders voor zover zij betreffen het verkeer op de wegen, welke niet in beheer zijn bij het Rijk, de provincie of een waterschap (artikel 18, lid 1, onder d, WVW 1994). Het mandaatbesluit van burgemeester en wethouders is van toepassing. Er is ondermandaat verleend aan de medewerker ontwerp en voorbereiding van de gemeente.
De Bovenkerkerkade ligt binnen de bebouwde kom en is in beheer bij de gemeente Amstelveen.
Amstelveen, 12 oktober 2023
Burgemeester en wethouders van de gemeente Amstelveen,
namens dezen,
R.A.C.M. Lommerse
Medewerker ontwerp en voorbereiding
Mogelijkheid tot het indienen van een bezwaarschrift
Tegen dit besluit kunnen belanghebbenden binnen zes weken na bekendmaking een bezwaarschrift indienen. Het bezwaarschrift moet worden ondertekend. Het bevat ten minste de naam en het adres van de indiener, de dagtekening, een omschrijving van het besluit waartegen het bezwaar is gericht en de gronden van het bezwaar. Zo mogelijk meldt u uw e-mailadres en het telefoonnummer waarop u overdag te bereiken bent.
Het bezwaarschrift richt u aan het College van burgemeester en wethouders van Amstelveen, t.a.v. Juridische Zaken, Postbus 4, 1180 BA Amstelveen.
Digitaal bezwaar maken is ook mogelijk. Dit kan via www.amstelveen.nl/bezwaarschrift. Hiervoor moet u wel over een elektronische handtekening (DigiD) beschikken.
Mogelijkheid tot het aanvragen van een voorlopige voorziening
Als u bezwaar maakt, geldt de beslissing nog wel. Wilt u dat het gemeentelijke besluit tijdens uw bezwaarprocedure tijdelijk wordt opgeschort? Dien dan een verzoek om voorlopige voorziening in bij de voorzieningenrechter van de rechtbank. Als de voorzieningenrechter uw verzoek toekent, is het besluit opgeschort.
Een verzoek dient u in bij de Voorzieningenrechter van de Rechtbank Amsterdam, Postbus 75850, 1070 AW Amsterdam. Aan het verzoek zijn kosten verbonden.
Kopieer de link naar uw clipboard
https://zoek.officielebekendmakingen.nl/gmb-2023-436673.html
De hier aangeboden pdf-bestanden van het Staatsblad, Staatscourant, Tractatenblad, provinciaal blad, gemeenteblad, waterschapsblad en blad gemeenschappelijke regeling vormen de formele bekendmakingen in de zin van de Bekendmakingswet en de Rijkswet goedkeuring en bekendmaking verdragen voor zover ze na 1 juli 2009 zijn uitgegeven. Voor pdf-publicaties van vóór deze datum geldt dat alleen de in papieren vorm uitgegeven bladen formele status hebben; de hier aangeboden elektronische versies daarvan worden bij wijze van service aangeboden.