Verkeersmaatregel Willem Vliegenstraat

Ruimte / Mobiliteit / 2023-352637

Burgemeester en Wethouders van Maastricht

 

Gelet op:

  • artikel 18, lid 1 onder d van de Wegenverkeerswet 1994 (hierna: WVW 1994) ingevolge verkeersbesluiten worden genomen door burgemeester en wethouders voor zover zij betreffen het verkeer op wegen, welke niet in beheer zijn bij het Rijk, de provincie of een waterschap dat deze bevoegdheid op grond van “Maandaatregeling Gemeente Maastricht 2010” is gemandateerd aan het afdelingshoofd Mobiliteit;

  • artikel 15, lid 1, van de WVW 1994 dient er een verkeersbesluit te worden genomen voor de plaatsing of verwijdering van de in artikel 12 van het Besluit administratieve bepalingen inzake het wegverkeer opgenomen verkeerstekens, evenals voor onderborden voor zover daardoor een gebod of verbod ontstaat of wordt gewijzigd;

  • artikel 15, lid 2, van de WVW 1994 dient er een verkeersbesluit te worden genomen voor het aanbrengen of verwijderen van infrastructurele maatregelen die leiden tot een beperking of een uitbreiding van het aantal categorieën weggebruikers dat van een weg of weggedeelte gebruik kan maken;

  • artikel 12 van het Besluit Administratieve Bepalingen inzake het Wegverkeer (hierna: BABW) ingevolge het plaatsen en verwijderen van de in dit artikel genoemde verkeerstekens moet geschieden krachtens een verkeersbesluit;

  • artikel 14 van het BABW, wordt de plaatsing van onderborden, zoals bedoeld in artikel 8, lid 2 en lid 3 van het BABW, in het betrokken verkeersbesluit tot uitdrukking gebracht;

  • artikel 24 van het BABW ingevolge verkeerbesluiten worden genomen na overleg met de gemandateerde van de korpschef van het nationale politiekorps;

 

Overwegende :

dat de Willem Vliegenstraat een erftoegangsweg is in de gemeente Maastricht;

 

dat de Willem Vliegenstraat in de wijk Mariaberg ligt;

 

dat er in de Mariaberg nieuwbouw wordt ontwikkeld;

 

dat er een buurtpark en een Blauwe Loper wordt aangelegd, een voetgangers- en fietsroute van Proosdijveld naar de binnenstad;

 

dat de Willem Vliegenstraat langs het nieuwe buurtpark loopt en ten westen van de Proosdijweg doorgetrokken wordt tot aan de Ruttensingel;

dat dit nieuwe deel wordt aangewezen als fietspad in twee richtingen;

 

dat de Willem Vliegenstraat verder wordt ingericht als fietsstraat;

 

dat de kruisingen van de Willem Vliegenstraat met de Proosdijweg en de Ambachtsweg worden ingericht als voorrangskruisingen waarbij het verkeer op de Willem Vliegenstraat voorrang heeft op het verkeer op de Proosdijweg en de Ambachtsweg;

 

dat het deel van de Willem Vliegenstraat gelegen tussen de Proosdijweg en de Ambachtsweg aangewezen wordt als eenrichtingsweg voor gemotoriseerd verkeer, gesloten in de richting van de Proosdijweg;

 

dat deze maatregelen zijn besproken met omwonenden;

 

dat deze maatregel wordt genomen voor het verzekeren van de veiligheid op de weg en het beschermen van weggebruikers en passagiers;

 

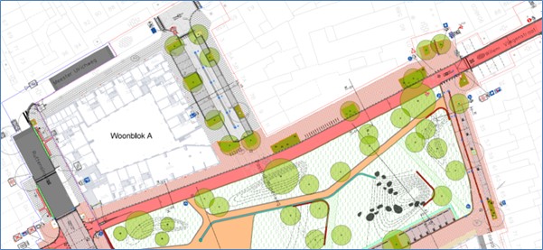
dat de locatie is weergegeven op de bijgevoegde tekening als behorend bij dit verkeersbesluit;

 

dat betreffende straat in beheer en onderhoud is bij de gemeente Maastricht;

 

dat overeenkomstig artikel 24 van het BABW de te nemen verkeersmaatregelen besproken zijn met de Districtchef van politiedistrict Maastricht;

 

BESLUITEN:

  • 1.

    in te trekken het bepaalde ten aanzien van de Willem de Vliegenstraat in hun besluit van 18 maart 2020, Ruimte / Mobiliteit / 2020-07173;

  • 2.

    door het plaatsen van de borden A1 en A2 (30 km zone) van Bijlage I van het RVV 1990 de maximumsnelheid in te stellen op 30 km/uur op de Willem Vliegenstraat;

  • 3.

    door het plaatsen van de borden B3 en B6 van Bijlage I van het RVV 1990 en het aanbrengen van haaientanden aan te geven dat het verkeer op de Willem Vliegenstraat voorrang heeft op het verkeer op de Proosdijweg en de Ambachtsweg en Volksbondweg;

  • 4.

    door het plaatsen van het bord B6 van Bijlage I van het RVV 1990 aan te geven dat het verkeer op het fietspad voorrang dient te verlenen aan het verkeer op de Ruttensingel;

  • 5.

    door het plaatsen van de borden C2, C3 en C4 van Bijlage I van het RVV 1990 en onderborden OB07 de Willem Vliegenstraat aan te wijzen als eenrichtingsstraat, gesloten voor het gemotoriseerd verkeer in de richting van de Proosdijweg;

  • 6.

    door het plaatsen van het bord D5 van Bijlage I van het RVV 1990 een verplichte rijrichting aan te geven op de Willem Vliegenstraat in de richting van de Volksbondweg;

  • 7.

    door het plaatsen van de borden G7 van Bijlage I van het RVV 1990 de vrijliggende paden aan de zuidzijde van de Willem Vliegenweg het nieuwe buurtpark in aan te wijzen als voetpad;

  • 8.

    door het plaatsen van de borden G11 en G12 van Bijlage I van het RVV 1990 en onderborden OB505 het pad ten westen van de Proosdijweg aan te wijzen als fietspad in twee richtingen;

  • 9.

    door het in stand houden van het bord E6 van Bijlage I van het RVV 1990 en onderbord OB309 aan te wijzen als individuele gehandicaptenparkeerplaats:

    • a.

      de parkeerplaats ter hoogte van de Willem Vliegenstraat 84a;

    • b.

      de parkeerplaats ter hoogte van de Willem Vliegenstraat 7a.

 

 

Namens het college van burgemeester en wethouders van Maastricht,

Wethouder Aarts,

voor deze,

 

E. Westbroek

Teammanager Mobiliteit

 

(Deze brief is digitaal goedgekeurd en daarom niet met de hand ondertekend)

 

Maastricht, 18 september 2023

 

Bezwaar en voorlopige voorziening

Op grond van het bepaalde in de artikelen 8:1 juncto artikel 7:1 juncto artikel 6:4 van de Awb kan, door degenen wiens belang rechtstreeks bij dit besluit is betrokken, binnen een termijn van zes weken, ingaande op de dag na de dag waarop dit besluit is bekendgemaakt c.q. is verzonden of uitgereikt, bij ons college een bezwaarschrift worden ingediend.

 

U kunt het bezwaarschrift digitaal of schriftelijk indienen.

 

Als u het bezwaarschrift digitaal wilt indienen, kunt u dit doen via https://www.gemeentemaastricht.nl/bezwaarschrift-indienen. U vindt hier een formulier waarmee u bezwaar kunt maken.

 

U kunt het bezwaarschrift ook per post indienen.

 

Het bezwaarschrift moet worden ondertekend en moet ten minste bevatten:

. de naam en het adres van de indiener;

. de dagtekening;

. een omschrijving van het besluit waartegen het bezwaar is gericht;

. de gronden van het bezwaar.

Wij verzoeken u in het bezwaarschrift ook uw telefoonnummer en (zo mogelijk) uw

e-mailadres te vermelden.

 

Het bezwaarschrift moet worden gericht aan het college van Burgemeester en wethouders van Maastricht, Postbus 1992, 6201 BZ Maastricht.

 

Het indienen van bezwaar heeft geen schorsende werking. Om de inwerkingtreding van het besluit en de gevolgen daarvan op te schorten kan om een voorlopige voorziening worden verzocht. Het verzoek om een voorlopige voorziening moet worden gericht aan de voorzieningenrechter van de Rechtbank Limburg, bestuursrecht, postbus 950 te 6040 AZ te Roermond.

Van de verzoeker van een voorlopige voorziening wordt een griffierecht geheven. U wordt door de griffie van de rechtbank geïnformeerd over de hoogte van het griffierecht en de wijze van betaling.

 

U kunt ook digitaal een voorlopige voorziening indienen bij genoemde rechtbank via http://loket.rechtspraak.nl/bestuursrecht. Daarvoor moet u wel beschikken over een elektronische handtekening (DigiD). Kijk op de genoemde site voor de precieze voorwaarden.

 

Bijlage

 

Naar boven