Gemeenteblad van Delft
| Datum publicatie | Organisatie | Jaargang en nummer | Rubriek |
|---|---|---|---|
| Delft | Gemeenteblad 2023, 297577 | andere beschikking |
Zoals vergunningen, bouwplannen en lokale regelgeving.
Adressen en contactpersonen van overheidsorganisaties.
U bent hier:
| Datum publicatie | Organisatie | Jaargang en nummer | Rubriek |
|---|---|---|---|
| Delft | Gemeenteblad 2023, 297577 | andere beschikking |
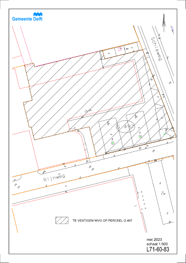
Vestigen voorkeursrecht op Schieweg 13 in Schieoevers-Noord
Het College van burgemeester en wethouders van Delft (het College) maken op grond van artikel 7, lid 1 van de Wet voorkeursrecht gemeenten (Wvg) bekend dat het College van de gemeente Delft op 4 juli 2023 heeft besloten om op grond van artikel 4 van de Wvg een perceel aan te wijzen waarop de artikelen 10 tot en met 15, 24 en 26 van de Wvg van toepassing zijn.
Het perceel is gelegen op het industrieterrein Schieoevers-Noord. De bij de aanwijzing betrokken percelen hebben een toekomstige bestemming voor “Bedrijventerrein” en ‘‘Parken en Groenstructuren’’ danwel een intensiever gebruik dan het huidige bestemmingsplan biedt.
Met het Collegebesluit is het perceel voorlopige aangewezen voor een periode van ten hoogste drie maanden, tenzij voor die periode een opvolgend raadsbesluit is genomen.
Het besluit van het College treedt in werking één (werk)dag na publicatie in het Gemeenteblad te weten op 6 juli 2023.
Het Collegebesluit d.d. 4 juli 2023 ligt samen met de bijbehorende stukken, bevattende de kadastrale kaart en een lijst met daarop de kadastrale aanduiding van de in de aanwijzing opgenomen percelen, de grootte, alsmede de naam van de eigenaren, en overige relevante gegevens, met ingang van 6 juli 2023 gedurende zes weken voor eenieder kosteloos ter inzage bij de gemeente aan het Stationsplein 1 te Delft. De openingstijden zijn op maandag tot en met donderdag van 8:30 tot 17.00 uur en op vrijdag van 8.30 tot 20.00. Voor het inzien van de stukken dient een afspraak gemaakt te worden bij de gemeente Delft. Afspraak maken kan via het telefoonnummer 14015 of via http://www.delft.nl/idd/afspraak
De vestiging van het voorkeursrecht houdt in dat eigenaren en/of beperkt gerechtigden van de aangewezen percelen, wanneer zij die wensen te verkopen respectievelijk erop gevestigde beperkte rechten wensen te vervreemden, deze eerst aan de gemeente Delft moeten aanbieden. De eigenaren en de rechthebbenden op beperkte rechten ontvangen hierover één dezer dagen bij aangetekend schrijven bericht over de inhoud van het besluit en de gevolgen daarvan. Het besluit vervalt van rechtswege drie maanden na dagtekening van het besluit, of zoveel eerder als een besluit van de gemeenteraad tot bestendiging van het voorkeursrecht in werking treedt.
Binnen drie maanden dient de gemeenteraad een besluit tot aanwijzing te nemen ter bestendiging van het voorkeursrecht. De voorbereiding van dit raadsbesluit wordt nu gelijktijdig gestart en in dit kader kunnen belanghebbenden hun zienswijzen kenbaar maken. Op grond van artikel 4:8 van de Algemene wet bestuursrecht (Awb) worden belanghebbenden in de gelegenheid gesteld om gedurende een termijn van vier weken, ingaande op 6 juli 2023 en eindigende op 3 augustus 2023, hun zienswijzen ten aanzien van het voorgenomen raadsbesluit schriftelijk, dan wel mondeling, naar voren te brengen. De zienswijze kan schriftelijk gericht worden aan de gemeenteraad van de gemeente Het bezwaarschrift dient te worden gericht aan het College van de gemeente Delft, Postbus 78, 2600 ME Delft.
Bezwaar en voorlopige voorziening
Ingevolge de Algemene wet bestuursrecht kunnen belanghebbenden gedurende een termijn van zes weken ingaande op 6 juli 2023 (de werkdag na publicatie in het Gemeenteblad) bezwaar indienen tegen het besluit van het College. In het ondertekende bezwaarschrift moet worden opgenomen: de naam en het adres van de belanghebbende, de datum, een omschrijving van het besluit waartegen het bezwaar is gericht en de gronden van het bezwaarschrift (de motivering). Het bezwaarschrift dient te worden gericht aan het College van de gemeente Delft, Postbus 78, 2600 ME Delft.
Vestigen voorkeursrecht op Schieweg 13 in Schieoevers-Noord
Het College van burgemeester en wethouders besluit om:
lngevolge artikel 4 van de Wet voorkeursrecht gemeenten, het perceel gelegen aan de Schieweg 13, 2627 AN Delft kadastraal bekend als gemeente Delft, sectie G, nummer 497, zoals aangegeven op de bij dit besluit behorende en daarvan deel uit makende als zodanig gewaarmerkte kadastrale tekening/kaart en de bijbehorende en daarvan deel uit makende perceellijst, vermeldende de kadastrale aanduiding van de in de aanwijzing opgenomen percelen, de grootte alsmede de naam en vestigingsplaats van de eigenaar, één en ander volgens de registers van het kadaster, aan te wijzen als gronden waarop de artikelen 10 tot en met 15, 24, en 26 van de Wvg van toepassing zijn.
Toepassing te geven aan artikel 7 van de Wvg door het collegebesluit (inhoudende een besluit tot voorlopige aanwijzing) voor eenieder ter inzage te leggen. Deze ter inzagelegging bekend te maken in het Gemeenteblad, in de Stadskrant van Delft, op de website van de gemeente en de betrokken eigenaren bij aangetekende brief in kennis te stellen van de (betekenis van de) aanwijzing.
Kopieer de link naar uw clipboard
https://zoek.officielebekendmakingen.nl/gmb-2023-297577.html
De hier aangeboden pdf-bestanden van het Staatsblad, Staatscourant, Tractatenblad, provinciaal blad, gemeenteblad, waterschapsblad en blad gemeenschappelijke regeling vormen de formele bekendmakingen in de zin van de Bekendmakingswet en de Rijkswet goedkeuring en bekendmaking verdragen voor zover ze na 1 juli 2009 zijn uitgegeven. Voor pdf-publicaties van vóór deze datum geldt dat alleen de in papieren vorm uitgegeven bladen formele status hebben; de hier aangeboden elektronische versies daarvan worden bij wijze van service aangeboden.