Kennisgeving huisnummerbesluit Willem Eggertstraat 2 en 2A Purmerend

Burgemeester en wethouders van de gemeente Purmerend,

gelet op artikel 6 van de Wet basisregistratie adressen en gebouwen, artikel 149 van de Gemeentewet en de Verordening naamgeving en nummering (adressen) Purmerend,

hebben op 5 januari 2023 met besluitnummer 1574399 het volgende besloten:

  • 1.

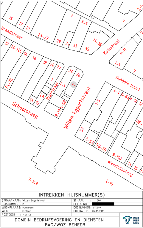
    Betreffende splitsing van één bovenwoning naar twee woningen over te gaan tot vaststelling van de volgende nummeraanduiding:

  •  

  • Vaststellen:

     

    • Willem Eggertstraat 2 en 2A te Purmerend

  • Intrekken

     

    • Willem Eggertstraat 2 te Purmerend

    • Het intrekken van de nummeraanduiding met NRA IDO439200000028928 gaat pas in op het moment dat de melding verbouwing gereed is.

     

Aldus vastgesteld op 5 januari 2023,

de teammanager GEO

Bent u het niet eens met dit besluit?

Dan kunt u bezwaar maken. Als u dat van plan bent, neemt u dan eerst telefonisch contact met ons op. Misschien komen we samen tot een oplossing. Komen we er niet uit, dan kunt u binnen zes weken na de dag waarop het besluit is verzonden een bezwaarschrift indienen.

U kunt dat digitaal doen, dan heeft u een DigiD nodig. Of u schrijft een brief naar het team Juridische en Veiligheidszaken, Postbus 15, 1440 AA te Purmerend. Voor meer informatie zie: www.purmerend.nl/bezwaar.

In uw bezwaarschrift moet het volgende staan:

  • -

    uw naam, adres, telefoonnummer en/of e-mailadres;

  • -

    een duidelijke omschrijving van dit besluit;

  • -

    de reden waarom u bezwaar maakt;

  • -

    de datum en uw handtekening.

Dient iemand anders namens u een bezwaarschrift in? Stuurt u dan een volmacht mee. Op www.purmerend.nl/bezwaar vindt u een voorbeeld.

 

 

Naar boven