Verkeersbesluit gehandicaptenparkeerplaats op kenteken Oude Karselaan

Zaaknummer: Z22-082136

 

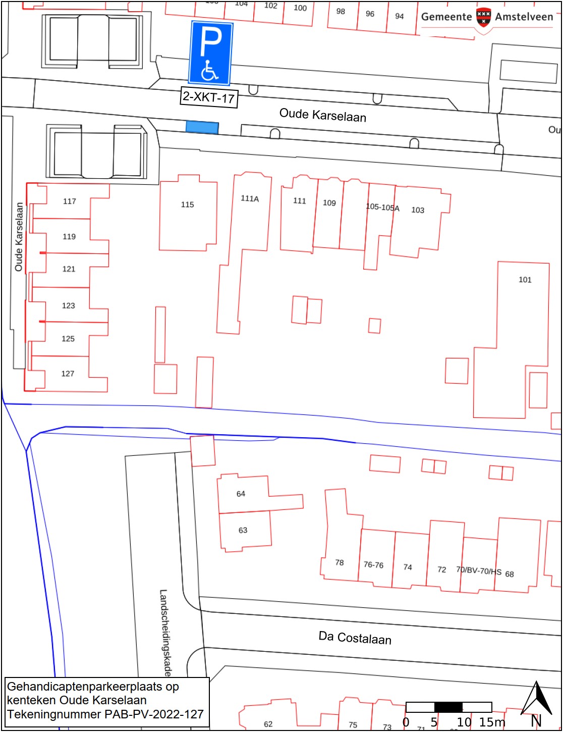
Burgemeester en wethouders van Amstelveen besluiten het parkeren te verbieden op een parkeerplaats in de Oude Karselaan, zoals aangegeven op tekening PAB-PV-2022-127, met uitzondering van het voertuig met het kenteken 2-XKT-17 (gehandicaptenparkeerplaats).

Dit gebeurt door het plaatsen van bord E6 van bijlage 1 van het Reglement verkeersregels en verkeerstekens 1990 (RVV 1990) met onderbord met vermelding van het kenteken.

Wettelijke grondslag

Het besluit is gebaseerd op:

  • de Wegenverkeerswet 1994 (WVW 1994);

  • het Reglement verkeersregels en verkeerstekens 1990 (RVV 1990);

  • het Besluit administratieve bepalingen inzake het wegverkeer (BABW).

Motivering

Het besluit strekt conform artikel 2 Wegenverkeerswet 1994 tot:

  • het beschermen van weggebruikers en passagiers (lid 1b);

  • het zoveel mogelijk waarborgen van de vrijheid van het verkeer (lid 1d).

 

Het besluit wordt als volgt gemotiveerd:

  • Er is een aanvraag ingediend om een gehandicaptenparkeerplaats op kenteken te reserveren bij de woning voor het voertuig met het kenteken 2-XKT-17 dat de bewoner zelf bestuurt.

  • De aanvrager heeft een aandoening met een aantoonbare loopbeperking en is daardoor niet in staat om met de gebruikelijke loophulpmiddelen zelfstandig een afstand van meer dan 100 meter te voet te overbruggen.

  • De aanvrager heeft moeite om dicht bij de woning op de openbare weg parkeerruimte te vinden.

  • Het is dringend gewenst dat er bij de woning een gehandicaptenparkeerplaats op kenteken van het voertuig van de aanvrager ter beschikking staat.

Bevoegd gezag

Verkeersbesluiten worden genomen door burgemeester en wethouders voor zover zij betreffen het verkeer op de wegen, welke niet in beheer zijn bij het Rijk, de provincie of een waterschap (artikel 18, lid 1, onder d, WVW 1994). Het mandaatbesluit van burgemeester en wethouders is van toepassing. Er is ondermandaat verleend aan de medewerker ontwerp en voorbereiding van de gemeente.

 

De Oude Karselaan ligt binnen de bebouwde kom en is in beheer bij de gemeente Amstelveen.

Tekening

 

Amstelveen, 19 oktober 2022

Burgemeester en wethouders van de gemeente Amstelveen,

namens dezen,

R.A.C.M. Lommerse

Medewerker ontwerp en voorbereiding

Mogelijkheid tot het indienen van een bezwaarschrift

Tegen dit besluit kunnen belanghebbenden binnen zes weken na bekendmaking een bezwaarschrift indienen. Het bezwaarschrift moet worden ondertekend. Het bevat ten minste de naam en het adres van de indiener, de dagtekening, een omschrijving van het besluit waartegen het bezwaar is gericht en de gronden van het bezwaar. Zo mogelijk meldt u uw e-mailadres en het telefoonnummer waarop u overdag te bereiken bent.

Het bezwaarschrift richt u aan het College van burgemeester en wethouders, t.a.v. Juridische zaken, Postbus 4, 1180 BA Amstelveen.

Digitaal bezwaar maken is ook mogelijk. Dit kan via www.amstelveen.nl/bezwaarschrift. Hiervoor moet u wel over een elektronische handtekening (DigiD) beschikken.

 

Mogelijkheid tot het aanvragen van een voorlopige voorziening

Als u bezwaar maakt, geldt de beslissing nog wel. Wilt u dat het gemeentelijke besluit tijdens uw bezwaarprocedure tijdelijk wordt opgeschort? Dien dan een verzoek om voorlopige voorziening in bij de voorzieningenrechter van de rechtbank. Als de voorzieningenrechter uw verzoek toekent, is het besluit opgeschort.

Een verzoek dient u in bij de Voorzieningenrechter van de Rechtbank Amsterdam, Postbus 75850, 1070 AW Amsterdam. Aan het verzoek zijn kosten verbonden.

Naar boven