Verkeersbesluit voor het reserveren van parkeerplaatsen voor elektrisch laden aan Emmastraat te Grave

BURGEMEESTER EN WETHOUDERS VAN LAND VAN CUIJK

Op grond van artikel 18, eerste lid, onder d, van de Wegenverkeerswet 1994, bevoegd dit verkeersbesluit te nemen;

Op grond van artikel 15, eerste lid van de Wegenverkeerswet 1994 verplicht tot het nemen van een verkeersbesluit voor de plaatsing of verwijdering van in artikel 12 van het Besluit Administratieve Bepalingen inzake het Wegverkeer genoemde verkeerstekens, alsmede voor onderborden voor zover daardoor een gebod of verbod ontslaat of wordt gewijzigd;

OVERWEGENDE:

  • dat een naburige bewoner een elektrisch voertuig heeft aangeschaft;

  • dat deze niet op eigen terrein gestald en opgeladen kan worden;

  • dat er geen openbare laadinfrastructuur op een loopafstand van 300 meter beschikbaar is;

  • dat de gemeente Land van Cuijk een beleidsaanpak laadinfrastructuur Land van Cuijk heeft aangenomen;

  • dat op grond van dit beleid en bovenstaande punten, verzoeker in aanmerking komt voor een openbare laadpaal op een loopafstand van maximaal 300m vanaf de woning;

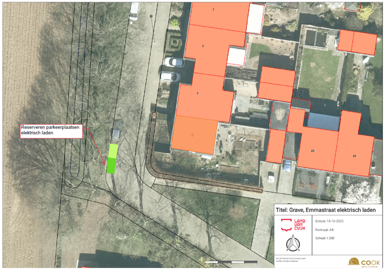
  • dat een locatie is gekozen die voor meerdere woningen centraal gelegen is, zodat anderen hier kunnen laden;

  • dat gezien de parkeerdruk vooralsnog alleen de linker parkeerplaats voor deze laadpaal in gebruik wordt genomen;

  • dat de bovenvermelde maatregel wordt genomen op basis van artikel 2 van de Wegenverkeerswet 1994 om de door het verkeer veroorzaakte overlast en hinder te voorkomen;

  • dat voor de uitvoering van deze maatregel een verkeersbesluit dient te worden genomen;

  • dat overeenkomstig artikel 24 van het Besluit Administratieve Bepalingen inzake het Wegverkeer overleg is gepleegd met de taakaccenthouder verkeer namens de korpschef van het Regionaal korps Brabant-Oost, District Maas en Leijgraaf en dat deze akkoord gaat met het onderstaande besluit;

BESLUITEN

Op grond van vorenstaande overwegingen tot:

  • 1.

    het aanwijzen van twee parkeerkeerplaatsen als parkeer- en oplaadvoorziening voor elektrische voertuigen op de Emmastraat te Grave door het plaatsen van bord E4 van Bijlage I van het Reglement Verkeersregels en Verkeerstekens 1990 met het onderbord met opschrift: ‘opladen elektrische voertuigen’ en conform de bij dit besluit behorende en als zodanig gewaarmerkte tekening;

Cuijk, 18 oktober 2022

namens burgemeester en wethouders van de gemeente Land van Cuijk,

Jos Bennink

Teammanager Civiel & Verkeer

Dit document is elektronisch ondertekend en daarom niet voorzien van een visuele handtekening.

MEDEDELINGEN:

BEZWAARCLAUSULE

Tegen dit besluit en de daaraan verbonden voorwaarden kunt u op grond van de Algemene wet bestuursrecht binnen zes weken na bekendmaking ervan bezwaar maken bij burgemeester en wethouders van de gemeente Land van Cuijk. U dient uw bezwaarschrift te richten aan het college van burgemeester en wethouders van de gemeente Land van Cuijk, Postbus 7, 5360 AA Grave.

Het indienen van een bezwaarschrift heeft geen schorsende werking. Om het besluit te schorsen dient u bij de voorzieningenrechter van de Rechtbank Oost-Brabant te ’s-Hertogenbosch een verzoek om voorlopige voorziening in te dienen. Het postadres van de rechtbank is: Rechtbank Oost-Brabant, sector bestuursrecht, postbus 90125, 5200 MA 's-Hertogenbosch.

Naar boven