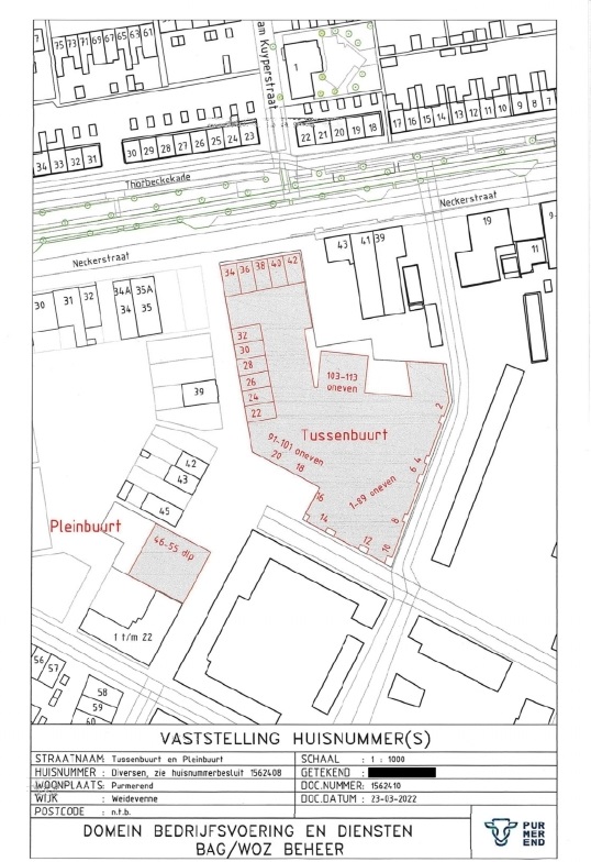
Kennisgeving huisnummerbesluit Pleinbuurt 46 t/m 55 doorlopend te Purmerend, Tussenbuurt 1 t/m 115 oneven te Purmerend, Tussenbuurt 1 t/m 42 even te Purmerend

Burgemeester en wethouders van de gemeente Purmerend,

gelet op artikel 6 van de Wet basisregistratie adressen en gebouwen, artikel 149 van de Gemeentewet en de Verordening naamgeving en nummering (adressen) Purmerend,

hebben op 23 maart 2022 met besluitnummer 1562409 het volgende besloten:

  • 1.

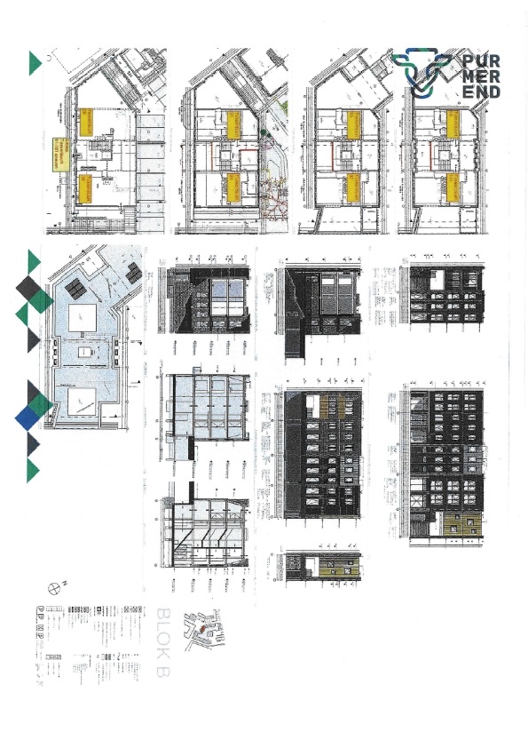
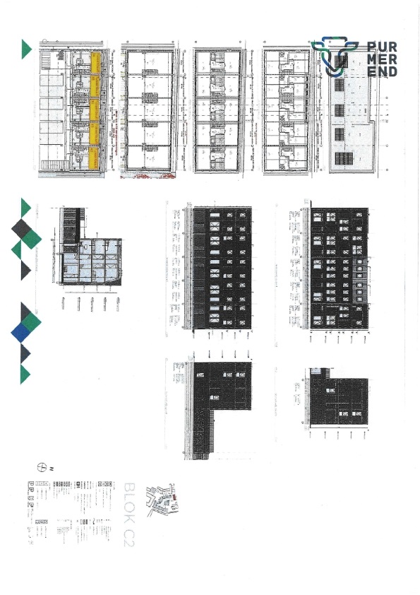
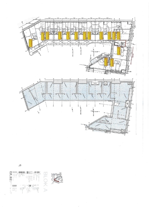
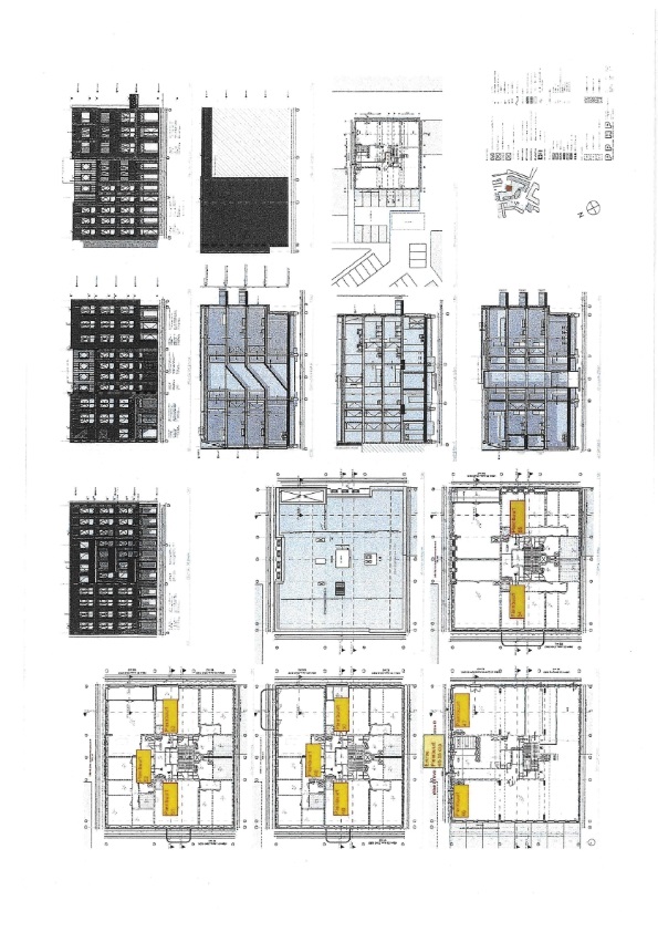
    Betreffende het oprichten van 31 koop- en 53 huurwoningen, alsmede een ruimte voor commerciële doeleinden en een parkeergarage over te gaan tot vaststelling van de volgende nummeraanduidingen:

     

    Vaststellen:

     

    • Pleinbuurt 46 t/m 55 doorlopend, te Purmerend

    • Tussenbuurt 1 t/m 115 oneven, te Purmerend

    • Tussenbuurt 2 t/m 42 even, te Purmerend

Aldus vastgesteld op 23 maart 2022,

de teammanager GEO

Bent u het niet eens met dit besluit?

Dan kunt u bezwaar maken. Als u dat van plan bent, neemt u dan eerst telefonisch contact met ons op. Misschien komen we samen tot een oplossing. Komen we er niet uit, dan kunt u binnen zes weken na de dag waarop het besluit is verzonden een bezwaarschrift indienen.

U kunt dat digitaal doen, dan heeft u een DigiD nodig. Of u schrijft een brief naar het team Juridische en Veiligheidszaken, Postbus 15, 1440 AA te Purmerend. Voor meer informatie zie: www.purmerend.nl/bezwaar.

In uw bezwaarschrift moet het volgende staan:

  • -

    uw naam, adres, telefoonnummer en/of e-mailadres;

  • -

    een duidelijke omschrijving van dit besluit;

  • -

    de reden waarom u bezwaar maakt;

  • -

    de datum en uw handtekening.

Dient iemand anders namens u een bezwaarschrift in? Stuurt u dan een volmacht mee. Op www.purmerend.nl/bezwaar vindt u een voorbeeld.

Naar boven