Verkeersbesluit algemene gehandicaptenparkeerplaats Wolga

Zaaknummer: Z22-021213

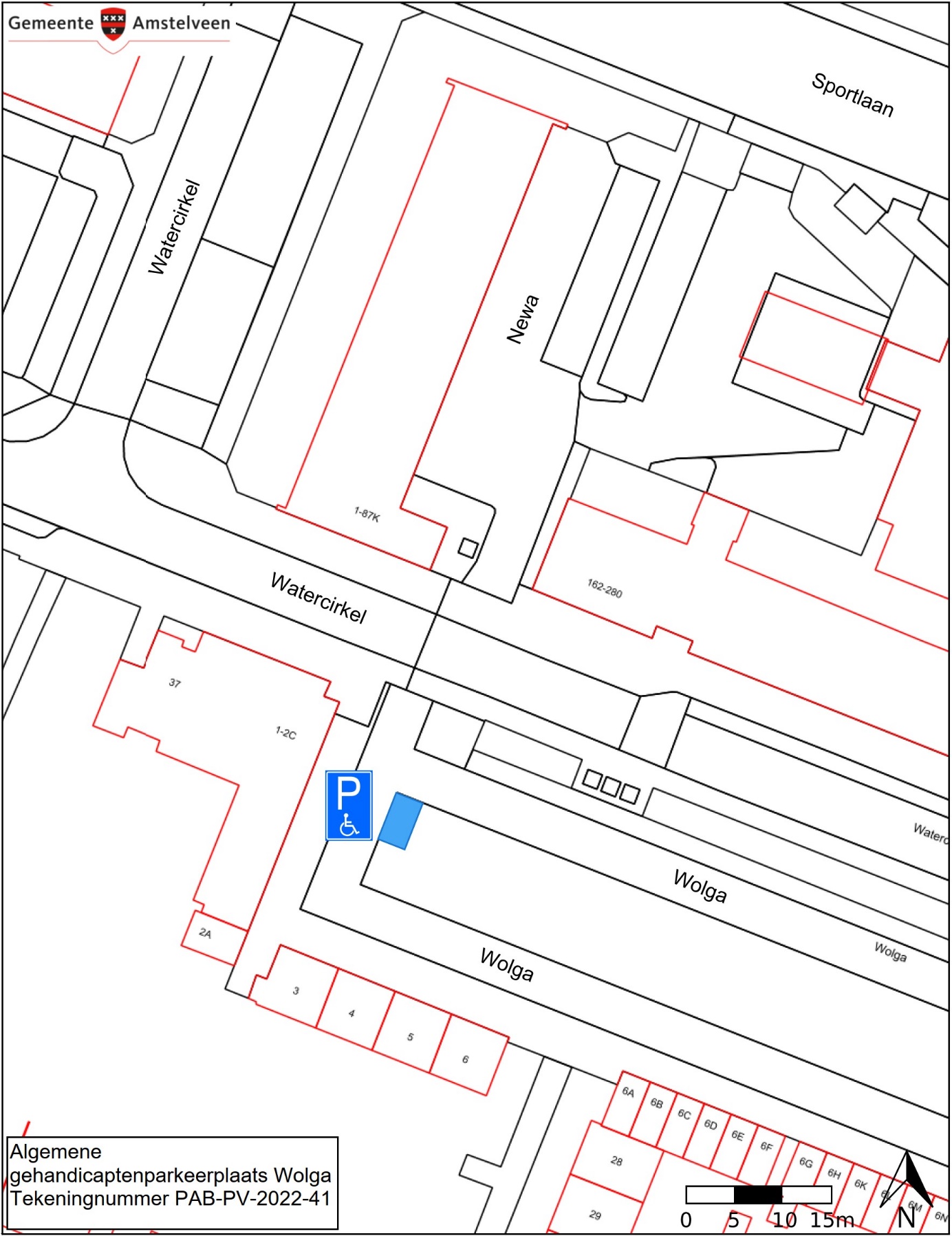
Burgemeester en wethouders van Amstelveen besluiten een gehandicaptenparkeerplaats aan te wijzen op het parkeerterrein in de straat Wolga, gelegen naast de apotheek.

Dit gebeurt door het plaatsen van borden E6 van bijlage 1 van het Reglement verkeersregels en verkeerstekens 1990 (RVV 1990), zoals aangegeven op tekening PAB-PV-2022-41.

Wettelijke grondslag

Het besluit is gebaseerd op:

  • de Wegenverkeerswet 1994 (WVW 1994);

  • het Reglement verkeersregels en verkeerstekens 1990 (RVV 1990);

  • het Besluit administratieve bepalingen inzake het wegverkeer (BABW).

Motivering

Het besluit strekt conform artikel 2 Wegenverkeerswet 1994 tot:

  • het verzekeren van de veiligheid op de weg (lid 1a);

  • het beschermen van weggebruikers en passagiers (lid 1b).

 

Het besluit wordt als volgt gemotiveerd:

 

Aangrenzend aan het parkeerterrein met straatnaam Wolga is een apotheek gevestigd. De apotheek wordt regelmatig bezocht door houders van een gehandicaptenparkeerkaart. Zij hebben in verband met hun loophandicap moeite om binnen aanvaardbare loopafstand een vrije parkeerplaats te vinden. Het is gewenst dat zij zo dicht mogelijk bij de ingang van de voorziening kunnen parkeren.

Bevoegd gezag

Verkeersbesluiten worden genomen door burgemeester en wethouders voor zover zij betreffen het verkeer op de wegen, welke niet in beheer zijn bij het Rijk, de provincie of een waterschap (artikel 18, lid 1, onder d, WVW 1994). Het mandaatbesluit van burgemeester en wethouders is van toepassing. Er is ondermandaat verleend aan de medewerker ontwerp en voorbereiding van de gemeente.

 

De straat Wolga ligt binnen de bebouwde kom en is in beheer bij de gemeente Amstelveen.

 

 

 

 

 

 

 

 

 

 

 

 

Tekening

Amstelveen, 23 maart 2022

Burgemeester en wethouders van de gemeente Amstelveen,

namens dezen,

R.A.C.M. Lommerse

Medewerker ontwerp en voorbereiding

Mogelijkheid tot het indienen van een bezwaarschrift

Tegen dit besluit kunnen belanghebbenden binnen zes weken na bekendmaking een bezwaarschrift indienen. Het bezwaarschrift moet worden ondertekend. Het bevat ten minste de naam en het adres van de indiener, de dagtekening, een omschrijving van het besluit waartegen het bezwaar is gericht en de gronden van het bezwaar. Zo mogelijk meldt u uw e-mailadres en het telefoonnummer waarop u overdag te bereiken bent.

Het bezwaarschrift richt u aan het College van burgemeester en wethouders, t.a.v. Juridische zaken, Postbus 4, 1180 BA Amstelveen.

Digitaal bezwaar maken is ook mogelijk. Dit kan via www.amstelveen.nl/bezwaarschrift. Hiervoor moet u wel over een elektronische handtekening (DigiD) beschikken.

 

Mogelijkheid tot het aanvragen van een voorlopige voorziening

Als u bezwaar maakt, geldt de beslissing nog wel. Wilt u dat het gemeentelijke besluit tijdens uw bezwaarprocedure tijdelijk wordt opgeschort? Dien dan een verzoek om voorlopige voorziening in bij de voorzieningenrechter van de rechtbank. Als de voorzieningenrechter uw verzoek toekent, is het besluit opgeschort.

Een verzoek dient u in bij de Voorzieningenrechter van de Rechtbank Amsterdam, Postbus 75850, 1070 AW Amsterdam. Aan het verzoek zijn kosten verbonden.

Naar boven