Besluit op omgevingsvergunning regulier, Tarwe 10, 6091PS Leveroy

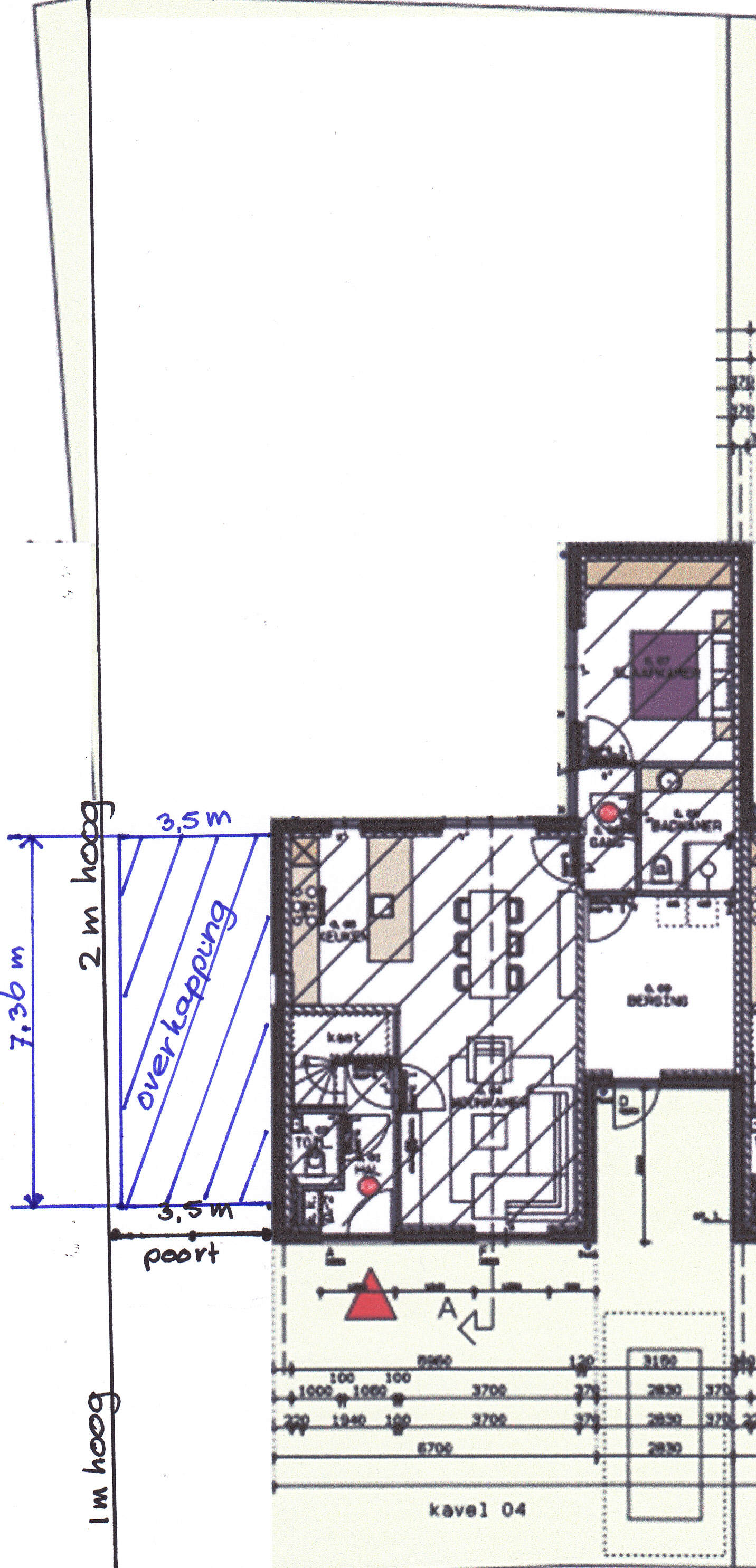
Betreft: plaatsen van een overkapping en een erfafscheiding

Locatie: Tarwe 10, 6091PS Leveroy

Datum besluit:16 december 2021

Startdatum bezwaartermijn:21 december 2021

Kenmerk:2021-022186

Het besluit gaat over de activiteit(en):

  • bouwen van een nieuw bouwwerk

U kunt deze stukken op afspraak inzien. Voor meer informatie kunt u contact opnemen met de gemeente Nederweert via info@nederweert.nl of telefoonnummer 0495-677111. Het besluit en bijbehorende stukken vindt u ook als bijlage bij deze publicatie.

Niet eens met het besluit?

Bent u het met dit besluit niet eens, dan kunt u (als u belanghebbende bent) hiertegen bezwaar maken. Uw bezwaarschrift stuurt u naar het college van burgemeester en wethouders van de gemeente Nederweert, Postbus 2728, 6030 AA Nederweert.

In het bezwaarschrift schrijft u tegen welk besluit u bezwaar maakt en waarom u het niet eens bent met ons besluit. Denkt u er aan dat u het bezwaarschrift ondertekent en dat u uw naam en adres vermeldt. Een bezwaarschrift moet binnen 6 weken na de startdatum bezwaartermijn worden ingediend.

Als u bezwaar maakt, treedt het besluit toch in werking. Als er spoedeisende redenen / belangen zijn die maken dat het besluit niet in werking mag treden, dan kunt u om een tijdelijke maatregel bij de rechter vragen. De rechter beoordeelt dan of er redenen zijn om het besluit (voorlopig) niet in werking te laten treden. Zo'n beoordeling van de rechter over het in werking treden van een besluit, heet een voorlopige voorziening. Alle informatie hierover kunt u krijgen via de griffie van de rechtbank Limburg.

Een voorlopige voorziening vragen is niet gratis. De griffie van de rechtbank kan u informeren over de kosten.

Het college van Burgemeester en Wethouders van Nederweert.

Naar boven