Gemeenteblad van Waalwijk
| Datum publicatie | Organisatie | Jaargang en nummer | Rubriek |
|---|---|---|---|
| Waalwijk | Gemeenteblad 2021, 405884 | verkeersbesluit of -mededeling |
Zoals vergunningen, bouwplannen en lokale regelgeving.
Adressen en contactpersonen van overheidsorganisaties.
U bent hier:
| Datum publicatie | Organisatie | Jaargang en nummer | Rubriek |
|---|---|---|---|
| Waalwijk | Gemeenteblad 2021, 405884 | verkeersbesluit of -mededeling |
Gemeente Waalwijk – Sprang-Capelle – Kievit - oplaadpaal
gelet op artikel 18, lid 1, sub d van de Wegenverkeerswet 1994;
gelet op het Mandaatregister gemeente Waalwijk 2020, behorende bij het Mandaatbesluit gemeente Waalwijk 2019, waarbij het college de bevoegdheid tot het nemen van verkeersbesluiten heeft gemandateerd aan de manager van het Team Ontwerp Openbare Ruimte;
gelet op de Wegenverkeerswet, het Besluit Administratieve Bepalingen inzake het Wegverkeer (BABW), het Reglement verkeersregels en verkeerstekens 1990, de Algemene wet bestuursrecht, het Mobiliteitsplan Waalwijk (2015);
dat het gewenst is dat op diverse plaatsen in de gemeente Waalwijk oplaadpunten voor elektrisch aangedreven voertuigen worden ingericht;
dat het gebruik van elektrisch aangedreven vervoermiddelen een bijdrage levert aan het verbeteren van het milieu door vermindering van schadelijke uitstoot van verbrandingsgassen en door een lagere geluidsproductie;
dat dit voor de gemeente een reden is om voor elektrisch aangedreven voertuigen een faciliterend en stimulerend beleid te voeren;
dat het gewenst is dat de oplaadpunten uitsluitend mogen worden gebruikt door voertuigen die daadwerkelijk worden opgeladen en dat voor andere weggebruikers ter plaatse een parkeerverbod geldt;
dat het bord E4 met onderbord met de tekst “opladen elektrische voertuigen” hierin voorziet;
dat een gebruiker van een elektrisch aangedreven auto, welke woonachtig is aan de Ekster te Sprang-Capelle, een verzoek tot het plaatsen van een oplaadpaal heeft ingediend;
dat deze aanvrager geen laadvoorziening op eigen terrein kan realiseren;
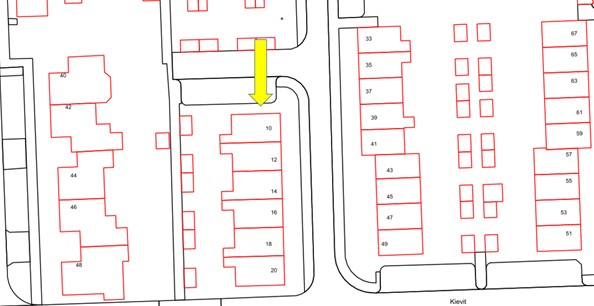
dat de gemeente de locatie naast de woning aan de Kievit 10 als geschikt heeft beoordeeld voor het plaatsen van een openbare oplaadpaal;
dat met 1 laadpaal tegelijkertijd 2 elektrische voertuigen kunnen worden opgeladen, wat wordt aangegeven met onderbord OB504;
dat het aantal oplaadpunten binnen de gemeente de komende jaren verder wordt uitgebreid;
dat naast de woning aan de Kievit 10 een parkeerstrook aanwezig is waar haaks op de as van de rijweg wordt geparkeerd;
dat uit parkeeronderzoek, uitgevoerd op 24 januari en 14 maart 2019 en 23 april 2021, blijkt dat in de Kievit in de nachtelijke uren de bezettingsgraad ligt op 94% (1 parkeerplaatsen onbezet) van de aanwezige 16 parkeerplaatsen;
dat uit ditzelfde parkeeronderzoek blijkt dat als de omliggende straten hierbij worden betrokken de bezettingsgraden uitkomen op 64, 71 en 82% (26, 21 en 13 onbezet) van de in totaal aanwezige 72 parkeerplaatsen;
dat gelet op de geconstateerde parkeerdruk vooralsnog wordt volstaan met het daadwerkelijk inrichten van 1 oplaadplaats en dat pas over wordt gegaan tot het fysiek inrichten van de 2de op het moment dat daar behoefte aan bestaat.
dat, ter verduidelijking voor de weggebruikers, conform de richtlijnen van het C.R.O.W., het parkeervak wordt ingericht als gereserveerd parkeervak waarbij in het parkeervak een diagonaal kruis wordt aangebracht;
dat voor het gebruik van de parkeerplaatsen aan de Kievit geen belasting hoeft te worden betaald;
dat de in dit verkeersbesluit opgenomen verkeersmaatregelen worden genomen om de bruikbaarheid van de weg en de vrijheid van het verkeer (zoveel als mogelijk is) te waarborgen en een doelmatig of zuinig energiegebruik te bevorderen;
dat overeenkomstig artikel 24 van het BABW, overleg is gevoerd met de hiertoe door de Korpschef gemandateerde verkeersadviseur van de politie-eenheid Zeeland-West-Brabant;
dat handelen in strijd met de verkeerstekens, zoals deze in dit verkeersbesluit zijn genoemd, handhaafbaar is als strafbaar feit en sanctioneerbaar op grond van hun strafbaarstelling als Muldergedraging;
dat handhaving door de Politie plaatsvindt in het kader van routinematige activiteiten
en onder de door de Procureurs-Generaal gestelde voorwaarden. Gelet op de
prioritering van de politietaken kan de handhaving ook plaatsvinden door de
buitengewoon opsporingsambtenaren van de gemeente (BOA's) die daartoe bevoegd zijn;
dat uit het door de Politie ingestelde onderzoek geen redenen bekend geworden zijn die de schriftelijke bekrachtiging van het voorgenomen verkeersbesluit in de weg zouden staan;
dat derhalve de Politie akkoord is met het te nemen besluit;
dat alle in dit verkeersbesluit genoemde wegen binnen de bebouwde kom zijn gelegen en in beheer en onderhoud zijn bij de gemeente Waalwijk.
onder verwijzing naar bijgevoegd kaartfragment:
de 2 meest oostelijk gelegen parkeerplaatsen van de parkeerstrook welke is gelegen ter hoogte van de woning Kievit 10 te Sprang-Capelle, aan te wijzen als oplaadplaatsen voor elektrische auto’s door het plaatsen van bord E4 (parkeergelegenheid), met onderbord OB504 en een bord met de tekst “opladen elektrische voertuigen”;
de manager van het Team Ontwerp Openbare Ruimte,
Het in dit besluit genoemde bord staat vermeld in bijlage I van het Reglement Verkeersregels en Verkeerstekens 1990.
Bezwaar en voorlopige voorziening
Is dit besluit onduidelijk of heeft u er vragen over? Neem dan eerst contact met ons op. Dit kan voorkomen dat u een bezwaarschrift moet schrijven. Komen we er niet uit, dan kunt u alsnog bezwaar maken.
Belanghebbenden kunnen binnen 6 weken, gerekend vanaf de eerste dag na de officiële bekendmaking, bij ons een bezwaarschrift indienen. Meer hierover leest u op www.waalwijk.nl/bezwaar.
Kopieer de link naar uw clipboard
https://zoek.officielebekendmakingen.nl/gmb-2021-405884.html
De hier aangeboden pdf-bestanden van het Staatsblad, Staatscourant, Tractatenblad, provinciaal blad, gemeenteblad, waterschapsblad en blad gemeenschappelijke regeling vormen de formele bekendmakingen in de zin van de Bekendmakingswet en de Rijkswet goedkeuring en bekendmaking verdragen voor zover ze na 1 juli 2009 zijn uitgegeven. Voor pdf-publicaties van vóór deze datum geldt dat alleen de in papieren vorm uitgegeven bladen formele status hebben; de hier aangeboden elektronische versies daarvan worden bij wijze van service aangeboden.