Algemeen aanwijzingsbesluit Apv De Bilt 2021

Het college van burgemeester en wethouders van de gemeente De Bilt, voor zover zij daartoe bevoegd is, en;

 

De burgemeester van de gemeente De Bilt, voor zover hij daartoe bevoegd is;

 

Overwegende dat zij op grond van bepalingen van de Algemene plaatselijke verordening De Bilt 2020 (hierna: Apv) bevoegd zijn om;

  • a.

    openbare plaatsen of andere gebieden aan te wijzen waarbinnen, al dan niet met beperkingen, bepaalde verboden gelden;

  • b.

    categorieën van gevallen, openbare plaatsen of andere gebieden aan te wijzen waarbinnen bepaalde verboden, al dan niet met beperkingen, niet gelden;

  • c.

    nadere regels vast te stellen;

Gelet op de Algemene plaatselijke verordening De Bilt 2021

Besluiten:

 

Vast te stellen het Algemeen aanwijzingsbesluit Apv De Bilt 2021

Artikel 1: Definities

In dit besluit wordt verstaan onder:

  • -

    Directe nabijheid: een straal van 100 meter rondom een bepaalde locatie;

  • -

    Bebouwde kom(men): de gedeelten van de gemeente, gelegen binnen de grenzen van de bebouwde kom(men), zoals genoemd in artikel 1:1 sub a van de Apv.

Artikel 2: Gebiedsaanwijzing verbod verspreiden geschreven of gedrukte stukken of afbeeldingen

Artikel 2:6 Apv - Verspreiden van geschreven of gedrukte stukken of afbeeldingen

  • 1.

    Het is verboden gedrukte of geschreven stukken dan wel afbeeldingen onder publiek te verspreiden dan wel openlijk aan te bieden op door het college aangewezen openbare plaatsen.

  • 2.

    Het college kan het verbod beperken tot bepaalde dagen en uren.

  • 3.

    Het verbod is niet van toepassing op het huis-aan-huis verspreiden of het aan huis bezorgen van gedrukte of geschreven stukken en afbeeldingen.

  • 4.

    Het college kan ontheffing verlenen van het verbod.

  • 5.

    Op de ontheffing is paragraaf 4.1.3.3 van de Algemene wet bestuursrecht (positieve fictieve beschikking bij niet tijdig beslissen) van toepassing.

Ter uitvoering van het bepaalde in de artikelen 2:6 lid 1 van de Apv worden door het college de volgende openbare plaatsen aangewezen waar het verboden is om gedrukte of geschreven stukken of afbeeldingen onder publiek te verspreiden dan wel openlijk aan te bieden:

  • 1.

    winkelgebied Bilthoven Centrum en De Kwinkelier in Bilthoven, zoals aangegeven op kaart 1;

  • 2.

    winkelgebied Hessenweg/Looydijk in De Bilt, zoals aangegeven op kaart 2;

  • 3.

    winkelgebied Planetenbaan in Bilthoven, zoals aangegeven op kaart 3;

  • 4.

    winkelgebied Maertensplein in Maartensdijk, zoals aangegeven op kaart 4;

  • 5.

    winkelgebied “Het Oude Dorp” in De Bilt, zoals aangegeven op kaart 5;

  • 6.

    winkel(s) op de Donsvlinder in Bilthoven, zoals aangegeven op kaart 6;

  • 7.

    winkel(s) op de Leyenseweg in Bilthoven, zoals aangegeven op kaart 7;

  • 8.

    winkelgebied “Het Kleine Dorp” in Bilthoven, zoals aangegeven op kaart 8;

  • 9.

    winkel/bedrijvengebied “Leyenseweg” in Bilthoven, zoals aangegeven op kaart 22.

Artikel 3: Gebiedsaanwijzing verbod vertoningen op openbare plaatsen

Artikel 2:9 Apv Vertoningen op openbare plaatsen

  • 1.

    Het is verboden ten behoeve van publiek als straatartiest, straatmuzikant, straatfotograaf, tekenaar, filmoperateur of gids op te treden op door de burgemeester in het belang van de openbare orde, de openbare veiligheid, de volksgezondheid of het milieu aangewezen openbare plaatsen.

  • 2.

    Het is verboden op andere dan krachtens het eerste lid aangewezen wegen of plaatsen zonder ontheffing van de burgemeester als straatartiest of straatmuzikant op te treden.

  • 3.

    Het bepaalde in het tweede lid is niet van toepassing indien:

    • a.

      met ten hoogste zes personen wordt opgetreden;

    • b.

      geen draaiorgels en geluidversterkende apparatuur worden gebruikt;

    • c.

      het optreden niet langer duurt dan een half uur achtereen op dezelfde plaats en

    • d.

      het optreden niet plaatsvindt tussen 23.00 en 09.00 uur.

  • 4.

    Onder dezelfde plaats als bedoeld in het derde lid onder c wordt verstaan iedere plaats die ligt op minder dan 100 meter afstand van een plaats die eerder die dag door de betreffende straatartiest of straatmuzikant is ingenomen.

  • 5.

    Onder straatartiest en straatmuzikant worden mede verstaan groepen straatartiesten en straatmuzikanten.

  • 6.

    De burgemeester kan op daartoe aangewezen wegen of plaatsen beperkingen stellen aan het aantal optredens van straatartiesten of straatmuzikanten of aan het aantal straatartiesten en straatmuzikanten dat gelijktijdig optreedt. Hij kan daarbij onderscheid maken naar categorieën straatartiesten en straatmuzikanten.

  • 7.

    Het is verboden te handelen in strijd met een krachtens het zesde lid gegeven aanwijzing.

  • 8.

    Artikel 2.25 APV is van overeenkomstige toepassing.

Ter uitvoering van het bepaalde in de artikelen 2:9 lid 1 van de Apv wordt door de burgemeester het hele grondgebied van de gemeente, zoals aangegeven op kaart 21, aangewezen als gebied waar het, in het belang van de openbare orde, de openbare veiligheid, de volksgezondheid of het milieu, verboden is ten behoeve van publiek als straatartiest, straatmuzikant, straatfotograaf, tekenaar, filmoperateur of gids op te treden, m.u.v. de volgende winkelgebieden:

  • 1.

    winkelgebied Bilthoven Centrum en De Kwinkelier in Bilthoven, zoals aangegeven op kaart 1;

  • 2.

    winkelgebied Hessenweg/Looydijk in De Bilt, zoals aangegeven op kaart 2;

  • 3.

    winkelgebied Planetenbaan in Bilthoven, zoals aangegeven op kaart 3;

  • 4.

    winkelgebied Maertensplein in Maartensdijk, zoals aangegeven op kaart 4;

  • 5.

    winkelgebied “Het Oude Dorp” in De Bilt, zoals aangegeven op kaart 5;

  • 6.

    winkel(s) op de Donsvlinder in Bilthoven, zoals aangegeven op kaart 6;

  • 7.

    winkel(s) op de Leyenseweg in Bilthoven, zoals aangegeven op kaart 7;

  • 8.

    winkelgebied “Het Kleine Dorp” in Bilthoven, zoals aangegeven op kaart 8;

  • 9.

    winkel/bedrijvengebied “Leyenseweg” in Bilthoven, zoals aangegeven op kaart 22.

Ter uitvoering van het bepaalde in de artikelen 2:9 lid 2 van de Apv worden door de burgemeester de volgende openbare plaatsen aangewezen waar het, in het belang van de openbare orde, de openbare veiligheid, de volksgezondheid of het milieu, zonder ontheffing van de burgemeester, verboden is ten behoeve van publiek als straatartiest, straatfotograaf, tekenaar, filmoperateur of gids op te treden:

  • 1.

    winkelgebied Bilthoven Centrum en De Kwinkelier in Bilthoven, zoals aangegeven op kaart 1;

  • 2.

    winkelgebied Hessenweg/Looydijk in De Bilt, zoals aangegeven op kaart 2;

  • 3.

    winkelgebied Planetenbaan in Bilthoven, zoals aangegeven op kaart 3;

  • 4.

    winkelgebied Maertensplein in Maartensdijk, zoals aangegeven op kaart 4;

  • 5.

    winkelgebied “Het Oude Dorp” in De Bilt, zoals aangegeven op kaart 5;

  • 6.

    winkel(s) op de Donsvlinder in Bilthoven, zoals aangegeven op kaart 6;

  • 7.

    winkel(s) op de Leyenseweg in Bilthoven, zoals aangegeven op kaart 7;

  • 8.

    inkelgebied “Het Kleine Dorp” in Bilthoven, zoals aangegeven op kaart 8;

  • 9.

    Winkel/bedrijvengebied “Leyenseweg” in Bilthoven, zoals aangegeven op kaart 22.

Ter uitvoering van het bepaalde in de artikelen 2:9 lid 6 van de Apv worden door de burgemeester, in het belang van de openbare orde, de openbare veiligheid, de volksgezondheid of het milieu, de navolgende beperkingen gesteld ten aanzien van het aantal optredens van straatartiesten of straatmuzikanten of aan het aantal straatartiesten en straatmuzikanten dat gelijktijdig optreedt.

  • 1.

    er mag per gebied maximaal één optreden (in welke vorm dan ook) tegelijkertijd plaats vinden door een individuele straatartiest/straatmuzikant of door groepen van straatartiesten/ straatmuzikanten;

  • 2.

    er mogen maximaal 3 optredens per dag plaatsvinden door één individuele straatartiest/ straatmuzikant of door groepen van straatartiesten/straatmuzikanten op eenzelfde plaats (zoals gedefinieerd in artikel 2:9, lid 4 van de Apv) binnen de toegestane uren, als bedoeld in artikel 2:9, lid 3 onder d van de Apv.

Artikel 4: Gebiedsaanwijzing verboden drankgebruik

Artikel 2:48 Apv - Verboden drankgebruik

  • 1.

    Het is voor personen die de leeftijd van achttien jaren hebben bereikt verboden op een openbare plaats die deel uitmaakt van een door het college aangewezen gebied, alcoholhoudende drank te gebruiken of aangebroken flessen, blikjes en dergelijke met alcoholhoudende drank bij zich te hebben.

  • 2.

    Het verbod is niet van toepassing op:

    • a.

      een terras dat behoort bij een horecabedrijf als bedoeld in artikel 1 van de Drank- en Horecawet;

    • b.

      een andere plaats dan een horecabedrijf als bedoeld onder a, waarvoor een ontheffing geldt krachtens artikel 35 van de Drank- en Horecawet

Ter uitvoering van het bepaalde in artikel 2:48 lid 1 van de Apv worden door het college de volgende gebieden aangewezen waar het verboden is alcoholhoudende drank te nuttigen of aangebroken flessen, blikjes en dergelijke met alcoholhoudende drank bij zich te hebben:

  • 1.

    winkelgebied Bilthoven Centrum en De Kwinkelier in Bilthoven, zoals aangegeven op kaart 1;

  • 2.

    winkelgebied Hessenweg/Looydijk in De Bilt, zoals aangegeven op kaart 2;

  • 3.

    winkelgebied Maertensplein in Maartensdijk, zoals aangegeven op kaart 4;

  • 4.

    winkelgebied “Het Oude Dorp” in De Bilt, zoals aangegeven op kaart 5;

  • 5.

    het gebied tussen de Hessenweg, Looydijk, Akker en de Henrica van Erpweg in De Bilt, zoals aangegeven op kaart 9;

  • 6.

    het gedeelte van de Dwarsweg tussen de manege en de Kees Boekelaan, het gedeelte van de Kees Boekelaan tussen de Dwarsweg en het Racketcentrum, het gedeelte van de Jan Steenlaan tussen de Jan van Eijcklaan en de Kees Boekelaan ter hoogte van de Werkplaats Kindergemeenschap en de Donsvlinder ter hoogte van de aldaar gelegen winkel tot de Kees Boekelaan ter hoogte van de Werkplaats Kindergemeenschap in Bilthoven, zoals aangegeven op kaart 10;

  • 7.

    winkelgebied Planetenbaan met inbegrip van de omgeving van het gebouw het Lichtruim in Bilthoven zoals aangegeven op kaart 11;

  • 8.

    winkel/bedrijvengebied “Leyenseweg” in Bilthoven, zoals aangegeven op kaart 22;

  • 9.

    in de directe nabijheid van alle schoolpleinen in de gemeente De Bilt;

  • 10.

    in de directe nabijheid van alle speelplaatsen in de gemeente De Bilt.

Artikel 5: Gebiedsaanwijzing verboden neerzetten van fietsen of bromfietsen

Artikel 2:51 Apv - Neerzetten van fietsen of bromfietsen

  • 1.

    Het is verboden een fiets, bromfiets of vergelijkbaar vervoermiddel, al dan niet voor onmiddellijk gebruik geschikt, te parkeren als daardoor:

    • a.

      op een voetpad of trottoir de doorgang wordt gehinderd of belemmerd;

    • b.

      de veiligheid of de doorstroming van of het uitzicht voor het verkeer wordt gehinderd;

    • c.

      op of aan een openbare plaats hinder, overlast of schade ontstaat of

    • d.

      voor een bewoner of gebruiker van het gebouw waartegen of waarvoor de fiets, bromfiets of vergelijkbaar vervoermiddel staat geparkeerd de doorgang of het uitzicht wordt belemmerd.

  • 2.

    Het is verboden een fiets, bromfiets of vergelijkbaar vervoermiddel, al of niet voor onmiddellijk gebruik geschikt, zonder wezenlijke tijdsonderbreking te parkeren op of aan een openbare plaats dan wel in of buiten de openbare fietsparkeervoorzieningen in door het college aangewezen gebieden en langer dan een door het college te bepalen periode.

Ter uitvoering van het bepaalde in artikel 2:51, lid 1 van de Apv worden door het college de volgende gebieden aangewezen waar het verboden is fietsen of bromfietsen onbeheerd buiten de daarvoor bestemde ruimten of plaatsen te laten staan:

  • 1.

    winkelgebied Bilthoven Centrum en De Kwinkelier in Bilthoven, zoals aangegeven op kaart 1;

  • 2.

    winkelgebied Hessenweg/Looydijk in De Bilt, zoals aangegeven op kaart 2;

  • 3.

    winkelgebied Planetenbaan in Bilthoven, zoals aangegeven op kaart 3;

  • 4.

    winkelgebied Maertensplein in Maartensdijk, zoals aangegeven op kaart 4;

  • 5.

    winkelgebied “Het Oude Dorp” in De Bilt, zoals aangegeven op kaart 5;

  • 6.

    winkel(s) op de Donsvlinder in Bilthoven, zoals aangegeven op kaart 6;

  • 7.

    winkel(s) op de Leyenseweg in Bilthoven, zoals aangegeven op kaart 7;

  • 8.

    winkelgebied “Het Kleine Dorp” in Bilthoven, zoals aangegeven op kaart 8;

  • 9.

    het gebied van N.S. Station Bilthoven met omliggende straten, zoals aangegeven op kaart 12;

  • 10.

    winkel/bedrijvengebied “Leyenseweg” in Bilthoven, zoals aangegeven op kaart 22;

  • 11.

    het gebied rond en in de fietstunnel gelegen onder de Utrechtseweg tussen Kapelweg en Oude Bunnikseweg zoals aangegeven op kaart 23.

Artikel 6: Gebiedsaanwijzing verbod overlast van fiets of bromfiets op markt en kermisterrein en dergelijke

Artikel 2:52 Apv - Overlast van fiets of bromfiets op markt en kermisterrein en dergelijke

Het is verboden zich op of door het college of de burgemeester aangewezen uren en plaatsen met een fiets of bromfiets te bevinden op een door het college of de burgemeester aangewezen terrein waar een markt, kermis, uitvoering, bijeenkomst of plechtigheid wordt gehouden die publiek trekt, mits dit verbod kenbaar is aan de bezoekers van het terrein.

Ter uitvoering van het bepaalde in artikel 2:52 van de Apv worden door de burgemeester en het college, ieder voor zover het hun bevoegdheid betreft, de volgende plaatsen en uren aangewezen waar het verboden is zich met een fiets of bromfiets te bevinden op het moment dat daar een markt, kermis, uitvoering, bijeenkomst of plechtigheid wordt gehouden die publiek trekt:

  • 1.

    de weekmarkt op vrijdag, gehouden op de Planetenbaan in Bilthoven;

  • 2.

    locaties waarvoor op grond van artikel 2:25 van de Apv een evenementenvergunning is verleend.

Artikel 7: Gebiedsaanwijzing verbod loslopende honden

Artikel 2:57 Apv - Loslopende honden

  • 1.

    Het is de eigenaar of houder van een hond verboden die hond te laten verblijven of te laten lopen:

    • a.

      op een voor het publiek toegankelijke en kennelijk als zodanig ingerichte kinderspeelplaats, zandbak of speelweide of op een andere door het college aangewezen plaats;

    • b.

      binnen de bebouwde kom op de weg indien de hond niet is aangelijnd;

    • c.

      buiten de bebouwde kom op een door het college aangewezen plaats indien de hond niet is aangelijnd; of

    • d.

      op de weg indien die hond niet is voorzien van een halsband of een ander identificatiemerk dat de eigenaar of houder duidelijk doet kennen.

  • 2.

    Het eerste lid, aanhef en onder b, is niet van toepassing op door het college aangewezen plaatsen.

  • 3.

    Het eerste lid aanhef en onder a tot en met c, is niet van toepassing op de eigenaar of houder van een hond die zich vanwege zijn handicap door een geleidehond of sociale hulphond laat begeleiden of die deze hond aantoonbaar gekwalificeerd opleidt tot geleidehond of sociale hulphond.

Ter uitvoering van het bepaalde in artikel 2:57, tweede lid, van de Apv, wordt aangewezen als plaatsen waar het is toegestaan dat honden niet aangelijnd kunnen rondlopen:

  • 1.

    het gebied in de nabijheid van de ijsbaan aan de Soestdijkseweg-Zuid in De Bilt, zoals aangegeven op kaart 13;

  • 2.

    het Heidepark in Bilthoven, zoals aangegeven op kaart 14;

  • 3.

    de groenstrook achter de flats aan de Kometenlaan in Bilthoven, zoals aangegeven op kaart 15;

  • 4.

    het Leyensebos gelegen tussen de Berlagelaan, het Leyensepad, het 2e bospad gerekend vanaf en parallel lopend aan de Berlagelaan en de Dwarsweg in Bilthoven, zoals aangegeven op kaart 16;

  • 5.

    in Maartensdijk achter de sportvelden en het Groenhorstcollege (parallel aan de A27), zoals aangegeven op kaart 17.

Artikel 8 Verontreiniging door dieren

Artikel 2:58 Apv - Verontreiniging door dieren

  • 1.

    Degene die zich met een dier op een openbare plaats begeeft is verplicht ervoor te zorgen dat de uitwerpselen van dat dier onmiddellijk worden verwijderd.

  • 2.

    Het eerste lid is niet van toepassing op de eigenaar of houder van een hond

    • a.

      die zich vanwege zijn handicap door een geleidehond of sociale hulphond laat begeleiden; of

    • b.

      die deze hond aantoonbaar gekwalificeerd opleidt tot geleidehond of sociale hulphond.

  • 3.

    Het eerste lid is niet van toepassing op door het college aangewezen plaatsen.

Ter uitvoering van het bepaalde in artikel 2:58, lid 3, van de Apv worden als openbare plaatsen aangewezen waar de verplichting niet geldt tot het onmiddellijk verwijderen van uitwerpselen van dieren, voor zover het een hond betreft (losloopgebieden):

  • 1.

    het gebied in de nabijheid van de ijsbaan aan de Soestdijkseweg-Zuid in De Bilt, zoals aangegeven op kaart 13;

  • 2.

    het Heidepark in Bilthoven, zoals aangegeven op kaart 14;

  • 3.

    de groenstrook achter de flats aan de Kometenlaan in Bilthoven, zoals aangegeven op kaart 15;

  • 4.

    het Leyensebos gelegen tussen de Berlagelaan, het Leyensepad, het 2e bospad gerekend vanaf en parallel lopend aan de Berlagelaan en de Dwarsweg in Bilthoven, zoals aangegeven op kaart 16;

  • 5.

    in Maartensdijk achter de sportvelden en het Groenhorstcollege (parallel aan de A27), zoals aangegeven op kaart 17.

Artikel 9 Bedelarij

Artikel 2:65 Apv - Bedelarij

Het is verboden in door het college aangewezen gebieden op of aan de weg of in een voor het publiek toegankelijk gebouw te bedelen om geld of andere zaken.

Ter uitvoering van het bepaalde in artikel 2:65 van de APV wordt door het college het hele grondgebied van de gemeente, zoals aangegeven op kaart 21, aangewezen als gebied waar het verboden is om te bedelen om geld of andere zaken.

Artikel 10 Te koop aanbieden van voertuigen

Artikel 5:3 Apv - Te koop aanbieden van voertuigen

  • 1.

    Het is verboden op een door het college aangewezen weg een voertuig te parkeren met het kennelijke doel het te koop aan te bieden of te verhandelen.

  • 2.

    Het college kan ontheffing verlenen van het verbod.

  • 3.

    Op de ontheffing is paragraaf 4.1.3.3 van de Algemene wet bestuursrecht (positieve fictieve beschikking bij niet tijdig beslissen) niet van toepassing.

Ter uitvoering van het bepaalde in artikel 5:3 lid 1 van de Apv alle wegen en weggedeelten binnen alle bebouwde kommen van de gemeente De Bilt, zoals weergegeven op kaart 21 en daarbij behorende deelkaarten, met uitzondering van die weggedeelten die op de terreinen van automobielbedrijven zijn gelegen, aan te wijzen als gebied waar een voertuig niet mag worden geparkeerd met het kennelijk doel het te koop aan te bieden of te verhandelen.

Artikel 11 Gebiedsaanwijzing verbod parkeren van grote voertuigen

Artikel 5:8 Apv - Grote voertuigen

  • 1.

    Het is verboden een voertuig dat, met inbegrip van de lading, een lengte heeft van meer dan 6 meter of een hoogte van meer dan 2,4 meter te parkeren op een door het college aangewezen plaats, waar dit naar zijn oordeel schadelijk is voor het uiterlijk aanzien van de gemeente.

  • 2.

    Het is verboden een voertuig dat, met inbegrip van de lading, een lengte heeft van meer dan 6 meter te parkeren op een door het college aangewezen weg, waar dit naar zijn oordeel buitensporig is met het oog op de verdeling van beschikbare parkeerruimte.

  • 3.

    Het eerste en tweede lid zijn niet van toepassing op campers, kampeerauto’s, caravans en kampeerwagens, voor zover deze voertuigen niet langer dan drie achtereenvolgende dagen op de weg worden geplaatst of gehouden.

  • 4.

    Het tweede lid is voorts niet van toepassing op werkdagen van maandag tot en met vrijdag, dagelijks van 08.00 tot 18.00 uur.

  • 5.

    Het college kan ontheffing verlenen van de verboden.

  • 6.

    Op de ontheffing is paragraaf 4.1.3.3 van de Algemene wet bestuursrecht (positieve fictieve beschikking bij niet tijdig beslissen) van toepassing.

Ter uitvoering van het bepaalde in artikel 5:8, eerste lid, van de APV worden alle bebouwde kommen van de gemeente, zoals weergegeven op kaart 21 en daarbij behorende deelkaarten, aangewezen als plaats waar het parkeren als schadelijk voor het uiterlijk aanzien wordt aangemerkt.

Ter uitvoering van het bepaalde in artikel 5:8, tweede lid, van de Apv worden alle wegen in de gemeente aangewezen waar het buitensporig is grote voertuigen te parkeren, met uitzondering van:

  • 1.

    de Parkeerstrook Nachtegaallaan in Maartensdijk, tussen de Dorpsweg en de Merellaan, zoals aangegeven op kaart 18;

  • 2.

    de Dorpsweg in Maartensdijk onder viaduct A27, zoals aangegeven op kaart 19;

  • 3.

    de Rembrandtlaan in Bilthoven, zoals aangegeven op kaart 20.

Artikel 12 Overlast van fietsen of bromfietsen

Artikel 5:12 Apv - Overlast van fietsen of bromfietsen

  • 1.

    Het is verboden op door het college in het belang van het uiterlijk aanzien van de gemeente, ter voorkoming of opheffing van overlast of ter voorkoming van schade aan de openbare gezondheid aangewezen plaatsen fietsen of bromfietsen onbeheerd buiten de daarvoor bestemde ruimten of plaatsen te laten staan.

  • 2.

    Het is verboden op in door het college in het belang van het beheer van de openbare ruimte aangewezen plaatsen een fiets of bromfiets langer dan een door het college te bepalen periode onafgebroken te stallen.

Ter uitvoering van het bepaalde in artikel 5:12, eerste lid, van de APV worden door het college de volgende gebieden aangewezen waar het verboden is fietsen of bromfietsen onbeheerd buiten de daarvoor bestemde ruimten of plaatsen te laten staan:

  • 1.

    winkelgebied Bilthoven Centrum en De Kwinkelier in Bilthoven, zoals aangegeven op kaart 1;

  • 2.

    winkelgebied Hessenweg/Looydijk in De Bilt, zoals aangegeven op kaart 2;

  • 3.

    winkelgebied Planetenbaan in Bilthoven, zoals aangegeven op kaart 3;

  • 4.

    winkelgebied Maertensplein in Maartensdijk, zoals aangegeven op kaart 4;

  • 5.

    winkelgebied “Het Oude Dorp” in De Bilt, zoals aangegeven op kaart 5;

  • 6.

    winkel(s) op de Donsvlinder in Bilthoven, zoals aangegeven op kaart 6;

  • 7.

    winkel(s) op de Leyenseweg in Bilthoven, zoals aangegeven op kaart 7;

  • 8.

    winkelgebied “Het Kleine Dorp” in Bilthoven, zoals aangegeven op kaart 8;

  • 9.

    het gebied van N.S. Station Bilthoven met omliggende straten, zoals aangegeven op kaart 12;

  • 10.

    winkel/bedrijvengebied “Leyenseweg” in Bilthoven, zoals aangegeven op kaart 22;

  • 11.

    het gebied rond en in de fietstunnel gelegen onder de Utrechtseweg tussen Kapelweg en Oude Bunnikseweg zoals aangegeven op kaart 23.

Ter uitvoering van het bepaalde in artikel 5:12, tweede lid, van de APV worden door het college de volgende gebieden aangewezen waar het verboden is fietsen of bromfietsen langer dan zeven dagen onafgebroken te stallen:

  • 1.

    winkelgebied Bilthoven Centrum en De Kwinkelier in Bilthoven, zoals aangegeven op kaart 1;

  • 2.

    winkelgebied Hessenweg/Looydijk in De Bilt, zoals aangegeven op kaart 2;

  • 3.

    winkelgebied Planetenbaan in Bilthoven, zoals aangegeven op kaart 3;

  • 4.

    winkelgebied Maertensplein in Maartensdijk, zoals aangegeven op kaart 4;

  • 5.

    winkelgebied “Het Oude Dorp” in De Bilt, zoals aangegeven op kaart 5;

  • 6.

    winkel(s) op de Donsvlinder in Bilthoven, zoals aangegeven op kaart 6;

  • 7.

    winkel(s) op de Leyenseweg in Bilthoven, zoals aangegeven op kaart 7;

  • 8.

    winkelgebied “Het Kleine Dorp” in Bilthoven, zoals aangegeven op kaart 8;

  • 9.

    het gebied van N.S. Station Bilthoven met omliggende straten, zoals aangegeven op kaart 12;

  • 10.

    winkel/bedrijvengebied “Leyenseweg” in Bilthoven, zoals aangegeven op kaart 22;

  • 11.

    het gebied rond en in de fietstunnel gelegen onder de Utrechtseweg tussen Kapelweg en Oude Bunnikseweg zoals aangegeven op kaart 23.

Artikel 13 Slotbepalingen

  • 1.

    Dit besluit wordt aangehaald als: Algemeen Aanwijzingsbesluit Apv De Bilt 2021.

  • 2.

    Dit besluit treedt in werking op de dag na bekendmaking.

  • 3.

    Tegelijkertijd met de inwerkingtreding van dit besluit worden alle eerder genomen aanwijzingsbesluiten op grond van eerdere versies van de Algemene plaatselijke verordening De Bilt ingetrokken.

     

Aldus vastgesteld in de vergadering van het college van burgemeester en wethouders van De Bilt op 25 mei 2021.

de secretaris,

mr. R. van Netten

de burgemeester,

mr. S.C.C.M. Potters

Aldus vastgesteld door de burgemeester van De Bilt op 25 mei 2021.

de burgemeester,

mr. S.C.C.M. Potters

Kaart 1

Algemeen aanwijzingsbesluit Apv De Bilt 2020

winkelgebied Bilthoven Centrum en De Kwinkelier in Bilthoven

 

Van toepassing zijn:

 

APV artikel 2:48, lid 1 (verboden alcoholgebruik)

APV artikel 2:51, lid 1 (neerzetten van fietsen en bromfietsen)

APV artikel 2:6, lid 1 (verspreiden van geschreven of gedrukte stukken of afbeeldingen)

APV artikel 2:9, lid 1 en lid 2 (vertoningen op openbare plaatsen)

APV artikel 5:12 (overlast fietsen en bromfietsen)

Kaart 2

Algemeen aanwijzingsbesluit Apv De Bilt 2020

winkelgebied Hessenweg / Looydijk in De Bilt

 

Van toepassing zijn:

 

APV artikel 2:48, lid 1 (verboden alcoholgebruik)

APV artikel 2:51, lid 1 (neerzetten van fietsen en bromfietsen)

APV artikel 2:6, lid 1 (verspreiden van geschreven of gedrukte stukken of afbeeldingen)

APV artikel 2:9, lid 1 en lid 2 (vertoningen op openbare plaatsen)

APV artikel 5:12 (overlast fietsen en bromfietsen)

Kaart 3

Algemeen aanwijzingsbesluit Apv De Bilt 2020

winkelgebied Planetenbaan in Bilthoven

 

Van toepassing zijn:

 

APV artikel 2:51, lid 1 (neerzetten van fietsen en bromfietsen)

APV artikel 2:6, lid 1 (verspreiden van geschreven of gedrukte stukken of afbeeldingen)

APV artikel 2:9, lid 1 en lid 2 (vertoningen op openbare plaatsen)

APV artikel 5:12 (overlast fietsen en bromfietsen)

Kaart 4

Algemeen aanwijzingsbesluit Apv De Bilt 2020

winkelgebied Maertensplein in Maartensdijk

 

Van toepassing zijn:

 

APV artikel 2:48, lid 1 (verboden alcoholgebruik)

APV artikel 2:51, lid 1 (neerzetten van fietsen en bromfietsen)

APV artikel 2:6, lid 1 (verspreiden van geschreven of gedrukte stukken of afbeeldingen)

APV artikel 2:9, lid 1 en lid 2 (vertoningen op openbare plaatsen)

APV artikel 5:12 (overlast fietsen en bromfietsen)

Kaart 5

Algemeen aanwijzingsbesluit Apv De Bilt 2020

winkelgebied “Het Oude Dorp” in De Bilt

 

Van toepassing zijn:

 

APV artikel 2:48, lid 1 (verboden alcoholgebruik)

APV artikel 2:51, lid 1 (neerzetten van fietsen en bromfietsen)

APV artikel 2:6, lid 1 (verspreiden van geschreven of gedrukte stukken of afbeeldingen)

APV artikel 2:9, lid 1 en lid 2 (vertoningen op openbare plaatsen)

APV artikel 5:12 (overlast fietsen en bromfietsen)

Kaart 6

Algemeen aanwijzingsbesluit Apv De Bilt 2020

winkel(s) op de Donsvlinder in Bilthoven

 

Van toepassing zijn:

 

APV artikel 2:51, lid 1 (neerzetten van fietsen en bromfietsen)

APV artikel 2:6, lid 1 (verspreiden van geschreven of gedrukte stukken of afbeeldingen)

APV artikel 2:9, lid 1 en lid 2 (vertoningen op openbare plaatsen)

APV artikel 5:12 (overlast fietsen en bromfietsen)

Kaart 7

Algemeen aanwijzingsbesluit Apv De Bilt 2020

winkel(s) op de Leyenseweg in Bilthoven

 

Van toepassing zijn:

 

APV artikel 2:51, lid 1 (neerzetten van fietsen en bromfietsen)

APV artikel 2:6, lid 1 (verspreiden van geschreven of gedrukte stukken of afbeeldingen)

APV artikel 2:9, lid 1 en lid 2 (vertoningen op openbare plaatsen)

APV artikel 5:12 (overlast fietsen en bromfietsen)

Kaart 8

Algemeen aanwijzingsbesluit Apv De Bilt 2020

winkelgebied “Het Kleine Dorp” in Bilthoven

 

Van toepassing zijn:

 

APV artikel 2:51, lid 1 (neerzetten van fietsen en bromfietsen)

APV artikel 2:6, lid 1 (verspreiden van geschreven of gedrukte stukken of afbeeldingen)

APV artikel 2:9, lid 1 en lid 2 (vertoningen op openbare plaatsen)

APV artikel 5:12 (overlast fietsen en bromfietsen)

Kaart 9

Algemeen aanwijzingsbesluit Apv De Bilt 2020

Gebied tussen de Hessenweg, Looydijk, Akker en de Henrica van Erpweg in De Bilt

 

Van toepassing zijn:

 

APV artikel 2:48, lid 1 (verboden alcoholgebruik)

Kaart 10

Algemeen aanwijzingsbesluit Apv De Bilt 2020

Gebied Dwarsweg, Kees Boekelaan, Jan Steenlaan en de Donsvlinder in Bilthoven

 

Van toepassing zijn:

 

APV artikel 2:48, lid 1 (verboden alcoholgebruik)

Kaart 11

Algemeen aanwijzingsbesluit Apv De Bilt 2020

De omgeving van gebouw het Lichtruim in Bilthoven

 

Van toepassing zijn:

 

APV artikel 2:48, lid 1 (verboden alcoholgebruik)

Kaart 12

Algemeen aanwijzingsbesluit Apv De Bilt 2020

Gebied van N.S. Station Bilthoven met omliggende straten

 

Van toepassing zijn:

 

APV artikel 2:51, lid 1 (neerzetten van fietsen en bromfietsen)

APV artikel 5:12 (overlast fietsen en bromfietsen)

Kaart 13

Algemeen aanwijzingsbesluit Apv De Bilt 2020

Omgeving IJsbaan Soestdijkseweg-Zuid De Bilt / Bilthoven

 

Van toepassing zijn:

 

APV artikel 2:57, lid 2 (loslopende honden)

APV artikel 2:58, lid 3 (verontreiniging door dieren)

Kaart 14

Algemeen aanwijzingsbesluit Apv De Bilt 2020

Gebied "Het Heidepark" in Bilthoven

 

Van toepassing zijn:

 

APV artikel 2:57, lid 2 (loslopende honden)

APV artikel 2:58, lid 3 (verontreiniging door dieren)

Kaart 15

Algemeen aanwijzingsbesluit Apv De Bilt 2020

De groenstrook achter de flats aan de Kometenlaan in Bilthoven

 

Van toepassing zijn:

 

APV artikel 2:57, lid 2 (loslopende honden)

APV artikel 2:58, lid 3 (verontreiniging door dieren)

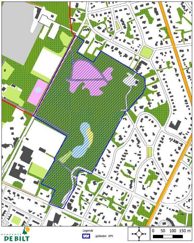
Kaart 16

Algemeen aanwijzingsbesluit Apv De Bilt 2020

Het Leyensebos gelegen tussen de Berlagelaan, het Leyensepad, het 2e bospad gerekend vanaf en parallel lopend aan de Berlagelaan en de Dwarsweg in Bilthoven

 

Van toepassing zijn:

 

APV artikel 2:57, lid 2 (loslopende honden)

APV artikel 2:58, lid 3 (verontreiniging door dieren)

Kaart 17

Algemeen aanwijzingsbesluit Apv De Bilt 2020

In Maartensdijk achter de sportvelden en het Groenhorstcollege (parallel aan de A27)

 

Van toepassing zijn:

 

APV artikel 2:57, lid 2 (loslopende honden)

APV artikel 2:58, lid 3 (verontreiniging door dieren)

Kaart 18

Algemeen aanwijzingsbesluit Apv De Bilt 2020

De Parkeerstrook Nachtegaallaan in Maartensdijk, tussen de Dorpsweg en de Merellaan

 

Van toepassing zijn:

 

APV artikel 5:8, lid 2 (parkeren grote voertuigen)

Kaart 19

Algemeen aanwijzingsbesluit Apv De Bilt 2020

Dorpsweg in Maartensdijk onder viaduct A27

 

Van toepassing zijn:

 

APV artikel 5:8, lid 2 (parkeren grote voertuigen)

Kaart 20

Algemeen aanwijzingsbesluit Apv De Bilt 2020

Rembrandtlaan in Bilthoven

 

Van toepassing zijn:

 

APV artikel 5:8, lid 2 (parkeren grote voertuigen)

Kaart 21 Overzichtskaart

Algemeen aanwijzingsbesluit Apv De Bilt 2020

grondgebied en komgrenzen van de gemeente De Bilt

 

Van toepassing zijn:

 

APV artikel 2:65 (bedelarij)

APV artikel 5:3, lid 1 (te koop aanbieden van voertuigen)

APV artikel 5:8, lid 1 (parkeren grote voertuigen)

APV artikel 2:9, lid 1 (vertoningen op openbare plaatsen)

Kaart 21, detailkaart 1

Komgrenzen Hollandsche Rading, Westbroek behorend bij kaart '21 Overzichtskaart'

Kaart 21, detailkaart 2

Komgrenzen Maartensdijk, Groenekan behorend bij kaart '21 Overzichtskaart'

Kaart 21, detailkaart 3

Komgrenzen De Bilt, Bilthoven behorend bij kaart '21 Overzichtskaart'

Kaart 22

Algemeen aanwijzingsbesluit Apv De Bilt 2020

Winkel/bedrijvengebied “Leyenseweg” in Bilthoven

 

Van toepassing zijn:

 

APV artikel 2:48, lid 1 (verboden alcoholgebruik)

APV artikel 2:51, lid 1 (neerzetten van fietsen en bromfietsen)

APV artikel 2:6, lid 1 (verspreiden van geschreven of gedrukte stukken of afbeeldingen)

APV artikel 2:9, lid 1 en lid 2 (vertoningen op openbare plaatsen)

APV artikel 5:12 (overlast fietsen en bromfietsen)

Kaart 23

Algemeen aanwijzingsbesluit Apv De Bilt 2020

Gebied rond en in de fietstunnel gelegen onder de Utrechtseweg

 

Van toepassing zijn:

 

APV artikel 2:51, lid 1 (neerzetten van fietsen en bromfietsen)

APV artikel 5:12 (overlast fietsen en bromfietsen)

Naar boven