Ontwerp-addendum op de Welstandsnota Tweede Bloksweg (Park Triangel)

Van 1 juli tot en met 11 augustus 2021 ligt het ontwerp-addendum op de Welstandsnota Tweede Bloksweg (Park Triangel) ter inzage.

Hoe kunt u het ontwerp-addendum bekijken?

Het ontwerp-addendum op de welstandsnota is in te zien via www.waddinxveen.nl/bestemmingsplannen onder het kopje Op dit moment ter inzage.

Wat houdt het ontwerp-addendum in?

Voor alle uitgewerkte deelplannen in Park Triangel, en ook voor de Tweede Bloksweg, zijn stedenbouwkundige plannen opgesteld. Een deel van de kwaliteit die daarin is opgenomen, kan niet worden vastgesteld in de regels van het bestemmingsplan. Die regels zijn wel belangrijk voor de kwaliteit die in het deelplan. Om die kwaliteit afdwingbaar te maken, is het addendum op de Welstandsnota opgesteld.

Hoe kunt u reageren?

U kunt tot en met 11 augustus 2021 bij voorkeur schriftelijk of mondeling uw zienswijze indienen over het ontwerp-addendum. U kunt uw brief sturen aan het college van burgemeester en wethouders van de gemeente Waddinxveen, Postbus 400, 2740 AK Waddinxveen. Vermeld erbij dat het gaat over het ontwerp-addendum Tweede Bloksweg (Park Triangel). Voor het indienen van een mondelinge zienswijze kunt u contact opnemen met dhr. B. van Oosten (b.vanoosten@waddinxveen.nl of telefonisch 140182).

 

BIJLAGE Tweede Bloksweg - Park Triangel Waddinxveen Addendum op welstandsnota kavelpaspoorten | iov CV Park Triangel | 13 april 2021

1.0 inleiding

Voor de Tweede Bloksweg van Park Triangel komt woningbouw tot stand door de uitgifte van vrije kavels met kavelpaspoorten.

Kavelpaspoorten zijn spelregels waaraan de koper van een kavel zich moet houden. De regels zijn zo opgesteld dat de kavelkopers veel vrijheid hebben binnen de nagestreefde landschappelijke woonsfeer.

Hoofdstuk 1 beschrijft de locatie, de randvoorwaarden en de visie en ruimtelijk concept ten behoeve van de inbedding van de toekomstige woningbouw. Hoofdstuk 2 licht de beeldkwaliteit toe en hoofdstuk 3 geeft de kavelpaspoorten weer.

Voor de Tweede Bloksweg is een indicatieve verkaveling aangegeven. Het plan behelst flexibiliteit in de wensen van de toekomstige kavelkopers welke zich uit in de uiteindelijke grootte van een kavel. De grens tussen uitgeefbaar en openbaar staat vast, binnen deze grenzen kunnen de kavelgroottes variëren.

1.1 locatie

Park Triangel is met 2700 woningen een aanzienlijke uitbreiding van Waddinxveen. De komende jaren vullen woningen met bijbehorende voorzieningen de driehoek tussen de Tweede Bloksweg en de spoorlijn. De bebouwing maakt zo op een logische wijze Waddinxveen aan de zuidkant af. De wijk sluit goed aan op de halte van de RijnGouweLijn.

Een recreatieve en ecologische zone aan de zuidzijde zorgt voor de landschappelijke inbedding op grotere schaal. Binnen de wijk zijn watergangen en bebouwingslinten de landschappelijke gegevenheden. Het landelijke beeld van de linten is van belang voor het karakter van de wijk in zijn geheel. Dat bepaalt de voorwaarden voor de ontwikkeling van de tweede Bloksweg.

1.2 randvoorwaarden

Het Beeldkwaliteitsplan voor de Tweede Bloksweg is onderdeel van de ontwikkeling Park Triangel. Het betreft een bestaand lint waar kavels worden ingepast tussen de bestaande bebouwing over een lengte van ruim 800 m. De Tweede Bloksweg vormt aan de noord- westzijde één van de drie randen van Park Triangel.

Bij het opstellen van dit Beeldkwaliteitsplan zijn de volgende documenten als uitgangspunt gehanteerd:

• Integraal Ontwikkelingsplan Park Triangel, kwaliteitsinstrumentarium d.d. 17 februari 2010

• Integraal Ontwikkelingsplan Park Triangel, stedenbouwkundig plan d.d. 17 februari 2010

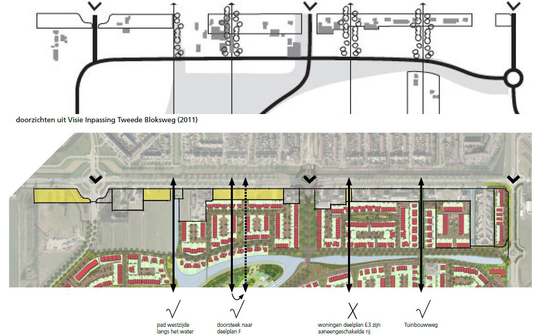
• Visie inpassing Tweede Bloksweg en Tuinbouwweg d.d. 5 januari 2011

• Stedenbouwkundig Matenplan d.d. 1 maart 2019 (WV_PT_smp_totaal_01032019)

1.3 visie en ruimtelijk concept

Het beeld van de Tweede Bloksweg is sterk door: de informele sfeer, het gevoel van de geschiedenis van de plek en het onderscheid met de nieuwe woonbuurten. De Tweede Bloksweg als groen lint is een krachtig structurerend stedebouwkundig element.

De Tweede Bloksweg vormt de rand van Park Triangel. Het is het gezicht van de wijk voor een ieder die langs deze route Waddinxveen inrijdt. Het beeld is dus een belangrijk signaal over het karakter van de wijk en de wijze waarop deze in het landschap verankerd ligt. De groene beleving maakt de landelijke oorsprong van het gebied afleesbaar en het brengt een aantrekkelijke, dagelijkse ervaring.

Het plan vraagt ook om een verbondenheid met landschappelijke elementen, zoals hier de watergangen van de Hollandse droogmakerij en de historische linten van tuinderswoningen. Samen met het centrale Park, de recreatieve ecologische Vredenburghzone, de watergangen, de groene lanen (HIS) vormen ze een landschappelijke structuur waar de deelplannen zich tegen aan vlijen.

De Bloksweg vormt dus een belangrijke structurerende lijn in Park Triangel. Daarnaast heeft het lint een bijzondere ruimtelijke kwaliteit. De verdichting van het lint is gericht op de instandhouding van het informele, groene karakter. De verkaveling is ontworpen met de tuin als beeldbepalende kwaliteit.

Dat betekent dat de afmeting van de voortuinen en zijtuinen van belang is. De spelregels geven hier voor maten. De diepte van de voortuinen is plaatselijk minder dan in de Visie (2011). In plaats van de nu gangbare 10-11 meter wordt het 8-11 meter. De reden ligt in de beperkte diepte van een deel van de kavels.

Andere belangrijke beeldelementen zijn de sloten. Door de kavels te ontsluiten met een bruggetje in plaats van een duiker, blijft de sloot beter in het zicht en draagt deze bij aan het landelijke karakter.

De tuinders erven worden dikwijls gekenmerkt door een bijzondere boom. Daarom is een lijst van wenselijke nieuwe bomen opgesteld, zodat het lint ondanks de verdichting, een bijzonder groen karakter behoudt.

2.0 introductie beeldkwaliteit

De Tweede Bloksweg vormt de noord-westelijke begrenzing van Park Triangel en is daarmee een karakteristiek plandeel. Tussen de bestaande bebouwing biedt het nog plaats voor 17 kavels*.

De GEM is voornemens de gronden als vrije kavels op de markt te brengen. De typologie bestaat uit vrijstaande woningen en eventueel twee-onder-een-kapwoningen. De context - inpassing tussen bestaande bebouwing, het handhaven van een aantal dwarssloten en de doorsteek naar deelplan F - waarborgt een divers beeld door de wisseling in de afstand tussen woningen. De afwisseling tussen kapvormen en kaprichtingen speelt daarin ook een rol. Dit betekent tevens een grote mate van vrijheid voor individuele woonwensen, die op hoofdlijnen dienen aan te sluiten bij de oude bebouwing van de Tweede Bloksweg en de nieuwe woningen van Park Triangel.

plangrenzen uit het Stedenbouwkundig Matenplan

*Nieuwbouw of verbouwplannen buiten de hier aangegeven plangrens maar wel thv Park Triangel aan de Twee Bloksweg moeten voldoen aan de in dit document opgestelde regels.

De openbare ruimte is een belangrijke factor in de beleving van het lint: een smalle landelijke weg met een sloot er naast, grasbermen en talud. De bruggetjes naar de kavels zijn eenvoudig en bescheiden. De kavels bieden ruimte aan 2 parkeerplaatsen op eigen terrein, de bezoeker parkeert op de inrit. De diepe voortuinen dragen bij aan het landelijke, groene karakter van het lint. De verplichting een flinke boom in de voortuin te planten zorgt voor de voortzetting van het huidige groene karakter.

Lage goothoogte en beperkte hoogte van de kap zorgen voor zicht op de lucht en ruimte voor bomen tussen de woningen.

De nieuwe bebouwing moet dus voldoen aan een aantal overzichtelijke, eenduidige spelregels. De kenmerkende kleinschaligheid is uitgangspunt voor de bebouwing. Als referentie staan op deze en de volgende pagina een aantal voorbeelden van de bestaande bebouwing.

bestaande beeldkwaliteit Tweede Bloksweg: diepe voortuinen dragen bij aan het landelijk, groene karakter

representatief voorbeeld bestaande bebouwing - goed aansluitend bij beeldkwaliteit nieuwbouw; 1 laag met kap, zorgvuldig gedetailleerd; traditionele kleuren; enkele karakteristieke bomen

representatief voorbeeld bestaande bebouwing - neutraal aansluitend bij beeldkwaliteit nieuwbouw; niet pretentieus, maar geen karakteristieke detaillering; bijzondere boom bepaald voortuin

representatief voorbeeld bestaande bebouwing - niet aansluitend bij beeldkwaliteit nieuwbouw; flauwe kaphelling, onrustige samenstelling kappen; niet passende kleuren; geen bijzonder boom van formaat

2.1 kenmerken hoofdvolume

  • Alleen vrijstaande woningen.

  • 1-laag met kap; opgaande beplanting spreekt hierdoor sterk mee, daarom mag de gootlijn van de nieuwe bebouwing niet hoger dan 3,5 meter zijn en de nokhoogte is maximaal 8,5 meter.

  • Woningen hebben een zadeldak, zonder wolfseinden.

  • Kappen wisselen in vorm en richting, brede kavels geven aanleiding tot kappen evenwijdig aan de weg, diepe kavels kappen haaks op de weg.

  • Voor bouwblokken met gemiddelde afmeting van 7m en maximaal 10m breed wordt een dwarskap toegepast. Bij bouwblokken breder dan 10m wordt een zadelkap (de gootlijn evenwijdig aan de weg) toegepast, de bouwblokken zijn maximaal 14m breed.

  • Bijgebouwen bestaan uit 1 bouwlaag, bij voorkeur met een kap. Lessenaardaken zijn niet landelijk, dus uitgesloten.

  • Woningen hebben een voorzijde aan de Tweede Bloksweg en op de hoeken ook een oriëntatie op de kruisende straat.

  • Voor kavels kleiner dan 700 m2 geldt een maximaal bebouwingspercentage van 25% (inclusief bijgebouwen), bij kavels van 700 - 900 m2 geldt een maximale footprint van 175 m2 (inclusief bijgebouwen), bij kavels groter dan 900 m2 geldt een maximaal bebouwingspercentage van 20% (inclusief bijgebouwen).

  • Bij nieuwe ontwikkelingen heeft de woning (exclusief bijgebouwen) een volume van maximaal 750 m3.

2.2 materialisering

  • Materialen en kleuren moeten aansluiten bij de terughoudendheid van de bestaande bebouwing.

  • Gevel dient gemetseld te worden uit vormbaksteen (geen strengpers) in genuanceerde, gedempte aarde kleuren (geen gele, geelbruine of witte baksteen). Een grijs/beoge steen in combinatie met zwarte kozijnen is niet wenselijk.

  • Op het dak donkerbruine of antracietkleurige gebakken pannen (niet geglazuurd) of leien; een rietenkap is ook mogelijk.

  • Metselwerk is ambachtelijk gedetailleerd en heeft een sprekende voeg die het metselwerk verlevendigd.

  • Stucwerk is niet toegestaan; houten geveldelen wel, in de kleuren naturel (vergrijzend), zwart of donkergroen.

  • Incidenteel kan een woning ook wit worden gekeimd; tot een maximum van 10% van de woningen (inclusief bestaande bebouwing).

  • Regenpijpen en goten van metaal en donker van kleur, mastgoten of omtimmerde dakgoten hebben de voorkeur.

  • Zonnepanelen in het dakvlak van de voorgevel zijn geïntegreerd met de dakpannen, de kleur van de panelen en randen en bevestigingsmaterialen is afgestemd op kleur van de pannen. Op de panelen geen lichte, glimmende strips en randen.

2.3 ramen en deuren

  • Ramen en deuren zijn van hout.

  • Ramen met roeden hebben een staande verdeling; de roeden liggen op het glas en nooit ertussen.

  • Afhankelijk van de architectuur en de kleur van het metselwerk zijn de kozijnen wit, donkergroen, of donkergrijs.

  • Raamdorpels zijn van baksteen.

2.4 stijlelementen

  • De architectuur van de Tweede Bloksweg is landelijk en heeft weinig pretentie.

  • Een stenen schoorsteen als karakteristieke toevoeging is hierop een uitzondering, deze geeft een huislijke expressie aan de woning en zal door de variatie aan toepassingen de verschillen van de individuele bouwwijze op een samenhangende wijze tot uitdrukking brengen, dit is ook een thema dat zorgt voor een link met de omliggende wijk.

  • Eventuele dakkapellen, serres, erkers, veranda’s, uitbouwen en bijgebouwen vormen een integraal geheel met de architectuur van de woningen.

  • Dakkapellen aan de voorzijde hebben een grote invloed op het aanzien van de woning, daarom dienen ze een compositie te vormen door dakkapel in lijn met de gevel te plaatsen. Een dakkapel met schuine dakvlakken is wenselijk, maar alleen in combinatie met een stevige dakhelling (minimaal 55 graden).

3. Kavelpaspoorten

3.0 situering kavels

kavelnummer

kaveloppervlak

bouwvlak

max. footprint

kavel 1

747 m2

196 m2

175 m2

kavel 2

681 m2

208 m2

170 m2

kavel 3

661 m2

197 m2

165 m2

kavel 4

660 m2

187 m2

165 m2

kavel 5

776 m2

229 m2

175 m2

kavel 6

605 m2

110 m2

110 m2

kavel 7

570 m2

100 m2

100 m2

kavel 8

910 m2

80 m2

80 m2

kavel 9

605 m2

162 m2

151 m2

kavel 10

533 m2

120 m2

120 m2

kavel 11

548 m2

136 m2

136 m2

kavel 12

589 m2

156 m2

147 m2

kavel 13

779 m2

177 m2

175 m2

kavel 14

548 m2

136 m2

136 m2

kavel 15

548 m2

136 m2

136 m2

kavel 16

866 m2

212 m2

175 m2

kavel 17

473 m2

98 m2

98 m2

 

3.1 rooilijnen

  • Afstand voorgevel tot erfgrens is minimaal 8 tot 11 meter, dit vertaald zich naar minimaal 5,75 tot 8,75 meter van voorgevel tot beschoeiing sloot, wordt per kavelpaspoort aangegeven, de onderlinge verspingingen zijn van belang voor het informele, landelijke beeld.

  • Bijgebouwen liggen minimaal 6 meter terug t.o.v. de voorgevel, zodat parkeerruimte naast de woning ontstaat en daarmee de auto enigszins uit het beeld staat.

  • Afstand zijgevel tot bovenkant talud sloot is minimaal 2 meter, om ruimte rondom de woning te waarborgen.

  • Achtergevel ligt minimaal 6 meter uit de achtererfgrens.

3.2 parkeren

De kavels bieden ruimte aan twee functionerende parkeerplaatsen, naast elkaar op eigen terrein. De bezoeker parkeert op de inrit.

3.3 erfafscheidingen en tuin

  • De sloot met talud en beschoeiing vormt aan de voorzijde en hier en daar aan de zijkant de erfafscheiding. Deze dient, inclusief de hoogte van de beschoeiing, in stand te worden gehouden en vrij te blijven van constructies.

  • Erfafscheiding langs openbaar pad naar achterliggend deelplan F (Parkzicht) is een hoge haag, 1 m breed, maximaal 2m hoog, gedacht wordt aan beuk (Fagus sylvatica).

  • Indien een erfafscheiding tussen kavels in de voortuin wordt geplaatst, dan dient deze groen (plantaardig) te zijn, zoals een haag (in overleg met bewoners van aangrenzende kavels).

  • Erfafscheiding buiten het zicht van de openbare weg is vrij te kiezen (in overleg met bewoners van aangrenzende kavels).

  • Bij herontwikkeling van een bestaande kavel dienen beeldbepalende bomen behouden te blijven.

  • Bij nieuwe ontwikkelingen moet een solitaire boom in de voortuin worden geplant, deze dient de bewoner aan te planten, gedacht wordt aan de hiernaast aangegeven soorten.

  • Bomen staan minimaal 2m uit de erfgrens met de buren en op voldoende afstand van het verzamelriool.

solitaire boom in de voortuin, soorten geselecteerd op basis van (wind, klei, dracht) en grootte (niet te klein, niet te groot):

  • -

    Ailanthus altissima ‘Purple Dragon’

  • -

    Alnus glutinosa ‘Laciniata’

  • -

    Betula nigra ‘Heritage’

  • -

    Cornus controversa

  • -

    Davidia involucrate var. vilmoriniana

  • -

    Juglans regia ‘nr 16’

  • -

    Nyssa sylvatica

  • -

    Prunus avium

  • -

    Prunus avium 'Bigarreau Napoléon'

  • -

    Pyrus communis

  • -

    Pyrus communis ‘Conference’

  • -

    Styrax japonicus

  • -

    Sorbus aria

  • -

    Tilia heterophylla 'Prestige'

3.4 bruggen

  • Een brug, door koper te realiseren, geeft toegang tot het kavel.

  • Het bruggetje is een betonplaat zonder leuningen; een bescheiden lage buis zorgt voor de begeleiding.

  • Wanneer de brug 2 kavels ontsluit is de maximale breedte 6 meter, wanneer 1 kavel wordt ontsloten 3,5 meter.

  • De positie van de brug kan in overleg met de GEM nav het bouwplan worden aangepast.

  • Voor het smalle kavel wordt een uitzondering gemaakt, daar is naast de bestaande duiker van de buren geen ruimte ook nog een brug te plaatsen; daarom duiker handhaven of (voorkeur) samen met buren een brug plaatsen.

5. Riolering - vrij verval rioleringInrichtingsniveau

Alle kernen - Alle gebieden Ontwerpeisen - Ligging

 

Afstand tussen bomen en ondergronds verkeer. Bij het aanbrengen van een nieuwe (of vervangende) rioolleiding of boombeplanting moet rekening worden gehouden met de volgende afstanden tussen boom en rioolleiding:

  • Bomen van de 1e grootte minimaal: 1,75 m.

  • Bomen van de 2e grootte minimaal: 1,25 m.

  • • Bomen van de 3e grootte minimaal: 1,00 m.

uit: Handboek - Leidraad Inrichting Openbare Ruimte (LIOR) HANDBOEK PUBLICATIE: 11, 15-02-2021

3.5 ondergrondse infra

  • Elke kavel is voorzien van een aansluiting op verzamelriool.

  • Uitzondering is kavel 17, deze is voorzien van een pomp t.b.v. riolering onder de sloot door.

  • Bomen staan op voldoende afstand van het verzamelriool.

3.6 basisregels kavelpaspoorten

Naast de inbreng van de architect waarborgen de basisregels, de kavelpaspoorten en de beeldkwaliteitsregels de beoogde sfeer en de kwaliteitsambities van Park Triangel voor de Tweede Bloksweg. Elke kavel heeft zijn eigen kavelpaspoort met specifieke (bouw)regels die een relatie aangaan met het landschappelijke raamwerk.

De verkaveling is indicatieve aangegeven. Het plan behelst flexibiliteit in de wensen van de toekomstige kavelkopers welke zich uit in de uiteindelijke grootte van een kavel. De grens tussen uitgeefbaar en openbaar staat vast, binnen deze grenzen kunnen de kavelgroottes variëren.

3.7 voorbeeld kavelpaspoort

Kavel 1

Kavel 2

Kavel 3

Kavel 4

Kavel 5

Kavel 6

Kavel 7

Kavel 8

Kavel 9

Kavel 10

Kavel 11

Kavel 12

Kavel 13

Kavel 14

Kavel 15

Kavel 16

Kavel 17

B I J L AG E N

 

 

 

Naar boven