AANWIJZINGSBESLUIT VERLENGING TIJDELIJK / MOBIEL CAMERATOEZICHT RETERSBEEK 2020

De Burgemeester van Voerendaal;

 

gehoord de beraadslaging in het driehoeksoverleg van 27 juli 2020 met de officier van justitie en de teamchef van de Politie RBT Brunssum-Landgraaf;

 

gelet op artikel 151c Gemeentewet, artikel 2:56 Algemene Plaatselijke Verordening 2018 van de gemeente Voerendaal en de Wet politiegegevens;

 

overwegende:

 

  • dat de burgemeester overeenkomstig artikel 151c van de Gemeentewet en artikel 2:56 van de Algemene plaatselijke verordening van de gemeente Voerendaal kan besluiten tot plaatsing van mobiele camera’s ten behoeve van het toezicht op een openbare plaats in het kader van de handhaving van de openbare orde;

 

  • dat het cameratoezicht in het hierna genoemde gebied voldoet aan de eisen die artikel 151c van de Gemeentewet stelt aan het instellen van cameratoezicht;

 

  • dat de samenwerking tussen gemeente en politie het noodzakelijk maakt om maatregelen te treffen om op de openbare orde en veiligheid in het aangewezen gebied te waarborgen;

 

  • deze informatie ondersteund wordt door meldingen van bewoners in het betreffende gebied;

 

  • dat er sprake is van bedreiging en verstoring van de openbare orde in het aangewezen gebied;

 

  • dat de belangen van openbare veiligheid, het voorkomen van wanordelijkheden en van strafbare feiten en de bescherming van de gezondheid in het onderhavige geval zwaarder wegen dan het individuele belang van de burgers (bescherming van de persoonlijke levenssfeer);

 

  • dat de overige maatregelen die in de bewuste gebied zijn getroffen om inbreuk op de openbare orde te voorkomen op zichzelf onvoldoende effect sorteren;

 

  • dat het cameratoezicht deel uitmaakt van een bredere aanpak ter vergroting van de veiligheid in het betreffende gebied en moet worden gezien in samenhang met andere maatregelen in het kader van de handhaving van de openbare orde;

 

  • dat de aanwijzing van dit gebied voor de voorgestelde periode noodzakelijk is ter handhaving van de openbare orde en verbetering van het woon- en leefklimaat;

 

  • dat van het cameratoezicht een preventieve werking uitgaat;

 

  • dat het daarnaast voor de daarvoor verantwoordelijke autoriteiten een hulpmiddel is voor het opsporen en vervolgen van daders van strafbare feiten;

 

  • dat het beheer van het cameratoezicht is ondergebracht bij de politie-eenheid RBT Brunssum-Landgraaf;

 

Besluit:

 

  • 1.

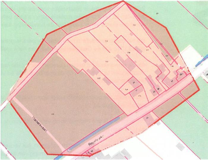
    Tot het instellen van tijdelijk / mobiel cameratoezicht in het gebied Retersbeek te Klimmen ter hoogte van de Retersbekerweg 77-79, zoals bedoeld in artikel 2:56 van de Algemene Plaatselijke Verordening 2018 van de gemeente Voerendaal en artikel 151c van de Gemeentewet;

  •  

  • 2.

    het gebied zoals aangewezen op onderstaande kaart aan te wijzen als gebied waar, met ingang van inwerkingtreding van dit besluit, mobiel cameratoezicht wordt ingesteld:

  •  

  •  

  • 3.

    Dat dit cameratoezicht uitgeoefend zal worden voor een periode van 3 maanden vanaf 1 september 2020;

  •  

  • 4.

    Dat dit cameratoezicht bekendgemaakt zal worden door middel van:

    • a.

      Bewonersbrief;

    • b.

      Aankondiging in het gemeenteblad;

    • c.

      Bebording ter plaatse.

  •  

  • 5.

    Dit besluit treedt in werking op de dag na bekendmaking;

  •  

  • 6.

    Dit besluit kan worden aangehaald als “Aanwijzingsbesluit verlenging tijdelijk / mobiel cameratoezicht Retersbeek 2020”.

Vastgesteld op 26 augustus 2020,

DE BURGEMEESTER VAN VOERENDAAL,

W. Houben

Bezwaar

Op grond van artikel 8:1 van de Algemene wet bestuursrecht kan iedere belanghebbende die door dit besluit rechtstreeks in zijn belangen is getroffen binnen 6 weken na de datum van bekendmaking van dit besluit schriftelijk en gemotiveerd beroep instellen bij de Rechtbank Limburg, locatie Maastricht, sector Bestuursrecht, Postbus 1988, 6201 BZ Maastricht.

Daarnaast kunt u – indien onverwijlde spoed, gelet op de betrokken belangen dit vereist – aan de voorzieningenrechter van de rechtbank verzoeken ter zake een voorlopige voorziening te treffen.

U kunt ook digitaal beroep instellen of een verzoek om voorlopige voorziening indienen bij genoemde rechtbank via http://loket.rechtspraak.nl/bestuursrecht. Daarvoor moet u wel beschikken over een elektronische handtekening (DigiD). Op de genoemde site vindt u de precieze voorwaarden.

Naar boven