Aanwijzingsbesluit aanlijngebod voor honden buiten de bebouwde kom
Het college van de gemeente De Ronde Venen,
gelet op artikel 2:57 eerste lid onder c van de Algemene Plaatselijke Verordening De Ronde Venen 2020 (hierna: de APV);
overwegende dat:
-
buiten de bebouwde kom honden onaangelijnd mogen verblijven of lopen;
-
het college plaatsen kan aanwijzen waar honden dienen te worden aangelijnd;
-
het Wickelhof park meerdere gebruikers kent, zoals wandelaars met en zonder hond, spelende kinderen en fietsers;
-
het huidige losloopgebied in het Wickelhofpark door hondenbezitters als niet veilig ervaren wordt, vanwege de ligging vlak langs de openbare weg;
-
het nieuwe losloopgebied tot stand is gekomen na overleg met een groep hondenbezitters;
-
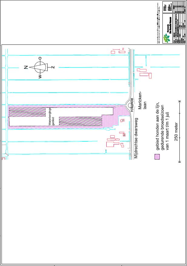
het waterbergingsgebied langs de Mijdrechtse Dwarsweg in Wilnis onderdeel van een weidevogelkerngebied is;
Besluit:
1.
de op de bij dit besluit behorende gewaarmerkte tekeningen opgenomen gemarkeerde gebieden aan te wijzen als plaats waar honden aangelijnd dienen te worden, te weten:
-
het Wickelhofpark, Wickelhof Mijdrecht;
-
het waterbergingsgebied aan de Mijdrechtse Dwarsweg in Wilnis, gedurende het broedseizoen van 1 maart tot en met 1 juli;
2.
te bepalen dat dit besluit in werking treedt op de dag na die van de bekendmaking.
Mijdrecht,14 april 2020
Burgemeester en wethouders van de gemeente De Ronde Venen,
MoniqueTreur,
locosecretaris
MaartenDivendal,
burgemeester
Bijlagen:
Twee gewaarmerkte tekeningen (het Wickelhofpark in Mijdrecht en het waterbergingsgebied aan de Mijdrechtse Dwarsweg in Wilnis), met hierin de gemarkeerde gebieden die zijn aangewezen als plaats waar honden aangelijnd dienen te worden.
Voor afbeeldingen zie externe bijlage
Bezwaar
Tegen dit besluit kunnen belanghebbenden binnen zes weken na de dag van bekendmaking bezwaar maken. Het bezwaarschrift moet zijn ondertekend en in ieder geval bevatten: de naam en het adres van de indiener, de datum, een omschrijving van het besluit en de reden(en) van bezwaar. Het bezwaarschrift moet worden ingediend bij het college van burgemeester en wethouders van de gemeente De Ronde Venen, Postbus 250, 3640 AG Mijdrecht.
Telefonisch contact
Als u het niet eens bent met dit besluit, dan kunt u ook eerst bellen voor meer informatie of om vragen te stellen. In het algemeen blijkt dat met een telefoontje veel kan worden opgelost. Bezwaar maken is dan misschien niet meer nodig. U mag natuurlijk ook meteen een bezwaarschrift indienen.
Verzoek om een voorlopige voorziening
Het indienen van een bezwaarschrift schorst de werking van het besluit niet. Indien u op korte termijn wilt voorkomen dat uitvoering wordt gegeven aan het besluit, dan kunt u de voorzieningenrechter van de rechtbank vragen om een voorlopige voorziening te treffen.
Een verzoek om een voorlopige voorziening kan alleen worden ingediend, als u tegen het besluit ook bezwaar heeft gemaakt. Bovendien moet er sprake zijn van een spoedeisend belang.
Het verzoek moet, samen met een kopie van het bezwaarschrift, worden ingediend bij de voorzieningenrechter van rechtbank Midden-Nederland, Afdeling bestuursrecht, o.v.v. voorlopige voorziening, Postbus 16005, 3500 DA Utrecht. U kunt uw verzoekschrift ook digitaal indienen bij rechtbank Midden-Nederland via http://loket.rechtspraak.nl/bestuursrecht. Daarvoor moet u wel beschikken over een elektronische handtekening (DigiD). Kijk op de genoemde site voor de precieze voorwaarden. Aan het indienen van een verzoek om een voorlopige voorziening zijn kosten (griffierecht) verbonden.
De hier aangeboden pdf-bestanden van het Staatsblad, Staatscourant, Tractatenblad, provinciaal blad, gemeenteblad, waterschapsblad en blad gemeenschappelijke regeling vormen de formele bekendmakingen in de zin van de Bekendmakingswet en de Rijkswet goedkeuring en bekendmaking verdragen voor zover ze na 1 juli 2009 zijn uitgegeven. Voor pdf-publicaties van vóór deze datum geldt dat alleen de in papieren vorm uitgegeven bladen formele status hebben; de hier aangeboden elektronische versies daarvan worden bij wijze van service aangeboden.