Onttrekking aan het openbaar verkeer gedeeltes van de Van Maasdijkweg en Geyssendorfferweg

De Raad van de gemeente Rotterdam,

 

gelezen het voorstel van burgemeester en wethouders van 13 november 2018 (raadsvoorstel nr. 18bb8063); raadsstuk 18bb11184;

 

gelet op artikel 9 Wegenwet;

besluit:

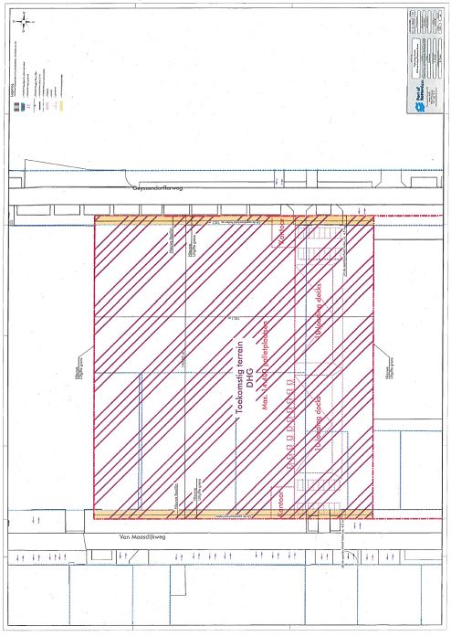
de gedeeltes van de Van Maasdijkweg en Geyssendorfferweg aan het openbaar verkeer te onttrekken conform bijgevoegde tekeningen.

 

Aldus vastgesteld in de openbare vergadering van 20 december 2018.

De griffier,

J.M. van Midden

De voorzitter,

A. Aboutaleb

Bezwaar

Belanghebbenden kunnen tegen dit besluit binnen zes weken na de datum

van de bekendmaking ervan een bezwaarschrift indienen bij het college van burgemeester en wethouders van de gemeente Rotterdam.

 

Dit bezwaarschrift moet ondertekend zijn en ten minste bevatten:

  • -

    naam en adres van de indiener

  • -

    telefoonnummer van de indiener, zodat contact opgenomen kan worden om samen te bespreken wat de beste aanpak van het bezwaarschrift is

  • -

    datum bezwaarschrift

  • -

    de gronden van het bezwaar

  • -

    een omschrijving van het besluit waartegen het bezwaar zich richt.

U wordt verzocht tevens een kopie van dit besluit mee te zenden.

Het bezwaarschrift moet worden gezonden naar: Het college van burgemeester en wethouders, t.a.v. de Algemene Bezwaarschriftencommissie, postbus 1011, 3000 BA te ROTTERDAM. Faxnummer Algemene Bezwaarschriftencommissie: (010) 267 6300.

 

U kunt uw bezwaarschrift ook via internet indienen via het webformulier. Dit is te vinden onder het kopje 'Formulier' op de website www.rotterdam.nl/pdc:bezwaar_indienen. U heeft daarvoor wel een DigiDcode, of als bedrijf een E-herkenning, nodig. Deze kunt u aanvragen via www.digid.nl, respectievelijk www.eherkenning.nl.

 

U kunt, indien u een bezwaarschrift bij de burgemeester heeft ingediend, een verzoek om voorlopige voorziening (o.a. schorsing) indienen bij: Rechtbank Rotterdam, sector Bestuursrecht, Postbus 50951,3007 BM te ROTTERDAM. Voor een dergelijk verzoek is griffierecht verschuldigd.

Dit gemeenteblad 2018, nummer 181, is uitgegeven op 21 december 2018 en ligt op dins-, woens- en donderdagen van 9.00 tot 13.00 uur ter inzage bij het Bestuurlijk Informatiecentrum Rotterdam (BIR), locatie Wachtruimte Timmerhuis, Halvemaanpassage 1 (trap op, melden bij Informatiebalie) (Zie ook: www.bis.rotterdam.nl – Regelgeving of Gemeentebladen chronologisch)

 

Naar boven