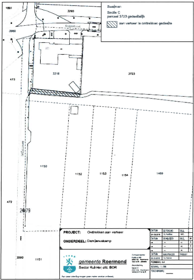
Damianuskamp – gedeeltelijke onttrekking aan het openbaar verkeer
Het college van burgemeester en wethouders van Roermond maakt bekend dat de gemeenteraad op 30 maart 2017 heeft besloten tot onttrekking aan het openbaar verkeer van een gedeelte van Damianuskamp, 6071 HX te Swalmen, zoals aangegeven op bijgevoegde tekening (zie bijlage).
Beroep
Ingevolge de Algemene wet bestuursrecht kan tegen dit besluit binnen zes weken na de dag waarop dat is verzonden dan wel anderszins bekend is gemaakt een beroepschrift worden ingediend bij de Rechtbank Limburg, afdeling Publiekrecht, locatie Roermond, Postbus 950 6040 AZ Roermond
Het beroepschrift dient te zijn ondertekend en tenminste het volgende te bevatten;
-
de naam en het adres van de indiener;
-
de dagtekening van het beroep;
-
een omschrijving van het besluit waartegen het beroep is gericht en de datum en het nummer van het besluit;
-
de gronden van het beroep (motivering).
Voorlopige voorziening
Indien een beroepschrift is ingediend is het mogelijk om daarnaast een verzoek tot het treffen van een voorlopige voorziening in te dienen.
Een dergelijk verzoek dient te worden gericht aan:
De voorzieningenrechter bij de Rechtbank Limburg te Roermond
Het verzoek dient te zijn ondertekend en tenminste het volgende te bevatten:
-
de naam en het adres van de indiener;
-
de dagtekening van het beroep;
-
vermelding van de datum en het nummer van het besluit waartegen het beroepschrift zich richt;
-
een opgave van de redenen waarom men zich met het besluit niet kan verenigen.
Bij het verzoek dient een afschrift van het beroepschrift te worden overgelegd.
Zo mogelijk wordt tevens een afschrift van het besluit waarop het geschil betrekking heeft overlegd.
Naar aanleiding van het verzoek kan de rechtbank een voorlopige voorziening treffen indien onverwijlde spoed, gelet op de betrokken belangen, dat vereist.
Voor de behandeling van een verzoek om voorlopige voorziening wordt een bedrag aan griffierechten geheven. De griffier van de rechtbank wijst de verzoeker na indiening van diens verzoek op de verschuldigdheid van het griffierecht en bericht de verzoeker binnen welke termijn en op welke wijze het verschuldigde griffierecht moet worden voldaan.
Burgers kunnen ook digitaal het beroep- of verzoekschrift indienen bij de rechtbank via http://loket.rechtspraak.nl/bestuursrecht. Daarvoor moet u beschikken over een elektronische handtekening (DigiD). Kijk op de genoemde site voor de precieze voorwaarden.
De hier aangeboden pdf-bestanden van het Staatsblad, Staatscourant, Tractatenblad, provinciaal blad, gemeenteblad, waterschapsblad en blad gemeenschappelijke regeling vormen de formele bekendmakingen in de zin van de Bekendmakingswet en de Rijkswet goedkeuring en bekendmaking verdragen voor zover ze na 1 juli 2009 zijn uitgegeven. Voor pdf-publicaties van vóór deze datum geldt dat alleen de in papieren vorm uitgegeven bladen formele status hebben; de hier aangeboden elektronische versies daarvan worden bij wijze van service aangeboden.