Beheersverordening Bedrijventerrein Hoek en Bosch

 

De raad van de gemeente Hulst;

 

gelet op het bepaalde in artikel 3:38 van de Wet ruimtelijke ordening;

 

gezien het voorstel van het college van burgemeester en wethouders betreffende het vaststellen van de beheersverordening ‘Bedrijventerrein Hoek en Bosch’ d.d. 29 augustus 2017;

 

overwegende dat:

  • er geen sprake is van een wettelijke voorbereidingsprocedure;

  • de beheersverordening elektronisch beschikbaar wordt gesteld;

  • er tegen het vaststellen van de beheersverordening geen beroep openstaat;

  • de beheersverordening in werking treedt één dag na bekendmaking.

 

Gehoord de commissie Ruimte in haar vergadering van 12 september 2017.

 

B E S L U I T :

  • 1.

    de beheersverordening ‘Bedrijventerrein Hoek en Bosch’ bestaande uit verbeelding, regels en toelichting inclusief bijlagen vast te stellen;

  • 2.

    de vastgestelde beheersverordening te publiceren met identificatienummer NL.IMRO.0677.bvHoekenBosch-000V;

  • 3.

    te bepalen dat de beheersverordening in werking treedt op de eerste dag na bekendmaking.

 

Dit besluit werd in de raadsvergadering van 28 september 2017 aangenomen

 

De gemeenteraad van de gemeente Hulst

 

De Griffier De Raadsvoorzitter

 

Toelichting

Hoofdstuk 1 Inleiding

 

 

1.1 Actualiseringsopgave bestemmingsplannen

 

Actualisering plan voor Bedrijventerrein Hoek en Bosch

Op basis van de Wro geldt dat voor alle gronden een actueel bestemmingsplan of beheersverordening dient te worden vastgesteld. In de Wet ruimtelijke ordening (Wro) geldt voor bestemmingsplannen een termijn van 10 jaar. Voor het bestemmingsplan Bedrijventerrein Hoek en Bosch waar het bedrijventerrein Hoek en Bosch onder valt, verstrijkt die 10-jarentermijn. Aangezien het gaat om een bestaand terrein, waarbij de dynamiek relatief beperkt is, is ervoor gekozen om een beheersverordening op te stellen, totdat een nieuw omgevingsplan conform de Omgevingswet wordt vastgesteld.

 

1.2 Bestemmingsplan Bedrijventerrein Hoek en Bosch (2008)

 

Opzet bestemmingsplan Bedrijventerrein Hoek en Bosch

Het bestemmingsplan Bedrijventerrein Hoek en Bosch uit 2008 kent een opzet die destijds heel gebruikelijk was:

Het plan bestaat uit het zorgvuldig vastleggen, intekenen en regelen van de bestaande situatie;

Het plan biedt ruimte voor nieuwe ontwikkelingen, door middel van afwijk/vrijstelling en uitwerking;

Ondergeschikte ontwikkelingen zijn direct toegestaan.

 

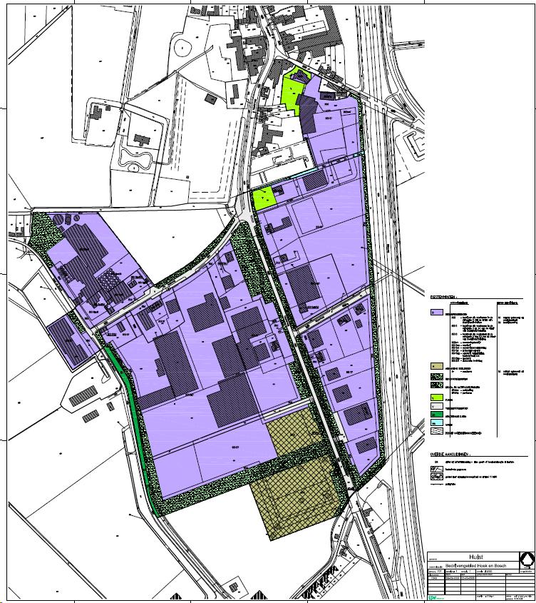
Plangebied en verbeelding

Het plangebied bestaat uit het hele bedrijventerrein Hoek en Bosch, inclusief twee agrarische percelen grenzend aan de zuidzijde van het bedrijventerrein, die zijn ingevuld met de bestemmingen bedrijf, groen of agrarisch.

 

Figuur 1.1. Verbeelding van het bestemmingsplan Bedrijventerrein Hoek en Bosch (2008)

 

1.3 Verordeningsgebied

Het verordeningsgebied omvat het bedrijventerrein Hoek en Bosch, zoals opgenomen binnen de plangrens van het geldende bestemmingsplan (figuur 1.1). Gebieden met een gebiedsgerichte wijzigingsbevoegdheid (gebieden A - F, in figuur 1.1 aangegeven met een geruite arcering) blijven buiten het verordeningsgebied.

 

Wijzigingsbevoegdheden passen niet binnen het kader van de beheersverordening. het instrument van de beheersverordening gaat voornamelijk uit van behoud van de bestaande situatie, terwijl wijzigingsbevoegdheden betrekking hebben op nieuwe ontwikkelingen. Dat is de reden dat de percelen met wijzigingsgebieden geen deel uitmaken van deze beheersverordening. Voor die percelen en gebieden blijft het oorspronkelijke bestemmingsplan Bedrijventerrein Hoek en Bosch gelden. Daardoor blijft het mogelijk de wijzigingsbevoegdheden toe te passen, bijvoorbeeld in verband met bedrijfsbeëindiging. Dat houdt ook in dat voor het kunnen toepassen van de wijzigingsbevoegdheden, moet worden voldaan aan de specifieke wijzigingsregels voor de betreffende gebieden en aan de Beschrijving in hoofdlijnen.

De eerste herziening Bestemmingsplan Bedrijventerrein Hoek en Bosch, vrijstellingsprocedures conform artikel 19 lid van de (voormalig geldende) Wet op de Ruimtelijke Ordening (WRO) en de Parapluherziening Huisvesting Arbeidsmigranten en seizoensarbeiders, zijn wel meegenomen in voorliggende beheersverordening.

 

1.4 Leeswijzer

Deze toelichting op de beheersverordening is als volgt opgebouwd.

Hoofdstuk 2 De beheersverordening als instrument beschrijft het instrument beheersverordening en de instrumenten die in aanvulling op de verordening beschikbaar zijn voor de ruimtelijke regeling van Bedrijventerrein Hoek en Bosch.

Hoofdstuk 3 De beheersverordening voor Bedrijventerrein Hoek en Bosch bevat de onderbouwing van de keuze voor het instrument beheersverordening voor Bedrijventerrein Hoek en Bosch, de uitgangspunten waarop de beheersverordening is gebaseerd en de toelichting op de inhoud van de verordening. Tevens is ingegaan op het aspect handhaving.

Hoofdstuk 4 Toetsing aan beleids- en omgevingsaspecten bevat het onderzoek naar de relevante beleidskaders en de toepasselijkheid daarvan op de verordening en het onderzoek naar de omgevingsaspecten die bij de totstandkoming van de verordening zijn betrokken en beoordeeld.

 

Hoofdstuk 2 De beheersverordening als instrument

2.1 Inleiding

 

Dit hoofdstuk bevat een beschrijving van de beheersverordening als instrument. Ook wordt aandacht besteed aan de instrumenten waarmee - naast de beheersverordening - het ruimtelijk beheer van het verordeningsgebied kan worden ingevuld.

 

2.2 De beheersverordening

 

Noodzaak: actualiseringsverplichting Wro

Op basis van artikel 3.1 van de Wro dient de gemeenteraad voor het gehele grondgebied van de gemeente een of meer bestemmingsplannen vast te stellen, waarbij ten behoeve van een goede ruimtelijke ordening de bestemming van de in het plan begrepen gronden wordt aangewezen en met het oog op die bestemming regels worden gegeven. Deze regels betreffen in elk geval regels omtrent het gebruik van de gronden en van de zich daar bevindende bouwwerken. Deze regels kunnen tevens strekken ten behoeve van de uitvoerbaarheid van in het plan opgenomen bestemmingen.

De gemeenteraad kan in afwijking van artikel 3.1 voor die delen van het grondgebied van de gemeente waar geen ruimtelijke ontwikkeling wordt voorzien, in plaats van een bestemmingsplan een beheersverordening vaststellen waarin het beheer van dat gebied overeenkomstig het bestaande gebruik wordt geregeld. De kennisgeving van een besluit tot vaststelling van een beheersverordening geschiedt tevens langs elektronische weg.

 

Bestanddelen beheersverordening

De beheersverordening bevat regels voor het beheer van het verordeningsgebied en voor het vastleggen van de bestaande situatie. De beheersverordening wordt digitaal opgesteld en voldoet daarmee aan de wettelijke verplichting van de Besluit ruimtelijke ordening. Hierdoor kent de beheersverordening de volgende bestanddelen:

Een verbeelding met daarop aangegeven het gebied waarop de verordening betrekking heeft, met een of meer objecten binnen het gebied, die op de verbeelding zijn aangeven als besluit(sub)vlak;

Regels die gekoppeld zijn aan het gebied en/of de objecten en die kunnen gaan over gebruiken, bouwen, aanleggen en slopen, binnenplans met een omgevingsvergunning afwijken van de verordening en eventueel overgangsrecht.

De beheersverordening bevat tevens een toelichting waarin de gemaakte keuzen zijn onderbouwd.

 

Beheersverordening vormvrij

De beheersverordening is een vormvrij instrument. De Wet ruimtelijke ordening bepaalt wel dat de beheersverordening de volgende elementen kan bevatten:

een verbod om bepaalde werken, geen bouwwerken zijnde, of werkzaamheden uit te voeren zonder omgevingsvergunning (bijvoorbeeld ter bescherming van bepaalde waarden of belangen);

een verbod om bouwwerken te slopen zonder omgevingsvergunning (bijvoorbeeld voor cultuurhistorisch waardevolle objecten);

binnenplanse afwijkingsregels;

overgangsrecht.

Voor Bedrijventerrein Hoek en Bosch bevat de beheersverordening regels voor het gebruik, het bouwen en het afwijken met een omgevingsvergunning alsmede voor het uitvoeren van werken en werkzaamheden zonder omgevingsvergunning. Voorheen werd dit als aanlegvergunningplicht aangeduid. Het betreft hier gronden met een te beschermen waarde, zoals landschap of archeologie.

 

Inhoudelijk

Een beheersverordening is een beheersregeling voor het bestaand gebruik voor een gebied met een lage dynamiek waarin geen ruimtelijke ontwikkelingen zijn voorzien binnen de planperiode van de verordening (tien jaar). Het begrip 'bestaand' kan zowel 'eng' als 'ruim' worden uitgelegd.

 

Bestaand gebruik in 'enge zin'

Bij bestaand gebruik in 'enge zin' worden alleen de bestaande feitelijk aanwezige functies en bebouwing vastgelegd. Het gaat daarbij om gebruik en bouwen inclusief hetgeen dat op basis van verleende vergunningen is toegestaan, maar nog niet is gerealiseerd.

 

Bestaand gebruik in 'ruime zin'

Bij gebruik in 'ruime zin' wordt het vigerende bestemmingsplan als uitgangspunt genomen. Gebruik in 'ruime zin' kan weer worden onderscheiden in een beperkte en een brede variant.

In de beperkte variant wordt uitgegaan van het bestaande gebruik met de bijbehorende bouwwerken en die passen en zijn vastgelegd in het bestemmingsplan waarin nog beperkte uitbreidingsmogelijkheden zijn die al dan niet zijn gerealiseerd. Het gaat dan bijvoorbeeld om de erfbebouwing en beperkte uitbreidingen van het hoofdgebouw.

In de brede variant kunnen alle nog niet gerealiseerde gebruiks- en bouwmogelijkheden van een bestemmingsplan worden opgenomen.

 

Keuze bestaande gebruik beheersverordening Bedrijventerrein Hoek en Bosch

Voor de voorliggende beheersverordening Bedrijventerrein Hoek en Bosch geldt dat aangesloten is bij de ruime opzet van bestaand gebruik. In het verordeningsgebied zijn derhalve naast het feitelijk bestaand toegestane gebruik ook onbenutte juridisch-planologische gebruiks- en bouwmogelijkheden uit het geldende bestemmingsplan betrokken en vastgelegd. Dit is inclusief de vrijstellingsbevoegdheden die in het bestemmingsplan zijn opgenomen. De wijzigingsbevoegdheden uit het bestemmingsplan vervallen hiermee in de beheersverordening.

 

Procedureel

 

Algemeen

De beheersverordening is een gemeentelijke verordening. Daarbij gelden de volgende uitgangspunten:

Er is geen sprake van een wettelijke voorbereidingsprocedure.

De beheersverordening wordt digitaal vastgesteld.

Er staat tegen de vaststelling van een beheersverordening geen beroep open.

Aangezien de beheersverordening de bestaande mogelijkheden uit het bestemmingsplan Bedrijventerrein Hoek en Bosch overneemt, is er geen sprake van nieuw beleid of van nieuwe inzichten. Vandaar dat gekozen is voor het direct vaststellen van de beheersverordening door de gemeenteraad.

 

Keuze beheersverordening Bedrijventerrein Hoek en Bosch

De beheersverordening is voor de actualiseringsplicht het geschikte instrument, omdat het juist bedoeld is om de bestaande situatie vast te leggen, terwijl kleinschalige ruimtelijke veranderingen mogelijk blijven, voor zover passend bij een gebied met lage dynamiek. Momenteel is de gemeente Hulst bezig met de actualisering van de bestemmingsplannen, waaronder bestemmingsplan Bedrijventerrein Hoek en Bosch. Voor de tussenperiode (10 jaar na vaststelling bestemmingsplan Bedrijventerrein Hoek en Bosch en vaststelling nieuwe bestemmingsplan), wordt deze beheersverordening opgesteld.

Voorts zet de gemeente aanvullende instrumenten in om een gebied niet op slot te zetten en binnen het beheer van het gebied aanvaardbare, niet ingrijpende ontwikkelingen mogelijk te maken (zie paragraaf 2.3).

 

2.3 Aanvullende ruimtelijke instrumenten

 

Beheersverordening en andere instrumenten

De beheersverordening is één van de beschikbare instrumenten voor het ruimtelijk beheer van Bedrijventerrein Hoek en Bosch. Nieuwe initiatieven die niet binnen de beheersverordening passen, kunnen met de volgende instrumenten alsnog worden geregeld:

het vergunningvrij bouwen;

de planologische kruimelgevallen;

omgevingsvergunning voor afwijken van de beheersverordening voorzien van een ruimtelijke onderbouwing.

 

Het vergunningvrij bouwen

In bijlage II van het Besluit omgevingsrecht (Bor) zijn gebruiks- en bouwactiviteiten opgenomen waarvoor geen omgevingsvergunning nodig is. Daarbij is onderscheid gemaakt tussen categorieën van vergunningsvrije activiteiten:

de geheel vergunningsvrije activiteiten uit artikel 2 van Bijlage II, die niet binnen een bestemmingsplan of beheersverordening hoeven te passen, zoals aan- of uitbouwen, bijgebouwen en overkappingen, zonnepanelen, vlaggenmasten, erfafscheidingen, nutsgebouwtjes, dakkapellen, antenne-installaties, straatmeubilair, containers voor huisvuil en installaties voor het regelen van het verkeer;

de activiteiten uit artikel 3 van bijlage II, die alleen vergunningsvrij zijn als zij passen binnen een bestemmingsplan of beheersverordening, zoals bouwwerken op het achtererf die hoger zijn dan 5.00 meter, zwembaden bij woningen, openbare speeltoestellen en onder omstandigheden veranderingen aan bouwwerken.

 

Voor beide categorieën gelden enkele uitzonderingen:

vergunningvrij bouwen is niet toegestaan in een gebied dat wegens explosiegevaar of op grond van veiligheidsrisico's onbebouwd moet blijven;

het aantal woningen mag niet worden veranderd door vergunningvrij bouwen.

 

Voor de vergunningsvrije activiteiten is logischerwijs geen procedure van toepassing. Deze kunnen zonder meer worden uitgevoerd.

 

Planologische kruimelgevallen

In bijlage II van het Bor zijn ook de zogenaamde planologische kruimelgevallen opgenomen. Het gaat om zogenaamde bijbehorende bouwwerken, die groter zijn dan de vergunningsvrije bouwwerken, infrastructurele en nutsvoorzieningen, antennes tot 40 meter, duurzame energie-installaties, evenementen en gebruiksveranderingen binnen de bebouwde kom, inclusief inpandige bouwactiviteiten en toename van woningen in bestaande gebouwen.

Voor de activiteiten die via kruimelgevallenregeling mogelijk kunnen worden gemaakt, geldt de reguliere voorbereidingsprocedure van de Wet algemene bepalingen omgevingsrecht (Wabo). Dit betekent dat er een beslistermijn van 8 weken geldt na ontvangst van de aanvraag. Nadat de vergunning is verleend staat tegen de vergunning bezwaar en beroep open.

 

Afwijken van de beheersverordening bij omgevingsvergunning

Voor - de op dit moment - onvoorziene ontwikkelingen, die niet met de voorgaande instrumenten zijn in te passen, biedt de Wet algemene bepalingen omgevingsrecht (Wabo) de mogelijkheid van de beheersverordening af te wijken indien wordt aangetoond dat de beoogde ontwikkeling in overeenstemming is met een goede ruimtelijke ordening. Mocht zich gedurende de looptijd van een plan zodoende een situatie voordoen die niet in de beheersverordening is in te passen, noch met voorgaande instrumenten kan worden toegestaan, zal deze situatie worden beoordeeld in het kader van de gevolgen die de betreffende ontwikkeling voor de ruimtelijke kwaliteit heeft.

Voor het bouwen/gebruiken met een ruimtelijke onderbouwing geldt de uitgebreide voorbereidingsprocedure. Deze procedure omvat een termijn waarin de ontwerpvergunning ter inzage wordt gelegd en een ieder zijn of haar zienswijze kan indienen. De procedure heeft een beloop van 6 maanden. Nadat de vergunning is verleend staat hiertegen direct beroep open.

 

Toepassing van de instrumenten in aanvulling op de beheersverordening

Bij het opstellen van de beheersverordening is rekening gehouden met de mate waarin bovengenoemde instrumenten kunnen worden ingezet in het verordeningsgebied. Gelet op de mogelijkheden die het vergunningvrij bouwen biedt en met name ook de planologische kruimelgevallen, is ervoor gekozen bepaalde bouw- en gebruiksmogelijkheden niet in de beheersverordening op te nemen. Het gaat hierbij om de algemene- en gebiedsgerichte wijzigingsbevoegdheden die buiten voorliggende beheersverordening zijn gelaten.

Bij deze keuze heeft de strekking van het instrument beheersverordening een belangrijke rol gespeeld. Zoals eerder al benoemd, is de beheersverordening bedoeld om de bestaande situatie te beheren. In paragraaf 2.2 De beheersverordening is nader uiteengezet op welke wijze de bestaande situatie voor Bedrijventerrein Hoek en Bosch is ingevuld. Op het moment dat zich een geval voordoet dat niet als passend binnen de 'bestaande situatie' kan worden beschouwd, kunnen de eerder genoemde alternatieve instrumenten worden ingezet, om die ontwikkeling eventueel mogelijk te maken of te reguleren.

Voorbeelden van activiteiten waarvan wordt verwacht dat deze in het verordeningsgebied van Bedrijventerrein Hoek en Bosch wellicht zullen voorkomen, zijn:

vergunningvrij bouwen van erfbebouwing;

vergunningvrij bouwen van algemene voorzieningen, zoals vuilcontainers, straatmeubilair, etc;

gebruiksveranderingen via de kruimelgevallenregeling;

niet vergunningsvrije algemene voorzieningen via de kruimelgevallenregeling.

Het vergunningvrij bouwen is een wettelijk recht. De gemeente kan hier geen invloed op uitoefenen. Dit is anders voor de activiteiten uit de kruimelgevallenregeling. Deze activiteiten moet de gemeente eerst goedkeuren alvorens deze kunnen worden uitgevoerd.

 

Hoofdstuk 3 De beheersverordening voor Bedrijventerrein Hoek en Bosch

3.1 Inleiding

In dit hoofdstuk wordt de toepassing van de voor in te zetten instrumenten uiteengezet en worden de gemaakte keuzes inzichtelijk gemaakt. Tevens is een toelichting op de regeling opgenomen met aansluitend aandacht voor handhaving.

 

3.2 Waarom een beheersverordening voor bedrijventerrein Hoek en Bosch

 

Beheersverordening voor bedrijventerrein Hoek en Bosch

Het geldende bestemmingsplan voor Bedrijventerrein Hoek en Bosch is tien jaar oud. De gemeente Hulst is gestart met de voorbereidingen voor het opstellen van een nieuw omgevingsplan voor bedrijventerrein Hoek en Bosch. Omdat dit omgevingsplan niet zal zijn vastgesteld vóór het overschrijden van de wettelijke termijn voor actualisering van het bestemmingsplan voor het bedrijventerrein Hoek en Bosch, heeft het gemeentebestuur besloten voor de tussenliggende periode (10 jaar na vaststelling bestemmingsplan Bedrijventerrein Hoek en Bosch en vaststelling bestemmingsplan voor de kernen) een beheersverordening op te stellen, als interim instrument.

De algemene wijzigingsbevoegdheden en de gebiedsgerichte wijzigingsbevoegdheden uit het bestemmingsplan zijn niet overgenomen in de beheersverordening. De percelen waarvoor in het geldend bestemmingsplan gebiedsgerichte wijzigingsbevoegdheden gelden, worden buiten het plangebied van de beheersverordening gelaten.

 

Keuze voor de beheersverordening

In tussentijd is het gewenst te voldoen aan de wettelijke verplichting een nieuw ruimtelijk plan vast te stellen. Gekozen is voor een beheersverordening. De beheersverordening is het geschikte instrument, omdat het juist bedoeld is om de bestaande situatie vast te leggen, terwijl kleinschalige ruimtelijke wijzigingen mogelijk blijven, voor zover passend bij een gebied met lage dynamiek.

 

3.3 Opzet beheersverordening

 

3.3.1 Algemeen

 

Uitgangspunten

De beheersverordening Bedrijventerrein Hoek en Bosch is gebaseerd op de volgende uitgangspunten:

behoud van het bestaande legale gebruik. Hieronder wordt het gebruik verstaan dat op grond van het vigerend planologisch kader is toegestaan;

het goed beheren van de bestaande situatie;

afstemming van de bouw- en gebruiksmogelijkheden op het geldende planologisch regime, voor zover passend binnen de sectorale wetgeving, rekening houdend met de aanvullende instrumenten (zie paragraaf 2.3).

 

3.3.2 Behoud van het bestaand gebruik

 

Bevestiging

In het gebied van de beheersverordening zijn uiteenlopende functies en activiteiten gevestigd. Deze worden als feitelijk bestaand gebruik aangemerkt en als zodanig op de verbeelding en in de gebiedsregels bevestigd, mits legaal tot stand gekomen en passend in de vigerende bestemmingsregeling. Ook gebruik dat op grond van een vrijstelling ex artikel 19 van Wet op de Ruimtelijke Ordening (oud) of een afwijkingsbesluit mogelijk is gemaakt, wordt toegestaan.

 

Begrip 'bestaand'

In artikel 1 van de beheersverordening is invulling gegeven aan de inhoud van het begrip 'bestaand'. Hier onder wordt het volgende verstaan:

Bestaand gebruik: het gebruik van de gronden en bouwwerken zoals aanwezig op het moment van de vaststelling van de verordening; daaronder valt niet het gebruik dat reeds in strijd was met het voorheen geldende bestemmingsplan, daaronder begrepen de overgangsbepalingen van dat plan.

Bestaande bouwwerken: bouwwerken die op het tijdstip van de vaststelling van de verordening:

aanwezig zijn én bij of krachtens de Wet algemene bepalingen omgevingsrecht zijn gebouwd;

nog kunnen worden gebouwd krachtens een omgevingsvergunning voor het bouwen.

Bestaande afmetingen: afstands-, hoogte-, inhouds- en oppervlaktematen, die op het tijdstip van inwerkingtreding van de verordening tot stand zijn gekomen of tot stand zullen komen met inachtneming van het bepaalde bij of krachtens de Wet algemene bepalingen omgevingsrecht.

Bestaande goot- of bouwhoogte: goot- of bouwhoogtematen, die op het tijdstip van inwerkingtreding van de verordening tot stand zijn gekomen of tot stand zullen komen met inachtneming van het bepaalde bij of krachtens de Wet algemene bepalingen omgevingsrecht.

Onder bestemmingsplan en Wet algemene bepalingen omgevingsrecht wordt tevens verstaan de voorgaande wet- en regelgeving die hiermee gelijk wordt gesteld.

 

3.3.3 Goed beheer van de bestaande situatie

Het beheer van de bestaande situatie is het uitgangspunt van deze beheersverordening. Dit leidt ertoe, dat de gemeente over een toetsingskader beschikt op basis waarvan omgevingsvergunningen kunnen worden verleend en handhaving kan plaatsvinden.

Deze verordening regelt dit uitgangspunt door te bepalen dat zowel qua gebruik als qua bouwen de bestaande legale situatie ook de toegestane situatie is. Gekozen is voor het koppelen van de vigerende verbeelding en regels aan één besluitvlak dat het gehele verordeningsgebied omvat. De regels ten aanzien van zowel het bouwen als het gebruik blijven hierdoor onverkort van kracht. Op deze wijze wordt geen afbreuk gedaan aan bestaande rechten. Dit omvat dus het gebruik in ruime zin (zie paragraaf 2.2).

De bestaande situatie kan, qua bouwen, worden omschreven als de gebouwen en bouwwerken, geen gebouwen zijnde, die conform de Wet algemene bepalingen omgevingsrecht zijn gebouwd (ofwel vergunningvrij, ofwel op basis van een verleende vergunning), nog legaal kunnen worden gebouwd (op grond van een nog niet benutte vergunning) of die nog vergund kunnen worden op grond van de nog niet benutte mogelijkheden uit de vigerende bestemmingsplannen, die in de voorliggende beheersverordening zijn overgenomen.

De bestaande situatie kent, qua gebruik, een aantal hoofdfuncties, zoals Woondoeleinden, Bedrijfsdoeleinden en Verkeer. Naast het bestaande gebruik, mits legaal tot stand gekomen, kan ook in de toekomst nog gebruik gemaakt worden van de mogelijkheden die het vigerende bestemmingsplan biedt.

De in het vigerende bestemmingsplan opgenomen vrijstellingsbepalingen blijven van kracht. Dat geldt niet voor de opgenomen wijzigingsbevoegdheden. De algemene- en gebiedsgerichte wijzigingsbevoegdheden worden buiten de beheersverordening gehouden. In een beheersverordening is het toepassen van dit juridisch-planologische instrument niet mogelijk. Dat is niet in overeenstemming met het conserverende karakter van een beheersverordening.

 

Bij de aanvraag om omgevingsvergunning en in handhavingszaken kan de bestaande situatie door middel van de volgende bronnen worden geverifieerd:

archief omgevings- en bouwvergunningen;

luchtfoto.

 

Archief vergunningen

Door middel van het gemeentelijk archief met verleende bouw- en omgevingsvergunningen is per geval de bestaande situatie inzichtelijk.

 

Luchtfoto

Een recente luchtfoto (zie bijlage 2) van het verordeningsgebied is als bijlage toegevoegd, zodat inzicht bestaat in de feitelijke gebouwde situatie. Aan de hand van de luchtfoto zijn verschillende waarnemingen mogelijk. Dit betreft onder meer de locatie van de bebouwing, gebruik van gronden en wegen.

 

3.3.4 Afstemming planologische mogelijkheden

In de regels zijn uitsluitend de mogelijkheden overgenomen vanuit het geldende planologische regimes. In aanvulling op het planologische regime worden in de voorliggende beheersverordening geen besluitsubvlakken opgenomen.

 

3.3.5 Onderdelen en opzet beheersverordening

De beheersverordening bestaat uit de volgende onderdelen:

de verbeelding;

de regels.

 

Verbeelding

Op de verbeelding is in de ondergrond de bestaande situatie (bebouwing en kadastrale eigendomsgrenzen) weergegeven. Daarbij is gebruikgemaakt van een digitaal bestand. Op deze ondergrond is op basis van de bestaande situatie een besluitvlak getekend waarmee is aangegeven voor welk gebied de verordening geldt.

 

De regels

De regels bestaan uit vier hoofdstukken.

Hoofdstuk 1 Inleidende regels van de regels bevat de begripsbepalingen (artikel 1). Deze bepalingen zijn noodzakelijk voor een juiste interpretatie van de regels.

In Hoofdstuk 2 Bestemmingsregels zijn de gebiedsregels ofwel de gebruiks- en bouwregels voor het besluitvlak opgenomen. In deze bepaling is het toelaatbare gebruik van gronden en bouwwerken aangegeven en is een bepaling inzake het bouwen en het gebruik opgenomen. In bijlagen 1, 2, 3, 4 en 5 zijn kaarten en regelingen opgenomen met het toegestane gebruik van de gronden en bouwwerken. Deze kaarten en regelingen zijn gebaseerd op het momenteel geldende bestemmingsplan en de daar bijbehorende afwijkingsplannen. Alleen algemene- en gebiedsgerichte wijzigingsbevoegdheden zijn niet overgenomen, evenals het overgangsrecht. Voor de toelichting op deze regels wordt verwezen naar het oorspronkelijke bestemmingsplan. Voor een juiste beoordeling van gebruik en bouwen wordt het besluitvlak geraadpleegd, inclusief de kaarten en regelingen zoals opgenomen in bijlagen 1, 2, 3, 4 en 5. Deze bouwregels zijn niet van toepassing op de categorie 'vergunningsvrije bouwwerken'.

Hoofdstuk 3 Algemene regels omvat algemene bepalingen die voor het gehele gebied van toepassing zijn: de antidubbeltelregel.

De overgangs- en slotbepalingen zijn ondergebracht in Hoofdstuk 4 Overgangs- en slotregels. In het laatste artikel is de naam van deze beheersverordening opgenomen: 'Bedrijventerrein Hoek en Bosch'.

 

Hoofdstuk 4 Toetsing aan beleids- en omgevingsaspecten

4.1 Inleiding

Dit hoofdstuk omvat de resultaten van de uitgevoerde toetsing aan relevante beleids- en omgevingsaspecten (inclusief sectorale wet- en regelgeving). De conclusie is, dat deze aspecten de totstandkoming van de beheersverordening niet in de weg staan.

 

4.2 Beleidsaspecten

 

Rijksbeleid

De juridische regeling uit het geldende bestemmingsplan Bedrijventerrein Hoek en Bosch wordt in deze beheersverordening overgenomen. Er zijn op het bedrijventerrein geen ontwikkelingen die van belang zijn op rijksniveau.

 

Provinciaal beleid

Het provinciaal beleid richt zich voornamelijk op nieuwe ontwikkelingen. De gronden waar mogelijk nieuwe ontwikkelingen worden gerealiseerd, blijven buiten de beheersverordening. Er is dan ook geen tegenstrijdigheid met het provinciaal beleid.

 

Gemeentelijk beleid

Voor bedrijventerrein Hoek en Bosch wordt in het gemeentelijk beleid het behoud van de bestaande (planologische) situatie voorgestaan. Verbeteringen zijn gewenst en worden in ondergeschikte mate in de beheersverordening mogelijk gemaakt. Meer ingrijpende ontwikkelingen worden in de beheersverordening niet voorzien. Hiermee wordt invulling gegeven aan een belangrijk deel van het gemeentelijk beleid. Daarbij is van belang dat de gronden waarvoor het gemeentelijk beleid echt nieuwe initiatieven mogelijk maakt, buiten de beheersverordening blijven. Mochten geheel nieuwe initiatieven voor de gronden gelegen binnen de beheersverordening worden ingediend, dan kan daaraan desgewenst worden meegewerkt via toepassing van andere instrumenten, zoals de kruimelgevallenregeling, een buitenplanse afwijking of een nieuw bestemmingsplan voor een locatie.

 

4.3 Omgevingsaspecten

Voorafgaand aan de keuze voor de inzet van de beheersverordening heeft een scan plaatsgevonden van relevante omgevingsaspecten. Dit onderzoek is beperkt van aard, omdat de beheersverordening is gericht op consolidatie van de bestaande planologisch-juridische situatie. Het onderzoek richt zich erop te bepalen of in het gebied vanuit milieu, geluid, water, natuur, externe veiligheid of cultuurhistorie aanleiding bestaat tot het treffen van maatregelen of het stellen van regels. Voor deze aspecten is getoetst voldaan wordt of kan worden aan wet- en regelgeving.

 

Cultuurhistorie

Goede ruimtelijke ordening betekent dat er een integrale afweging plaatsvindt van alle belangen die effect hebben op de kwaliteit van de ruimte. Een van die belangen is de cultuurhistorie. Bij het maken van bestemmingsplannen moet rekening worden gehouden met cultuurhistorische waarden.

Een overzicht van alle cultuurhistorische waarden op het bedrijventerrein Hoek en Bosch is te vinden op het Geografisch loket van de provincie Zeeland. Op het bedrijventerrein Hoek en Bosch zijn een aantal historisch waardevolle objecten geïnventariseerd. Geen hiervan zijn Rijks- of gemeentelijke monumenten. Cultuurhistorie is daarmee geen relevant aspect voor de beheersverordening.

 

Archeologie

Het archeologisch erfgoed in de bodem dient te worden beschermd. Hiervoor is in het bestemmingsplan Bedrijventerrein Hoek en Bosch in de regels in 'Hoofdstuk III Bijzondere bepalingen in verband met archeologisch waardevol gebied' een beschermende regeling opgenomen. De gemeente heeft inmiddels het archeologiebeleid herzien. Dit aangepast beleid is momenteel onderwerp van een (facet)herziening van de gemeentelijke bestemmingsplannen. Als deze herziening in werking treedt, zal het bedrijventerrein Hoek en Bosch daarin ook worden opgenomen. Voor dit moment wordt in de beheersverordening volstaan met het beleid en de regels zoals opgenomen in het geldende bestemmingsplan.

 

Milieuaspecten

De beheersverordening beperkt zich tot het reguleren van de bestaande situatie. Er zijn dan ook geen milieuaspecten van belang. De gronden waarop bijvoorbeeld, planologisch gezien, nu al bedrijven kunnen worden gerealiseerd, blijven deel uitmaken van het bestemmingsplan Bedrijventerrein Hoek en Bosch. Daarin is een uitvoerige regeling opgenomen inzake milieu. Dat betekent dat milieuaspecten nog steeds goed geregeld blijven.

 

Marktontwikkelingen, behoefte, economische uitvoerbaarheid

De beheersverordening biedt geen ruimte voor relevante ontwikkelingen zoals uitbreiding bedrijventerrein of uitbreiding van voorzieningen. Het ingaan op marktontwikkelingen, aantonen van de behoefte of de uitvoerbaarheid is dan ook niet nodig.

 

Externe veiligheid

Er zijn geen zaken van externe veiligheid aan de orde.

 

Groenstructuur, landschap en natuur

Het openbaar groen op het bedrijventerrein Hoek en Bosch is voornamelijk ingericht met gras en bomen. Ten oosten van de weg Hoek en Bosch ligt een beschermde dijk. Deze is, voor behoud van de dijk, ook als zodanig bestemd.

De beheersverordening biedt voldoende bescherming en mogelijkheden voor aanpassing van de inrichting van de openbare ruimte en voor bescherming van groengebieden en de beschermde dijk.

 

Luchtkwaliteit

Uit andere onderzoeken blijkt dat de luchtkwaliteit op het bedrijventerrein Hoek en Bosch zodanig is dat het woon- en leefklimaat goed is. Nieuwe ontwikkelingen zijn niet voorzien. Onderzoek kan achterwege blijven.

 

Milieu- en geurhinder

Het bedrijventerrein Hoek en Bosch huisvest uiteenlopende bedrijven. Ter plaatse zijn geen milieuknelpunten aan de orde. De percelen waar relevante milieuaspecten aan de orde zijn, blijven deel uitmaken van het oorspronkelijke bestemmingsplan. Daarin zijn adequate regelingen opgenomen gericht op het voorkomen van ongewenste situaties.

 

Ontsluiting

De bestaande verkeersontsluiting van het bedrijventerrein Hoek en Bosch is toereikend. Recent zijn de hoofdwegen verbeterd door een nieuwe inrichting. Andere aanpassingen zijn niet nodig of voorzien.

 

Parkeren

Parkeren gebeurt op het bedrijventerrein Hoek en Bosch voornamelijk op eigen terrein. Hierbij zijn overal voldoende parkeerplaatsen aanwezig. Nieuwe functies zijn in de beheersverordening niet voorzien.

 

Water

Op het gebied van water worden geen ingrijpende veranderingen beoogd.

 

Wegverkeerslawaai

Onderzoek naar wegverkeerslawaai blijft achterwege. Er worden geen nieuwe geluidsgevoelige functies geprojecteerd of nieuwe wegen mogelijk gemaakt.

 

Bijlagen bij toelichting

 

De bijlagen die behoren bij de regels van deze verordening worden bekendgemaakt door deze voor een ieder ter inzage te leggen van 5 oktober tot en met 15 november 2017 in de gemeentewinkel gelegen aan de Grote Markt 24 te Hulst. De bijlagen zijn ook raadpleegbaar via de landelijke voorziening www.ruimtelijkeplannen.nl onder identificatienummer: NL.IMRO.0677.bvHoekenBosch-000V.

 

Bijlage 1 Verbeelding bedrijventerrein Hoek en Bosch

Bijlage 2 Luchtfoto bedrijventerrein Hoek en Bosch

 

Regels

Hoofdstuk 1 Inleidende regels

Artikel 1 Begrippen

 

1.1 verordening

de beheersverordening Bedrijventerrein Hoek en Bosch overeenkomstig de geometrisch bepaalde planobjecten als vervat in het GML-bestand NL.IMRO.0677.bvHoekenBosch-000V met bijbehorende bestanden.

 

1.2 beheersverordening

de geometrisch bepaalde planobjecten met de bijbehorende regels en de daarbij behorende bijlagen.

 

1.3 bestaand

bestaand gebruik: het gebruik van de gronden en bouwwerken zoals aanwezig op het moment van de vaststelling van de verordening; daaronder valt niet het gebruik dat reeds in strijd was met het voorheen geldende bestemmingsplan, daaronder begrepen de overgangsbepalingen van dat plan;

bestaande bouwwerken: bouwwerken die op het tijdstip van de vaststelling van de verordening:

aanwezig zijn én bij of krachtens de Wet algemene bepalingen omgevingsrecht zijn gebouwd;

nog kunnen worden gebouwd krachtens een omgevingsvergunning voor het bouwen;

daaronder valt niet het bouwen dat reeds in strijd was met het voorheen geldende bestemmingsplan, daaronder begrepen de overgangsbepalingen van dat plan;

bestaande afmetingen: afstands-, hoogte-, inhouds- en oppervlaktematen, die op het tijdstip van inwerkingtreding van de verordening tot stand zijn gekomen of tot stand zullen komen met inachtneming van het bepaalde bij of krachtens de Wet algemene bepalingen omgevingsrecht;

bestaande goot- of bouwhoogte: goot- of bouwhoogtematen, die op het tijdstip van inwerkingtreding van de verordening tot stand zijn gekomen of tot stand zullen komen met inachtneming van het bepaalde bij of krachtens de Wet algemene bepalingen omgevingsrecht;

onder bestemmingsplan en Wet algemene bepalingen omgevingsrecht wordt tevens verstaan de voorgaande wet- en regelgeving die hiermee gelijk wordt gesteld.

 

1.4 besluit(sub)vlak

een geometrisch bepaald vlak of figuur, waarmee gronden zijn aangeduid, waarvoor ingevolge deze verordening regels worden gesteld ten aanzien van het gebruik en/of het bebouwen van deze gronden.

 

1.5 bevoegd gezag

bevoegd gezag zoals bedoeld in de Wet algemene bepalingen omgevingsrecht.

 

1.6 bouwen

het plaatsen, het geheel of gedeeltelijk oprichten, vernieuwen of veranderen en het vergroten van een bouwwerk.

 

1.7 bouwwerk

elke constructie van enige omvang van hout, steen, metaal of ander materiaal, die hetzij direct hetzij indirect met de grond is verbonden, hetzij direct of indirect steun vindt in of op de grond.

 

Hoofdstuk 2 Bestemmingsregels

Artikel 2 Bedrijventerrein Hoek en Bosch

 

2.1 Bestaand gebruik en bestaande bouwwerken

de in het besluitvlak 'Bedrijventerrein Hoek en Bosch' gelegen gronden en bestaande bouwwerken mogen worden gebruikt overeenkomstig het bestaande gebruik;

bestaande bouwwerken mogen worden vervangen door bouwwerken van dezelfde afmetingen en op dezelfde locatie.

 

2.2 Aanvulling op lid 2.1 ten aanzien van het BOUWEN en GEBRUIK

In aanvulling op lid 2.1 gelden ten aanzien van het bouwen en gebruik:

Regels bestemmingen bedrijventerrein Hoek en Bosch, zoals opgenomen in Bijlage 2;

Kaart bestemmingen Bedrijventerrein Hoek en Bosch, zoals opgenomen in Bijlage 1;

Bestemmingsplan Bedrijventerrein Hoek en Bosch 1e herziening, zoals opgenomen in Bijlage 3;

Hoek en Bosch 1e herziening Plankaart, zoals opgenomen in Bijlage 4;

Parapluherziening Huisvesting Arbeidsmigranten en seizoensarbeiders, zoals opgenomen in Bijlage 5.

 

Hoofdstuk 3 Algemene regels

Artikel 3 Antidubbeltelregel

Grond die eenmaal in aanmerking is genomen bij het toestaan van een bouwplan waaraan uitvoering is gegeven of alsnog kan worden gegeven, blijft bij de beoordeling van latere bouwplannen buiten beschouwing.

 

Hoofdstuk 4 Overgangs- en slotregels

Artikel 4 Overgangsrecht

 

4.1 Overgangsrecht bouwwerken

Voor bouwwerken luidt het overgangsrecht als volgt:

een bouwwerk dat op het tijdstip van inwerkingtreding van de beheersverordening aanwezig of in uitvoering is, dan wel gebouwd kan worden krachtens een omgevingsvergunning voor het bouwen, en afwijkt van de beheersverordening, mag, mits deze afwijking naar aard en omvang niet wordt vergroot:

gedeeltelijk worden vernieuwd of veranderd;

na het tenietgaan ten gevolge van een calamiteit geheel worden vernieuwd of veranderd, mits de aanvraag van de omgevingsvergunning voor het bouwen wordt gedaan binnen twee jaar na de dag waarop het bouwwerk is teniet gegaan;

het bevoegd gezag kan eenmalig in afwijking van dit lid onder a een omgevingsvergunning verlenen voor het vergroten van de inhoud van een bouwwerk als bedoeld in dit lid onder a met maximaal 10%;

dit lid onder a is niet van toepassing op bouwwerken die weliswaar bestaan op het tijdstip van inwerkingtreding van het plan, maar zijn gebouwd zonder vergunning en in strijd met het daarvoor geldende bestemmingsplan, daaronder begrepen de overgangsbepaling van dat bestemmingsplan.

 

4.2 Overgangsrecht gebruik

Voor gebruik luidt het overgangsrecht als volgt:

het gebruik van grond en bouwwerken dat bestond op het tijdstip van inwerkingtreding van de beheersverordening en hiermee in strijd is, mag worden voortgezet;

het is verboden het met de beheersverordening strijdige gebruik, bedoeld in dit lid onder a, te veranderen of te laten veranderen in een ander met de beheersverordening strijdig gebruik, tenzij door deze verandering de afwijking naar aard en omvang wordt verkleind;

indien het gebruik, bedoeld in dit lid onder a, na het tijdstip van de inwerkingtreding van de beheersverordening voor een periode langer dan een jaar wordt onderbroken, is het verboden dit gebruik daarna te hervatten of te laten hervatten;

dit lid onder a is niet van toepassing op het gebruik dat reeds in strijd was met het voorheen geldende bestemmingsplan, daaronder begrepen de overgangsbepalingen van dat bestemmingsplan.

 

Artikel 5 Slotregel

 

Deze regels worden aangehaald als:

Regels van de beheersverordening 'Bedrijventerrein Hoek en Bosch'.

 

Bijlagen bij de regels

 

De bijlagen die behoren bij de regels van deze verordening worden bekendgemaakt door deze voor een ieder ter inzage te leggen van 5 oktober tot en met 15 november 2017 in de gemeentewinkel gelegen aan de Grote Markt 24 te Hulst. De bijlagen zijn ook raadpleegbaar via de landelijke voorziening www.ruimtelijkeplannen.nl onder identificatienummer: NL.IMRO.0677.bvHoekenBosch-000V.

 

Bijlage 1 Kaart bestemmingen Bedrijventerrein Hoek en Bosch

Bijlage 2 Regels bestemmingen bedrijventerrein Hoek en Bosch

Bijlage 3 Bestemmingsplan Bedrijventerrein Hoek en Bosch 1e herziening

Bijlage 4 Hoek en Bosch 1e herziening Plankaart

Bijlage 5 Parapluherziening Huisvesting Arbeidsmigranten en seizoensarbeiders

Bijlage 6 Staat van Bedrijfsactiviteiten 2007 Bedrijventerreinen

 

Naar boven